-
Köpa
Köpa -
Sälja
Sälja - Hitta bostad
- Skapa bevakning
- Hitta mäklare
Exklusiv takvåning med två terrasser!
Lomma - Strandstaden, Lomma
*I avgiften ingår värme, kallvatten och bostadsrättstillägg. Det tillkommer en obligatorisk avgift om 220 kr/mån för Telia Triple Play. Individuell avläsning och debitering efter faktiskt förbrukning av varmvatten och hushållsel.
**Areakälla enligt bostadsrättsföreningens mäklarbild/utdrag ur lägenhetsregister.
Förhandsvisning. Anmälan krävs.
På Förhand ligger bostäder som av olika anledningar inte är ute till försäljning just nu men som kan komma att säljas om förutsättningarna är rätt.
Välkommen till denna högklassiga takvåning med öppen planlösning, stor terrass i västerläge och braskamin!
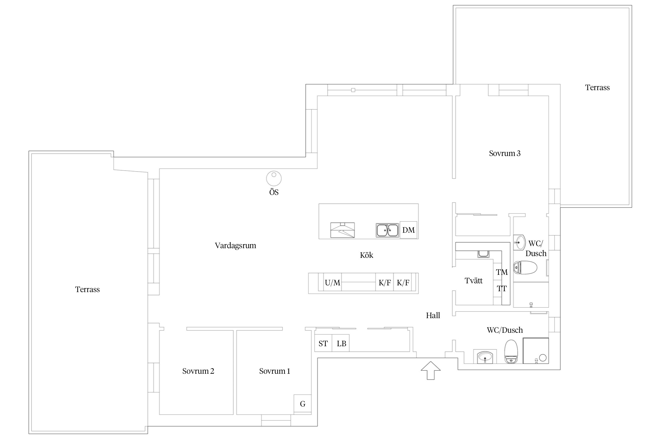
Drömmer du om ett hem där varje kvadratmeter andas ljus, rymd och livskvalitet? Välkommen till denna exklusiva takvåning om 120 kvm, ett boende som kombinerar modern design med enastående komfort och två generösa terrasser som förlänger vardagen ut i det fria. Här bor du högst upp i kvarteret Kaptenen, med två privata terrasser, varav den största vetter mot väster och bjuder på magiska solnedgångar över Strandstadens takåsar.
Den öppna planlösningen mellan kök och vardagsrum sträcker sig över hela 61 kvm och skapar ett fantastiskt flöde mellan matlagning, umgänge och avkoppling. De stora fönsterpartierna släpper in rikligt med dagsljus och förstärker känslan av rymd, medan den stilrena braskaminen från Contura ger värme och karaktär. Köket erbjuder en härlig plats för matlagning med goda arbetsytor och gott om förvaring. Här finner du också en generös köksö med plats för ett antal barstolar. Från vardagsrummet når du den stora terrassen i västerläge. Här finns plats för både loungemöbler, middagsgäster och lata dagar i solen, med utsikt som sträcker sig över Lommas charmiga taklandskap. Dessutom är terrassen utrustad med en stor markis med integrerad belysning. Bostaden erbjuder tre rogivande sovrum med smart förvaring, varav det stora har egen utgång till terrassen mot Hamnallén. Här finns också två stilfulla badrum med komfortvärme i golv, och en separat tvättstuga med full maskinpark från Siemens. Allt är genomtänkt in i minsta detalj. Som pricken över i:et är hemmet utrustat med smart teknik och en luft-luft värmepump som kan kyla ner lägenheten på årets varmaste dagar.
Strandstaden i Lomma är ett av kommunens mest eftertraktade områden, ett modernt bostadskvarter med direkt närhet till havet, småbåtshamnen och den långa strandpromenaden. Här bor du med gångavstånd till caféer, restauranger, butiker och service, samtidigt som du har utmärkta kommunikationer: tåget tar dig till Malmö C på bara 8 minuter och till Lund på cirka 10 med buss.
Den öppna planlösningen mellan kök och vardagsrum om hela 61 kvm ger en fantastisk känsla av rymd och socialt flöde. Här möts du av vitlaserat parkettgolv i ek (1-stav) och väggar målade i en mjuk vit ton, vilket förstärker ljusinsläppet från de stora fönsterpartierna. En elegant braskamin från Contura skapar både värme och atmosfär under årets kallare månader.
Köket är ett smakfullt val från Vedum med linnebeige luckor för ett rent och modernt uttryck. Bänkskiva och stänkskydd i kompositmaterial (Moorland Fog) ger både funktion och estetik. Vitvarorna från Siemens är helintegrerade och inkluderar bland annat induktionshäll, inbyggnadsugn, kombimikro, kyl/frys samt diskmaskin.
Badrummen är helkaklade med vit matt kakel och mörkbeige klinker i terrazzo-stil. Komfortvärme i golv, stilrena blandare, spegelskåp med LED-belysning samt kommoder i svart ek ger en exklusiv hotellkänsla. I det större badrummet finns även ett emaljbadkar med takdusch.
Samtliga sovrum har målade väggar i ljusa toner och är utrustade med skjutdörrsgarderober i satin white och spegelglas, med smart inredning för både linne och städ. I hallen möts du av klinker i samma terrazzo-stil som badrummen, vilket skapar en enhetlig känsla genom hela hemmet.
Tvättstugan är fullt utrustad med Siemens tvättmaskin och torktumlare, arbetsbänk i laminat samt väggskåp för förvaring. Här finns även belysning med LED-list för optimal arbetsmiljö.
Som kronan på verket erbjuder takvåningen två generösa terrasser om totalt 65 kvm, varav en är förstärkt för badtunna, med utsikt över Lommas charmiga hamnmiljö. Här finns plats för både loungemöbler och middagsgäster under bar himmel.



Planlösning
Lomma 25:155
*Areakälla enligt bostadsrättsföreningens mäklarbild/utdrag ur lägenhetsregister.
I avgiften ingår värme, kallvatten och bostadsrättstillägg. Det tillkommer en obligatorisk avgift om 220 kr/mån för Telia Triple Play. Individuell avläsning och debitering efter faktiskt förbrukning av varmvatten och hushållsel.
Till lägenheten hör ett stort och separat källarförråd.
Bostaden erbjuder två fantastiska takterrasser! Den mindre takterrassen ligger i öster och passar perfekt för morgonkaffet i solen. Den större ligger i väster och blickar ut mot Strandstadens takåsar.
Bostadsrättens indirekta nettoskuldsättning baseras på föreningens skulder/lån minus föreningens räntebärande tillgångar och likvida medel. Beräkningen är gjord och baseras enbart på den senaste tillgängliga årsredovisningen. För mer information kontakta ansvarig fastighetsmäklare.
*Betalas av köpare
Kvarteret erbjuder 31 attraktiva bostadsrätter, från mindre, yteffektiva lägenheter till fantastiska penthouselägenheter om 2–4 rok med takterrasser på översta planet. Det finns även 12 stilfulla gathus (bostadsrätt) med egen entré och privat trädgårdstäppa.
Ekonomisk förvaltning via JM@Home.
Föreningen höjde avgiften med 8 % 2025-04-01. I dagsläget finns inga planerade avgiftshöjningar. (kontrollerat 2025-10-17)
Reglering av varmvatten och el görs upp mellan parter vid försäljning.
Fastigheten är fullvärdesförsäkrad hos Trygg-Hansa och det ingår bostadsrättstillägg för föreningens medlemmar.
Föreningen har en underhållsplan som de följer. (Kontrollerat 2025-10-20)
Det finns garage med 45 parkeringsplatser. Här kan även hyras plats för laddning av elbil. I nuläget finns det två lediga platser, möjlighet till laddare finns tillgängligt.
Hyra garage: 1 150 kr/mån
Hyra garage: Laddplatser - 1 400 kr/mån
Hyra garage: MC-platser - 500 kr/mån
Här finns även förråd till både lägenheter och gathus. Alla lägenheter har förråd som ingår i bostadsrätten. Det finns 2 extra förråd att hyra (uthyrda i dagsläget).
(Information om parkering kontrollerad 2025-10-20)
TV (grundutbud) och bredband (1000/1000) via Telia Triple Play tillkommer som ett obligatoriskt tillägg på avgiften.
Gemensam gård med plats för både lek och umgänge. För att barnen ska få sitt är gården utrustas med sandlåda och lekytor. Vackra träd och växter har sin plats på gården och en härlig pergola ger viss skugga och svalka under varma sommardagar.
Föreningen har ett gemensamt gästrum på totalt cirka 25 kvadratmeter som har plats för både sovplats, wc/dusch och ett välutrustat pentry. Hyra övernattningsrum, gemensamhetslokal 300 kr/dygn.
Information som berör föreningen är inhämtad via årsredovisning, stadgar och kontakt med föreningen. Avvikelser kan förekomma och som köpare uppmanas du att själv kontrollera samtliga uppgifter, framförallt om något är av extra stor betydelse för dig som köpare.
Lomma är en tätort i Lomma kommun. Eftersom Lomma ligger vid mynningen till Höje å blev det redan under 1600-talet en naturlig plats för tull, omlastning och handel. Lomma är en blomstrande sommarort som speciellt under semestermånaderna drar mycket folk från de kringliggande kommunerna.
Varje sommar hålls en uppskattad folkfest i centrala Lomma med marknad, uppträdanden, tivoli, långlördag, utställningar, veteran- och sportbilsutställning, hantverksmässa, ponnyridning, konserter och mycket mer. För den som vill bada finns fina sandstränder och välskötta badplatser.
I Lomma centrum finns restauranger, fiskbod, bibliotek samt annan service som banker, apotek, vårdcentral, mataffärer och gym. Med en kort bil- eller bussresa kan du ta dig till större shoppingcenter som Burlövs Center och Nova Lund.
Landskapet i Lomma kommun är övervägande flackt och naturen präglas av det öppna landskapet och havet. Vacker natur finns framförallt i anslutning till stranden som till exempel området kring mynningen vid Lödde å och Alnarps ängar. Det kommunala naturreservatet Slättängsdammarna anses ha ett stort biologiskt och kulturhistoriskt värde. Tallplanteringarna Habo fure och Kyrkfuret bildar tillsammans ett större rekreationsområde med skogskänsla.
Alnarp är en mindre ort i Lomma kommun som också är säte för Sveriges lantbruksuniversitet, SLU. Här finns även den fantastiskt vackra botaniska trädgården i Alnarpsparken samt Alnarps slott som byggdes 1862. Området ligger som en grön oas mitt i det skånska landskapet. Strax intill ligger Alnarpsgården med lantbruksmuseum och undervisningslokaler. Nära byn ligger Alnarps restaurang, som förutom lunch och á la carte även erbjuder en mängd trevliga och uppskattade events som ostprovningar, temaveckor och studentfirande. Från Lomma går flera olika busslinjer och tåg, så att du lätt kan pendla till både Malmö och Lund.
Vill du köpa, sälja eller värdera bostad i Lomma - Strandstaden? Välkommen att kontakta Bjurfors mäklare i Lomma. Passa också på att anmäla dig till vår kostnadsfria söktjänst Boagenten som hjälper dig att hitta ditt drömboende.
Kontakta mäklaren om du behöver hjälp att ta fram en boendekalkyl.
När du köper din bostad genom Bjurfors kan du ansöka om bolån till en förmånlig ränta hos vår samarbetspartner SEB.
Förhandsvisning. Anmälan krävs.
Ansvarig mäklare