-
Köpa
Köpa -
Sälja
Sälja - Hitta bostad
- Skapa bevakning
- Hitta mäklare
Stenhus vid stranden på mycket attraktivt läge i Lommas hamnkvarter
Lomma - Strandstaden, Lomma
*Areauppgifter enligt säljaren
På Förhand ligger bostäder som av olika anledningar inte är ute till försäljning just nu men som kan komma att säljas om förutsättningarna är rätt.
Välkommen till detta tilltalande stenhus med välplanerade kvadratmeter och fina materialval. Bo i marina kvarter med direkt närhet till stranden.
Välkommen till detta underbara stenhus med ljus och rymd belägen på mycket attraktivt läge i Lommas hamnkvarter. Ett perfekt boende för den moderna familjen som vill ha en hög boendestandard och bo direkt vid havet. Hela huset genomsyras av en skön atmosfär och den insynsskyddade trädgården i soligt söderläge utgör ett fantastiskt mervärde. Närheten till havet är det absolut bästa med huset. Bara 50 meter bort ligger en av Sveriges finaste stränder, vilket gör att du enkelt kan gå ner till havet, på sommaren för ett dopp, men också året runt för att njuta av strandkänslan eller dricka varm choklad en solig vinterdag. Havsutsikten från matplatsen ger en fantastisk vardagskänsla, och från balkongen har du en vidsträckt utsikt som bjuder på många njutbara stunder. Huset är gediget byggt med betongväggar, betonggolv och betongmellanbjälklag, vilket ger mycket bra ljudisolering, svala rum på sommaren och behaglig värme på vintern. Uteplatserna är mysiga och lättskötta, ett trädäck i soligt söderläge på baksidan och en trivsam framsida med havsutsikt. De stora fönstren skapar rymd och gör att rummen upplevs ljusa, stora och fräscha. Tack vare husets placering, avståndet till närliggande hus, gattet och den stora innergården känns boendet både luftigt och privat samtidigt. Entréplanet utgör sällskapsdel med kök och vardagsrum med utgång till uteplats och trädgård. Huset har fönster i olika format och i olika väderstreck som skapar ett underbart ljus. Övre plan erbjuder tre bra sovrum, helkaklat badrum med hörnbadkar och tvättavdelning. Det är en skön känsla att vistas i detta hus med genomtänkta detaljer och med trevliga materialval. Huset är beläget på en av de attraktivaste gatorna i strandstaden. Ett fantastiskt levande område med sin närhet till stranden och det trevliga promenadstråket längs Höje å. För barnfamiljen är livet enkelt i Lomma hamn, förskolor, skolor och centrum ligger på behagligt avstånd. Välkommen på visning!
Hela entréplan har vattenburen golvvärme och övre plan har vattenburna radiatorer.
Ekparkettgolv i samtliga vistelserum.
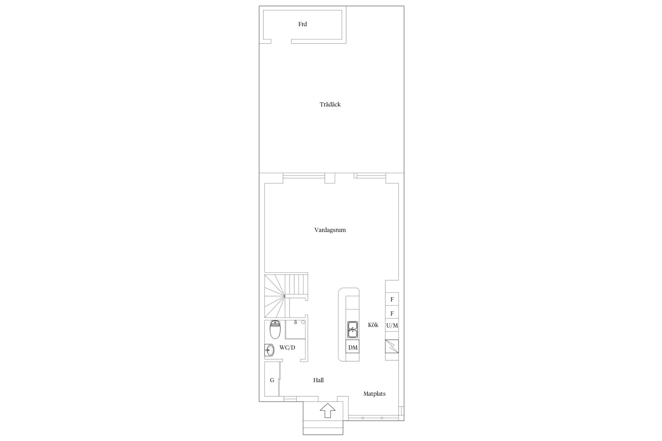
Entréplan
Välkomnande och rymlig hall med inbyggd garderob med skjutdörrar för bra avhängning av ytterkläder. Praktiskt med klinkergolv i hallen.
Stilrent kök från Marbodal med köksluckor i björk. Kökets utrustning består av spishäll (2012), fläkt (2005), kyl och frys (2005), diskmaskin (2016) , inbyggd ugn (2005) och inbyggd mikrovågsugn (2012). Matplats för sex till åtta vid burspråket. Här kan man också se stranden och havet.
Vardagsrummet rymmer både plats för soffa och matsalsmöblemang. Ljuset i rummet är något utöver det vanliga, ljuset flödar in från de stora fönsterpartierna som går från golv till tak. Utgång till den trevliga trädgården och den generösa uteplatsen i soligt söderläge. I vardagsrummet är det förberett för att installera en braskamin.
Helkaklat badrum från 2023 helkaklat i moderna färger. Dusch med infällbara duschväggar, wc, handdukstork samt handfat med underskåp. Spotlights i taket.
Övre Plan
Övre plan erbjuder tre bra sovrum, klädkammare samt badrum med tvättavdelning. Ett av sovrummen har inbyggd skjutdörrsgarderob och två av sovrummen har utgång till balkongen där man har utsikt mot stranden och havet.
Stort helkaklat badrum med klinker och kakel i ljusa toner med en fondvägg i blå ton. Badrummet är utrustad med hörnbubbelbadkar, vägghängd wc, handdukstork, stort handfat med underskåp samt spegelskåp. Golvvärme (el) och spotlights i taket.
Praktiskt med en tvättavdelning i badrummet. Bra förvaringsskåp samt arbetsbänk. Tvättmaskin (2018), torktumlare (2019) och torkskåp (2005).
Sovrum 1: Ljust och rofyllt sovrum med härlig utsikt mot Höjeå/kanalen och fri vy över den lugna innergården utan direkt insyn. Rummet upplevs både fräscht och rymligt tack vare det generösa ljusinsläppet och den öppna känslan.
Sovrum 2: Ett stort och ljust sovrum med delvis havsutsikt, stora fönster och en balkongdörr som förstärker rymden. Från balkongen har man en fantastisk, obruten havsutsikt som skapar en unik och avkopplande atmosfär. Mittemot fönstret finns en öppen yta, vilket ger en fri utsikt, extra ljusinsläpp och en härlig känsla av rymd.
Sovrum 3: Det stora fönstret tillsammans med balkongdörren ger rummet en luftig och generös rymd. Här har man delvis havsutsikt från rummet, medan balkongen bjuder på full havsutsikt — perfekt för att njuta av morgonsol eller kvällsbris.



Entrèplan
Övre plan
Vindsplan
Lomma 25:11
*Areauppgifter enligt säljaren
Fast egendom som tas med vid utflyttning: Elfahyllor i utomhusförrådet, samtliga Elfahyllor i huset, samtliga gardinstänger och rullgardiner.
2023: Totalrenovering badrum 1 på entréplan
2022: Byggt nytt träplank på västsidan på altanen
Renoverat planket på östsidan på altanen
Målade om vardagsrum, hall och kök
Målade om förrådet
Byggde trädäck på balkongen
Bekostade installation av elbilsladdare på parkeringsplats i garaget
2018: Målade om alla tre sovrum, hall, vardagsrum, kök och trapphuset
Inredde skjutdörrsgarderob i Sovrum 1
2017: Byggde grind och staket i söder på altanen
Målat om träplank i öst och väst
Målat om förrådet
2015: Målat om fasaden
2010: Målat om sovrum 2
2008: Isolerade förrådet
Isolerat förråd om 6 kvm och bra förvaringsmöjligheter på ca 25 kvm golvyta på vinden som man också kan inreda som boende. Bygglov beviljades 2020 att inreda vinden och uppföra takkupor.
Träbelagd och insynsskyddad uteplats i soligt söderläge.
Träbelagd balkong med havsutsikt.
Kommunalt vatten, Kommunalt avlopp.
Insynsskyddad trädgårdstomt i soligt söderläge med häckar, staket och markis.
Enligt servitut: En bilplats i garage, med laddstation för elbil, och en bilplats på innergården. Båda platserna kostar tillsammans 686 kr/mån plus förbrukad el.
Detaljplan (2004-09-02)
Gemensamhetsanläggning: Lomma lomma ga:20 ändamål: Vägar, Avloppsanläggning, Radio- TV och/eller tele, Elledning och/eller belysning, Kvartersanläggning
Förmån: Avtalsservitut Parkeringsplats mm, 1262IM-08/24784.1
TV: Tele 2 Internet: Tele 2 250/50 mbps
i samfällighetsavgiften ingår det renhållning, bredband, kabel-TV, belysning gård, dagvatten innergård, skötsel inkl. snöröjning på delar av innergård.
Det finns 1 st pantbrev uttaget om sammanlagt 3 150 000 kr
Lomma är en tätort i Lomma kommun. Eftersom Lomma ligger vid mynningen till Höje å blev det redan under 1600-talet en naturlig plats för tull, omlastning och handel. Lomma är en blomstrande sommarort som speciellt under semestermånaderna drar mycket folk från de kringliggande kommunerna.
Varje sommar hålls en uppskattad folkfest i centrala Lomma med marknad, uppträdanden, tivoli, långlördag, utställningar, veteran- och sportbilsutställning, hantverksmässa, ponnyridning, konserter och mycket mer. För den som vill bada finns fina sandstränder och välskötta badplatser.
I Lomma centrum finns restauranger, fiskbod, bibliotek samt annan service som banker, apotek, vårdcentral, mataffärer och gym. Med en kort bil- eller bussresa kan du ta dig till större shoppingcenter som Burlövs Center och Nova Lund.
Landskapet i Lomma kommun är övervägande flackt och naturen präglas av det öppna landskapet och havet. Vacker natur finns framförallt i anslutning till stranden som till exempel området kring mynningen vid Lödde å och Alnarps ängar. Det kommunala naturreservatet Slättängsdammarna anses ha ett stort biologiskt och kulturhistoriskt värde. Tallplanteringarna Habo fure och Kyrkfuret bildar tillsammans ett större rekreationsområde med skogskänsla.
Alnarp är en mindre ort i Lomma kommun som också är säte för Sveriges lantbruksuniversitet, SLU. Här finns även den fantastiskt vackra botaniska trädgården i Alnarpsparken samt Alnarps slott som byggdes 1862. Området ligger som en grön oas mitt i det skånska landskapet. Strax intill ligger Alnarpsgården med lantbruksmuseum och undervisningslokaler. Nära byn ligger Alnarps restaurang, som förutom lunch och á la carte även erbjuder en mängd trevliga och uppskattade events som ostprovningar, temaveckor och studentfirande. Från Lomma går flera olika busslinjer och tåg, så att du lätt kan pendla till både Malmö och Lund.
Vill du köpa, sälja eller värdera bostad i Lomma - Strandstaden? Välkommen att kontakta Bjurfors mäklare i Lomma. Passa också på att anmäla dig till vår kostnadsfria söktjänst Boagenten som hjälper dig att hitta ditt drömboende.
Kontakta mäklaren om du behöver hjälp att ta fram en boendekalkyl.
När du köper din bostad genom Bjurfors kan du ansöka om bolån till en förmånlig ränta hos våra banksamarbetspartners Söderberg & Partners och SEB.
Ansvarig mäklare