-
Köpa
Köpa -
Sälja
Sälja - Hitta bostad
- Skapa bevakning
- Hitta mäklare
Parhus från 1990 på omtyckta Kobjer med härlig trädgård i väster. Isolerat garage och elbilsladdare.
Kobjer, Lund
*taxeringsinformation
Parhus på omtyckta Kobjer med mysig trädgård i väster och uteplats i öster. Välskött och fint skick med isolerat garage, elbilsladdare och fiber.
På omtyckta och familjära Kobjer väntar detta trivsamma och välskötta parhus från 1990, perfekt beläget på bekvämt cykelavstånd till både centrum och centralstationen och med busshållplats runt knuten. Här bor du i ett lugnt och tryggt område på en gata utan förbipasserande trafik, utan endast de boende, med närhet till skolor, grönområden, lekplatser och stadens puls – ett hem som passar lika bra för barnfamiljen som för dig som vill ha gott om utrymme.
Trädgården på baksidan bjuder på ett härligt insynsskyddat läge i sydväst där eftermiddags- och kvällssolen ger många härliga dagar. Det stora trädäcket om ca. 30 kvm erbjuder plats för både middagsbord och loungedel och kompletteras av en gräsyta för lek eller odling. Framsidan erbjuder en stensatt uteplats i österläge för skön skugga under de varmaste sommardagarna eller där morgonkaffet kan avnjutas i solsken. Framsidan erbjuder även två biluppställningsplatser med elbilsladdare samt ett isolerat garage om ca 24 kvm.
Huset har väl omhändertaget och genomgått kontinuerligt underhåll såsom utvändig och invändig målning, kök renoverat 2012, indraget fiber, ny gaspanna 2016, installation av elbilsladdare och nytt trädäck.
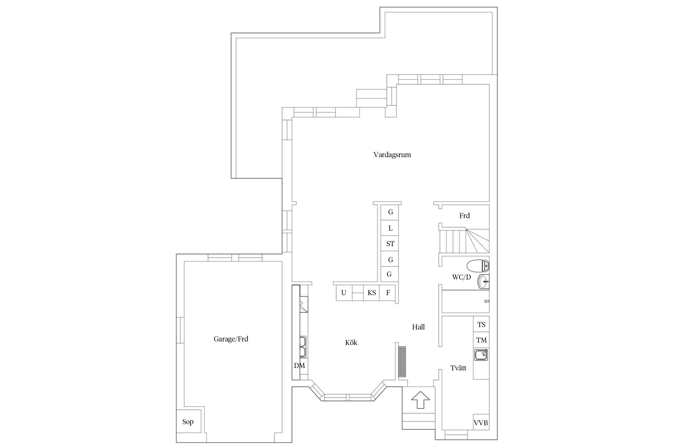
Planlösningen är genomtänkt och flexibel med funktionella ytor på båda våningsplanen. Entréplanet rymmer ett stilrent kök med trevlig matplats vid fönstret, vardagsrum i vinkel med plats för både soffgrupp, fåtöljer och större matbord. För den som önskar går det att dela av och ha ytterligare ett sovrum/arbetsrum här nere. Det finns även gästtoalett och grovkök med tvättmaskin och torkskåp samt klädkammare. Önskar man dusch nere finns möjlighet att skapa ett större badrum genom att ta bort klädkammaren, se alt planlösning. Bra förvaring under trappan. Trappan som är beklädd med bokparkett smälter in med övrig parkett och leder oss upp till ovanvåningen. Här finns ett ljust och luftigt allrum i väster samt tre väl tilltagna sovrum belägna i söder och öster. Sovrummen är omkring ca 15 kvm, 11 kvm och 12 kvm och samtliga med garderober. Önskar man ytterligare ett sovrum finns möjlighet att dela av allrummet till ett sovrum. Här uppe finns även ett stort badrum med badkar och en kombinerad dusch och ångbastu samt handdukstork.
Välkommen på visning!
ENTRÉPLAN
Kök
Trevlig matplats vid fönstret. Köksinredning, målade luckor, granitbänkskiva. Spishäll (Siemens) , ugn (Husqvarna) , mikro (Husqvarna), kyl och frys (Bosch) samt diskmaskin (Bosch). Bokparkett.
Vardagsrum och matplats
Stort luftigt rum i vinkel med fönster i söder och väster. Plats för soffgrupp, fåtöljer och matbord. Möjlighet att dela av till ett extra sovrum/arbetsrum. Bokparkett. Utgång till trädgården.
Gästtoalett
Toalett med handfat. Här går att göra ett större badrum med dusch genom att ta bort klädkammaren, se alt planlösning.
Grovkök
Gott om förvaring. Tvättmaskin och torkskåp. Klädkammare intill.
OVANVÅNING
Allrum
Ljust och luftigt allrum i västerläge. Här går det att dela av till ytterligare ett sovrum, se alt planlösning. Bokparkett.
Sovrum 1, 2 och 3
Luftiga sovrum med förvaringsmöjligheter och plats för dubbelsäng och övrig förvaring och möblering.
Badrum OV
Badrummet är stort och erbjuder dusch med ångbastu, badkar, wc, handdukstork och kommod.



Klövern 14
*taxeringsinformation
2025 Digitalt lås ytterdörr
2024 Målning utvändigt
2022 Elladdare bil
2016 Byte gaspanna
2016 Taktvätt med målning
2015 Indragning fiber
2014 Nytt trädäck ca 30 kvm
2014 Ny beklädnad trappa, bokparkett
2012 Kök med nya maskiner, diskbänk och granitbänkskiva
2010 Målning utvändigt
2004 Isolering garage
Garage (ca 24 kvm)
Kommunalt vatten året om. Kommunalt avlopp
Framsidan österläge. Baksidan söder och västerläge med gräsmatta och trädäck om ca 30 kvm.
Garage och uppställningsplats för 2 bilar med elbilsladdare.
Detaljplan (1989-01-19)
Gemensamhetsanläggning: Lund klövern ga:1 ändamål: Vägar, Vattenförsörjning, Avloppsanläggning
Internet: Telia 100/100 Fiber
I samfälligheten ingår snöröjning och underhåll av gata
Det finns 3 st pantbrev uttagna om sammanlagt 1 247 500 kr
Att bo i Kobjer - Norra Lund
Norra Lund är ett område som ringar in flera mysiga stadsdelar och är ett lugnt, tryggt och familjärt område. Sofiaparken, Möllevången, Kobjer, Sliparelyckan och Smörlyckan är de stadsdelar som ingår i denna populära region.
I Norra Lund finns en stor variation av bebyggelser i form av friliggande villor, radhus och flervåningsbostäder och präglas framförallt av barnfamiljer men även akademiker och studenter som också har hittat hit.
Du hittar dessutom flera härliga grönområden och natursköna omgivningar. I den västra delen av Norra Fäladen finns ett parkområde beläget vid namnet Sankt Hans backar. Höga kullar och flertal motionsslingor, djurhagar och bågskytteplats.
Smörlyckan och Victoriastadion ligger också inom gångavstånd för de aktiva.
Ett flertal busslinjer servar stadsdelarna i detta område och gör att du tar dig smidigt in till centrala Lund. Från Lund C tar du dig dessutom smidigt med tåg till Malmö, Helsingborg eller varför inte Köpenhamn?
På Kobjer finner du en härlig blandning av flerfamiljshus, radhus och villor vilket ger en mysig atmosfär, men har kvar närheten till Lund centrum. Köpcentret Nova Lund är endast en liten promenad bort med ett brett shoppingutbud och välsorterade matbutiker.
Minilivs och närbutik finns på Möllevången och i Sofiaparken. På cirka 10 minuter cykelväg hamnar du i Lund centrum med ett bra utbud av både restauranger, bibliotek, kaféer, frisörsalonger, apotek och trevliga butiker. Skolor och förskolor finns gott om i närområdet, exempelvis Bilingual Montessori School of Lund.
Här finns inte bara vacker natur och gröna parker utan också möjlighet till att leva bekvämt med förnödenheter inom gångsavstånd. Bra skolor i en idyllisk och mysig småstadsatmosfär med närhet till kultur, nöje och spännande restauranger.
Vill du köpa, sälja eller värdera bostad i Norra Lund? Kontakta Bjurfors mäklare i Lund! Passa också på att anmäla dig till vår kostnadsfria söktjänst Boagenten som hjälper dig att hitta ditt drömboende.
Kontakta mäklaren om du behöver hjälp att ta fram en boendekalkyl.
När du köper din bostad genom Bjurfors kan du ansöka om bolån till en förmånlig ränta hos våra banksamarbetspartners Söderberg & Partners och SEB.
| Bud | Budgivare | Datum | Tid |
|---|---|---|---|
| 7 700 000 kr | Budgivare 1 | 2026-05-13 | 13:49 |
| 7 600 000 kr | Budgivare 2 | 2026-05-13 | 12:24 |
| 7 500 000 kr | Budgivare 1 | 2026-05-12 | 18:45 |
| 7 400 000 kr | Budgivare 2 | 2026-05-11 | 21:01 |
| 7 350 000 kr | Budgivare 1 | 2026-05-11 | 20:49 |
| 7 250 000 kr | Budgivare 2 | 2026-05-11 | 20:26 |
| 7 200 000 kr | Budgivare 1 | 2026-05-11 | 13:53 |
Ansvarig mäklare