-
Köpa
Köpa -
Sälja
Sälja - Hitta bostad
- Skapa bevakning
- Hitta mäklare
Ljus och rymlig gaveltvåa med naturnära läge!
Linero, Lund
*I avgiften ingår vatten. Obligatoriskt tillägg som räknas in i avgiften är; bredband 85 kr/mån, kabel-TV 31 kr/mån & värme 830kr/mån (fast avgift) (Kontrollerat 2025-03-18).
**Areauppgifter enligt bostadsföreningen
NOTERA - HSB BRF Linero i Lund har beslutat om att genomföra stambyte i samtliga bostadsrätter i föreningen. Detta innefattar att alla bostadsrätter kommer att få nya badrum. Där finns möjlighet för dig som köpare att kunna påverka materialval, extra tillval m.m. inför stambytet då detta inte har bestämts av nuvarande ägare. Är du intresserad av att veta mer vad som gäller så ta kontakt med ansvarig mäklare.
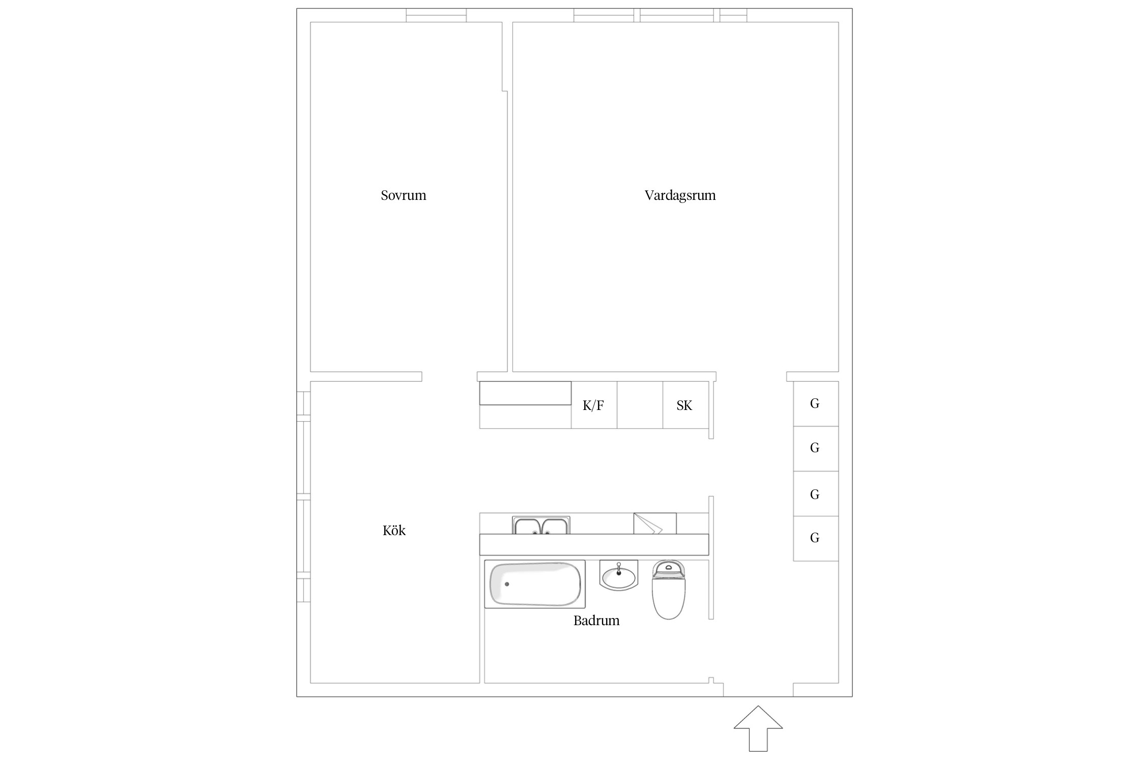
På andra våningen finns en av föreningens mest populära tvårummare. Bostaden har en genomtänkt planlösning och ligger i ett ostört gavelläge med naturen alldeles intill. Köket är rymligt och har plats för ett matbord, medan sovrummet erbjuder gott om utrymme för en dubbelsäng samt en arbetsplats. Vardagsrummet är luftigt och fyllt med ljusinsläpp, med en lugn och grönskande vy. Direkt utanför breder en stor gräsmatta ut sig, och en närliggande skogsdunge leder vidare till fina promenadstråk.
I vardagsrummet finns plats för en rejäl soffgrupp och för den som önskar kan även en extrasäng få plats. Hallen är utrustad med generösa platsbyggda garderober som ger gott om förvaringsmöjligheter, och det stilrena klinkergolvet bidrar till en praktisk och modern känsla. Badrummet är stort och har både badkar och plats för tvättmaskin, vilket gör det både funktionellt och bekvämt. En lägenhet som verkligen bör upplevas på plats!
Bostaden har ett utmärkt läge, endast några minuters promenad från Linero centrum där du hittar både mataffärer och ett gym som är öppet dygnet runt. De höga träden och täta buskagen utanför ger både en vacker utsikt och ett naturligt insynsskydd, vilket skapar en avskild och trivsam atmosfär.
HSB BRF Linero i Lund är en stabil och välrenommerad förening med välskötta fastigheter. Området kombinerar närhet till naturen med smidig tillgång till centrum, och goda kommunikationer gör det enkelt att ta sig runt.
Varmt välkommen på visning!



*Areauppgifter enligt bostadsföreningen
I avgiften ingår vatten. Obligatoriskt tillägg som räknas in i avgiften är; bredband 85 kr/mån, kabel-TV 31 kr/mån & värme 830kr/mån (fast avgift) (Kontrollerat 2025-03-18).
Föreningen tar ut en mindre symbolisk summa för parkeringsplatserna (35kr/mån). Garageplats finns att hyra för 260 kr/mån. Kösystem (garage) tillämpas. Det finns även gästparkeringar som betalas med app eller sms. Det finns 8 platser försedda med laddstolpar (Kontrollerat 2024-12-19).
Bostadsrättsföreningens indirekta nettoskuldsättning är obefintlig eftersom deras egna medel överstiger deras totala lån.
*Betalas av säljare
Brf Linero är en HSB-ansluten bostadsrättsförening som bildades 1971. Föreningen består av 274 bostadsrätter som är fördelade på 12 hus.
I föreningen finns 43 ettor, 39 tvåor, 156 treor och 36 fyror.
Köparen/köparna måste vara medlemmar i HSB innan beslut om medlemskap i föreningen tas. Andelsavgift i HSB kostar ca 500 kr/person och en engångssumma tas ut första året om 300 kr/hushåll. Ansökan om medlemskap görs på www.hsb.se
Varje medlem tecknar sitt eget elavtal med Kraftringen.
Ekonomisk förvaltare är HSB Skåne.
Föreningen höjde avgiften med 3,9 % inför 2024. Inför 2025 höjde man grundavgiften med 9% from och värmeavgiften med 13%.
Renoveringar:
2010 Balkongerna renoverades.
2011 Byte av fönsterbågar samt renovering av fritidslokal.
2012 Nya takfläktar installerades för att reducera elkostnaderna.
2014 Slipning av cementmosaikgolv i trapphusen.
2016 Byte och injustering av samtliga radiator-och stamventiler för värmesystemet i hus 13-23. Systematiskt brandskyddsarbete inkl. test av rökluckor.
2016 Byte av fönsterbågar och drevning.
2017 Samtliga husfasader (norra sidan) rengjordes. Ny markbeläggning av två lekplatser. Systematiskt brandskyddsarbete inkl. prövning av rökluckor. Fönsterbågar bytt i många lägenheter.
2018 Underhåll av golven i entréerna under hösten 2018.
2020 Solpaneler på en utav byggnaderna.
2021 Installation av laddstolpar för elbilar samt solpaneler på tak.
2021 Installation av Jordfelsbrytare i samtliga lägenheter och gemensamma utrymme
2022 Solceller installerat på ett hus
2024 Fasadrenovering.
Planerade renoveringar(kontrollerat 2024-12-19):
- Stambyte påbörjas 2025-01-08 och startar i hus 1 för att därefter fortsätta hus för hus tills arbetet är klart under 2027.
- Översyn av garage enligt underhållsplanen
- Dränering
Föreningen tar ut en mindre symbolisk summa för parkeringsplatserna (35kr/mån). Garageplats finns att hyra för 260 kr/mån. Kösystem (garage) tillämpas. Det finns även gästparkeringar som betalas med app eller sms. Det finns 8 platser försedda med laddstolpar (Kontrollerat 2024-12-19).
TV-anslutning - ansluten till kabelnät via Tele2 med grundutbud, Tele2 Play ingår även kostnadsfritt.
Föreningen är gruppanslutna till Bredband2 (fiber), 1000/1000 Mbit/s för bredband och ip-telefoni. Tillkommer ett obligatoriskt tillägg för 89 kr/mån.
Inom området finns lekplatser som uppfyller EU:s krav på säkerhet, två grillplatser samt en liten fotbollsplan.
I föreningen finns flera gemensamma tvättstugor som bokas elektroniskt. Alla tvättstugor är fräscha och utrustade med moderna maskiner. Där utöver finns en fest/samlingslokal med kök (för upp till 35 personer) som går att hyra för 200 kr/tillfälle. I samband med uthyrning av lokalen deponeras 500 kr som ges tillbaka efter godkänt besiktning. Föreningslokalen finns i trapphus 21E. Det finns även ett övernattningsrum (21D) som kan hyras för 100 kr/natt. Även här deponeras 500 kr som återbetalas enligt ovan.
Mellan boningshusen finns flera gemensamma innergårdar med allt från lekplatser till grillstationer och odlingslotter. Odlingslotterna kan nyttjas för en symbolisk summa om ca 200 kr/kolonilott och år. Separat kösystem tillämpas.
Bland innergårdarna finns även gott om cykelställ och dessutom finns cykelförråd.
Föreningen har avsättning till inre fond varje månad.
I samband med överlåtelsen vill föreningen göra tillsyn av lägenheten då såväl säljare som köpare önskas närvara. Läs gärna mer om föreningen på deras hemsida:
www.hsb.se/skane/brf-linero-i-lund
Information som berör föreningen är inhämtad via årsredovisning, stadgar och kontakt med föreningen. Avvikelser kan förekomma och som köpare uppmanas du att själv kontrollera samtliga uppgifter, framförallt om något är av extra stor betydelse för dig som köpare.
I Östra Lund finns ett av stadens finaste villaområden med stora tomter och trädgårdar men också en helt ny spännande stadsdel med lantlig känsla som växer så det knakar. Här bor man lugnt med bekvämt cykelavstånd till utbudet i centrum.
Södra Råbylund är en helt ny stadsdel som är under stark utveckling med nyproducerade radhus, bostadsrätter, förskolor, skolor, handel, service och en stor idrottshall. Området är fridfullt och naturskönt med fina promenad- och joggingstråk, grönområden, utegym och lekplatser. Ytterligare ett trevligt inslag är Råbysjön som har en kajkant och planteringar mot ett av bostadsområdena. Många, i synnerhet barnfamiljer, lockas till området på grund av det lugna läget nära stans centrum. Det tar bara 10–15 minuter att nå stadens innersta centrum och Lund C med cykel eller buss.
I området Linero finns det ett boende för alla. I dagligt tal brukar man dela upp området i två delar; övre och nedre Linero. Övre Linero är i huvudsak ett villaområde med stora villor. Nedre Linero består till största delen av bostadsrätter och hyresrätter. Det är den här blandningen av boendeformer som ger människor ifrån alla yrkeskategorier en möjlighet att bo i området. I Linero finns ett litet centrum där de flesta affärer samt kyrkan finns. Här finns också ett fint bibliotek där man anordnar en mängd aktiviteter.
Från området Östra Torn och Mårtens fälad tar du dig med cykel in till Lunds centrum på cirka tio minuter. På Mårtens Fälad finns stora tomter och trädgårdar. I huvudsak består den av tvåvåningsvillor byggda på 1960-talet. Det är ett attraktivt bostadsområde som räknas till Lunds mest populära. På Östra Torn ligger bostadsområden med studentikostklingande namn som Spexaren och Djingis Khan, samt Brunnshög. För barnfamiljer är området perfekt, med bland annat tre olika skolor.
Strax intill ligger Vipeholm. Det är namnet på både ett bostadsområde och en park. I Vipeholm kan du hitta ett lugnt och trivsamt boende i natursköna miljöer. Det finns utmärkta promenad – och cykelvägar så du tar dig snabbt och enkelt till centrum. Här finns också en utmärkt förskola med tre olika avdelningar och fina uteplatser för barnen att leka och utvecklas på. Förskolan har ett projekt som man kallar ”Gröna skolgårdar”. Tanken var att skapa en inspirerande utomhusmiljö för barnen, som ska utmana och locka till lek. I området finns också Vipeholms gymnasieskola.
Vill du köpa, sälja eller värdera bostad i Linero? Kontakta Bjurfors mäklare i Lund! Passa också på att anmäla dig till vår kostnadsfria söktjänst Boagenten som hjälper dig att hitta ditt drömboende.
Kontakta mäklaren om du behöver hjälp att ta fram en boendekalkyl.
När du köper din bostad genom Bjurfors kan du ansöka om bolån till en förmånlig ränta hos vår samarbetspartner SEB.
Ansvarig mäklare