-
Köpa
Köpa -
Sälja
Sälja - Hitta bostad
- Skapa bevakning
- Hitta mäklare
Rymligt och ljust radhus med söderträdgård
Norra Fäladen, Lund
*Areauppgifter enligt taxeringsinformationen
Bokad visning.
Älskat familjehem med trädgård – tvåplansvilla med källare och stor potential.
Välkommen till ett idealiskt boende med generösa ytor, stor trädgård i söder, fint ljusinsläpp och en genomtänkt planlösning!
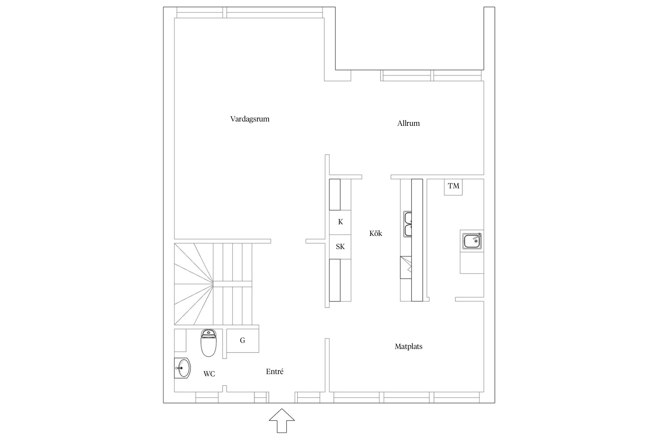
Bostaden erbjuder 125 m² boyta samt 63 m² biarea. Huset har haft samma ägare i 53 år – ett tydligt tecken på att detta är ett hem att trivas i under lång tid.
Entréplanet bjuder på ett stort vardagsrum och matrum i halvöppen, modern planlösning samt ett rymligt kök med utsikt mot framsidan och praktisk tvättstuga.
Trädgården är relativt rymlig och ligger i soligt söderläge.
På ovanvåningen finns fyra bra sovrum, varav ett med balkong i söder, samt ett stort badrum med fönster.
Det trevliga källarplanet, har rejäla förvaringsutrymmen och stor potential. Trädgården är rymlig, lummig och ligger i bästa söderläge.
Fastigheten har trygg och effektiv uppvärmning via fjärrvärme. Du blir dessutom medlem i samfällighetsföreningen, vilket sänker driftkostnaderna avsevärt. I avgiften ingår vattenförbrukning, skötsel av garagelängor, bredband & TV, samt underhåll av avloppssystem (spill- och dagvatten utanför huset) och gång- och cykelbanor.
Detta är ett hem med karaktär, själ – och enorm potential. För dig som drömmer om att skapa något eget, men samtidigt vill ha en stabil grund att utgå från, har du hittat rätt.
Besiktning och försäkring
Fastigheten är besiktigad av Anticimex i november 2025. Säljaren kommer att teckna en dolda fel-försäkring som gäller i 10 år.
Här bor du i ett lugnt och tyst område på populära Norra Fäladen – med nedförsbacke in till city och nära det expansiva området kring ESS och Ideon. Barnvänligt radhusområde med skola, förskola inom området. Lekplats finns inom synhåll från köksfönstret. Nära även till Victoriastadion, Smörlyckans IP och Delfinens simhall, samt med goda bussförbindelser till övriga Lund och vidare.
Välkommen på visning!



Stadssigillet 7
*Areauppgifter enligt taxeringsinformationen
Följande upplysningar inhämtades gällande kända fel/brister:
-Läckage har noterats vid wc-stol på Övre plan varför vattentillförseln till denna stängts av.
-På 1970-talet restes innervägg i större sovrum på Övre plan för avgränsning mellan nuvarande Sovrum sydöst/söder, även en klädkammare togs i bruk för ändamålet.
-I början på 1980-talet inreddes Gillestuga. Innervägg restes mot Förråd. Golv och yttervägg i Gillestuga kläddes med träregelverk, isolerades och försågs med nya ytskikt.
-På slutet av 1990-talet skedde ett inläckage genom fasad/fönster/ytterdörr åt norr. Detta resulterade i fuktrelaterade skador. Byte av innertak i Entréhall samt nya ytgolv i Entréhall, Kök och Toalett.
-2002 lades yttertaket om på hela huslängan förutom hus 15 och 13.
-2011 installerades ny fjärrvärmeväxlare. Denna har servats årligen genom serviceavtal hos Kraftringen.
-Ca. 2015 monterades nya fönster på större delen av huset (ej i Allrum och Sovrum sydväst samt Källarplan). Sannolikt på grund av inläckage vid fönster i Sovrum sydöst.
-2025 monterades nya fönster i Allrum på Entréplan. I samband med detta byttes vissa panelbrädor ut i anslutning till fönster.
- 2025 Fasaden tvättades
Kommunalt vatten, Kommunalt avlopp.
Trevlig trädgård i söder
Garage och bilplats ingår i samfälligheten. Utrymme för två bilar.
Tomtindelning (1969-05-28) Stadsplan (1966-07-20)
Gemensamhetsanläggning: Lund stadsvapnet ga:1 ändamål: Vägar, Vattenförsörjning, Avloppsanläggning, Radio- TV och/eller tele, Elledning och/eller belysning, Värmeanläggning, Grönområden, Garage och/eller parkering
Last: Avtalsservitut Förbud värmecentral mm, 12-IM3-67/3484.1
Förmån: Officialservitut Väg, 1281K-12407:C1867.1
Fiber
Avtalsservitut Förbud värmecentral mm
Hemsida :
Stadsvapnet.se för mer info om samfälligheten och vad som ingår.
Varje fastighet är en friköpt enhet. Samtliga fastigheter är automatiskt medlemmar i samfällighetsföreningen. Denna äger och förvaltar bl a följande:
Vattenförbrukning
Lekplatserna inom området.
Garagelängorna och parkeringsplatserna mot Gästgivarevägen.
Avloppssystem för spill- och dagvatten (ej inom respektive fastighet).
Grönytor vid lekplatser, bakom garagelängor och på dessas kortsidor samt häck- och trädplantering mot Gästgivarevägen.
Asfalterade gång- och cykelvägar inom området.
Det finns 3 st pantbrev uttagna om sammanlagt 110 700 kr
I Norra Lund är närheten till naturen i kombination med spännande arkitektur högst bidragande till områdets popularitet. Här finner du varierande bebyggelse där alla hus har sin egen identitet.
I Norra Lund är närheten till naturen i kombination med spännande arkitektur högst bidragande till områdets popularitet.
I stadsdelen Norra Fäladen i Lund ligger bostadsområdet Annehem, ett av stadens nyare områden som växer snabbt. Det är ett renodlat villaområde där den äldre delen mestadels består av trähusbebyggelse, vilket är ganska unikt för Lund. Området, som tidigare främst var för arbetarebostäder, har på senare tid blivit väldigt populärt bland akademiker. I Annehem har du alltid nära till naturen och till rekreationsområdet Sankt Hans backar.
I trakten ligger även Kungsmarken, det enda sammanhängande området i södra Sverige där markanvändningen varit oförändrad under tusentals år. Här finns ett naturreservat med minnen från forna tiders jordbruk. Till största delen består det av en golfbana kombinerat med övrig öppen mark, utom den norra delen som täcks av lövskog. Här har man hittat lämningar från tidig järnålder och här finns också flera olika fågelarter och växter som lever i symbios på slätten.
Norra Fäladen, strax norr om trafikleden Norra ringen, byggdes till stor del i slutet av 1960-talet. Här bor en stor andel av studenterna vid Lunds universitet i bostadsområdena Delphi, Kämnärsrätten och Klosterängen. Det är i den västra delen av området man finner Sankt Hans backar. Högstadieskolan Fäladsgården har genom sin arkitektur och sina verksamheter gjort området till något unikt. I mitten av området ligger Fäladstorget med bland annat matbutiker och Sankt Hans kyrka.
Det färgstarka området fredslyckan är även det ett mycket populärt område. Här bor du nära såväl vacker natur och grönska som stadsliv och all vardagsservice du kan behöva. Hela området byggdes utifrån tankar på såväl variation som helhet, vilket du kan se på områdets unika karaktär och tidlösa arkitektur.
Vill du köpa, sälja eller värdera bostad på Norra Fäladen? Kontakta Bjurfors mäklare i Lund! Passa också på att anmäla dig till vår kostnadsfria söktjänst Boagenten som hjälper dig att hitta ditt drömboende.
Kontakta mäklaren om du behöver hjälp att ta fram en boendekalkyl.
När du köper din bostad genom Bjurfors kan du ansöka om bolån till en förmånlig ränta hos våra banksamarbetspartners Söderberg & Partners och SEB.
Bokad visning.