-
Köpa
Köpa -
Sälja
Sälja - Hitta bostad
- Skapa bevakning
- Hitta mäklare
Ljus 2:a med otrolig potential på omtyckta Östra Torn!
Östra Torn, Lund
*I avgiften ingår värme, vatten. Obligatoriskt tillägg för kabel-tv om 30 kr/mån och bredband om 97 kr/mån tillkommer.
Välkommen! Anmälan krävs.
Ljus och rymlig tvårummare med generös balkong, totalrenoverat badrum och fantastisk potential på attraktiva Östra Torn
Välkommen till Musikantvägen 4C och en perfekt chans att skapa ditt drömboende!
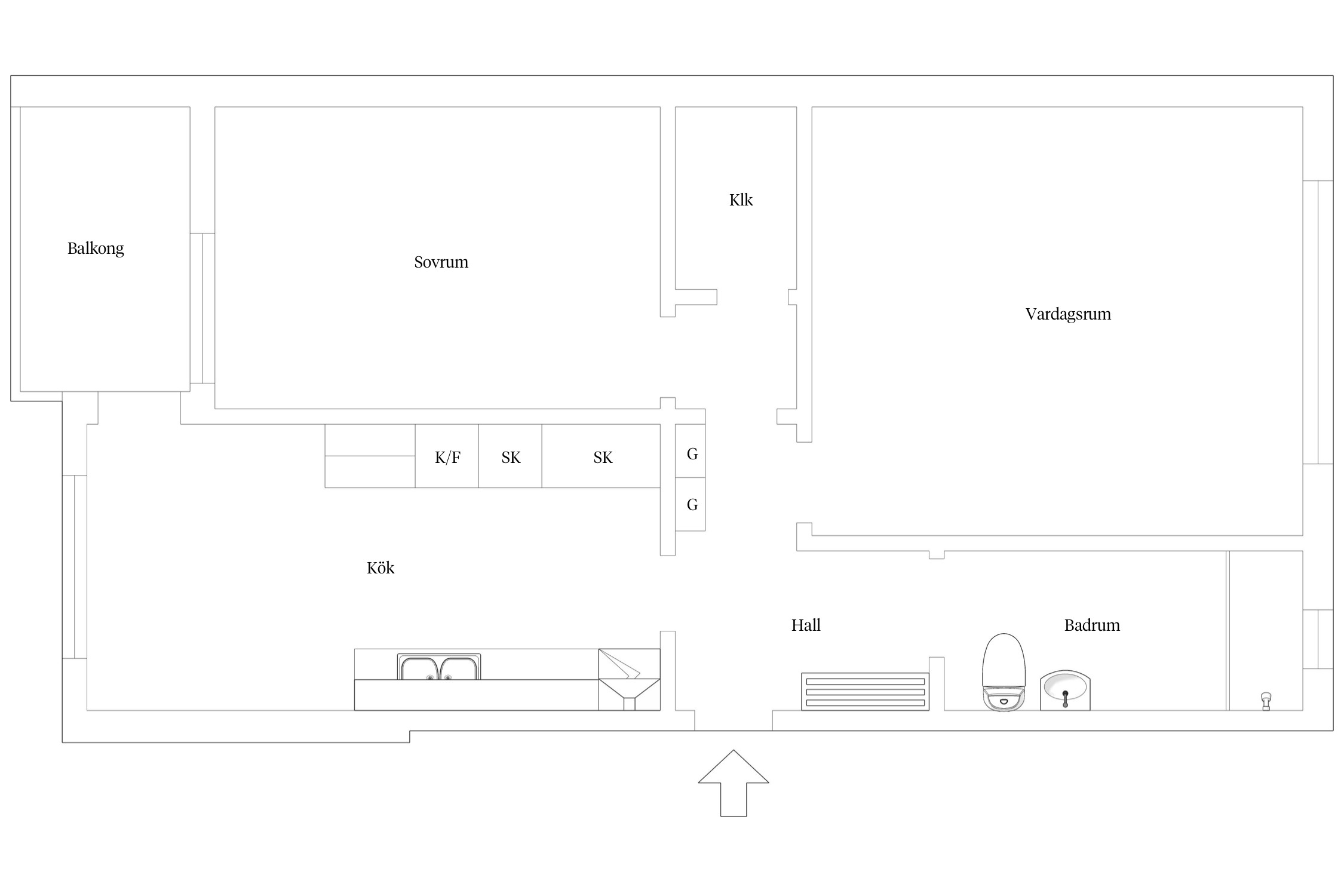
Här erbjuds en rymlig och genomgående 2 tvårummare om hela 65 kvm, belägen på andra våningen i omtyckta och lugna Östra Torn. Lägenheten har ett härligt ljusflöde från två väderstreck och stora ytor som ger en luftig och trivsam känsla redan vid första steget in.
Den generösa balkongen i söderläge blir snabbt en favoritplats och här kan du njuta av soliga dagar och den trevliga utsikten över det gröna och harmoniska området.
Bostaden har ett tydligt renoveringsbehov, vilket gör den till ett utmärkt val för dig som vill sätta din egen prägel och skapa ett hem efter dina egna önskemål och stil. Samtidigt finns några stora plus redan på plats med ett rymligt badrum som totalrenoverades 2024 och erbjuder modern komfort med hög standard.
Förvaring är någonting som verkligen utmärker denna lägenhet. Här finns en stor och praktisk klädkammare i bostaden samt ett tillhörande förråd som ligger bekvämt precis intill lägenheten.
Östra Torn är ett av Lunds mest omtyckta och trygga bostadsområden, uppskattat för sin lugna atmosfär och närhet till både natur och stadsliv. Här bor du med cykelavstånd till centrum, universitetet och de stora arbetsplatserna i norra Lund, samtidigt som du har nära till fina grönområden, motionsslingor och lekplatser. I området finns även goda kommunikationer, mataffärer, skolor och förskolor, vilket gör det lika attraktivt för studenter som för barnfamiljer och pendlande yrkesverksamma. Östra Torn erbjuder helt enkelt det bästa av två världar med en rofylld boendemiljö med all vardagsservice inom räckhåll.
Varmt välkommen på visning!
Hall
Ta trappan upp till andra våningen och kliv in i det funktionella och välkomnande hallen. Direkt till höger finns en hatthylla.
Badrum
Badrummet nås direkt till höger i entrén och är totalrenoverat sedan år 2024, i samband med stambytet. Badrummet är rymligt och fräscht med helkaklade väggar i vit färg och klinker i grå färg. Badrummet innehåller toalett, handfat och ovanhängande badrumsskåp och stor dusch med duschväggar i glas. Här finns även möjlighet till att sätta in tvättmaskin om så önskas. Badrummet erbjuder även gott om dagsljus med ett fönsterparti.
Vardagsrum
Vardagsrummet är generöst och lättmöblerat med stora fönsterpartier som har utsikt över det trevliga området och föreningens grönskande innergård. Vardagsrummet har ett trevligt parkettgolv och väggarna är tapetserade. Rummet har otrolig potential och rymmer både soffgrupp, TV-möblemang och matplats om så önskas.
Sovrum
Sovrummet är rymligt och ljust med fönster i söderläge. Rummet rymmer en dubbelsäng och garderob. I direkt närhet till sovrummet nås även den rymliga klädkammaren.
Kök
Köket som har stommar i original erbjuder otroligt potential med bra utrymme för ett generöst kök och matplats. Köket innehåller spis, ugn, kyl/frys, dubbel diskho och gott om förvaring. Via köket nås även den rymliga balkongen i söderläge, perfekt som en förlängning av matplatsen på sommaren.



I avgiften ingår värme, vatten. Obligatoriskt tillägg för kabel-tv om 30 kr/mån och bredband om 97 kr/mån tillkommer.
Till lägenheten hör ett förråd som är beläget på samma våningsplan som lägenheten.
Den rymliga balkongen är belägen i soligt söderläge.
Bostadsrättens indirekta nettoskuldsättning baseras på föreningens skulder/lån minus föreningens räntebärande tillgångar och likvida medel. Beräkningen är gjord och baseras enbart på den senaste tillgängliga årsredovisningen. För mer information kontakta ansvarig fastighetsmäklare.
*Betalas av säljare
Brf Östra Torn bildades 1969/70 och består av 252 lägenheter med adresserna Klarinettgränden 1-11 och Musikantvägen 2-28.
Ekonomiska förvaltningen sköts av HSB.
Föreningen har beslutat att höja avgiften med 3,5% från 2026-01-01 (kontrollerat 2025-11-24).
Föreningen har tecknat ett kollektiv tillägg till bostadsrättsförsäkring hos Länsförsäkringar. Obs! Detta är ingen hemförsäkring utan ett bostadsrättstillägg som man normalt brukar ha som extra försäkring på sin ordinarie hemförsäkring när man bor i bostadsrätt.
Planerade/pågående renoveringar:
Pågående:
- Arbetet på taket är klart men administrationsarbete återstår. Det fanns ett par läckage relaterade till det och dessa ärenden jobbas det på.
- Panelmålning av balkong och entré. Arbetet pausas under vintern. Husen på Klarinettgränden är klara. Arbetet med etapp två på Musikantvägen börjar
till våren när vädret tillåter.
Planerat:
- Lekplatsbesiktning gjordes i augusti, och det finns 2 A fel som kommer åtgärdas.
Utförda renoveringar:
2009 – Renovering av balkonger: fasad, nya fönster & balkongdörrar
2012 – Omläggning av tak, byte av ventilationsfläktar
2014 – Ommålning av trapphus
2014 – Byte och målning av fasadpanel
2015 – Renovering och byte av lekredskap
2015 – Byte av tak på garage
2016 – Ombyggnad av tak på förråden vid fotbollsplanen
2018 – Åtgärdat brister angående trycksatta rör i kök
2019 – Utbyte v LED-belysning i stolparmaturer, i entréer och trapphus
2019 – Byte av slagportar i förråden vid fotbollsplanen
2019 – Byte av sand i sandlådorna
2020- Renovering av dörrar/portar i förråden vid fotbollsplanen. Byte av armaturer på stolpbelysning utomhus samt belysning i trapphus och vid entréer
2021- Byte av termostatventiler/radiatorventilbyte i lägenheterna
2022-2023 Digital lösning för dörrlås i portuppgångar
2023: PCB sanering vid entréerna.
2024: Stambyte samt renoverat samtliga badrum i föreningen
2025: Reliningsarbete på taket
Gratis parkering på markerade p-platser.
I föreningen finns dessutom 131 st garageplatser samt 5 st MC-garage som kan hyras i mån av plats. Hyran är f.n. 400: -/ mån för garage och 170 :-/ mån för MC-garage. Vid intresse kontaktar man föreningens förvaltare på HSB.
Kabel-Tv via Tele2. och Bredband via Ownit, hastighet -1 Gbit/s. Tillkommer som ett obligatoriskt tillägg på avgiften.
Gemensamma gräsmattor, lekplatser och uteplatser mellan byggnaderna.
Föreningen har 70 odlingslotter som medlemmar får nyttja gratis, intresseanmälan görs till föreningens förvaltare. Det finns även en tennisbana och fotbollsplan.
Bastu, förråd, övernattningslägenhet, fixarverkstad, snickarverkstad, barnvagnsrum, cykelförråd och tvättstuga med torkskåp och torktumlare.
Barnvagnsförråd finns i nästan samtliga trapphus, dörren bredvid postfacken.
I första hand är förråden avsedda för barnvagnar, men det går även att förvara gårdens gemensamma saker samt trädgårdsredskap där.
Gemensamt cykelförråd finns i det södra vita förrådet vid fotbollsplan. Dörren finns på kortändan mot väster.
Informationen är hämtad från årsredovisningen, stadgar och kontakt med föreningen. Avvikelser kan förekomma och som köpare uppmanas du själv att ta kontakt med föreningen, framförallt om något är av extra stor betydelse för dig som köpare.
Besök gärna föreningens hemsida: http://www.otorn.org/
Säljaren upplyser om att flera av spisplattorna på spisen ej fungerar.
I Östra Lund finns ett av stadens finaste villaområden med stora tomter och trädgårdar men också en helt ny spännande stadsdel med lantlig känsla som växer så det knakar. Här bor man lugnt med bekvämt cykelavstånd till utbudet i centrum.
Södra Råbylund är en helt ny stadsdel som är under stark utveckling med nyproducerade radhus, bostadsrätter, förskolor, skolor, handel, service och en stor idrottshall. Området är fridfullt och naturskönt med fina promenad- och joggingstråk, grönområden, utegym och lekplatser. Ytterligare ett trevligt inslag är Råbysjön som har en kajkant och planteringar mot ett av bostadsområdena. Många, i synnerhet barnfamiljer, lockas till området på grund av det lugna läget nära stans centrum. Det tar bara 10–15 minuter att nå stadens innersta centrum och Lund C med cykel eller buss.
I området Linero finns det ett boende för alla. I dagligt tal brukar man dela upp området i två delar; övre och nedre Linero. Övre Linero är i huvudsak ett villaområde med stora villor. Nedre Linero består till största delen av bostadsrätter och hyresrätter. Det är den här blandningen av boendeformer som ger människor ifrån alla yrkeskategorier en möjlighet att bo i området. I Linero finns ett litet centrum där de flesta affärer samt kyrkan finns. Här finns också ett fint bibliotek där man anordnar en mängd aktiviteter.
Från området Östra Torn och Mårtens fälad tar du dig med cykel in till Lunds centrum på cirka tio minuter. På Mårtens Fälad finns stora tomter och trädgårdar. I huvudsak består den av tvåvåningsvillor byggda på 1960-talet. Det är ett attraktivt bostadsområde som räknas till Lunds mest populära. På Östra Torn ligger bostadsområden med studentikostklingande namn som Spexaren och Djingis Khan, samt Brunnshög. För barnfamiljer är området perfekt, med bland annat tre olika skolor.
Strax intill ligger Vipeholm. Det är namnet på både ett bostadsområde och en park. I Vipeholm kan du hitta ett lugnt och trivsamt boende i natursköna miljöer. Det finns utmärkta promenad – och cykelvägar så du tar dig snabbt och enkelt till centrum. Här finns också en utmärkt förskola med tre olika avdelningar och fina uteplatser för barnen att leka och utvecklas på. Förskolan har ett projekt som man kallar ”Gröna skolgårdar”. Tanken var att skapa en inspirerande utomhusmiljö för barnen, som ska utmana och locka till lek. I området finns också Vipeholms gymnasieskola.
Vill du köpa, sälja eller värdera bostad i Östra Torn? Kontakta Bjurfors mäklare i Lund! Passa också på att anmäla dig till vår kostnadsfria söktjänst Boagenten som hjälper dig att hitta ditt drömboende.
Kontakta mäklaren om du behöver hjälp att ta fram en boendekalkyl.
När du köper din bostad genom Bjurfors kan du ansöka om bolån till en förmånlig ränta hos vår samarbetspartner SEB.
Välkommen! Anmälan krävs.
Ansvarig mäklare