-
Köpa
Köpa -
Sälja
Sälja - Hitta bostad
- Skapa bevakning
- Hitta mäklare
Bunkeflostrand, Malmö
*Areauppgifter enligt taxeringsinformationen
Bokad visning.
Bokad visning.
Vi har nöjet att presentera en verkligt rymlig familjevilla med sex sovrum, braskamin och låga driftskostnader i populära Bunkeflostrand
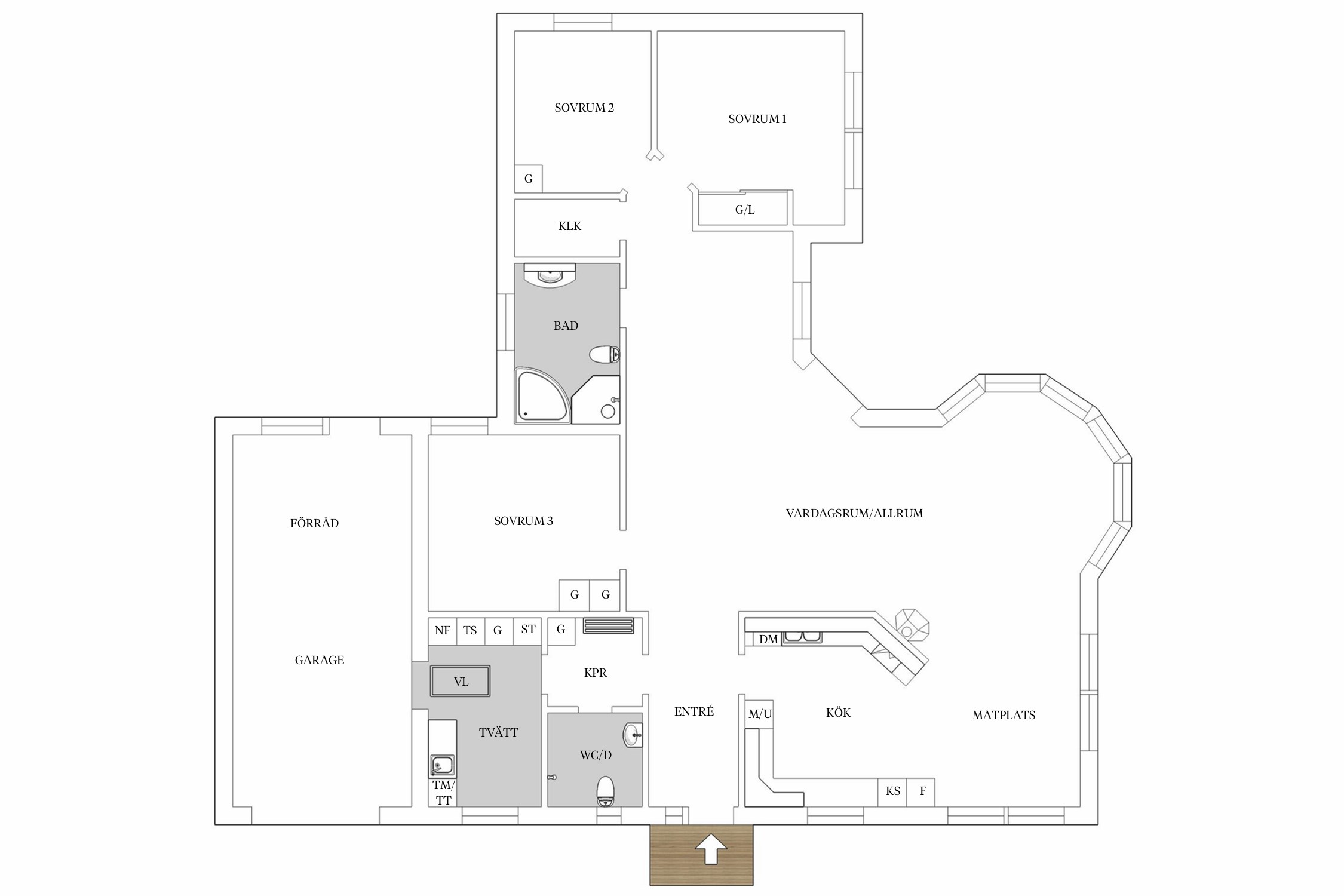
Välkommen till denna generösa och välplanerade villa i 1,5 plan om hela 289 kvm, perfekt för den stora familjen eller för dig som vill ha gott om plats för både vardag och fest. Här erbjuds totalt 8 rum, varav hela 6 sovrum, stora sociala ytor på båda planen och en genomgående trivsam atmosfär.
Redan på entréplanet möts du av öppna, inbjudande sällskapsytor där den värmande braskaminen blir en naturlig samlingspunkt under årets kallare månader. Det ljusa köket från Marbodal bjuder på gott om arbetsytor och förvaring – en dröm för hemmakocken och perfekt för middagar med familj och vänner. Från entreplanet når du även det härliga uterummet som förlänger utesäsongen och suddar ut gränsen mellan inne och ute.
Villan erbjuder tre helkaklade badrum, vilket skapar en bekväm vardag även för den större familjen. På båda planen finns rymliga och flexibla sällskapsytor som enkelt kan anpassas efter behov – lekrum, allrum, kontor eller tv-hörna.
Den lättskötta tomten ramas in av flera uteplatser i olika väderstreck, vilket gör att du kan njuta av solen från morgon till kväll. Här finns gott om plats för både avkoppling och lek. Garage med plats för en bil samt uppfart ger smidig parkering.
Huset är byggt 2005 och tillbyggt 2012, vilket ger moderna ytor med genomtänkt planlösning. En nyare luft/vattenvärmepump bidrar till låga driftskostnaderoch ett energieffektivt boende.
Allt detta är beläget på en lugn och barnvänlig villagata med närhet till skola, förskola, idrottsanläggningar och goda kommunikationer – ett tryggt och bekvämt område för hela familjen.
Hall
Hall med klinkergolv, spotts i taket, övergång till ekparkett.
Inre hall
Inre hall med skjutdörrsgarderob med speglar, ekparkettgolv, spotts i taket
Badrum/Dusch 1
Badrum med duschplats, klinkergolv och kaklade väggar, tvättställ med kommod
Tvättstuga
Tvättstuga med utgång till garage, garderobsinredning, torkskåp, tvättmaskin och torktumlare. Bänk- och väggskåp.
Kök
Kök med inredning i vitt från Marbodal, renoverat 2018, laminatbänkskiva, kyl, frys, diskmaskin, häll, spisfläkt, microugn och ugn. Kakel ovan diskbänk.
Vardagsrum
Vardagsrum i vinkel, braskamin från Contura (2020), ekparkettgolv, spotlights i tak, utgång till uterum i söder. Ektrapp till ovanvåning.
Uterum
Uterum med klinkergolv och skjutpartier mot trädgård.
Sovrum 1
Sovrum med parkettgolv, spegelskjutdörrar
Badrum 2
Badrum med dusch, hörnbadkar (bubbelfunktion ur funktion), duschplats, spotts i taket, tvättställ med kommod. WC-stol.
Klädkammare
Klädkammare med parkettgolv.
Sovrum 2
Sovrum med ekparkettgolv
Sovrum 3
Sovrum med ekparkettgolv, skjutdörrsgarderob och spotts i tak.
Ovanvåning
Allrum
Allrum med ekparkettgolv
Badrum 3
Badrum med badkar, duschplats, tvättställ med kommod, vägghängd wc-stol, handdukstork
Sovrum 4
Sovrum med ekparkettgolv
Klädkammare
Klädkammare med ekparkettgolv
Sovrum 5
Sovrum med ekparkettgolv
Sovrum 6
Sovrum med ekparkettgolv



Ryssjan 4
*Areauppgifter enligt taxeringsinformationen
*Påbyggt med ovanvåning 2012
2012
Påbyggnad ovanvåning
2020
Ny modern braskamin + skorsten
Ommålat invändigt och tapetsering,
Fönster vid kök utbytta och nya golv till tak fönster samt fönster dörr
2021
Uteplats framsida med trädäck, plank inramning m.m.
Nytt förrådsskjul baksida
Nytt trädäck och pergola samt plank framsida
2022
Ny luft/vattenvärmepump Nibe
Tvättmaskin byte
2023
Nytt staket framsida och viss plattläggning.
Spolning av avloppsledningar
Ventilations rengöring
2025
Garantireparation värmepump utedel
Träddäck omlagt baksida
Nya låshus till ytterdörr, altandörr och dörr till garage
Trädgårdsskjul 2021
Stort trädäck i söder
Kommunalt vatten, Kommunalt avlopp.
Insynskyddad trädgårdstomt
Garage med plats för 1 bil, garageuppfart med plats för två bilar
Detaljplan (2004-06-17) Fornlämning (1 st)
Fastigheten är ansluten till fibernät
Fastigheten är ansluten till fibernät OwnIT
Driftkostnader och elförbrukning är inhämtade från säljaren och bör endast ses som en uppskattning. Kostnaden kan variera och baseras på förbrukning och avtal.
Bunkeflostrand är ett mycket omtyckt och familjevänligt område i södra Malmö, känt för sin småskaliga bebyggelse, närheten till havet och det aktiva föreningslivet. Här bor du med cykelavstånd till strand, rekreationsområden och vackra promenadstråk, samtidigt som du har smidig pendling till Malmö centrum, Hyllie och Köpenhamn via både bil och kollektivtrafik. Området erbjuder flera skolor, förskolor och idrottsanläggningar, vilket gör Bunkeflostrand till ett perfekt val för barnfamiljen som söker ett lugnt, tryggt och naturnära boende utan att ge avkall på stadens bekvämligheter.
Det finns 4 st pantbrev uttagna om sammanlagt 5 200 000 kr
I Bunkeflo bor du på lugnt läge nära den vackra Öresundskusten. Ursprungligen var detta en plats för kalkbrytning och cementtillverkning i kalkbrotten, som numera är vattenfyllda. Numera är Bunkeflo känt för sin fina natur.
Bunkeflostrand som ligger söder om Öresundsbron, ingår i stadsdelen Limhamn. En del av Bunkeflostrand består av villor och flerbostadshus medan en annan del fortfarande huvudsakligen är landsbygd som så smått bebyggs. Ängslätt centrum ligger mitt i samhället. Här bor du nära havet med bra kommunikationer till Malmö och Köpenhamn. Området Annestad ligger nära broförbindelsen och den framväxande stadsdelen Hyllie.
Klagshamn är ett delområde i stadsdelen Limhamn. Området består av ett tidigt industrisamhälle som även omfattar landsbygd samt kustområden kända för sin rika fauna och sitt fågelliv. Tidiga planer på bostadsbebyggelse stoppades just med hänsyn till det unika växtlivet. Grunden för samhället i Klagshamn var kalkbrytning och cementtillverkning. Nu när denna tillverkning är nedlagd har man byggt fina hus längs kanten till det vattenfyllda kalkbrottet. Vingården i Klagshamn planterade sina första vinrankor 2001 och den första skörden togs 2003. Resultatet blev det vita vinet Silex som nu finns på Systembolaget. Silex är det latinska namnet för flinta, en bergart som det finns gott om i vingårdens jordmån.
Vintrie är ett annat litet område nära Bunkeflo norr om yttre ringvägen mellan Trelleborgsvägen och Lorensborgsgatan. Det finns bra kommunikationer tack vare den närliggande stationen i angränsande stadsdelen Hyllievång. Med hjälp av citytunneln kan du till exempel ta dig direkt in till Köpenhamn helt utan tågbyten.
Tygelsjö ligger en liten bit in från kusten strax väster om E6. Tygelsjö by härstammar från medeltiden och redan i slutet av 1800-talet byggdes en station vid järnvägen mellan Trelleborg och Malmö. Här ligger det nyare bostadsområdet Sjötorps ängar, som består av flera småhus.
Västra Klagstorp är en liten tätort med medeltida anor och lantlig atmosfär som ligger strax norr om Tygelsjö. Västra Klagstorps kyrka byggdes i slutet av 1800-talet.
Vill du köpa, sälja eller värdera bostad i Bunkeflostrand? Kontakta våra Bjurfors mäklare i Malmö! Passa också på att anmäla dig till vår kostnadsfria söktjänst Boagenten som hjälper dig att hitta ditt drömboende.
Kontakta mäklaren om du behöver hjälp att ta fram en boendekalkyl.
När du köper din bostad genom Bjurfors kan du ansöka om bolån till en förmånlig ränta hos vår samarbetspartner SEB.
Bokad visning.
Bokad visning.