-
Köpa
Köpa -
Sälja
Sälja - Hitta bostad
- Skapa bevakning
- Hitta mäklare
Citytvåa med låg avgift!
Drottningtorget, Malmö
*Enligt lägenhetförteckningen.
På Förhand ligger bostäder som av olika anledningar inte är ute till försäljning just nu men som kan komma att säljas om förutsättningarna är rätt.
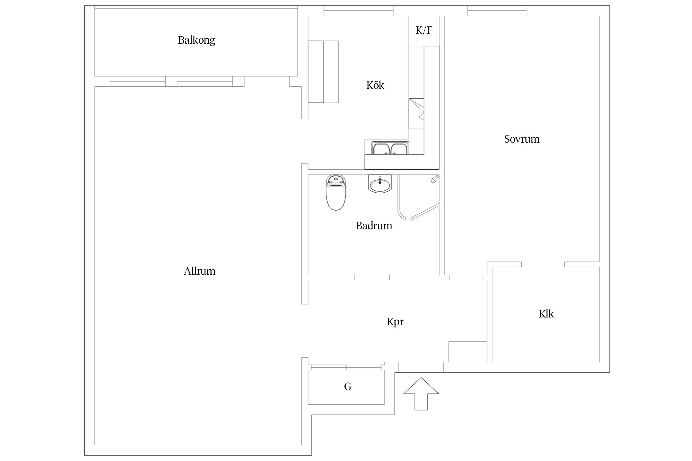
Välkommen till denna charmiga och välplanerade tvårummare med ett attraktivt läge på Stora Trädgårdsgatan 3D – precis intill Drottningtorget i hjärtat av Malmö!
Här möts du av ett stilrent och inbjudande hem med en genomtänkt planlösning och ett härligt ljusinsläpp. Bostaden kombinerar moderna inslag med bevarade detaljer som skapar både karaktär och en varm, hemtrevlig atmosfär.
Det generösa vardagsrummet erbjuder gott om utrymme för såväl avkoppling som sociala sammanhang, med plats för både soffgrupp och matbord. Köket är smakfullt och funktionellt utformat med bra arbetsytor och förvaring – perfekt för både vardagens måltider och trevliga middagar med vänner.
Sovrummet är rofyllt beläget och rymmer enkelt en dubbelsäng samt förvaringsmöbler och en walk in closet i anlutning. Här vaknar du upp i en lugn oas, mitt i stadens puls. Badrummet är fräscht och praktiskt planerat.
Läget är svårslaget med stadens rika utbud av restauranger, caféer och shopping precis utanför dörren. Kommunikationerna är utmärkta med kort gångavstånd till Malmö Centralstation, vilket gör pendlingen enkel och smidig. Dessutom har du vackra grönområden och promenadstråk längs kanalerna inom bekvämt räckhåll.
Detta är det perfekta boendet för dig som vill kombinera ett centralt läge med hög trivsel och närhet till allt Malmö har att erbjuda.
Välkommen att kontakta ansvarig mäklare vid intresse!



*Hiss från markplan
**Enligt lägenhetförteckningen.
Bostadsrättens indirekta nettoskuldsättning baseras på föreningens skulder/lån minus föreningens räntebärande tillgångar och likvida medel. Beräkningen är gjord och baseras enbart på den senaste tillgängliga årsredovisningen. För mer information kontakta ansvarig fastighetsmäklare.
*Betalas av köpare
Brf Solstrålen är en äkta förening som bildades 2007. Föreningen består av 175 lägenheter (varav 11 hyreslägenheter, kontrollerat 2025-11-24), 4 bostadsrättslokaler och 3 hyreslokaler. Föreningens adresser är Stora Trädgårdsgatan 3, Grönegatan 11 och Norregatan 4-10.
Föreningen utför tillsyn i samband med överlåtelse. Endast köparen behöver närvara.
Bredablick handhar föreningens ekonomiska förvaltning.
Månadsavgifterna höjdes med 1,5% fr o m 2025-01-01.
Månadsavgifterna höjdes med 1% fr o m 2026-01-01.
Föreningen har 11 hyreslägenheter kvar vilket kan betraktas som ett dolt kapital.
När dessa säljs kommer föreningen få in extra kapital.
Gemensamt avtal:
Föreningen tillämpar individuell mätning av el och varmvatten. Debitering sker kvartalsvis med några månaders eftersläpning. Vid överlåtelse regleras denna kostnad separat mellan parterna.
I dagsläget är det 9 bostadsrätter som inte har någon mätare för varmvatten. Det beror på att mätarna varit för stora att placera in i skåpet. Individuell förbrukning och debitering tillämpas inte för dessa lägenheter.
Fastigheten är fullvärdesförsäkrad hos IF.
I försäkringen ingår kollektivt bostadsrättstillägg för medlemmarna samt ansvarsförsäkring för styrelsen.
2002 Totalrenoverades samtliga hissar.
2008 Renoverades tvättstugorna och takpapp byttes.
2009 Byttes alla fönster samt balkongdörrar.
2013 Totalrenoverades innergården med nya stensättningar, planteringar, två grillplatser, sittplatser samt fast pingisbord. I samband med detta iordningställdes även 10 stycken miljörum.
2014 Relining avloppsstammar samt dagvattenledningar. Postboxar installerades i samtliga entréer. Trapphusen målades om.
2015 Tidigare lokal byggdes om till 7 st nya lägenheter med inflyttning mars/april 2016. Samtliga fasader tvättades. Målningsarbeten mot gårdssidans bröstningspanel samt balkongräcken. Man har även vårstädat gården samt tvättat rent mossa från plattbeläggning.
2017 Bytt ut alla tvättmaskiner i tvättstugorna.
2018 Tidigare lokal byggs om till nya 2 lägenheter. Nya värmeväxlare och ventiler i pannrummet. Byttes tappvattenstammarna (renoveringen utfördes av Skåneinstallatören). Befintliga kök och badrum bibehölls.
2019 Installerades elmätare för individuell mätning av el samt vattenmätare för individuell mätning av varmvattenförbrukning.
2020 Solceller på taket. Porttelefonsytem installerat
2021 Målning av källarkorridorerna. Laddboxar uppsatta i garaget, åtta platser har blivit elplatser. Investerat i ett nytt styrsystem som reglerar värme, varmvatten och mera.
2022 Nya termostater
2024 Byte till LED-belysning i garaget.
I dagsläget finns det inte några större renoveringar/underhåll för 2026 (kontroll 2025-11-24).
Föreningen tillhandahåller 124 garageplaster varav 14 är utrustade med laddboxar.
Garageplats kan hyras för 800 kr/mån och garageplats med laddplats kan hyras för 1 000 kr/mån + förbrukning. I garaget finns även MC-plats som kan hyras för 450 kr/mån. Endast en plats kan hyras till detta pris, önskas fler platser får man betala samma som en extern hyresgäst.
Externa hyresgäster kan hyra garageplats för 1 100 kr/mån + moms och garageplats med laddplats för 1 300 kr/mån + förbrukning och moms. 62 st i kö för garageplats (kontrollerat 2026-02-17).
För att ställa sig i kö mailar man till föreningen på: info@brfsolstralen.se
Medlemmar som hyr bilplats får även parkera sin lådcykel i garaget utan extra kostnad. Medlemmar som inte hyr bilplats betalar 450 kr/mån för parkering av lådcykel. Externa hyresgäster som hyr bilplats och även vill parkera lådcyckel i garaget betalar 450 kr/mån för detta.
I dagsläget finns det inga lediga platser för bil, MC eller lådcykel. Det står ca 60 personer i kö och externa hyresgäster sägs inte upp till förmån av medlemmarna (kontroll 2025-01-21).
I övrigt råder kommunal boendeparkering på vissa av områdets gator. För mer information om detta besök: https://malmo.se/boendeparkering
Kabel-TV levereras av Tele2. Grundutbudet ingår i månadsavgiften.
Bredband (FiberLan) levereras av Ownit. Hastighet: 500/1000 Mbit/s. Är obligatoriskt och kan ej sägas upp.
Föreningen erbjuder en stor, parkliknande innergård. På gården finns möblemang, grillmöjligheter och lekplats. Limhamns Allservice har hand om trädgårdsskötseln.
I föreningen finns det totalt fyra tvättstugor. Vardera tvättstuga är utrustad med två tvättmaskiner, en torktumlare och ett torkskåp.
I varje trappuppgång finns ett cykelrum i markplan. Undantaget trappuppgången på Stora Trädgårdsgatan 3A där cykelförrådet finns i källaren.
Bostädernas förråd är belägna i källaren.
Ovanstående information är inhämtad från årsredovisning samt styrelsemedlem. Slutlig köpare uppmanas att bekräfta ovanstående uppgifter med föreningen. För vidare information om ovan kontakta styrelsen eller besök föreningens hemsida: www.brfsolstralen.se.
I Malmö City går livet i takt med storstadens puls med allt man kan önska vad gäller shopping, service, skolor, nöjen, kaféer och restauranger. Samtidigt utmärker sig områden som alla har en egen speciell karaktär vad gäller boende, livsstil och tillgång till de oaser som kan vara lövgröna eller havsblå. Hela Öresundsregionen och särskilt Malmö är attraktivt som bostadsort, populariteten fortsätter att stiga och det är särskilt de centrala delarna som lockar mest.
Det finns över fem kilometer kanaler i centrala Malmö idag och utmed dessa uppskattade vattenvägar finns vägar, parker, kontor och bostadshus. Malmö fick sitt stadsbrev år 1275 och redan då hade bebyggelsen växt utmed vattnet i flera århundraden. Drottningtorget, som uppfördes på 1800-talet, ligger vid det som var dåtidens shoppingområde, ”torggatan” Adelgatan. Nu för tiden hålls här den populära Bondens Marknad där närproducerade varor lyfts fram. Vid torget finns en boulebar samt en populär glassbutik där alla varianter av glass och sorbet tillverkas för hand. Längre österut fanns Slussen och där ligger nu flerfamiljshus uppförda från början av 1900-talet och framåt.
Gamla staden är det område som klarade sig bäst under rivningsboomen på 1970-talet och idag finns det många charmiga flerfamiljshus av äldre sort vid gatorna runt Stortorget och Lilla Torg likväl som nyskapande restauranger som gör avtryck på den gastronomiska kartan. Runt Lilla Torg ligger också flera designbutiker och nöjeslivet är intensivt på sommarhalvåret då uteserveringarna ramar in ytan av kullersten.
Till det gamla Malmö hör också naturligtvis slottet Malmöhus. Det byggdes på 1500-talet och inramas av kanaler och växtlighet. Malmö är känt som ”parkernas stad” och de gröna oaserna med lekparker och kaféer finns i nästan alla områden. Malmöhus ligger i Slottsparken men det finns totalt 15 större parker i staden.
När man bor i Malmö City ligger det mesta bara en promenad eller cykeltur bort. I kvarteren i områden som Lugnet och vid Kapellplan finns flera köpgator och gallerior, t ex Hansacompagniet, Caroli City och Triangeln. I området Rådmansvången, där bostäder blandas med butiker och kontor, finns också en viktig förklaring till varför så många pendlare väljer att bo i Malmö City, nämligen Triangelns tågstation. Den underjordiska kommunikationslösningen stod färdig år 2010 och är nu en av Europas mest trafikerade stationer, då det går både snabbt och smidigt att pendla lokalt och regionalt. På mindre än 30 minuter tar man sig via Kastrup vidare till Köpenhamn.
Vill du köpa, sälja eller värdera bostad vid Drottningtorget? Kontakta Bjurfors mäklare på Malmö City! Passa också på att anmäla dig till vår kostnadsfria söktjänst Boagenten som hjälper dig att hitta ditt drömboende.
Kontakta mäklaren om du behöver hjälp att ta fram en boendekalkyl.
När du köper din bostad genom Bjurfors kan du ansöka om bolån till en förmånlig ränta hos vår samarbetspartner SEB.
Ansvarig mäklare