-
Köpa
Köpa -
Sälja
Sälja - Hitta bostad
- Skapa bevakning
- Hitta mäklare
3:a med radhuskänsla på Lindeborg
Lindeborg, Malmö
*I avgiften ingår värme, vatten, kabel-TV och bredband. Obligatoriskt tillägg om 108 kr/mån tillkommer för uteplats.
**Uppgifter enligt bostadsrättsföreningen
Bokad visning.
Bokad visning.
På Förhand ligger bostäder som av olika anledningar inte är ute till försäljning just nu men som kan komma att säljas om förutsättningarna är rätt.
Ljus gaveltrea med separat kök, stort vardagsrum, balkong och privat uteplats
Nu har du chansen att förvärva en av de eftertraktade lägenheterna på Aktrisgatan 8 – dessa säljs sällan och det med god anledning! Här bor du med känslan av ett radhus tack vare den generösa uteplatsen med trädäck, staket och grind – perfekt för barnfamiljen, trädgårdsentusiasten eller den som bara uppskattar en mindre trädgård.
Bostaden erbjuder 3 rok och en rymlig planlösning som skapar luft och rymd. Den stora inglasade balkongen förlänger säsongen och blir ett härligt extrarum större delen av året.
Här bor du i ett barnvänligt område med lekplatser, grönområden och gångavstånd till skolor och förskolor. Kommunikationerna är utmärkta – du tar dig snabbt till Malmö centrum, Köpenhamn, Svågertorp, Emporia och flera närliggande livsmedelsbutiker.
Kort sagt: ett hem att trivas i länge – med både komfort och närhet till allt du behöver i vardagen. Välkommen hem!
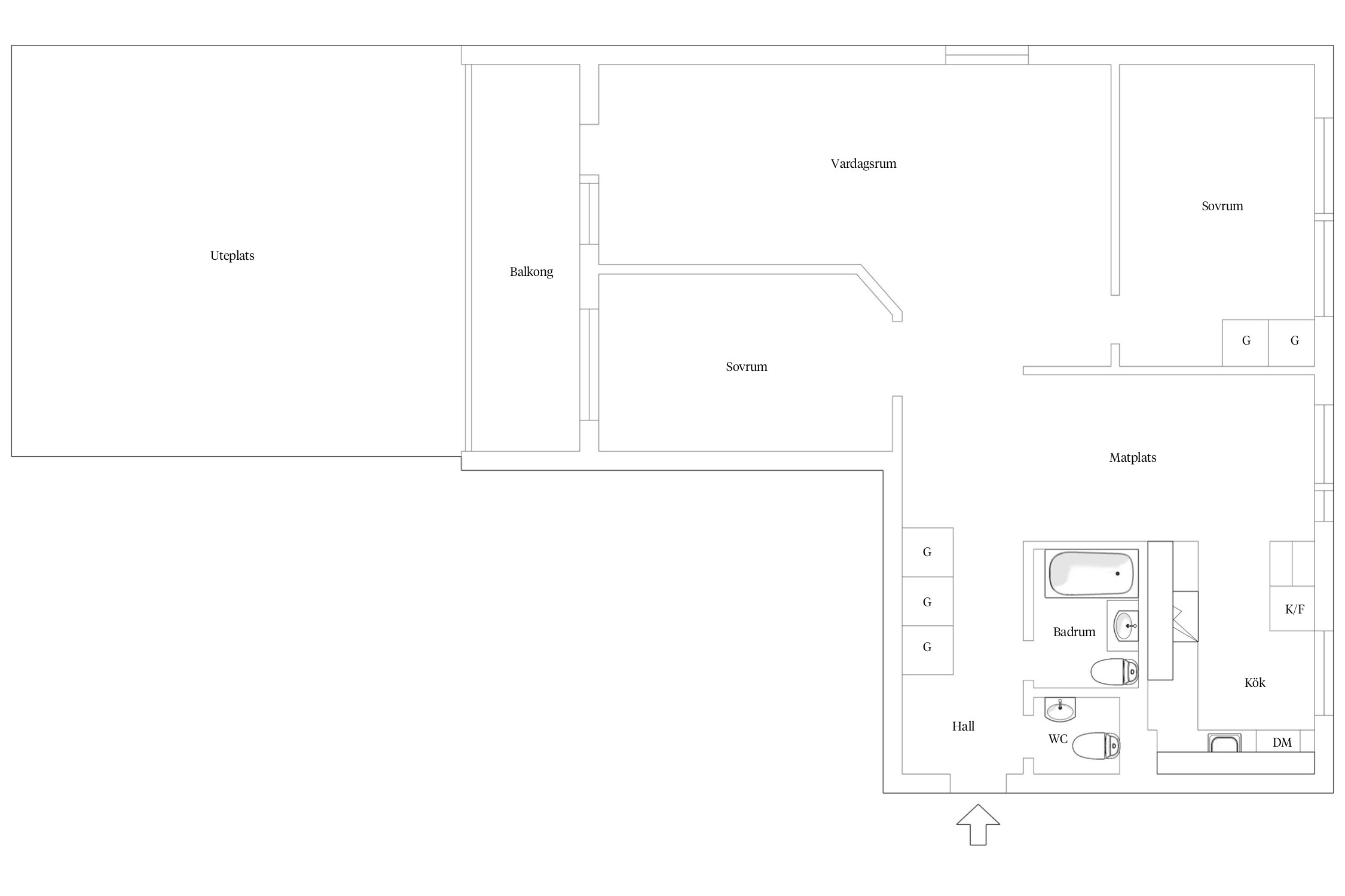
Hall: Grått vinylgolv, vitmålade väggar varav en fondvägg med blomstermotiv. Hallen har plats för avhängning samt klädagarderober.
Gäst-toalett: Helkaklat med vita kakalplattor på väggar, vita och svarta kakelplattor i schackrutigt mönster på golv. Gäst-toaletten är utrustad med handfat, högskåp, spegel och wc.
Badrum: Badrummet har stora liggande kakelplattor på väggar och grått klinker på golv. Badrummet är utrustat med handdukstork, vägghängd wc, handfat med kommod, badrumsskåp och badkar med takdusch.
Kök: Grått vinylgolv, vitmålade väggar samt en vitmålad tegelvägg.
Köksinredning med ekfärgade luckor och bra förvaring. Arbetsbänken är svart laminatskiva och grått kakel. Kökets utrustning består av spis, fläkt, diskmaskin, mikro samt kombinerad kyl och frys.
Vardagsrum: Grått vinylgolv, vitmålade väggar varav en fondvägg med blomstermotiv. Stort vardagsrum med plats för soffgrupp och matbord. Via vardagsrummet når du bostadens stora inglasade balkong, samt uteplatsen på trädäck med staket och grind.
Sovrum 1: Grått vinylgolv, vita väggar och platsbyggd garderob.
Sovrum 2: Grått vinylgolv och vita väggar.
Övrigt: Säljaren informerar om att den lilla (av två) ugnar på spisen inte fungerar.
Hall
Grått vinylgolv, vitmålade väggar varav en fondvägg med blomstermotiv. Hallen har plats för avhängning samt klädagarderober.
Gäst-toalett
Helkaklat med vita kakalplattor på väggar, vita och svarta kakelplattor i schackrutigt mönster på golv. Gäst-toaletten är utrustad med handfat, högskåp, spegel och wc.
Badrum
Badrummet har stora liggande kakelplattor på väggar och grått klinker på golv. Badrummet är utrustat med handdukstork, vägghängd wc, handfat med kommod, badrumsskåp och badkar med takdusch.
Kök
Grått vinylgolv, vitmålade väggar samt en vitmålad tegelvägg.
Köksinredning med ekfärgade luckor och bra förvaring. Arbetsbänken är svart laminatskiva och grått kakel. Kökets utrustning består av spis, fläkt, diskmaskin, mikro samt kombinerad kyl och frys.
Vardagsrum
Grått vinylgolv, vitmålade väggar varav en fondvägg med blomstermotiv. Stort vardagsrum med plats för soffgrupp och matbord. Via vardagsrummet når du bostadens stora inglasade balkong, samt uteplatsen på trädäck med staket och grind.
Sovrum 1
Grått vinylgolv, vita väggar och platsbyggd garderob.
Sovrum 2
Grått vinylgolv och vita väggar.
Övrigt
Säljaren informerar om att den lilla (av två) ugnar på spisen inte fungerar.



*Halv trappa upp.
**Uppgifter enligt bostadsrättsföreningen
I avgiften ingår värme, vatten, kabel-TV och bredband. Obligatoriskt tillägg om 108 kr/mån tillkommer för uteplats.
Fjärrvärme och värmepump-frånluft
(el)
Lägenheten disponerar över ett källarförråd (ca 4 kvm).
Inglasad balkong och uteplats på trädäck.
Det finns 356 garageplatser att hyra för 358 kr/mån samt 154 p-platser för 142 kr/mån. Hyran höjs årligen den 1/1 med 2% varje år. Separat kösystem tillämpas och ändras från månad till månad (priser för 2025, kontrollerat 2025-03-03).
Det kommer gå att lösa utomhus parkering omgående. Bilen måste vara en personbil som är registrerad på lägenhetsinnehavaren/lägenhetsinnehavarna i lägenheten.
Bostadsrättens indirekta nettoskuldsättning baseras på föreningens skulder/lån minus föreningens räntebärande tillgångar och likvida medel. Beräkningen är gjord via Bopedia. För mer information kontakta ansvarig fastighetsmäklare.
*Betalas av köpare
HSB Brf Sofieholm består av 573 st lägenheter och 9 st lokaler fördelade över adresserna Aktrisgatan 5-9 och 6-20, Dansörgatan 5-9 och 6-20, Orkestergatan samt Regissörgatan 1-17. Föreningens byggnader färdigställdes år 1972.
Föreningen utför tillsyn i samband med överlåtelsen. Tillsynen brukar vara samma dag som tillträdesdagen och förvaltare skickar förslag på tider till mäklare. Som i sin tur bokar tiden med köpare, säljare.
HSB har hand om föreningens ekonomiska förvaltning.
Föreningen höjde avgifterna med 5% från 2025-04-01. Inga planerade höjningar i dagsläget (kontrollerat 2025-10-22).
Gemensamt elavtal
Elpris från 2025 kwh ca 1,8kr inkl moms/avgifter. Priset uppdateras 1gång/året.
Föreningen har ett gemensamt elavtal, vilket innebär att bostadsrättsinnehavaren debiteras efter faktiskt förbrukning. Elen läses av en gång/månad och debiteras med 5 månaders eftersläpning.
Köparen/köparna måste vara medlemmar i HSB innan beslut om medlemskap i föreningen tas.
Ansökan om medlemskap görs på https://blimedlem.hsb.se/. HSB tar ut en avgift för medlemskap.
Försäkring via Folksam. Var och en ansvarar för att själv teckna bostadsrättstillägg via sin hemförsäkring.
Utförda renoveringar
2000 Byte av tak.
2004 Balkongutbyggnad, fasadtätning.
2009 Uppfräschning av innergård.
2012 Omläggning av tak på låghusen, byte av värmepumpar och styr- och reglerutrustning.
2013 Tilläggsisolering på vindarna.
2013 Byte till ledbelysning i källargångar, uppsättning av passersystem på samtliga källardörrar.
2014 Utemiljö.
2015 Renovering av garage. Tvättmaskiner har bytts ut.
2015-2016 Byte av frånluftsfläktar på låghusen, spolning av avloppsstammar, OVK-besiktning.
2017 Föreningen har infört gemensam el.
2018-2019 Installerat solceller
2020 Hissbyte i samtliga 8-våningshus
2023 Laddstolpar installerade på Dansörgatan
2023 Utbyggnad av parkeringsplats på Dansörgatan
2023 Solceller är åter i bruk efter stormskador
2023/2024 Ombyggnad och utbyte av ventilationsaggregat i butikscentrum.
Kommande underhåll/renoveringar (kontrollerat 2025-10-22):
2022-2024 Relining pågår sedan 2022 och beräknas klart under 2025. Även spolplattorna i garaget kommer renoveras i samband med detta.
Det finns 356 garageplatser att hyra för 358 kr/mån samt 154 p-platser för 142 kr/mån. Hyran höjs årligen den 1/1 med 2% varje år. Separat kösystem tillämpas och ändras från månad till månad (kontrollerat 2025-10-22).
Det kommer gå att lösa utomhus parkering omgående. Bilen måste vara en personbil som är registrerad på lägenhetsinnehavaren/lägenhetsinnehavarna i lägenheten.
Kabel-TV med Sydantenn som leverantör. Grundutbudet ingår i avgiften
Bredband genom Bahnhof, hastighet: 1000/1000 Mbit/s. Ingår i avgiften.
Lägenhets förråd finns i källaren.
Det finns barnvagns- och cykel förråd att hyra.
Det finns två gemensamma tvättstugor i varje husblock i höghusen. Låghusen har en tvättstuga.
Information som berör föreningen är inhämtad via årsredovisning, stadgar och kontakt med föreningen. Avvikelser kan förekomma och som köpare uppmanas du själv att kontrollerat samtliga uppgifter, framför allt om något är av extra stor betydelse för dig som köpare. Besök gärna föreningens hemsida : www.hsb.se/malmo/sofieholm.
Puls och utveckling bildar tillsammans ett stort plus i södra delarna av Malmö. Sedan länge etablerade bostadsområden möter framtidens kvarter bland koloniområden och grönska. I Södra Malmö ökar hela tiden utbudet av aktiviteter och shoppingmöjligheter genom satsningar på Hylliebadet, Malmö Arena och Emporia. Här står man inte still.
Fosie, Hyllie och Oxie är exempel på sedan länge etablerade socknar som idag ingår i vad vi kallar Södra Malmö. Stadsdelen Hyllievång, som etablerades i mitten på 2000-talet med satsningen på Citytunneln, visar vägen. Här finns flera nya områden med flerfamiljshus. Här ligger också Emporia, ett köpcentrum med 230 butiker, samt Malmö Arena där Malmö Redhawks spelar ishockeymatcher och stora konserter äger rum. Hylliebadet är ett modernt badhus för hela familjen.
I Hyllie har man bevarat värdefull mark som t ex koloniområdet Ärtholmen som anlades på 1940-talet. I Bellevuegården och Bellevueparken blandas villor och radhus trevligt med parkers gröna rum. Bostadsområdet Lindeborg erbjuder också ett fint odlingsområde med kolonilotter. I närheten ligger Bergdala med byggnader från 1920-talet.
Nydala samt Kroksbäck etablerades samtidigt som intilliggande Hermodsdal på 1960-talet och domineras av flerfamiljshus. På kullarna i Kroksbäcksparken finns en av Malmö stads uppskattade temalekplatser, Äventyrslekplatsen. Precis invid ligger Holma som tog form under 1970-talet. Kulladal är ett stort och välkänt område med service och skolor vars historia går tillbaka till 1800-talet.
I Fosie har folk levt sedan vikingatiden och området visar på historiens utveckling med sin blandning av äldre bebyggelse och den folkhemssatsning som gjordes under 1950- och 1960-talet då flerfamiljshus uppfördes. Exempel på sådana stadsdelar är Almvik, Gröndal, Heleneholm och Hermodsdal. I Eriksfält finns flera villor och radhus som uppfördes redan tidigt 1900-tal och även i Gullviksborg varierar boendeformerna. I Kastanjegårdens lugna kvarter ligger villor byggda på 1970-talet. Augustenborg är ett område med låga flerfamiljshus som uppfördes under 1940-talet och som nu är känt som ’ekostad’.
Vill du köpa, sälja eller värdera bostad på Lindeborg? Kontakta Bjurfors mäklare på Malmö City! Passa också på att anmäla dig till vår kostnadsfria söktjänst Boagenten som hjälper dig att hitta ditt drömboende.
Kontakta mäklaren om du behöver hjälp att ta fram en boendekalkyl.
När du köper din bostad genom Bjurfors kan du ansöka om bolån till en förmånlig ränta hos vår samarbetspartner SEB.
Bokad visning.
Bokad visning.
Ansvarig mäklare