-
Köpa
Köpa -
Sälja
Sälja - Hitta bostad
- Skapa bevakning
- Hitta mäklare
Lindeborg, Malmö
*I avgiften ingå värme, vatten, kabel-TV, bredband och garageplats.
Bokad visning.
Ett charmigt gavelhus med fyra till fem rum och kök, i ett välbevarat originalutförande och beläget i en mycket stabil och omtyckt HSB-förening. Området bjuder på en härlig atmosfär och en idyllisk miljö som skapar både glädje och trygghet i vardagen. Huset ligger helt bilfritt och mycket barnvänligt till.
Den genomtänkta planlösningen omfattar 138 m² boarea med vardagsrum, kök, tvättstuga och toalett på entréplan. På övre plan finns tre rymliga rum (möjlighet till fyra rum) samt ett generöst badrum. Här ges fina möjligheter att sätta personlig prägel och skapa ett hem efter egen smak.
Fastigheten är optimalt placerad i området, med egen trädgård omgiven av häckar och en stor äng precis utanför – perfekt för barnens lek och avkoppling. I månadsavgiften ingår dessutom uppvärmning, kabel-TV, bredband och eget garage.
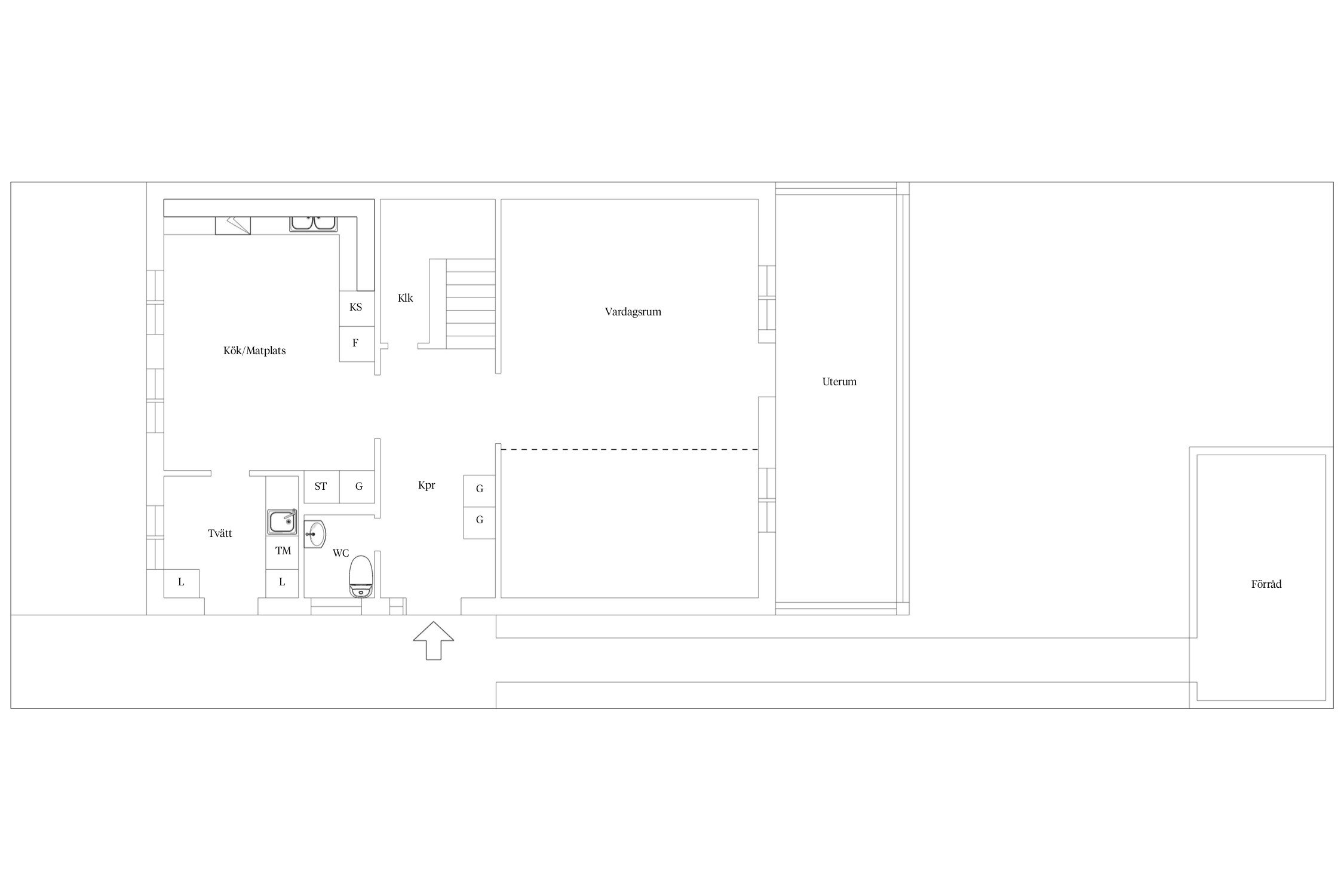
Hall
Välkomnande, stor och rymlig hall med klinkergolv och tapetserade väggar. Här finns en praktisk och generös klädkammare som ger gott om förvaringsutrymme.
Toalett
I anslutning till hallen ligger en praktisk toalett med våtrumsmatta på golvet och våtrumstapet på väggarna. Utrustad med toalett och handfat.
Kök
Stort och kök med en rymlig matplats som rymmer flera middagsgäster. Golvet är belagt med plastmatta och väggarna är tapetserade. Här finns spis, ugn, mikro, kyl/frys samt fläkt.
Tvättstuga
I direkt anslutning till köket ligger en rymlig tvättstuga med plastmatta på golvet och våtrumstapet på väggarna. Tvättstugan är utrustad med tvättmaskin, torkskåp, garderob och diskho.
Vardagsrum
Rejält och inbjudande vardagsrum med plats för både soffgrupp och matgrupp. Rummet har vacker originalparkett och tapetserade väggar. Härifrån nås även det rymliga och inglasade uterummet som gör det möjligt att förlänga kvällarna utomhus i en skyddad miljö.
Övre plan
Via trappan når man det övre planet där en möblerbar hall välkomnar. Alla sovrum och allrum har fönster i kupa som släpper in rikligt med ljus och skapar god rymd.
Sovrum 1
Stort och välplanerat sovrum med plats för dubbelsäng. Parkettgolv och tapetserade väggar. Rummet erbjuder dessutom bra förvaringsmöjligheter.
Allrum
Ljust och rymligt allrum, lugnt beläget mot trädgården. Parkettgolv och tapetserade väggar. Delbart till sovrum.
Sovrum 3
Rymligt sovrum med plats för både säng och skrivbord. Även här finns parkettgolv och tapetserade väggar.
Badrum
Stort helkaklat badrum. Utrustat med toalett, handfat, dusch och badrumsskåp.



Entréplan
Ovanvåning, nuvarande planlösning
Ovanvåning möjlig planlösning
I avgiften ingå värme, vatten, kabel-TV, bredband och garageplats.
Garage i länga
Förrådsbyggnad i trädgård
Uterum i väster
Garage i länga, plats nr 70
Fiber
Bostadsrättens indirekta nettoskuldsättning baseras på föreningens skulder/lån minus föreningens räntebärande tillgångar och likvida medel. Beräkningen är gjord via Bopedia. För mer information kontakta ansvarig fastighetsmäklare.
*Betalas av köpare
Bostadsrättsföreningens hus byggdes 1977 på fastigheten Sofieholm 4 i samband med byggnationen (tomträtt).
Föreningens adresser är Axel Danielssons väg 302-528.
Föreningen höjde avgfiterna med 5% år 2025.
Planerna är att höja ytterligare 4% 2026 men i dagsläget är inga beslut tagna.
Fastigheten är fullvärdes försäkrad hos Länsförsäkringar.
I föreningens fastighetsförsäkring ingår bostadsrättstillägg för föreningens lägenheter.
2016/2017 Utbyte av sand på lekplatser (underhåll)
2017/2018 Utbyte av ventiler till radiatorer och värmeledningar (investering)
2017/2018 Utbyte av utomhusbelysning på fastighetskontor, kvartersgårdar och
miljöhus, utbyte av blandare på fastighetskontor och kvartersgårdar,
utbyte av styr- och reglerenhet tappvarmvatten och ställdon i undercentral.
utbyte av värmeväxlare och expansionskärl, renovering av cirkulationspump
(underhåll)
2019 Övrigt löpande underhåll såsom rabatter, komplettering av träd, målning garage,
byte av panel på hus och förråd har utförts.
2022 Prognos styrning av fjärrvärmesystem med installation av inomhusgivare
2023 Installation av nya fönster och altandörrar i föreningens lägenheter som fortsätter våren 2024
Föreningen följer en underhållsplan
I föreningen finns 110 garage, ett garage till varje bostadsrätt. I området finns 51 avgiftsbelagda parkeringsplatser samt två laddstolpar för elbilar. Som medlem kan du ansöka om ytterligare en parkeringsplats för en boendeparkeringskostnad.
Kabel-tv via Tele2 och bredband via Telia.
Föreningens medlemmar har tillgång till en gemensam lokal med kök som kan lånas vid behov. Det finns även en lokal med bl.a. pingisbord och bastu för gratis utlåning.
Det finns ett förråd på tomten till varje bostad.
Samtliga radhus är utrustade med tvättmöjligheter.
Information som berör föreningen är inhämtad via årsredovisning, stadgar och kontakt med föreningen. Avvikelser kan förekomma och som köpare uppmanas du att själv kontrollera samtliga uppgifter, framförallt om något är av extra stor betydelse för dig som köpare.
Köparen/köparna måste vara medlemmar i HSB innan beslut om medlemskap i föreningen tas. Ansökan om medlemskap görs på https://blimedlem.hsb.se. HSB tar ut en avgift för medlemskap.
Spekulanter hänvisas att läsa genom årsredovisningen.
Puls och utveckling bildar tillsammans ett stort plus i södra delarna av Malmö. Sedan länge etablerade bostadsområden möter framtidens kvarter bland koloniområden och grönska. I Södra Malmö ökar hela tiden utbudet av aktiviteter och shoppingmöjligheter genom satsningar på Hylliebadet, Malmö Arena och Emporia. Här står man inte still.
Fosie, Hyllie och Oxie är exempel på sedan länge etablerade socknar som idag ingår i vad vi kallar Södra Malmö. Stadsdelen Hyllievång, som etablerades i mitten på 2000-talet med satsningen på Citytunneln, visar vägen. Här finns flera nya områden med flerfamiljshus. Här ligger också Emporia, ett köpcentrum med 230 butiker, samt Malmö Arena där Malmö Redhawks spelar ishockeymatcher och stora konserter äger rum. Hylliebadet är ett modernt badhus för hela familjen.
I Hyllie har man bevarat värdefull mark som t ex koloniområdet Ärtholmen som anlades på 1940-talet. I Bellevuegården och Bellevueparken blandas villor och radhus trevligt med parkers gröna rum. Bostadsområdet Lindeborg erbjuder också ett fint odlingsområde med kolonilotter. I närheten ligger Bergdala med byggnader från 1920-talet.
Nydala samt Kroksbäck etablerades samtidigt som intilliggande Hermodsdal på 1960-talet och domineras av flerfamiljshus. På kullarna i Kroksbäcksparken finns en av Malmö stads uppskattade temalekplatser, Äventyrslekplatsen. Precis invid ligger Holma som tog form under 1970-talet. Kulladal är ett stort och välkänt område med service och skolor vars historia går tillbaka till 1800-talet.
I Fosie har folk levt sedan vikingatiden och området visar på historiens utveckling med sin blandning av äldre bebyggelse och den folkhemssatsning som gjordes under 1950- och 1960-talet då flerfamiljshus uppfördes. Exempel på sådana stadsdelar är Almvik, Gröndal, Heleneholm och Hermodsdal. I Eriksfält finns flera villor och radhus som uppfördes redan tidigt 1900-tal och även i Gullviksborg varierar boendeformerna. I Kastanjegårdens lugna kvarter ligger villor byggda på 1970-talet. Augustenborg är ett område med låga flerfamiljshus som uppfördes under 1940-talet och som nu är känt som ’ekostad’.
Vill du köpa, sälja eller värdera bostad på Lindeborg? Kontakta Bjurfors mäklare på Malmö City! Passa också på att anmäla dig till vår kostnadsfria söktjänst Boagenten som hjälper dig att hitta ditt drömboende.
Kontakta mäklaren om du behöver hjälp att ta fram en boendekalkyl.
När du köper din bostad genom Bjurfors kan du ansöka om bolån till en förmånlig ränta hos vår samarbetspartner SEB.
Bokad visning.