-
Köpa
Köpa -
Sälja
Sälja - Hitta bostad
- Skapa bevakning
- Hitta mäklare
Stor villa i Kyrkbyn utan insyn
Oxie Kyrkby, Malmö
*Areauppgifter enligt säljaren
Bokad visning.
Välkomna till ett stort hus helt utan insyn med en egen infart in till huset. Bo på lugnt läge i Oxie kyrkby med friköpt tomt.
Varmt välkommen till ett hem som verkligen sticker ut i mängden – ett hus med karaktär, generösa ytor och en planlösning som passar perfekt för den stora familjen. Här finns hela 266 kvadratmeter area, och dessutom en stor biyta som med fördel kan användas som extra sovrum, gästrum eller kanske ett eget tonårsboende. Möjligheterna är många för dig som vill ha lite extra svängrum eller funderar på att hyra ut en del av huset.
När du kliver in möts du av en härlig rymd och en praktisk planlösning med väl tilltagna rum och goda förvaringsmöjligheter. På entréplanet finns två till tre sovrum, ett stort och inbjudande vardagsrum med plats för både soffgrupp och matplats, samt ett rymligt kök som totalrenoverades 2004 med stilrena luckor från Ballingslöv. Här finns gott om arbetsytor och förvaring, och de dubbla glasdörrarna leder ut till trädgården i ett härligt söderläge.
Huset erbjuder två helkaklade badrum, varav det ena renoverades 2017 i smakfulla och sobra färger. Båda badrummen är utrustade med allt man kan önska, och det klassiska badkaret på lejontassar ger en extra känsla av lyx.
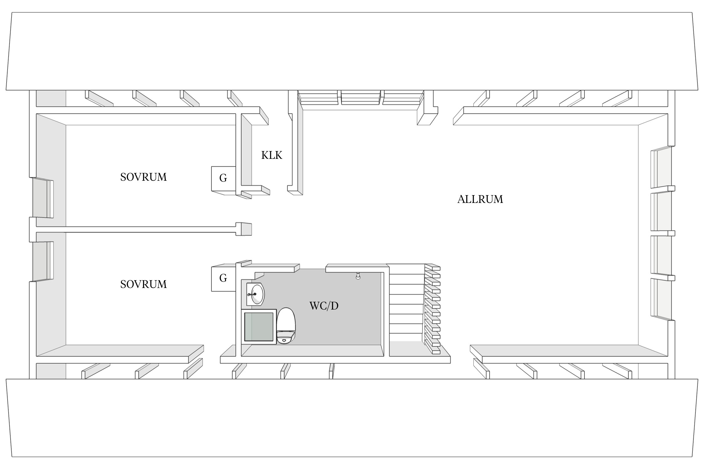
På ovanvåningen fortsätter husets generösa känsla. Här väntar två stora sovrum och ett pampigt allrum på cirka 40 kvadratmeter, öppet i nock med synliga takbjälkar och ett vackert ljusinsläpp från stora fönsterpartier. Rummet ger en fantastisk känsla av rymd, men kan enkelt delas av till fler sovrum för den som önskar.
Den insynsskyddade trädgården är en riktig oas. Här finns flera uteplatser i olika väderstreck, två uterum och en vacker damm som ger en rofylld atmosfär. Trädgården bjuder på plats för både lek, odling och avkoppling – perfekt för den som uppskattar lugn och grönska.
Läget är dessutom idealiskt. Huset ligger på en lugn och trivsam gata med förskola, skola (årskurs 1–6) och busshållplats på bekvämt avstånd. Här bor du med närhet till allt du behöver, men ändå med känslan av lugn och avskildhet.
Detta är verkligen ett hem som måste upplevas på plats – en bostad som kombinerar funktion, personlighet och värme på bästa sätt.
Varmt välkommen på visning – kanske är det här du hittar ditt nya drömhem!
Interiör: Entré
Vi välkomnas in i en rymlig hall med generösa förvaringsmöjligheter. Här finns klinkergolv och målade väggar. Från mellanhallen leder en vacker smidestrappa upp till ovanvåningen – en stilfull detalj som sätter tonen för huset.
Sidoentré
Från uterummet på husets kortsida nås sidoentrén. Här möts vi av en elegant trappa klädd i exklusiv marmor och ett klinkergolv som ger en lyxig känsla.
Vardagsrum
Stort, ljust och hemtrevligt vardagsrum med generösa fönsterpartier som släpper in rikligt med dagsljus. Rummet har parkettgolv och tapetserade väggar. Från vardagsrummet finns utgång till en stenlagd altan i österläge – perfekt för att njuta av morgonsolen.
Kök
Stort och inbjudande kök från Ballingslöv, renoverat 2004. Här finns gott om arbetsytor och förvaring, stengolv med elektrisk golvvärme samt dubbla glasdörrar som leder ut till trädgården i soligt söderläge. Utrustat med spis, fläkt, kyl/frys, diskmaskin och mikro.
Sovrum 1
Rymligt sovrum med parkettgolv och målade väggar. Tre garderober ger bra förvaring. Från rummet finns altandörr med utgång till baksidan.
Sovrum 2
Rofyllt sovrum med nymålade väggar och mjuk heltäckningsmatta på golvet – perfekt som gästrum eller barnrum.
Tvättstuga
Praktisk tvättstuga i anslutning till sidoentrén. Klinkergolv, arbetsbänkar med tvättho samt underskåp. Utrustad med tvättmaskin och torktumlare.
Badrum (entréplan)
Helkaklat badrum med klassisk känsla. Här finns badkar på lejontassar, tvättställ och förvaringsskåp.
Övre plan
Vi kommer upp för den robusta smidestrappan till ett pampigt och ljust allrum.
Allrum
Imponerande allrum om ca 40 kvm med öppet i nock och synliga takbjälkar som skapar härlig rymd. Stort panoramafönster med utsikt mot trädgården och en charmig kupa med flera fönster mot öster. Möjlighet finns att dela av till fler sovrum vid behov.
Klädkammare
Rymlig klädkammare med goda förvaringsmöjligheter.
Sovrum
Stort sovrum som tidigare varit avdelat till två mindre rum – enkelt att återställa vid önskemål. Ekparkett på golvet och en hel vägg med garderober.
Badrum (övre plan)
Smakfullt renoverat badrum i sobra färger från 2017.
Övriga ytor
Uterum 1
Integrerat uterum på husets norra kortsida med glasskjutdörrar i väster och öster. Klinkergolv med elektrisk golvvärme – en trivsam plats att umgås året runt.
Uterum 2
Nås via uterum 1. Glasskjutdörrar mot väster, klinkergolv och en öppen spis (ej ansluten, men möjlighet finns).
Hobbyrum
I anslutning till uterum 2 finns ett praktiskt hobbyrum med arbetsbänkar längs vägg och två garderober.
Garage
Stort dubbelgarage med plats för två bilar.
Varmt välkomna till ett hus som kombinerar charm, kvalitet och funktion – här finns gott om plats för både vardagsliv och fest!
Interiör
Entré
Vi välkomnas in i en rymlig hall med generösa förvaringsmöjligheter. Här finns klinkergolv och målade väggar. Från mellanhallen leder en vacker smidestrappa upp till ovanvåningen – en stilfull detalj som sätter tonen för huset.
Sidoentré
Från uterummet på husets kortsida nås sidoentrén. Här möts vi av en elegant trappa klädd i exklusiv marmor och ett klinkergolv som ger en lyxig känsla.
Vardagsrum
Stort, ljust och hemtrevligt vardagsrum med generösa fönsterpartier som släpper in rikligt med dagsljus. Rummet har parkettgolv och tapetserade väggar. Från vardagsrummet finns utgång till en stenlagd altan i österläge – perfekt för att njuta av morgonsolen.
Kök
Stort och inbjudande kök från Ballingslöv, renoverat 2004. Här finns gott om arbetsytor och förvaring, stengolv med elektrisk golvvärme samt dubbla glasdörrar som leder ut till trädgården i soligt söderläge. Utrustat med spis, fläkt, kyl/frys, diskmaskin och mikro.
Sovrum 1
Rymligt sovrum med parkettgolv och målade väggar. Tre garderober ger bra förvaring. Från rummet finns altandörr med utgång till baksidan.
Sovrum 2
Rofyllt sovrum med nymålade väggar och mjuk heltäckningsmatta på golvet – perfekt som gästrum eller barnrum.
Tvättstuga
Praktisk tvättstuga i anslutning till sidoentrén. Klinkergolv, arbetsbänkar med tvättho samt underskåp. Utrustad med tvättmaskin och torktumlare.
Badrum (entréplan)
Helkaklat badrum med klassisk känsla. Här finns badkar på lejontassar, tvättställ och förvaringsskåp.
Övre plan
Vi kommer upp för den robusta smidestrappan till ett pampigt och ljust allrum.
Allrum
Imponerande allrum om ca 40 kvm med öppet i nock och synliga takbjälkar som skapar härlig rymd. Stort panoramafönster med utsikt mot trädgården och en charmig kupa med flera fönster mot öster. Möjlighet finns att dela av till fler sovrum vid behov.
Klädkammare
Rymlig klädkammare med goda förvaringsmöjligheter.
Sovrum
Stort sovrum som tidigare varit avdelat till två mindre rum – enkelt att återställa vid önskemål. Ekparkett på golvet och en hel vägg med garderober.
Badrum (övre plan)
Smakfullt renoverat badrum i sobra färger från 2017.
Övriga ytor
Uterum 1
Integrerat uterum på husets norra kortsida med glasskjutdörrar i väster och öster. Klinkergolv med elektrisk golvvärme – en trivsam plats att umgås året runt.
Uterum 2
Nås via uterum 1. Glasskjutdörrar mot väster, klinkergolv och en öppen spis (ej ansluten, men möjlighet finns).
Hobbyrum
I anslutning till uterum 2 finns ett praktiskt hobbyrum med arbetsbänkar längs vägg och två garderober.
Garage
Stort dubbelgarage med plats för två bilar.
Varmt välkomna till ett hus som kombinerar charm, kvalitet och funktion – här finns gott om plats för både vardagsliv och fest!



Offerkällan 14
*Areauppgifter enligt säljaren
Övriga ytor: (Biarea) Allt vidbyggt i husets förlängning åt norr.
- Uterum 1: Integrerat på husets kortsida i norr (glasskjutdörrar i väster och öster). Klinker på golvet med elgolvärme
Uterum 2, Når vi från uterum 1. Glasskjutdörrar mot husets västra sida. Klinkers på golv. Öppen spis (ej ansluten med skorsten men kan enkelt göras.)
Hobbyrum: Innanför uterum 2, arbetsbänkar längs väggen, två garderober, extra frys och kyl står här.
2017 Renovering av badrum ovanvåning
2005 Garagetak papp omlagt
1996 Varmvattenberedare
Stort garage
Växthus
Runt om i trädgården finns flera vackra uteplatser. Fina trädäck runt om vid dammen.
Kommunalt vatten, Kommunalt avlopp.
I trädgården finns en fin damm med möjlighet att ha fiskar i. Något som måste upplevas på plats.
Garage med plats för två bilar. Förrådsutrymme innanför garage med skiljevägg mellan.
Stensatt uppfart med plats för flera bilar.
Tomtindelning (1976-06-04) Stadsplan (1974-06-25) Fornlämning (1 st)
Samfällighet: Malmö oxie s:1
Samfällighet: Malmö oxie s:10
Samfällighet: Malmö oxie s:11
Samfällighet: Malmö oxie s:12
Samfällighet: Malmö oxie s:14
Samfällighet: Malmö oxie s:15
Samfällighet: Malmö oxie s:18
Samfällighet: Malmö oxie s:2
Samfällighet: Malmö oxie s:28
Samfällighet: Malmö oxie s:3
Samfällighet: Malmö oxie s:5
Samfällighet: Malmö oxie s:6
Samfällighet: Malmö oxie s:7
Samfällighet: Malmö oxie s:8
Samfällighet: Malmö rosengård s:28
Skattetal: mantal 1/240
Fiber finns
Driftkostnader och elförbrukning är inhämtade från säljaren och bör endast ses som en uppskattning. Kostnaden kan variera och baseras på förbrukning och avtal.
Det finns 6 st pantbrev uttagna om sammanlagt 3 300 000 kr
Oxie ligger på bekvämt avstånd från Malmös innerstad. Här består bostäderna till mesta dels av villor som är byggda runt 1970- och 1980-talet. Ett annat landmärke är Oxie vattentorn som byggdes 1972. Byggnaden är 31 meter hög och ligger centralt på en kulle i Oxie, 56 meter över havsytan.
Oxie är en perfekt plats att bo på för den som älskar golf och vill ha närhet till naturen. I området finns totalt tre golfbanor. Den senaste i raden är Oxie Golfklubb med 12 hål. Här finns det alltid grönt gräs på greenen, i form av konstgräs. För den som vill gå 18 hål finns både Rönnebäck Golf club och Sofiedals GK som två alternativ. Samtliga banor ligger med naturliga grönområden runt omkring. För den som efter golfrundan vill fortsätta ut i naturen ligger den vackra Bokskogen på kort avstånd från Oxie.
Bor du i Oxie finns möjlighet till att bara vara i naturen eller motionera då bokskogen erbjuder flera olika motionsspår. Bokskogen vid Torup har i 200 år varit ett av Malmöbornas käraste utflyktsmål. Ett unikt rekreationsområde där du kan uppleva kultur och natur på samma gång. Torups slott erbjuder slottsvisningar och vandringar i den vackra slottsträdgården. I grannorten Toarp finns en populär ekoby där man har som mål att göra odling, kompostering och återvinning till en självklar del i allas vardag.
Här hittar du också Oxievångsbadet ett litet bad fullt av aktiviteter för alla åldrar. Här bjuds det på allt från babysim till relaxkvällar och motionssim. Här finns också ett gym med instruktörer. Badet ligger precis i anslutning till Oxievångsskolan.
I Oxie finns även Tycho Brahe-observatoriet, ett amatörobservatorium som håller öppet för allmänheten och skolklasser. Under stjärnklara måndagar håller observatoriet öppet för allmänheten och du kan titta på stjärnorna genom deras teleskop.
I Käglinge finns en mängd vackra platser för avkoppling och rekreation. Käglinge naturområde har vackra mjuka kullar, skog, vattenytor, ängar och hagmarker.
Från Oxie tar du dig snabbt och smidigt med tåg till Malmö eller Ystad. Pågatågen stannar i Oxie och trafikerar sträckan Malmö-Ystad. Från Käglinge går det direktbuss till bland annat Malmö.
Vill du köpa, sälja eller värdera bostad i Oxie Kyrkby? Kontakta Bjurfors mäklare på Malmö Öster! Passa också på att anmäla dig till vår kostnadsfria söktjänst Boagenten som hjälper dig att hitta ditt drömboende.
Kontakta mäklaren om du behöver hjälp att ta fram en boendekalkyl.
När du köper din bostad genom Bjurfors kan du ansöka om bolån till en förmånlig ränta hos vår samarbetspartner SEB.
Bokad visning.