-
Köpa
Köpa -
Sälja
Sälja - Hitta bostad
- Skapa bevakning
- Hitta mäklare
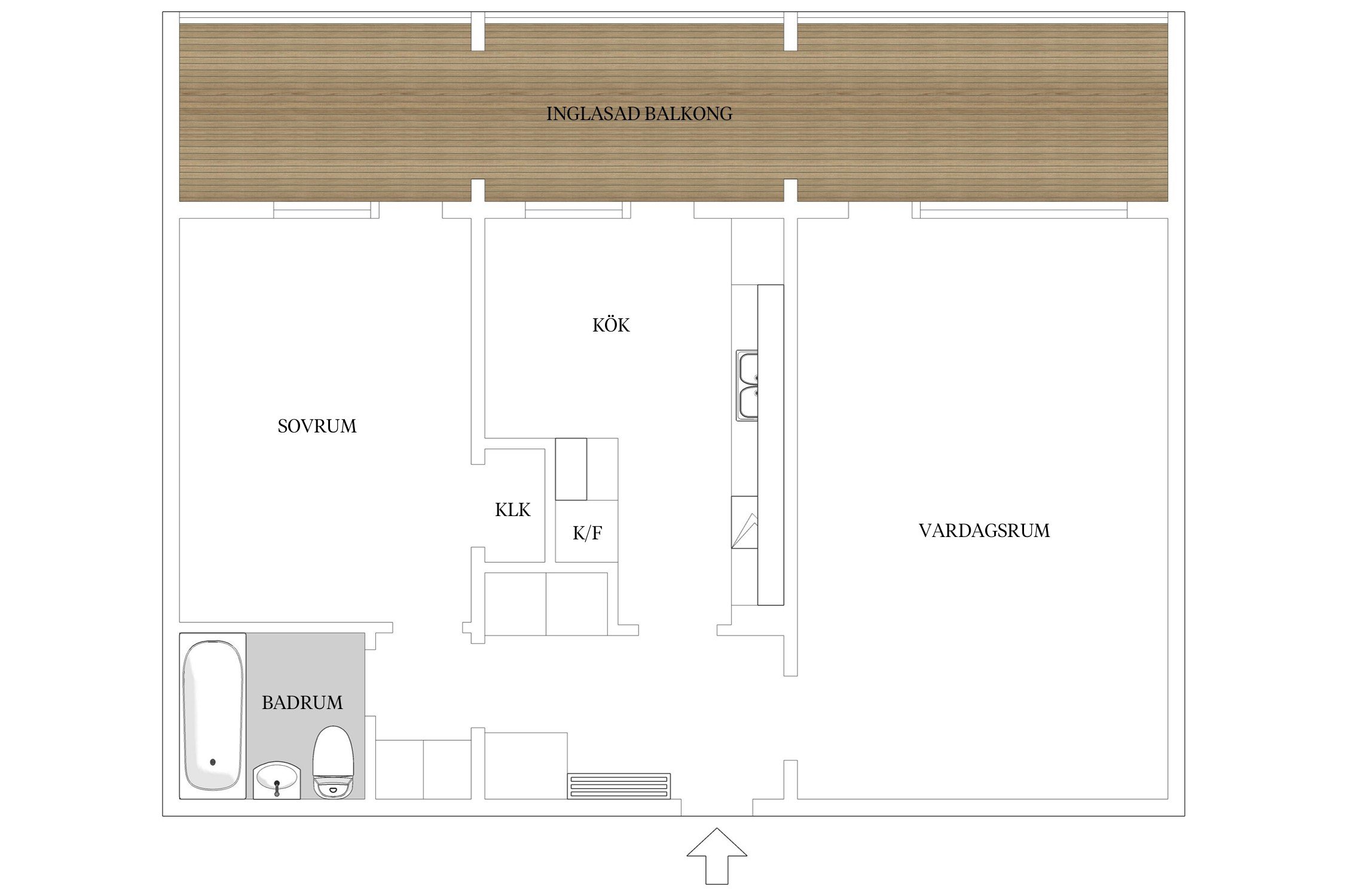
Inglasad balkong som sträcker längs hela bostaden
Rosengård, Malmö
*I månadsavgiften ingår värme, vatten, kabel-tv och bredband. Det tillkommer ett obligatoriskt tillägg för el på 46 kr/mån. Individuell mätning och debitering sker av el och tillkommer i månadsavin.
**Areauppgifter enligt bostadrättsföreningen
Bokad visning.
Välplanerad tvårumslägenhet med en rogivande och harmonisk utsikt över en välskött innergård från den stora inglasade balkongen
Välkommen till Sjöblads väg 5
Via hissen från markplan och en trappa upp tar vi oss till våning 4 till en rymlig och välplanerad tvårumslägenhet. Här erbjuds ett stort vardagsrum som ger plats för både en soffgrupp och matplats, kök med goda ytor för matlagning, ett badrum med dusch samt ett stort sovrum med utgång till balkongen. Lägg därtill flertalet inbyggda garderober med mycket förvaringsmöjligheter och du har en perfekt lägenhet.
Som bostaden självklara höjdpunkt finns här en enorm inglasad balkong som nås från lägenhetens samtliga rum och som kan användas året om. Här ges en fantastiskt utsikt över grönskande miljöer och med gott om plats för växter, lounge hörna och middagsbord.
Precis runt knuten finns skolor, bussförbindelser, tågstation och gott om grönområden om du vill njuta av grönska och natur. Kontinentalbanan med tågstation gör det enkelt för dig som pendlar. På Rosengård bor du omgiven av härliga grönytor och Brf Ida är strategiskt placerad alldeles intill en stor park.
Genom dörren välkomnas vi in till hallen. Väggarna är vita och golvet är laminat.
Till höger om hallen nås det rymligt vardagsrum med parkettgolv och vita väggar. Här ges plats för ett större soffmöblemang och matsalsbord om så önskas. Från vardagsrummet nås en av tre utgångar till den stora inglasade balkongen.
Välbevarat kök med mycket goda ytor för matlagning och förvaring. På golvet ligger plastmatta. Här ges matplats för 4 personer.
Sovrum med plats för dubbelsäng och sängbord. På golvet ligger laminat och väggarna är vita. Från sovrummet nås även en utgång till balkongen.
Kaklat badrum med wc, handfat, spegel, badkar och vinyl på golvet.



*Areauppgifter enligt bostadrättsföreningen
I månadsavgiften ingår värme, vatten, kabel-tv och bredband. Det tillkommer ett obligatoriskt tillägg för el på 46 kr/mån. Individuell mätning och debitering sker av el och tillkommer i månadsavin.
Förråd finns
Bostadsrättens indirekta nettoskuldsättning baseras på föreningens skulder/lån minus föreningens räntebärande tillgångar och likvida medel. Beräkningen är gjord via Bopedia. För mer information kontakta ansvarig fastighetsmäklare.
*Betalas av köpare
Föreningens verksamhet omfattar förvaltningen av fastigheterna Länsassistenten 1-3 och Länsrevisorn 1-3 vilka innehåller 738 lägenheter och 2 lokaler.
Droppskydd och brandvarnare ska finnas i lägenheten.
Besiktning av lägenheten krävs innan medlemskapet godkänns.
Ekonomiska förvaltningen sköts av SBC.
Avgiftsändringar
Föreningen har sänkt avgiften med 3% 2026-04-01. I dagsläget finns inga andra planerade avgiftsändringar (kontroll 2026-04-01).
El:
Föreningen har infört gemensam el. Den boende betalar efter förbrukning, fakturering sker var månad med 5 månaders eftersläp. Delagott sköter slutavläsning vid överlåtelse.
Köparen/köparna måste vara medlemmar i HSB innan beslut om medlemskap i föreningen tas. Ansökan om medlemskap görs på https://blimedlem.hsb.se/. HSB tar ut en avgift för medlemskap.
Fastigheten är fullvärdesförsäkrad hos Trygg Hansa. Bostadsrättstillägg ingår inte i försäkringen, boende måste teckna detta till sin hemförsäkring.
Föreningen följer en underhållsplan.
Utförda renoveringar och underhåll:
2018 nya dörrar till tvättstugorna
2019 Införing av gemensam el
2020 Utveckling och modernisering av utemiljön.
2020 Utbyte av styrsystem för värme och ventilation
2022 Installation av solceller på höghusen
2023 Fasadmålning och tvätt
2024 Stambyte av värmerör - montera nya radiatorer
2025 Omfattande renovering av lister och element inom ramen för ett energisparprojekt. Arbetet pågår enligt plan och syftar till att förbättra energieffektiviteten i fastigheten.
Pågående underhåll:
Underhållsspolning av avloppsledningarna, pågår till 30 april.
Föreningen kommer att renovera/byta hissar utefter behov. För att skapa en större trygghet för medlemmarna så kommer området att inhängnas. Passagesystemet kommer även under 2026 att bytas ut i sin helhet, det innebär att vi får nya porttelefoner, nya taggläsare och nya skärmar i entréerna.
Föreningen har 388 garageplatser och 305 parkeringsplatser.
Garageplats - inomhus - 432kr/månad.
Parkeringsplats - utomhus - 240kr/månad.
Kösystem tillämpas, hanteras av styrelsen.
(Kontrollerat 2026-04-01).
Bredband via Bahnhof med hastighet på 1000/1000 mbit/s, ingår i avgiften.
Kabel-tv (grundutbudet) levereras via Tele2, ingår också i avgiften.
Föreningen har en mysig gårdsplats där det finns bänkar och grillmöjligheter.
Gemensamma tvättstugor finns att tillgå i källaren. Det finns två tvättstugor per huskropp. Höghus har 2 maskiner per tvättstuga, låghus har två maskiner respektive 1 maskin per tvättstuga.
Cyklar och mopeder skall placeras i cykelställ inomhus eller utomhus, det finns inhägnade boxar att hyra i låghusen och det finns även cykel/mopedplatser i cykelhusen.
Föreningen har också en föreningslokal som man kan hyra vardagar 8-16 för 500kr.
Föreningen har nyligen investerat i utegym och grillplatser samt att de anordnar evenemang för barn under sommaren.
Information som berör föreningen är inhämtad via årsredovisning, stadgar och föreningens hemsida. Avvikelser kan förekomma och som köpare uppmanas du att själv kontrollera samtliga uppgifter, framförallt om något är av extra stor betydelse för dig som köpare.
Besök föreningens hemsida: http://www.hsb.se/malmo/ida
Kontakta styrelsen via: styrelsen@brfida.se
I Östra Malmö hittar du både idylliska äldre villor i Västra Kattarp och mångkulturella områden som Rosengård och Fosie med flerbostadshus. Här finns också industrier och landsbygd samt Östra kyrkogården som är en av Malmös allra vackraste kyrkogårdar.
Johanneslust har fått sitt namn från ett gammalt värdshus som låg längs med Sallerupsvägen. Områdena Johanneslust och Håkanstorp skapades under tidigt 1900-tal som en del i egnahems-rörelsen, därför hittar du mest villor, radhus och kedjehus här. Idag tillhör områdena i stadsdelen Kirseberg.
Rosengård byggdes som en del av miljonprogrammet i slutet av 1960-talet. Tidigare utgjordes platsen av ett jordbruksområde med lantegendomen Rosengårds herrgård från 1817. Rosengård är uppdelat i fem delområden med namnen Törnrosen, Apelgården, Herrgården, Örtgården och Kryddgården. Mitt i området finns ett centrum som har det mesta du behöver vad gäller service.
Västra Kattarp har en historia som går tillbaka ända till 1500-talet, när området kallades för Västra Kattarps by. Det finns tyvärr ingen bevarad bebyggelse kvar från denna tiden. Idag är Västra Kattarp ett av få villaområden i stadsdelen, vilket ökar attraktionsvärdet. Flertalet av husen är byggda runt 1960-talet. I närheten finns även Persborg och Hindby med flerbostadshus, radhus och egnahem. Här ligger också Pågens bageri som sprider frestande dofter av nybakade bullar i området.
I lugna Gullvik är det lätt att trivas. Här bor du på bekvämt avstånd från centrala Malmö samtidigt som du har allt du söker vad det gäller vardagsshopping på nära håll. Området består till största del av villor men det finns även enstaka bostadsrättsradhus. Här finner du både hus från 1920-talet till helt nybyggda hus i modern stil. Gullvik är perfekt att bo i för den som pendlar till Danmark. På bara några minuter är du ute på motorvägen för vidare färd över Öresundsbron. Du tar dig även ut till Malmö flygplats på kort tid.
I mångkulturella Fosie finns företagsamhet, flera vackra grönområden, hus med gamla anor och charmig herrgårdsmiljö. Fosie kyrka och runstenen påminner om det förflutna medan Augustenborgs Ekostad och industrierna i Fosie företagarby symboliserar framtiden.
Vill du köpa, sälja eller värdera bostad på Rosengård? Kontakta Bjurfors mäklare på Malmö Öster! Passa också på att anmäla dig till vår kostnadsfria söktjänst Boagenten som hjälper dig att hitta ditt drömboende.
Kontakta mäklaren om du behöver hjälp att ta fram en boendekalkyl.
När du köper din bostad genom Bjurfors kan du ansöka om bolån till en förmånlig ränta hos våra banksamarbetspartners Söderberg & Partners och SEB.
Bokad visning.