-
Köpa
Köpa -
Sälja
Sälja - Hitta bostad
- Skapa bevakning
- Hitta mäklare
Välrenoverat familjehem
Skivarp, Skurup
*Areauppgifter enligt säljaren
Boarean är 140 kvm enligt taxeringsinformationen.
Bokad visning.
Flödande dagsljus, smakfulla materialval, praktiska lösningar och uteplats samt trädgård i sydväst. En bostad att längta hem till!
Det här huset har stått stadigt i över hundra år, mitt i Skivarp, och det märks att det byggdes för att hålla. Stenväggarna andas trygghet och karaktär, samtidigt som huset i dag känns både ljust, modernt och lätt att leva i.
Under senare åren har huset fått nytt liv – renoverat med omsorg men utan att tappa den där sköna känslan av historia. Det första man lägger märke till när man kliver in är rymden: de höga taken, de framtagna bjälkarna och ljuset som letar sig in från flera håll. Här känns det hemtrevligt direkt, oavsett om solen skiner in genom fönstren eller om det regnar mot rutorna en kväll i november.
På entréplanet finns de sociala ytorna – köket och vardagsrummet i öppen planlösning där familjen samlas till både frukost och fredagsmys. Fyra sovrum ger plats åt både stora och små, gäster och drömmar. Två badrum, båda helkaklade och smakfullt inredda, gör vardagen smidig.
Ute i trädgården fortsätter känslan av omtanke. Här ligger uteplatsen i soligt sydvästläge, där man gärna sitter länge på sommarkvällarna. Den lilla innergården med singel och odlingslådor är både vacker och praktisk – en grön oas mitt i byn. Uthuset rymmer allt från cyklar till verktyg, men kan lika gärna bli en ateljé, ett gästrum eller bara en plats för lugn och ro.
Här bor man med gångavstånd till allt – Ica Nära Thores Allköp, skolan och gästgiveriet – men ändå med känslan av eget space.
Det här är ett hus som tar emot en med öppna armar. Ett hem där vardagen får vara enkel, och där man gärna stannar länge.
Entré: Inrett med klinkersgolv, målade väggar och garderob.
Vardagsrum: Ligger i öppen planlösning mot köket och är inrett med trestavsparkett av ek (mattlackerad) och målade samt tapetserade väggar.
Kök: Inrett med interiör från Ikea i klassiskt uttryck och grå kulör. Väggarna är målade med kaklat stänkskydd, bänkskiva av ek och på golvet ligger trestavsparkett av ek (mattlackerad). Utrustning består utav induktionshäll (Ikea, 2020), varmluftsugn (Ikea, 2020), mikrovågugn (Ikea, 2020), kyl samt frys (Samsung, 2020), mekanisk spisfläkt(2020) och diskmaskin (Siemens, 2025).
Sovrum 1: Inrett med laminatgolv, målade väggar och garderober.
Badrum: Inrett med helkaklade ytskikt, infällda spotlights i tak, vattenburen golvvärme, handdukstork (el), toalett (Ifö), handfat, dusch och badrumsskåp.
Sovrum 2 ov: Inrett med laminatgolv, tapetserade väggar och skjutdörrsgarderob.
Sovrum 3 ov: Inrett med laminatgolv och målade väggar.
Badrum ov: Renoverades 2024 med helkaklade ytskikt, golvvärme (el),k handdukstork (el), toalett (Ifö), handfat, badkar och dusch.
Sovrum 4 ov: Inrett med laminatgolv och målade väggar.
Entré
Inrett med klinkersgolv, målade väggar och garderob.
Vardagsrum
Ligger i öppen planlösning mot köket och är inrett med trestavsparkett av ek (mattlackerad) och målade samt tapetserade väggar.
Kök
Inrett med interiör från Ikea i klassiskt uttryck och grå kulör. Väggarna är målade med kaklat stänkskydd, bänkskiva av ek och på golvet ligger trestavsparkett av ek (mattlackerad). Utrustning består utav induktionshäll (Ikea, 2020), varmluftsugn (Ikea, 2020), mikrovågugn (Ikea, 2020), kyl samt frys (Samsung, 2020), mekanisk spisfläkt(2020) och diskmaskin (Siemens, 2025).
Sovrum 1
Inrett med laminatgolv, målade väggar och garderober.
Badrum
Inrett med helkaklade ytskikt, infällda spotlights i tak, vattenburen golvvärme, handdukstork (el), toalett (Ifö), handfat, dusch och badrumsskåp.
Sovrum 2 ov
Inrett med laminatgolv, tapetserade väggar och skjutdörrsgarderob.
Sovrum 3 ov
Inrett med laminatgolv och målade väggar.
Badrum ov
Renoverades 2024 med helkaklade ytskikt, golvvärme (el),k handdukstork (el), toalett (Ifö), handfat, badkar och dusch.
Sovrum 4 ov
Inrett med laminatgolv och målade väggar.



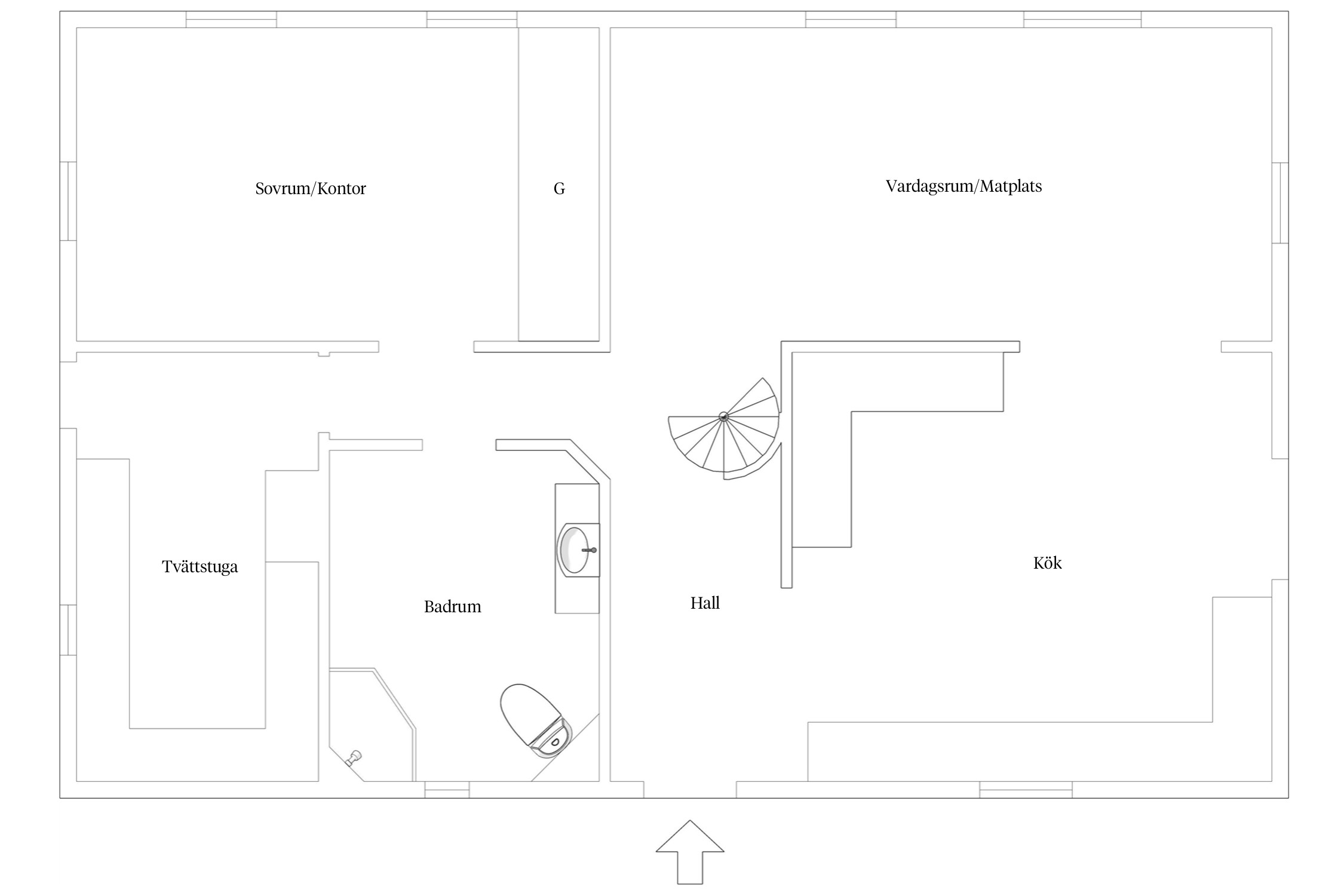
Entréplan
Ovanvåning
Skivarp 11:35
*Areauppgifter enligt säljaren
Boarean är 140 kvm enligt taxeringsinformationen.
Sector Alarm
2023: Fönster, målade utvändigt, oljade insida
2024: Badrum ovanvåning
2025: Tak uthus
2025: Renovering uthus, fönster, dörrar, fasad, gavlar
2024: Trädäck
2024: Innergård, singel, murade rabatter, staket
2025: Nytt golv, vardagsrum kök
2023: Installation elbilsladdare
Kommunalt vatten, Kommunalt avlopp.
Byggnadsplan (1976-07-23)
Fiber
Avser säljarens förbrukning.
Det finns 2 st pantbrev uttagna om sammanlagt 2 314 000 kr
Inbäddad mellan Malmö och Österlen med Östersjön vid sina fötter, ligger Skurups kommun som en oas på Söderslätt. Här finns sköna naturområden, goda pendlingsmöjligheter och möjlighet till många olika fritidsaktiviteter.
Tätorten Skurup växte fram vid järnvägen mellan Malmö och Ystad under industrialismens barndom. Bebyggelsen består till stor del av enfamiljshus och villor, men har även några områden med flerfamiljshus i ett till tre plan. Andra populära bostadsområden i kommunen är Abbekås som från början var ett fiskeläge, omtalat redan på 1500-talet, och Västra Vemmenhög som är den plats varifrån Nils Holgersson påbörjade sin resa genom Sverige.
Skurups kommun har många vackra naturområden som erbjuder upplevelser för alla åldrar. Det populära friluftsbadet på Vaktgatan i Skurup har flera bassänger, bastu, ett stort grönområde samt lekplats, kiosk och café. Vid Svaneholmssjön strax norr om Skrurup ligger vackra Svaneholms slott som har ett eget museum och gästgiveri.
Vägnätet i kommunen är väl utbyggt och endast femton kilometer från kommunens centralort ligger Sturups internationella flygplats som tar dig ut i Europa. Med tåg når du Köpenhamn på mindre än en timme.
I Skurup finns allt du behöver av bekvämligheter och service på nära hand. Centralorten har fina shoppingpärlor och det finns gott om gårdsbutiker på landsbygden.
Vill du köpa, sälja eller värdera bostad i Skivarp? Kontakta Bjurfors mäklare i Ystad! Passa också på att anmäla dig till vår kostnadsfria söktjänst Boagenten som hjälper dig att hitta ditt drömboende.
Kontakta mäklaren om du behöver hjälp att ta fram en boendekalkyl.
När du köper din bostad genom Bjurfors kan du ansöka om bolån till en förmånlig ränta hos vår samarbetspartner SEB.
Bokad visning.