-
Köpa
Köpa -
Sälja
Sälja - Hitta bostad
- Skapa bevakning
- Hitta mäklare
Påkostat stenhus med generösa ytor för den stora familjen!
Billeberga, Svalöv
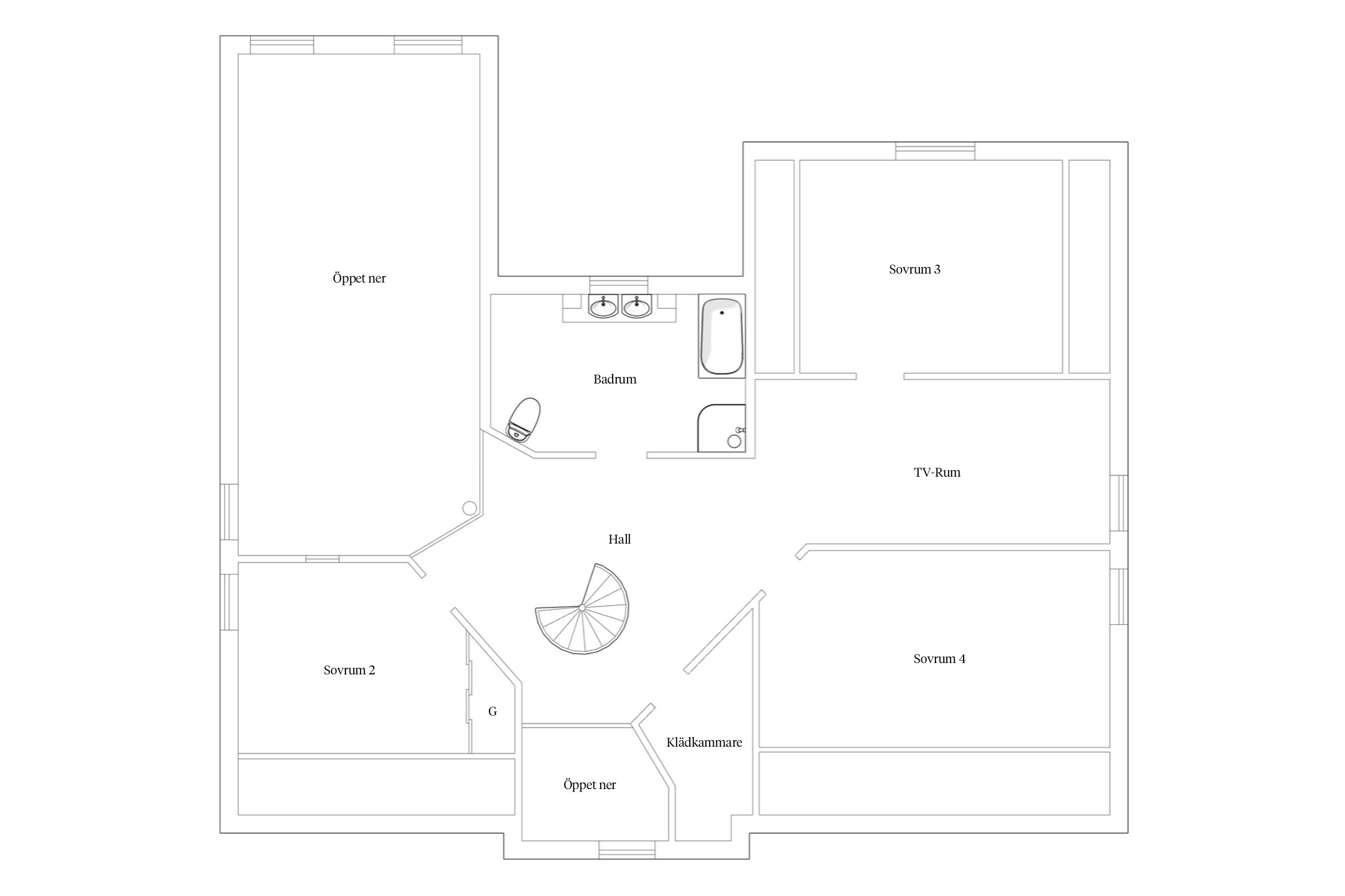
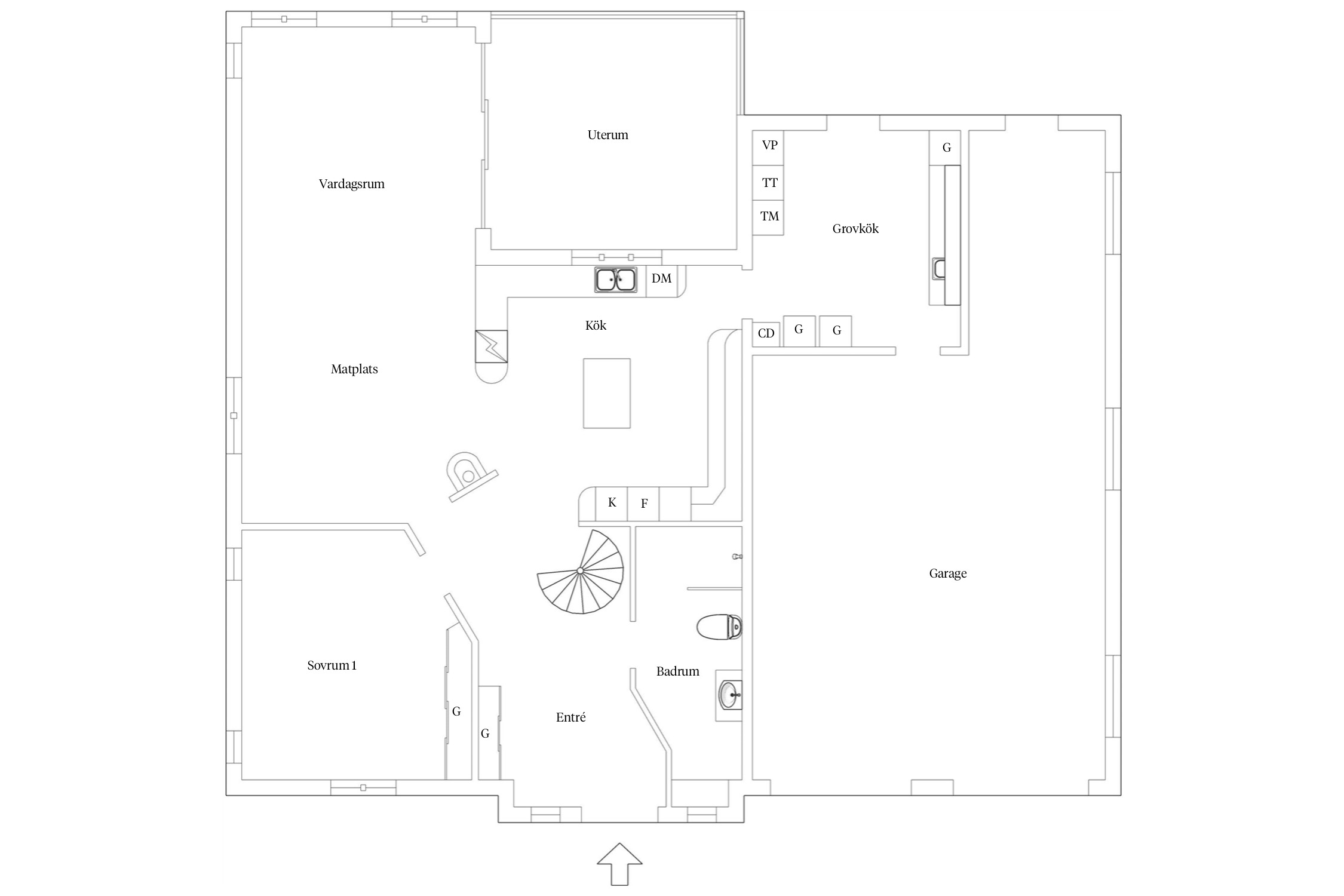
*Areauppgifter enligt taxeringsinformationen är 170 boyta och 60 biyta.
Fyll i formuläret nedan så hjälper vi dig!



Svalövs kommun, mitt i den expansiva Öresundsregionen, är ett familjärt område inbäddat i grönska och vacker natur. Små mysiga byvägar ger en känsla av skånsk lantidyll med närhet till stadspuls och smidig kommunikation. Ta tåget till Lund och Helsingborg på cirka 20 minuter och efter ytterligare 10 minuter har du nått Malmö. Här finns något för alla; romantiska gathus, pompösa villor, historiska stenhus och moderna lägenhetskomplex.
I kommunens stadskärna, Svalöv, finns välsorterade mataffärer, en färgglad blomsterbutik och trevliga restauranger. Det finns bibliotek för läslusen och skickliga frisörer när håret behöver ett lyft. Från den nybyggda tågstationen i Svalöv tar du dig vidare till bland annat Malmö C på dryga 30 minuter. En av tätorterna Teckomatorp har spännande järnvägshistorik och är knutpunkten i södra delen av Svalövs kommun. Orten är ett gammalt stationssamhälle som präglats av järnvägen med den typiska tegelarkitekturen. Ur kulturhistorisk synpunkt är Teckomatorp av riksintresse för sin unika gatuhuskaraktär. I Teckomatorp blandas gammalt och nytt vilket gör husen spännande och kulturmiljön charmig. Föreningslivet är rikt med allt från badminton, fotboll, boule och badminton, här finns det något för alla sportfantaster.
I Svalöv råder en barnvänlig och mjuk stämning med social sammanhållning. Här finns dessutom två låg- och mellanstadieskolor och en högstadieskola. Fridhems folkhögskola, en av Sveriges välkända folkhögskolor, ligger i Svalöv för de som är teater-, film- och musikintresserade. För de allra minsta finns flera förskolor och en omtalad förskola med Montessoriverksamhet. Runt om i kommunen ligger bland annat Söderåsens Nationalpark, flera naturreservat och olika strövområden för dig som i tysthet vill njuta en stund av naturens lugn i fantastisk miljö. I Svalövs kommun bor du trivsamt, barnvänligt och tryggt med närhet till både natur och centrum.
Vill du köpa, sälja eller värdera bostad i Svalövs kommun? Kontakta Bjurfors mäklare i Landskrona! Passa också på att anmäla dig till vår kostnadsfria söktjänst Boagenten som hjälper dig att hitta ditt drömboende.