-
Köpa
Köpa -
Sälja
Sälja - Hitta bostad
- Skapa bevakning
- Hitta mäklare
Anno 1909 möter modern komfort. Friköpt tomt.
Klågerup, Svedala
*Areauppgifter enligt taxeringsinformationen
Kontakta mäklaren för mer information gällande budgivningen.
Charmigt och modernt kedjehus i 1 ½ plan med tillbyggnad från 2011-2012. Belägen på en solig tomt i lugna och barnvänliga Klågerup.
Äntligen kan vi erbjuda det optimala kedjehuset för dig som vill ha både stil, komfort och ett hem att trivas i på riktigt – året om.
Här möts tidlös karaktär och modern bekvämlighet i ett hem som andas både historia och nutid. På en lummig kullerstensgata i Klågerups äldre kvarter ligger detta smakfullt planerade kedjehus, vars tillbyggnad från 2011–2012 skapar en harmonisk helhet mellan bevarade originaldetaljer och dagens krav på komfort. Bostaden erbjuder generösa ytor för familjelivet med ett stort kök och matplats för det större sällskapet, fyra sovrum, samt luftiga sällskapsytor i vardagsrummet. Två badrum – varav ett med bastu – kompletteras av gäst-wc och en funktionell tvättstuga som underlättar vardagen.
Även utomhusmiljön imponerar med sin lummiga, privata tomt där trädäck och pergola skapar platser för både vila och sociala stunder. Den isolerade friggeboden används idag som gästrum eller hemmakontor och ger extra flexibilitet.
Klågerup är en trivsam och populär by med närhet till vacker natur som Bokskogen och Pudesjö badplats. Samtidigt finns skolor, förskolor, lekplatser, butik och pizzeria på bekvämt gångavstånd. Med goda kommunikationer tar du dig enkelt till Malmö och Lund, oavsett om du väljer buss eller bil. Ett hem med själ och många möjligheter – varmt välkommen att uppleva det på plats.
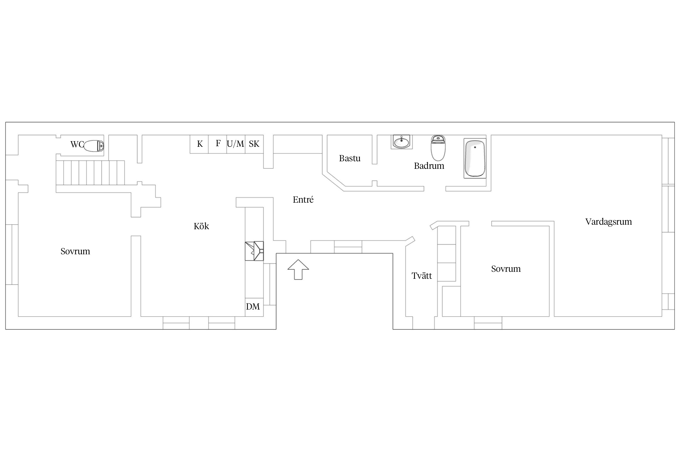
Hall
Hallen välkomnar på bästa sätt med säkerhetsdörr och klinkers på golv. Inbyggda garderober och vitmålade väggar.
Vardagsrum
Ljust och luftigt vardagsrum. Stora fönsterpartier och utgång till trädäck och pergola. Ljus parkett och vitmålade väggar.
Kök
Kök från IKEA 2018. Ljusblåa köksluckor möter bänkskiva i marmor och kakel som stänkskydd. Plats för matbord för det större middagssällskapet.
Köket är utrustat med induktion, varmluftsugn, mikro, kyl, frys, fläkt och diskmaskin. Linoleum på golv.
Grovkök
Rymligt och fräscht med klinkersgolv och vitmålade väggar. Bänkskiva i trä. Utrustat med tvättmaskin, torktumlare och handfat.
Badrum och Bastu
Helkaklat badrum med klinkers med golvvärme och fönster för ljusinsläpp. Utrustat med WC, badkar, handfat, dusch och badrumsskåp. Ingång till bastu.
Gäst-wc
Helkaklad gäst-wc med klinkers på golvet. Utrustat med WC, handfat och spegel.
Master bedroom
I anslutning till gäst-wc ligger Master bedroom. Stort sovrum med plats för allt man önskar. Vit parkett möter vitmålade väggar.
Sovrum 2
Ligger i anslutning till sällskapsrummet. Passar utmärkt som kontor, gästrum eller barnrum. Samma ljusa parkett och vita väggar.
Ovanvåning
Trappan leder upp till två sovrum och ett stort badrum
Sovrum 3
Bra i sin storlek. Sovrum med parkett och målade väggar.
Sovrum 4
Parkettgolv och en vägg med tapet.
Badrum
Fullstort badrum med golvvärme. Badrummet är utrustat med toalett, handfat, dusch och badrumsskåp.



Entréplan
Ovanvåning
Tejarp 10:30
*Areauppgifter enligt taxeringsinformationen
*2011-2012 byggdes huset ut
2009 Renoverades gästtoaletten
2009 Renoverades badrum ovanvåning
2011 Byggdes badrummet på entréplan
2011/12 Tillbyggnad
2018 invändig målning sovrum
2018 Renoverades köket
2023 Byggdes isolerad friggebod med el
2024 Byttes fönster på ovanvåning (3-glas)
2024 Renovering av ytterväggar på takkupan
2025 Invändig målning av vardagsrum, hall samt sovrum.
Isolerad friggebod
Kommunalt vatten, kommunalt avlopp
Grönskande och insynsskyddad tomt i soligt västerläge. Trädäck, pergola och isolerad friggebod.
Bilplats för två bilar.
Gemensamhetsanläggning: SVEDALA TEJARP GA:1 (VATTEN-OCH AVLOPPSLEDNINGAR)
Fiber
Driftkostnader och elförbrukning är inhämtade från säljaren och bör endast ses som en uppskattning. Kostnaden kan variera och baseras på förbrukning och avtal.
Det finns 7 st pantbrev uttagna om sammanlagt 2 905 000 kr
Svedala är en expansiv kommun med en levande bygd. Här finns ett mycket aktivt näringsliv och en ständigt pågående inflyttning till nya bostadsområden. I Svedala ligger också Malmö Airport som är södra Sveriges största flygplats med både nationella och internationella avgångar.
Orten ligger strax utanför Malmö, där Söderslätt övergår i det sydskånska sjöoch backlandskapet. Vid Börringesjöns nordvästra strand ligger Lindholmens borg varifrån unionsdrottning Margrethe I styrde de nordiska länderna i slutet av 1300-talet. Borgkullen finns kvar och man kan fortfarande se rester av vallgravarna. Svedala har också många vackra kyrkor från medeltiden.
I Svedala kommun har du många möjligheter till en aktiv fritid, här finns bland annat ridanläggningen Bökebergs gård där man förutom ridsportsevenemang även har konferenslokaler i vackra miljöer samt anordnar mässor och utställningar. I närheten finns också Sturup Raceway, Bokskogens GK, Sturup Park GK och PGA National.
Bara är en tätort i norra Svedala ca 15 km öster om Malmö. Bara kyrka och prästgård ligger norr om den nuvarande tätorten som började byggas på 1960-talet. På bekvämt avstånd från Malmö har detta hemtrevliga moderna villasamhälle gradvis växt fram. Här finns närhet till vacker natur samt ett fint friluftsbad, fotbollsplaner och idrottshall. Söder om Bara har företaget PGA National Sweden byggt en golfbana som klassas som en av de bästa i Europa enligt det brittiska fackmagasinet Golf World.
Klågerup är en levande tätort längs med länsväg 108. Här ligger Klågerups slott från början av 1400-talet. Klågerup är historiskt mest känt för Klågerupskravallerna 1811 då bönder drabbade samman med militär från Malmö. Det hela slutade i att ett trettiotal bönder fick sätta livet till. Dessa är begravda på en en äng som idag går under namnen ”Döängen”.
Torup är ett av Nordens bäst bevarade medeltida slott med anor från 900-talet. Här kan du gå en guidad rundtur i slottet eller besöka den vackra slottsträdgården. Strax intill ligger den tvåhundra år gamla bokskogen som är ett unikt rekreationsområde. Här kan du njuta av naturen och utnyttja fina motionsspår, promenadstigar eller ridvägar. Bokskogens golfklubb har två natursköna och utmanande 18-hålsbanor som angränsar till sjön Yddingens strand.
Vill du köpa, sälja eller värdera bostad i Klågerup? Kontakta Bjurfors mäklare på Malmö Öster! Passa också på att anmäla dig till vår kostnadsfria söktjänst Boagenten som hjälper dig att hitta ditt drömboende.
Kontakta mäklaren om du behöver hjälp att ta fram en boendekalkyl.
När du köper din bostad genom Bjurfors kan du ansöka om bolån till en förmånlig ränta hos vår samarbetspartner SEB.
Ansvarig mäklare