-
Köpa
Köpa -
Sälja
Sälja - Hitta bostad
- Skapa bevakning
- Hitta mäklare
Smakfullt totalrenoverad villa med trevligt läge - solpaneler
Tomelilla, Tomelilla
*Areauppgifter enligt taxeringsinformationen
Bokad visning.
Perfekt belägen villa i trevligt villakvarter. Totalrenoverad (2016-2025) villa med social, trevlig planlösning. Härlig trädgård med spabad.
Tomelilla är kommunens centralort och erbjuder det mesta du behöver. Arthur Walls väg är en lugn gata i byn och ligger bara någon minut från både mataffärer, tågstation med mera. I Tomelilla erbjuds bank, mat, apotek, blomsteraffär med mera. I gatorna runt omkring centrum ligger också inarbetade och välkända klädesaffärer/sportaffärer.
Bo Ohlsson i Tomelilla är vida känd och är också centralt belägen i byn. Här hittar du allt från kläder och leksaker till utemöbler - det mesta helt enkelt.
Tåget leder till Simrishamn i öster och till Ystad, Malmö, Lund och Köpenhamn i väster.
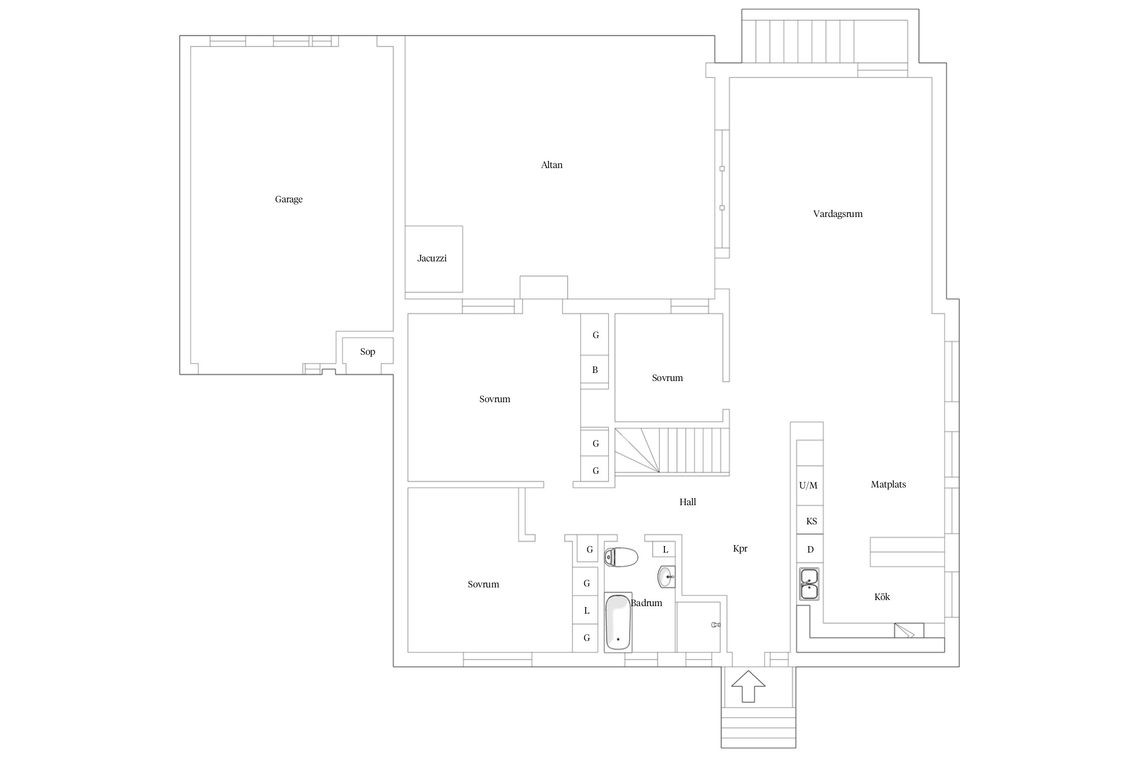
Välkommen till Arthur Walls väg 3. Innanför ytterdörren väntar en hall med laminatgolv, garderober. Stort, trivsamt badrum med klinkergolv, kakel på väggar, badkar och dusch.
Sovrum med laminatgolv, garderober. Sovrum med laminatgolv, utgång till stort trädäck. Ytterligare ett sovrum med laminatgolv.
I husets andra del väntar de öppna, sociala ytorna. Stort, luftigt allrum med laminatgolv, bra ljusinsläpp, luftvärmepump, utgång till trädäck och trädgård.
I öppen planlösning med allrummet finns det moderna köket med köksinredning i vitt, spotlights i tak.
Från hall, nedgång till källarvåningen. Här väntar en trivsam gillestuga med en kamin som värmer gott.
Tvättstuga med klinkergolv, tvättmaskin från 2016 och tumlare från 2024.
Badrum med kakel, klinkergolv, dusch och paxfläkt.
Bastu, skafferi, hobbyrum med mera.



Tjädern 22
*Areauppgifter enligt taxeringsinformationen
Vidbyggt garage och förråd
Kommunalt vatten, Kommunalt avlopp.
Stadsplan (1981-09-08) Tomtindelning (1969-06-13) Stadsplan (1967-02-24)
Fiber, Teleservice
13000 kWh i förbrukning
6500 kWh försäljning via solpanelerna.
Energideklaration är utförd av tidigare ägare. Nuvarande ägare har fått ner användningen radikalt från 18500 till 13000 kwh. Detta tack vare ny luftvärmepumpar samt nya radiatorer.
RENOVERINGAR
2016 Ny tvättmaskin
2018 Dränering
2016 Allrum entréplan
2016 Nytt kök
2016 nya fönster
2016 Ny torktumlare
2016 Allmänna ytor källaren
2018 Nya radiatorer
2018 Jacuzzi
2018 Nytt trädäck
2019 Nytt tak
2020 Solpaneler
2020 Nya trappor i granit
2020 Ny ytterdörr
2020 sovrum entréplan
2021 Varmvattenberedare
2021 Omgjort hobbyrum efter vattenskada
2023 Ny skorsten
2023 Renovering gym/hobbyrum
2024 Ny torktumlare
2024 Luftvärmepump
2025 Renovering kontor
2025 Renovering hall
2025 Renovering hall i källaren
Enligt överenskommelse
Det finns 9 st pantbrev uttagna om sammanlagt 2 125 000 kr
I Österlens inland ligger trevliga Tomelilla. Runt torgets kullerstenar ståtar sekelskiftets imponerande tegelbyggnader där restauranger och butiker nu huserar. Här finns service i form av vårdcentral och skolor från f-åk 9 och goda pendlingsmöjligheter med tåg till Malmö och regionbussar. Lugn och ro kan locka lika mycket som ett besök på Tosselilla, hela Skånes sommarland.
I Tomelilla kommun arbetar man med målet att skapa förutsättningar för hög livskvalitet och att njuta av Österlen! Själva kommunen har knappt 14 000 invånare, varav 6 000 bor i centralorten. Här finns god service året runt som vårdcentral och privat läkarmottagning, förskolor samt åk 1-9, fritidsverksamhet som kulturskola, flera butiker och restauranger. Regionbussar och pågatåg erbjuder goda pendlingsmöjligheter till Lund och Malmö samt till angränsande orter på Österlen.
De äldre centrala delarna av Tomelilla präglas av järnvägens framväxt i slutet av 1800-talet, en tid då samhället expanderade kraftigt. I rätvinkliga kvarter med det trevliga torget som mittpunkt ligger stadsmässiga hus och villor i rött tegel med mönstermurning eller rik putsarkitektur. Bebyggelsen i centrum är småskalig med flerfamiljshus i två till tre våningar och med friliggande enfamiljshus i kringliggande områden som Lindeborg, Björkebo och Sälshög.
Lugnt belägna i det kulliga landskapet på cykelavstånd på 5-8 km från centralorten ligger Benestad, Ramsåsa, Ullstorp och Tryde. Lantligt läge bland böljande ängar har även samhällen som Everöd, Karlsborg och Toarp. Mot öster ligger lilla Tosterup, byn som är välkänd genom det imponerande slott som uppfördes där redan på 1300-talet. Från slottets torn har man fri sikt ända till havet.
Man kan hålla formen i löp- och promenadslingor på rekreationsområden som Kronoskogens naturområde eller i simhallen Österlenbadet och Välabadets friluftsbassäng som ligger mitt i centrum. Ortens idrottsföreningar är aktiva och här finns fotbollsplan samt gymnastik- och badmintonhall.
Uppskattade marknader med varustånd och artistuppträdanden hålls två gånger om året och det är många som under sommaren har Tosselilla som utflyktsmål. Det välkända äventyrslandet ligger ca 3 km från centrum. I närheten ligger även gokartbana, bowlinghall, ponnytrav och golfbana. I Tomelilla finns biograf och konsthall samt ett museum tillägnat svensk filmhistoria. Vännerna Hasse Alfredson och Tage Danielson var humoristiska stilbildare och deras underfundigheter fortsätter att roa än idag.
Vill du köpa, sälja eller värdera bostad i Tomelilla? Kontakta våra mäklare på Österlen! Passa också på att anmäla dig till vår kostnadsfria söktjänst Boagenten som hjälper dig att hitta ditt drömboende.
Kontakta mäklaren om du behöver hjälp att ta fram en boendekalkyl.
När du köper din bostad genom Bjurfors kan du ansöka om bolån till en förmånlig ränta hos våra banksamarbetspartners Söderberg & Partners och SEB.
Bokad visning.