-
Köpa
Köpa -
Sälja
Sälja - Hitta bostad
- Skapa bevakning
- Hitta mäklare
Välplanerat och modernt bostadsrättsradhus
Anderslöv, Trelleborg
*Obligatoriskt tillägg om 375 kr/mån schablonbelopp kallvatten. El debiteras efter förbrukning.
**Areakälla enligt bostadsrättsföreningens mäklarbild/utdrag ur lägenhetsregister
På Förhand ligger bostäder som av olika anledningar inte är ute till försäljning just nu men som kan komma att säljas om förutsättningarna är rätt.
Modernt och trivsamt boende på gavel med tomt i härligt söderläge!
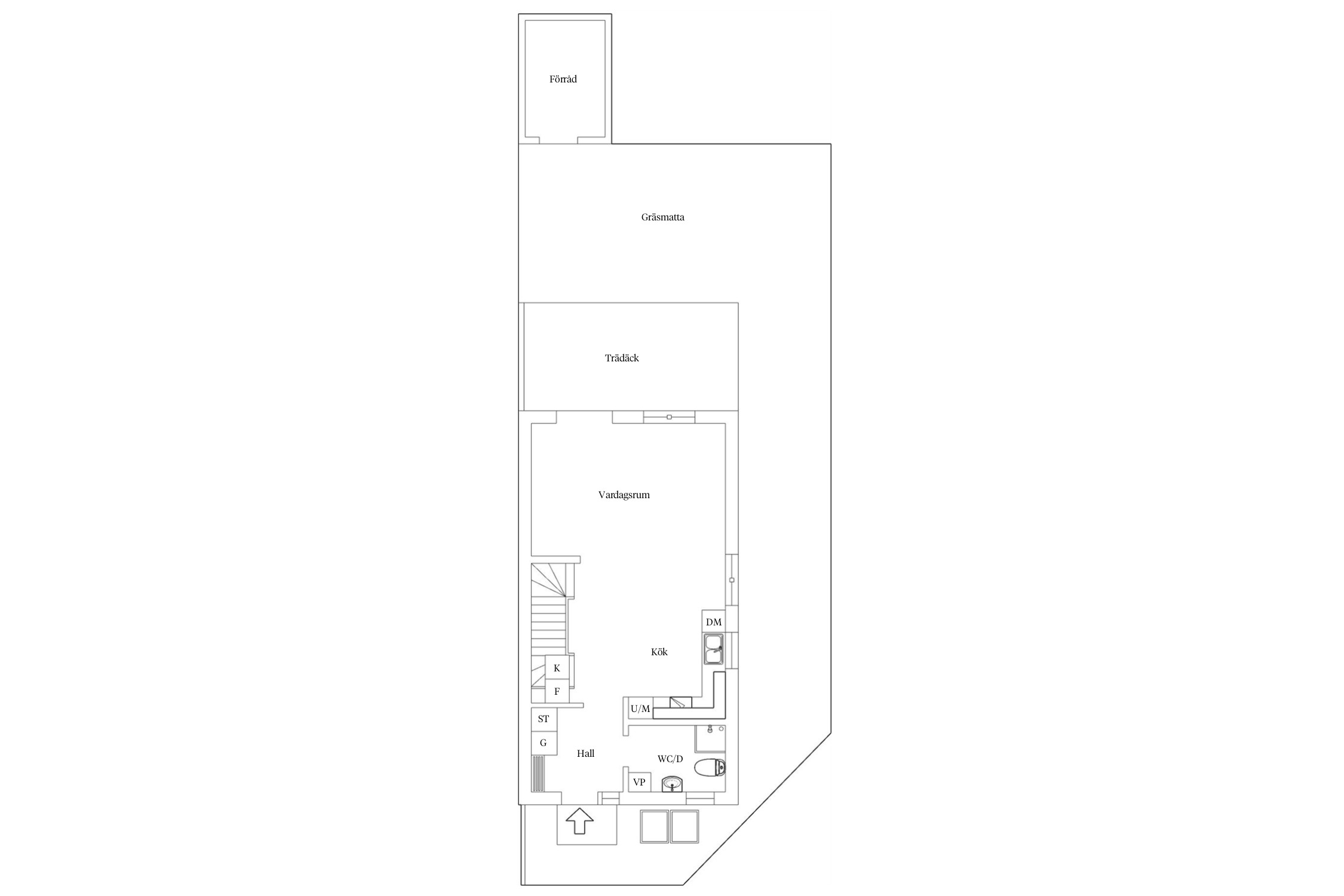
Varmt välkomna till detta fantastiska hem med nyproducerad känsla och modern, tidlös design. Här bor ni bekvämt på välplanerade kvadratmetrar och på gavel med underbar tomt i söderläge. Fördelat på två plan, med sociala ytor på entréplan och de mer privata utrymmen på ovanvåning, är detta ett perfekt hem för familjen. Här möts stilren design och praktiskt funktionalitet så som badrum på varje våningsplan, bra arbetsytor i kök samt härligt ljusinsläpp från stora fönsterpartier - Lägg därtill uteplats med trädäck och tomt med direkt anslutning till grönområden och lekplats och ni har det perfekta boendet.
Entréplan erbjuder ljusa, öppna ytor med fint ljusinsläpp från stora fönsterpartier tack vare sitt härliga gavelläge. Inbjudande hall som leder vidare till det sociala hjärtat av hemmet: kök, matplats och vardagsrum i öppen planlösning. Det moderna köket erbjuder gott om arbetsytor och smart förvaring. Den anslutande matplatsdelen är rymlig och här finns gott om plats för middag med familj och vänner. Vardagsrummet är också en naturlig samlingspunkt och rummet öppnar upp mot den soliga uteplatsen i söderläge – Perfekt för lata sommardagar. På entréplan finns även helkaklat, stilrent badrum med dusch.
En trappa upp möts du av tre fina sovrum i bra storlek, ytterligare ett stilrent badrum med praktiskt badkar samt tvättmaskin och torktumlare. Här finns även allrum som fungerar utmärkt som lekrum, myshörna eller extra vardagsrum. Kan även göras om till ytterligare sovrum om behov finns. Bra med förvaring finns i form av garderober i varje rum.
Anderslöv är en oerhört barnvänlig och omtyckt by belägen på underbara Söderslätt. Svårslaget läge för barnfamiljen då förskola, BVC och vårdcentral endast ligger en kort promenad bort. Anderslöv erbjuder även matbutiker, restauranger, apotek och gästgiveri samt skola upp till ÅK 9. Behagligt avstånd till bland annat Trelleborg, Svedala, Sturup, Malmö, Ystad, Lund och Vellinge.
Varmt välkomna till ett hem att trivas i!
Entré:
Vid entrén välkomnas ni av praktiskt klinkergolv i mörkgrått, följt av vackert ekparkettgolv och vita väggar som fortsätter in i resten av bostaden. Avhängningsplats för ytterkläder finns direkt till höger från entrén och via en dörr in till höger finner ni bostadens ena badrum.
Badrum:
Väl tilltaget badrum som är helkaklat i vitt och grått samt inrett med wc, dusch, handfat med kommod, spegelskåp och behaglig golvvärme.
Kök, matplats samt vardagsrum:
Modernt och stilrent kök i vinkel från Marbodal inrett med vitt kakel ovanför den fina bänkskivan i vit/grå nyans. Här finner ni vita skåpsluckor och fler funktionella skåp samt bra med arbetsyta. Vitvarorna från 2022 består av spishäll, ugn, mikro, kyl, frys, köksfläkt och diskmaskin. Rummet har naturlig plats för matplats vid köket och i anslutning till matplatsen finns plats åt en soffgrupp och annat möblemang om så önskas.
I anslutning till matplats/vardagsrum nås den underbara trädgården i söderläge. En uteplats med trädäck bjuder in till härliga sommardagar. I trädgården finns ett praktiskt förråd och lagom stor gräsplätt som sträcker sig runt gaveln på huset. Bra med förvaring erbjuds under trappan.
Ovanvåning
Ta trappan upp från entréplan och ni finner hemmets lite mer privata utrymmen. Genomgående för ovanvåningen finns även här ekparkettgolv. Här finns allrum, badrum, tre sovrum och rymlig klädkammare.
Allrum:
Fungerar bra som tv-rum eller lekrum. Kan även byggas om till extra sovrum om behovet finns.
Sovrum 1:
Väl tilltaget sovrum som är rogivande beläget med fönster mot trädgården och ena gaveln. Bra förvaring i form av garderober med skjutdörrar.
Sovrum 2 och 3:
Två sovrum i bra storlek. Härliga nyanser på väggarna och bra förvaring i form av garderob.
Badrum:
Bostadens andra badrum har grå klinker på golv och vitt kakel på väggarna. Inrett med wc, badkar, handfat med kommod, spegelskåp, tvättmaskin och torktumlare, handdukstork samt skåp till förvaring.



Entréplan
Ovanvåning
Tången 1
*1 + 2
**Areakälla enligt bostadsrättsföreningens mäklarbild/utdrag ur lägenhetsregister
Obligatoriskt tillägg om 375 kr/mån schablonbelopp kallvatten. El debiteras efter förbrukning.
*Inflytt under 2022
Förråd finns, ca 10 kvm.
Fiber
Bostadsrättens indirekta nettoskuldsättning baseras på föreningens skulder/lån minus föreningens räntebärande tillgångar och likvida medel. Baserat på andelen i föreningen. Beräkningen är gjord via Bopedia. För mer information kontakta ansvarig fastighetsmäklare.
I kostnaden för el är uppvärmning och varmvatten inkluderat.
*Betalas av köpare
Brf Ateljéhusen bebyggdes 2020-2022 då inflyttning skedde. Föreningen består av 29 bostadshus upplåtna med bostadsrätt.
I samband med omförhandling av lån har föreningen fått förbättrade villkor och kan därmed genomföra en sänkning av månadsavgifterna med 15 % från och med 1/1 2026.
SBC har hand om föreningens ekonomiska förvaltning.
Bostadsrättshavare bekostar hushållselen. Bostadsrättshavaren svarar själva för värme/varmvatten (värmepump går på lägenhetens el). Bostadsrättshavare bekostar sin del av kallvatten (VA) genom undermätare som faktureras i förväg som ett obligatoriskt tillägg enligt schablon med senare justering efter uppmätt förbrukning. Varje bostadsrättshavare har skötselansvar (inkl. snöröjning) för den upplåtna marken och svarar för eget abonnemang för avfall.
Fullvärdesförsäkring finns via Moderna. I försäkringen ingår kollektivt bostadsrättstillägg för medlemmarna samt ansvarsförsäkring för styrelsen.
I dagsläget finns inga planerade renoveringar/underhåll (kontroll 2025-08-06).
Parkering på egen uppfart eller gemensam biluppställningsplats.
Bostadsrättshavaren svarar för eget abonnemang avseende TV/bredband.
Samtliga förråd till bostäderna finns på tomten.
Föreningen har gemensam lekplats.
I samband med överlåtelsen genomför föreningen en tillsyn av bostaden.
På Söderslätt, landet mellan Malmö och Trelleborg, kan du uppleva Skåne när det är som allra vackrast. Här kan du njuta av de guldgula rapsfälten och besöka de vackra små byarna som ligger utspridda över slätten ända ner till sydkusten.
Smygehamn är Sveriges sydligaste samhälle som ligger precis vid kusten i Trelleborgs kommun. Orten byggdes upp med hjälp av fiske, handel och kalkindustri. Här finns idag all tänkbar service som skola, bibliotek, servicelägenheter och äldreboende, hotell, restaurang, affärer och idrottsplats.
Omedelbart väster om Smygehamn ligger Skandinaviens sydligaste udde, Smygehuk. Orten sjuder av liv sommartid och här kan du uppleva en mängd utställningar och musikevenemang. Smygehuk är också välkänt för sina många kaféer och matställen, där du kan njuta av typisk skånsk husmanskost såväl som andra menyer.
Beddingestrand är beläget strax öster om Smygehamn. Den gamla fiskebyn har blivit tätort genom att allt fler fritidshus längs kusten har gjorts om till permanentboende. De äldre sommarbostäderna är mycket charmiga och många är unika i sitt slag.
Böste är sydkustens största och mest välbevarade fiskeläge. I Böste finner du en verklig idyll med välrenoverade hus och underbart vackra miljöer. Husen är ofta byggda av putsad och kalkad flintsten. Flintstenen tillsammans med kalkberg utgör berggrunden här.
Bodarp är en av Söderslätts minsta och charmigaste byar, bestående av fyra gårdar och lika många gatehus samt en medeltida kyrka och en gravhög. Byn ligger högt i ett vägkors och härifrån har du en fantastisk utsikt över det skånska landskapet. Bland de trevligaste sevärdheterna i byn kan nämnas Hallongården. Hammarlöv är en genuin by med områdets enda rundtornskyrka. Från Skegrie finns utmärkta förbindelser med Trelleborg, Malmö och Öresundsbron. Området är perfekt om du vill bo ”på landet” men samtidigt ha nära till storstadens alla bekvämligheter.
Vill du köpa, sälja eller värdera bostad i Anderslöv? Kontakta Bjurfors mäklare i Trelleborg! Passa också på att anmäla dig till vår kostnadsfria söktjänst Boagenten som hjälper dig att hitta ditt drömboende.
Kontakta mäklaren om du behöver hjälp att ta fram en boendekalkyl.
När du köper din bostad genom Bjurfors kan du ansöka om bolån till en förmånlig ränta hos vår samarbetspartner SEB.
Ansvarig mäklare