-
Köpa
Köpa -
Sälja
Sälja - Hitta bostad
- Skapa bevakning
- Hitta mäklare
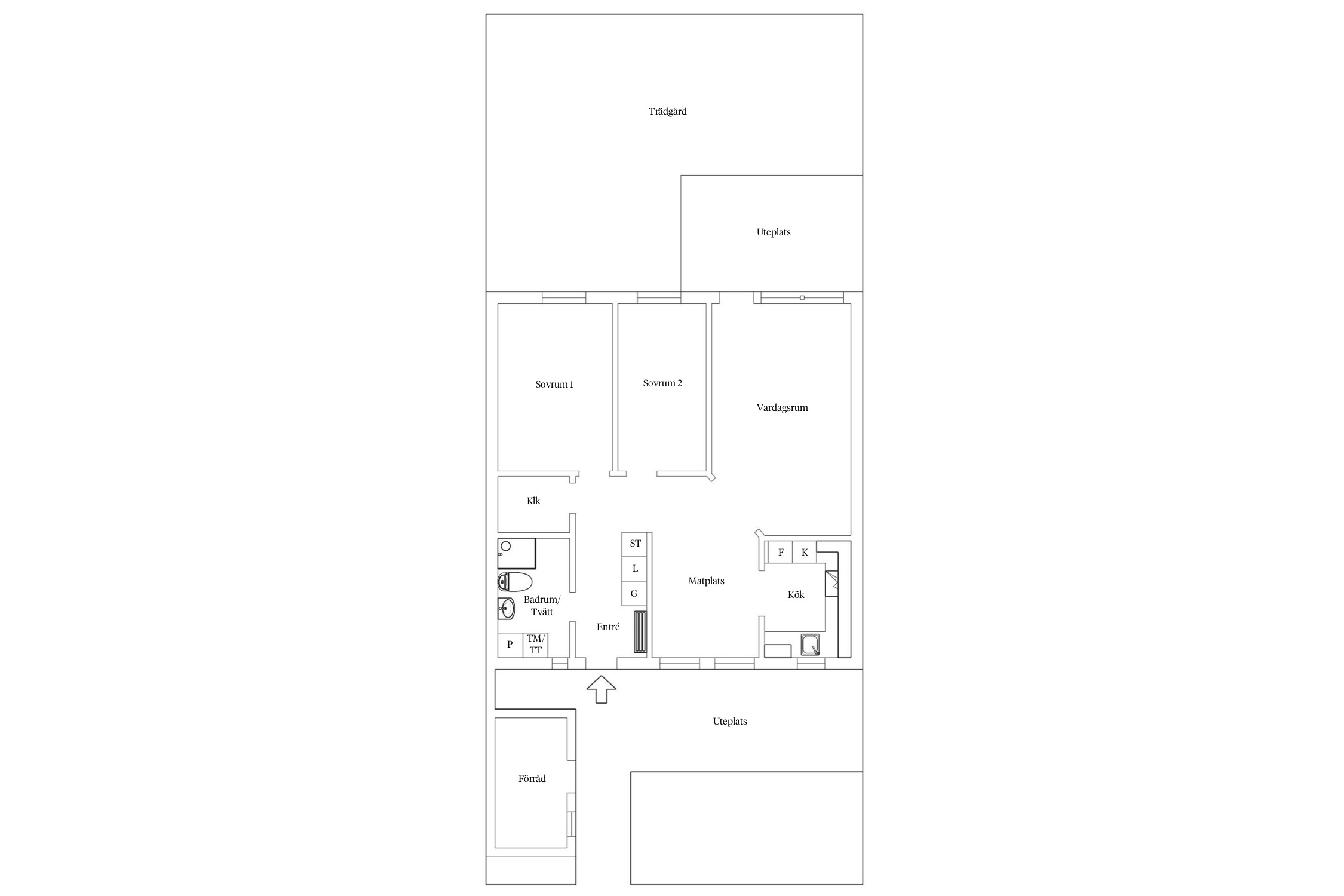
1-plans bostadsrättsradhus på omtyckta Änghög
Änghög, Trelleborg
*I avgiften ingår vatten, digital-TV och bredband samt parkeringsplats.
**Areakälla enligt bostadsrättsföreningens mäklarbild/utdrag ur lägenhetsregister.
Bokad visning.
Välplanerat radhus i behov av renovering med två härliga uteplatser, en i öst och en i väst. Lugnt område.
Välkomna till omtyckta Änghög och denna välplanerade marklägenhet i ett plan som erbjuder en genomtänkt planlösning och passar perfekt för dig som söker ett bekvämt boende. Bostaden, som är i behov av större renovering, har ett arbetskök i direkt anslutning till den generösa matplatsen, vilket gör det enkelt att laga mat och samtidigt njuta av sällskapet med familj och vänner.
Vardagsrummet ligger i anslutning till matplatsen och har utgång till uteplatsen på husets baksidan. Denna uteplats erbjuder morgonsol, vilket skapar en perfekt miljö för att njuta av frukosten utomhus eller bara koppla av med en bok under de tidiga timmarna på dagen. De två sovrummen i lägenheten har fönster mot husets baksida.
I hallen finns gott om garderober samt en praktisk klädkammare som ger bra förvaringsmöjligheter. Badrummet är i originalskick med plastmatta på golvet och våtrumstapet på väggarna och har dusch, toalett handfat, tvättmaskin, torktumlare och gaspanna.
På framsidan av lägenheten finns ytterligare en uteplats i västerläge som fångar kvällssolen, perfekt för att avsluta dagen med middag utomhus eller bara njuta av kvällssolen.
Området där denna marklägenhet ligger är lugnt och fridfullt, men ändå nära till allt man kan behöva i vardagen. Det finns affärer på bekvämt avstånd för alla dagliga inköp samt närhet till både förskola och skola, vilket gör det idealiskt för familjer. För den sportintresserade finns även idrottsplats i närheten där man kan delta i olika aktiviteter.
Grönområden omkring erbjuder härliga promenadstråk och dessutom ligger centrum på behagligt avstånd, så man har alltid nära till stadens puls när man önskar mer liv och rörelse.
Välkommen på visning!
Hall:
Plastmatta och målad tapet på väggarna. Förvaring: Garderober samt en klädkammare.
Matplats:
Plastmatta och målad tapet på väggarna.
Kök:
Originalkök med vita släta luckor, laminatbänksskiva/rostfri diskbänk och vit kakel. Den maskinella utrustningen består av spis/häll, kyl och frys (årtal okänt på samtliga vitvaror)
Vardagsrum:
Parkettgolv och målad tapet på väggarna. Härifrån finns utgång till uteplatsen på husets baksidan.
Sovrum 1:
Plastmatta och målad tapet på väggarna. En garderob.
Sovrum 2:
Plastmatta och målad tapet på väggarna.
Badrum/Tvätt:
Badrum med plastmatta och våtrumstapet, inrett med toalett, dusch, handfat, badrumsskåp samt tvättmaskin, torktumlare (årtal okänt på samtliga vitvaror). Gaspanna.



Drivhuset 6
*Areakälla enligt bostadsrättsföreningens mäklarbild/utdrag ur lägenhetsregister.
I avgiften ingår vatten, digital-TV och bredband samt parkeringsplats.
Förråd finns i anslutning till bostaden.
Uteplats och terrass i både öst och väst.
Marken i anslutning till bostaden är upplåten med nyttjanderätt.
Bostadsrättens indirekta nettoskuldsättning baseras på föreningens skulder/lån minus föreningens räntebärande tillgångar och likvida medel. Beräkningen är gjord via Bopedia. För mer information kontakta ansvarig fastighetsmäklare.
Trelleborgs Energi
Elnät och Elhandel under 2024:
- Verklig årsförbrukning 2 231 kWh
- Verklig årskostnad 8 605 kr
Eon och Nordion Energi
Uppvärmning Gas:
Förbrukning (gas) för 2024 är på 8 753 kWh. Den exakta uppvärmningskostnaden har ej gått att få fram och har därför schablonberäknats.
Nuvarande ägare har IF som försäkringsbolag och betalar 1 468 kr/år inklusive bostadsrättstillägg.
*Betalas av köpare
Föreningens verksamhet omfattar förvaltningen av fastigheterna Plantan 1, Drivbänken 1, Drivhuset 5 och Drivhuset 6. Dessa innehåller 54 marklägenheter från 2 rum och kök till 4 rum och kök.
Fastigheten är utrustad med individuella gaspannor för uppvärmning. Byte till annat uppvärmningssystem är inte tillåtet, utan befintlig lösning med gaspanna ska behållas.
Ekonomisk förvaltning via HSB.
Köparen/köparna måste vara medlemmar i HSB Malmö innan beslut om medlemskap i föreningen tas. Ansökan om medlemskap görs på https://blimedlem.hsb.se. HSB tar ut en avgift för medlemskap.
Föreningen kommer att höja avgiften med 3% 2026-04-01. (Kontrollerat 2026-02-22)
Fastigheterna är fullvärdesförsäkrade i Länsförsäkringar. I försäkringen ingår styrelseansvar. Hemförsäkring tecknas och bekostas individuellt av bostadsrättsinnehavarna, kollektivt bostadsrättstillägg ingår i föreningens fastighetsförsäkring.
Utförda renoveringar:
2012 Inplåtning av fasader på 2-planshus
2015 Förbättring av utemiljöerna
2016 Spolning av avlopp i samtliga lägenheter. Samtliga tak tvättades
2017 Målning av carportar, förråd mm
2021 Spolning av rör till samtliga fastigheter, mossbehandling av samtliga tak
2023 Målning av förråd
2025 Belysning i området är utbytt
Planerade renoveringar:
2026-2029 Bytte av värmeledningar, radiatorer och ytterdörrar kommer även under denna perioden enligt föreningen underhållsplan.
Föreningen har en underhållsplan som redovisar fastighetens underhållsbehov. Underhållsplanen används både för planering av tekniskt underhåll och för ekonomisk planering.
(Kontrollerat 2026-02-22)
Det finns en parkeringsplats till varje lägenhet.
Föreningen har även 7 extra parkeringsplatser som går att hyra för 100 kr/månad. I dagsläget är det kö. (Kontrollerat 2026-02-22)
Det finns fiber i fastigheten. Föreningen har digital-TV (grundutbud) och bredband (100/100) via Telia som ingår i avgiften.
HSB Brf Änghög och HSB Brf Drivhuset delar på en kvartersgård. Anläggningen finns i en byggnad som ägs av Brf Änghög. Kostnader och intäkter fördelas efter antal lägenheter. För bokning av kvartersgård kontakta vicevärd för kvartersgården.
Föreningens hemsida: https://www.hsb.se/malmo/brf/drivhuset/.
Information som berör föreningen är inhämtad via årsredovisning, stadgar och kontakt med föreningen. Avvikelser kan förekomma och som köpare uppmanas du att själv kontrollera samtliga uppgifter, framförallt om något är av extra stor betydelse för dig som köpare.
Enligt överenskommelse
Trelleborg är inte bara centralort i Trelleborgs kommun utan även staden som infriar många människors stora dröm – att få äga ett boende nära havet. Den tre mil långa vackra kusten ger flera boendemöjligheter som du bara kunnat drömma om!
Grönområden och parker finns det gott om i denna delen av Trelleborg. Promenera i alléerna i Östervångsparken och spana in de vackra träden och de fina rosenrabatterna. En ypperlig plats för en medhavd picknik under vår- och sommarmånaderna, då även barnen kan plaska i bassängen som finns belägen i parkens ena del.
För den som vill ha en aktiv fritid erbjuder Trelleborg mycket. Med bland annat närhet till Vångavallen, som ju är hemmaplan för Trelleborgs FF och IFK Trelleborg men också Söderslättshallen där de flesta arrangemangen kring inomhussport i staden hålls.
I norra delarna av Trelleborg finns gott om förskolor/skolor med bra renommé. Därav har detta blivit ett område där flera barnfamiljer väljer att slå sig till ro.
Granlunda med dess lugna omgivning är enligt många ett av Trelleborgs absolut bästa bostadsområden med trevliga grönområden, lekplatser, promenadstråk och koloniområden.
Ett annat fridfullt område i utkanten av staden ärKnäckekärr, perfekt för familjer med nära till skolor och till centrum.
Lillevång har det bästa läget om man pendlar. Korta gång/cykelavstånd till busshållplatser. För övrigt ett lugnt och populärt område som uppkom i början av 90-talet, med tillgång till mindre mataffärer och pizzeria. Här brukar man ibland arrangera vårfester.
Prästahejdan ett bostadsområde som byggdes under 1970-talet och som idag har störst fokus på det klassiska kedjehuset.
Från den norra delen av Trelleborg tar du dig smidigt in till centrum med buss eller cykel, där ett stort urval av butiker, restauranger, caféer och service väntar.
Vill du köpa, sälja eller värdera bostad i Änghög? Kontakta Bjurfors mäklare i Trelleborg! Passa också på att anmäla dig till vår kostnadsfria söktjänst Boagenten som hjälper dig att hitta ditt drömboende.
Kontakta mäklaren om du behöver hjälp att ta fram en boendekalkyl.
När du köper din bostad genom Bjurfors kan du ansöka om bolån till en förmånlig ränta hos vår samarbetspartner SEB.
Bokad visning.
Ansvarig mäklare