-
Köpa
Köpa -
Sälja
Sälja - Hitta bostad
- Skapa bevakning
- Hitta mäklare
Havsnära familjevilla med modern känsla, välplanerad planlösning, underbar tomt i väst & havsutsitk!
Gislövs läge, Trelleborg
*Areauppgifter enligt säljaren, enligt taxeringsinformationen är boarean 184 kvm och biarean 53 kvm.
Bokad visning.
På Förhand ligger bostäder som av olika anledningar inte är ute till försäljning just nu men som kan komma att säljas om förutsättningarna är rätt.
Modern familjevilla med havsutsikt, stora sociala ytor, 5 sovrum och uppvuxen trädgård i soligt läge. Lugnt område nära småbåtshamn och skola.
Välkommen till ett mycket attraktivt och rofyllt läge endast ett stenkast från havet, med närhet till charmig småbåtshamn, café, restauranger, skola och goda kommunikationer. Här erbjuds ett välplanerat och smakfullt hem med moderna kvaliteter, stora sociala ytor och havsutsikt från båda planen. Totalt disponeras huset i 8 rum varav 5 sovrum.
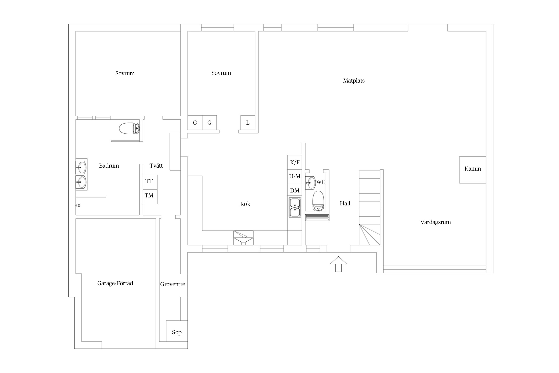
Entréplan
Generöst entréplan med stora, ljusa sällskapsytor där en täljstenskamin skapar både karaktär och trivsam värme. Köket är rymligt och funktionellt med bra arbetsytor och förvaring. Master bedroom är elegant renoverat med eget smakfullt badrum. Här finns även ytterligare ett sovrum/kontor, gäst-wc samt tvättstuga med separat grovingång och direkt access till garage.
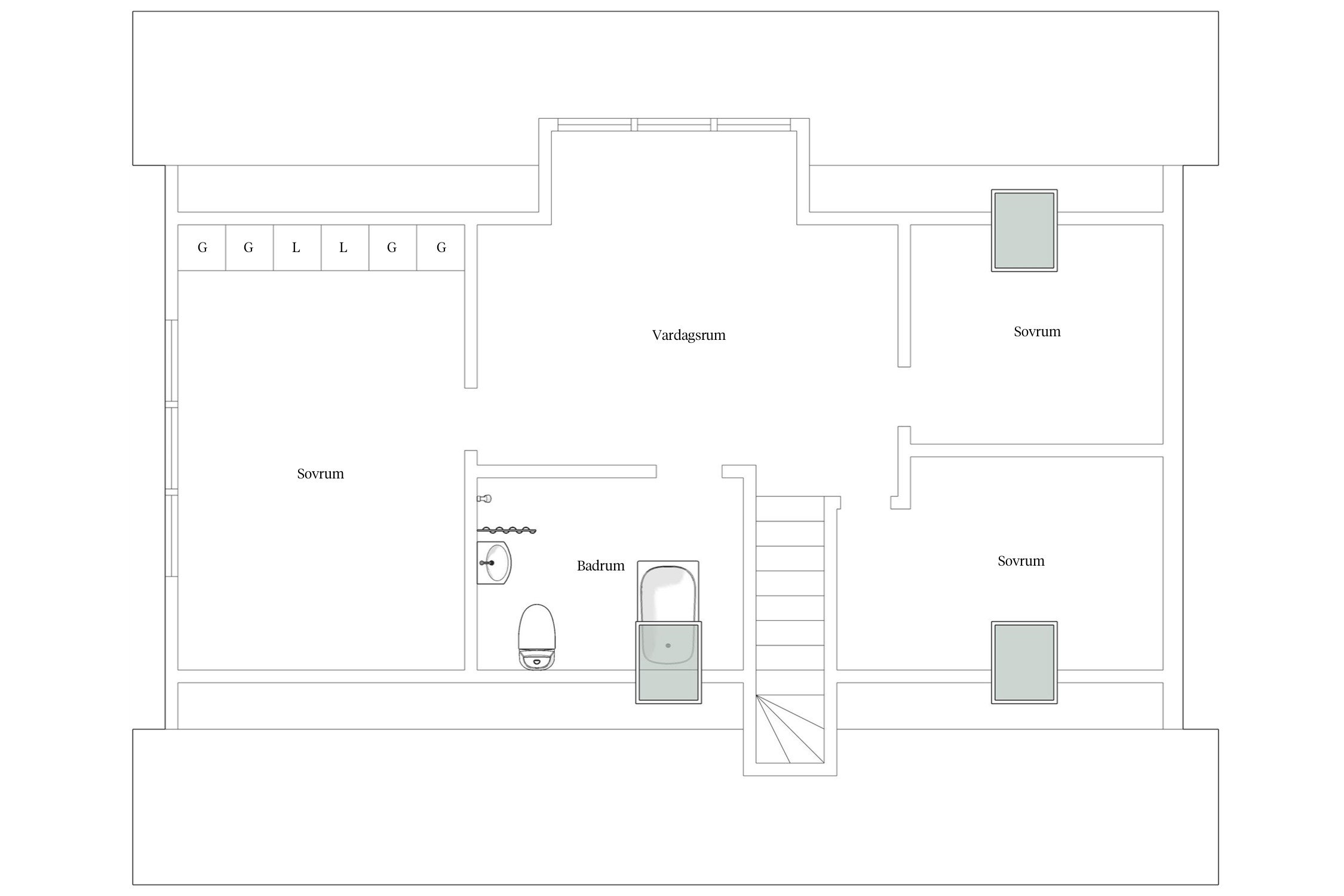
Övre plan
Övre plan erbjuder tre fina sovrum och ett allrum med stor kupa som skapar fin yta, perfekt som barnens egen sällskapsdel. Dessutom finns ett stort badrum med både badkar och dusch.
Trädgård och utemiljö
Den uppvuxna trädgården är professionellt anlagd med flera soliga uteplatser i både öst-, väst- och söderläge. Här finns även en uppskattad vinkällare och trädgården ligger skyddad från havsvinden, vilket skapar en varm och inbjudande utemiljö.
Sammanfattning
En modern och mycket trivsam familjevilla i ett eftertraktat och lugnt läge nära havet. Generösa sociala ytor, fem sovrum, väl omhändertagen både interiört och exteriört samt närhet till allt som gör vardagen bekväm.
Entré
Välkomnande entré med parkettgolv och bredspacklade, målade väggar. Praktisk förvaring i form av klädhängare.
Gästtoalett
Belägen i anslutning till entrén. Utrustad klinker på golv och målade väggar, inrett med toalett och vask. Perfekt för både vardag och besök.
Vardagsrum/Matrum
Generösa sällskapsytor med parkettgolv och målade väggar. En vacker täljstenskamin skapar trivsam värme och karaktär. Härifrån nås trädgården i västerläge, idealisk för eftermiddags- och kvällssol.
Kök
Stilrent vitt HTH-kök med kakel längs arbetsbänken i ek. Maskinell utrustning: induktionshäll (Siemens, 2015), varmluftsugn (Siemens, 2015), mikro (Siemens, 2015), kyl/frys (Siemens, 2022), fläkt (Thermex, 2015) samt diskmaskin (Bosch, 2022) finns även en extra kyl/frys i garaget som ingår. Matplats för ca 6 personer. Parkettgolv och målade väggar.
Sovrum/Kontor
Flexibelt rum som lämpar sig både som sovrum och arbetsrum. Heltäckningsmatta, målade väggar och garderobsförvaring.
Master Bedroom
Rymligt master bedroom med klinkergolv och målade väggar samt god garderobsförvaring. Direkt access till eget badrum.
Badrum (entréplan)
Stilrent badrum totalrenoverat 2022. Klinkergolv med elgolvvärme och målad puts på väggarna. Spotlights i tak. Utrustat med toalett (Duravit, 2022), handfat och badrumsskåp (Macro Crown, 2022), dusch (Vola, 2022) samt eldriven handdukstork. Kvalitetsdokument finns.
Tvättstuga
Praktisk tvättstuga med klinkergolv och putsade, målade väggar. Utrustad med tvättmaskin (Bosch, 2022) och torktumlare (Bosch, 2022). Grovingång för extra funktionalitet.
Övre plan
Sovrum
Tre trivsamma sovrum, varav ett idag används som walk in closet. Samtliga med heltäckningsmatta, målade väggar och garderobsförvaring.
Allrum
Parkett och målade väggar. Ljust och luftigt allrum idealiskt som barnens egna sällskapsyta. Härlig kupa som ger generöst ljusinsläpp och fin rymd.
Badrum (övre plan)
Stort badrum renoverat 2015 med kaklade och målade väggar samt klinkergolv med elgolvvärme. Spotlights i tak. Utrustning: toalett (IFÖ, 2015), bubbelbadkar (Westerbergs, 2015), handfat (IFÖ, 2015) samt dusch (Mora, 2015).



Entréplan
Ovanvåning
Forellen 2
*Areauppgifter enligt säljaren, enligt taxeringsinformationen är boarean 184 kvm och biarean 53 kvm.
- elen bytt 2018-2024
- jordfelsbrytare finns
- larm finns via leasingavtal
2025
- husets fasad målas utvändigt
2023
- bredspacklade och målade merparten av ovanvåningen
2022
- byggnation och renovering av nytt badrum/sovrum och tvättstuga
- kakel och klinker, murning/putsning av nytt badrum, sovrum och tvättstuga
- installerat ny värmepump
2018-2024
- merparten av elen nydragen
2018
- bredspacklade alla väggar och målade
ca 2015
- nytt tak (och kupa) på hela fastigheten
Trädgården är professionellt anlagd och insynsskyddad med staket och lummiga häckar. Här finns fruktträd, trädgårdsland och tre härliga uteplatser i öst-, väst- och söderläge som gör det enkelt att följa solen hela dagen. Havsutsikten ger en vacker inramning och en markis ger skön skugga när så önskas. En harmonisk och väl genomtänkt utemiljö för både avkoppling och umgänge.
Kommunalt vatten, Kommunalt avlopp.
Garage samt uppställningsplats.
Elbilsladdare finns vid garageuppfarten.
Stadsplan (1987-05-26)
TV-antenn
Fiber
Elbolag: Trelleborgs Energi
Elförbrukning 2024: totalt 16351 kWh/ totalt 36.245 SEK inkl. elnät.
Elförbrukning 2025-01-01 - 2025-11-30, 14506 kWh/ ( elnät: 16.948 SEK samt elhandel 19.256 SEK )
Det finns 8 st pantbrev uttagna om sammanlagt 7 180 000 kr
Längs Trelleborgs kommuns västra kust, bakom de gula böljande rapsfälten, dyker de små idylliska samhällena upp efter varandra. Här infinner sig genast känslan av ett väl bevarat kulturarv och de gemensamma nämnarna för dessa områden blir såklart närheten till havet och den vackra naturen.
Skåre är en av de mest kända platserna som verkligen lyckats bevara lugnet. Här kan du lyssna på vågskvalpet från fiskebåtarna och blicka ut över de charmiga vitputsade husen med tjärade papptak.
Bara några kilometer därifrån hittar vi jordbrukssamhället Maglarp som ligger på slättlandet mellan Skåre och Trelleborg och har både vindkraftverk och flygfält. Orten har varit bebodd under lång tid och har bland annat en av nordens äldsta stenkyrkor, Maglarps kyrka, som byggdes redan på 1100-talet.
Öster om Trelleborg finner vi Gislövs läge, som också är ett av sydkustens gamla fiskelägen. I denna lilla idyll vandrar du lätt ner till kustens största gästhamn, Gislövs hamn, där ett populärt säsongsöppet hamncafé serverar kaffe, glass och mackor. Från Gislövs läge tar du dig till Trelleborg med bil eller buss på cirka 10 minuter.
Nytillskottet bland dessa kustpärlor är Stavstensudde som ligger i ett gammalt kulturområde. Perfekt läge för den golfinbitne som här hittar en populär 18-håls linksbana som smälter in i den vackra miljön.
Simremarken är också en plats värd att nämna. Ett lugnt barnvänligt villaområde som ligger precis vid havet med närhet till både skola, förskola och badplatser.
Sydkusten är verkligen en fantastisk naturskön del av Skåne och året runt kan du njuta av vad naturen har att erbjuda.
Förutom att flera busslinjer trafikerar Sydkusten så finns även Sydkustleden, en cykelbana på närmare 47 km utmed hela kusten som inbjuder till stora möjligheter för friluftsliv och utflykter. Sydkustleden är även ett utmärkt val när det kommer till miljövänlig pendling till och från jobb.
Vill man vara aktiv så finns här bland annat golf- och tennisbanor, brukshundsklubb och fiske, samtidigt som närliggande Trelleborg erbjuder ett stort nätverk av idrottsklubbar och friluftsaktiviteter. Längs sydkusten finns en del caféer och restauranger, inredningsbutiker och museer, men det blir Trelleborg man besöker för ett bredare utbud av service, gallerior och de större matvarukedjorna.
Vill du köpa, sälja eller värdera bostad i Gislövs läge? Kontakta Bjurfors mäklare i Trelleborg! Passa också på att anmäla dig till vår kostnadsfria söktjänst Boagenten som hjälper dig att hitta ditt drömboende.
Kontakta mäklaren om du behöver hjälp att ta fram en boendekalkyl.
När du köper din bostad genom Bjurfors kan du ansöka om bolån till en förmånlig ränta hos vår samarbetspartner SEB.
Bokad visning.
Ansvarig mäklare