-
Köpa
Köpa -
Sälja
Sälja - Hitta bostad
- Skapa bevakning
- Hitta mäklare
Modern poolvilla med milsvid utsikt och magiska solnedgångar
Klagstorp, Trelleborg
*Areauppgifter enligt taxeringsinformationen
Lantligt läge med hänförande vyer över den skånska slätten mellan Äspö och Klagstorp strax norr om Smygehamn
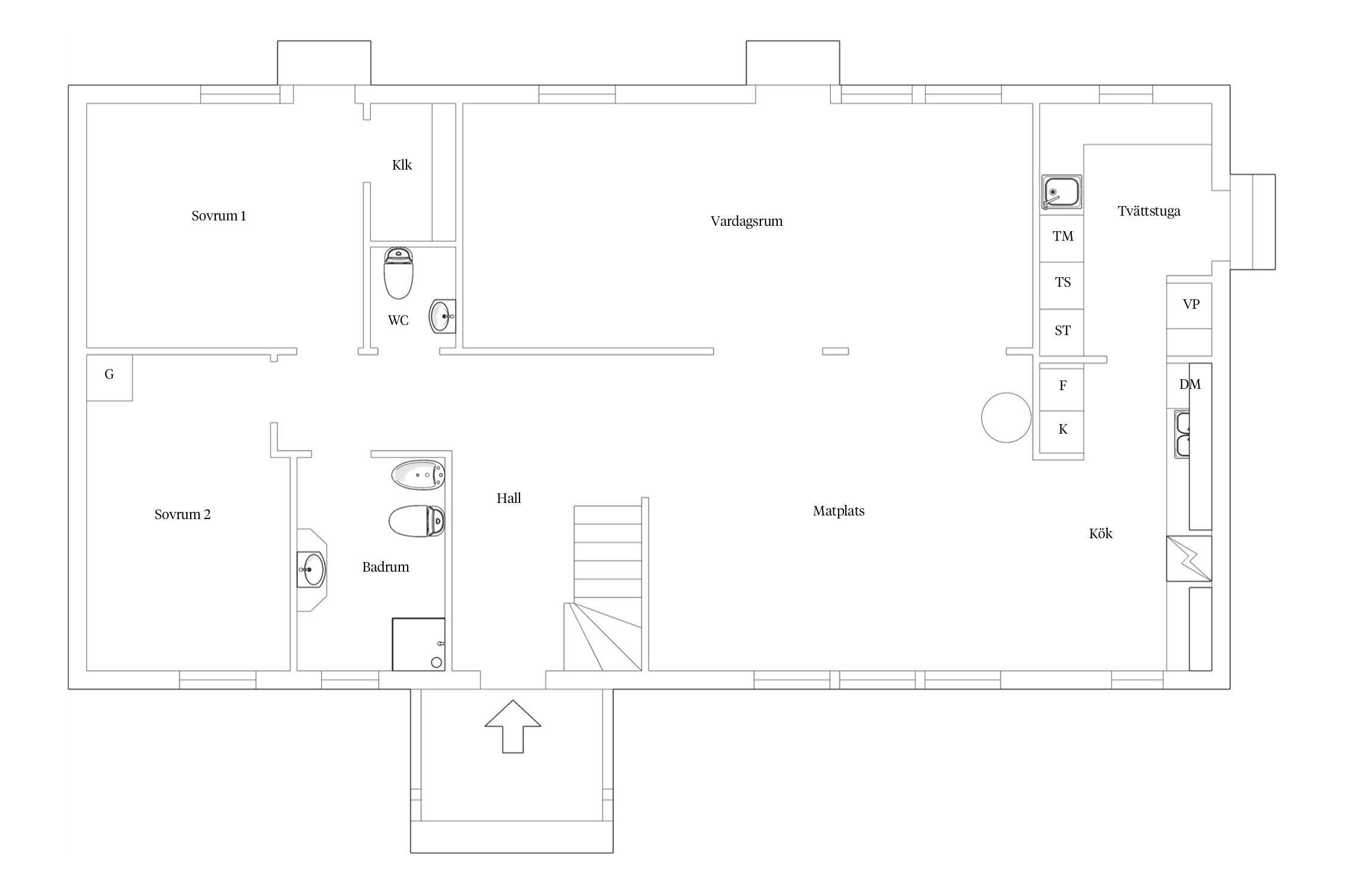
Smakfull och välplanerad villa på lugnt och idylliskt läge med närhet till strand, hav och natur. Huset som uppfördes 2010 har en boyta på 185 kvm med 6 rum varav 4 sovrum samt ett integrerat dubbelgarage på 45 kvm.
Interiört väntar stilrena färgsättningar och vackra materialval som skapar alla förutsättningar för att ni skall trivas. De välplanerade kvadratmetrarna erbjuder en modern planlösning och inrymmer välkomnande huvudentré med trappan till övre plan, ljust vardagsrum med utgång till uteplats och trädgård, matrum med braskamin i öppen planlösning med kök och vardagsrum, smakfullt kök med bra arbetsytor och gott om förvaring, grovkök med utgång till dubbelgaraget, två bra sovrum varav ett med klädkammare, ett helkaklatbadrum med dusch samt en gästtoalett. Övre plan inrymmer allrum med fantastisk utsikt över rapsfälten, två bra sovrum varav det ena har utgång till balkongen i söder, klädkammare bakom skjutdörrar samt ett helkaklat badrum med dusch.
Generös tomt inramad av ett vitt staket, härligt trädäck i olika nivåer med pool, spabad, pergola och flera uteplatser att njuta av i både sol och skugga. De generösa sociala ytorna med pool och spabad bjuder på hemmalyx tillsammans med vänner och familj eller så njuter du av egentid med en bra bok i solstolen och ett efterföljande dopp i poolen.
Huset är beläget på Skånes sydkust mellan Äspö och Klagstorp strax norr om Smygehamn och med närhet till Sveriges sydligaste golfbana i Beddingestrand. I Smygehamn/Beddingestrand finns allt du kan önska - härliga badstränder, skola, golfbana, tennisbana, vacker natur, café samt affärer och flera restauranger. Förutom de vackra omgivningarna och det idylliska läget har man bra pendelavstånd till Ystad, Trelleborg, Sturup, Malmö och Köpenhamn. På Sveriges sydligaste udde, Smygehuk, lockar Rökeriet med sina delikatesser. Dessutom finns det ett rikt kulturutbud med bl. a konstutställningar och jazzkvällar på Köpmansmagasinet i Smyge.
Varmt välkommen till ett underbart hus på en vacker plats med hänförande vyer och magiska solnedgångar!
ENTRÉPLAN
Bostaden erbjuder huvudentré/hall med klinkers/ekparkett på golvet, vitmålade väggar/fondvägg träpanel och trappan som tar er upp till övre plan.
Till höger om entrén/hallen ligger matrum och vardagsrum i öppen planlösning med köket. Här finns en mysig braskamin, väggarna är vitmålade med en svart fondvägg (träpanel) bakom braskaminen och på golvet ligger ekparkett. Runt matbordet får det plats många när det bjuds till fest.
Det smakfulla köket (IKEA 2017) har vackra grå luckor, ljus bänkskiva i sten, vit kakel och grå klinkers på golvet. Utrustningen består av häll, kombinerad ugn/mikrovågsugn, kyl, frys, diskmaskin och fläktkåpa (allt från IKEA 2017).
Från köket når ni groventrén som har utgång till garaget. Här ligger plastmatta på golvet och väggarna är vitmålade. Utrustningen består av tvättmaskin och torktumlare (Siemens 2017), torkskåp (2010), tvättho och avlastningsbänk.
Till vänster i hallen ligger två av husets sovrum varav det ena har klädkammare samt utgång till trädäck och trädgård. Här ligger ekparkett på golvet och väggarna är vitmålade. Här ligger även en gästtoalett samt ett helkaklat badrum med dusch, handfat, badrumsskåp och toalett (2010).
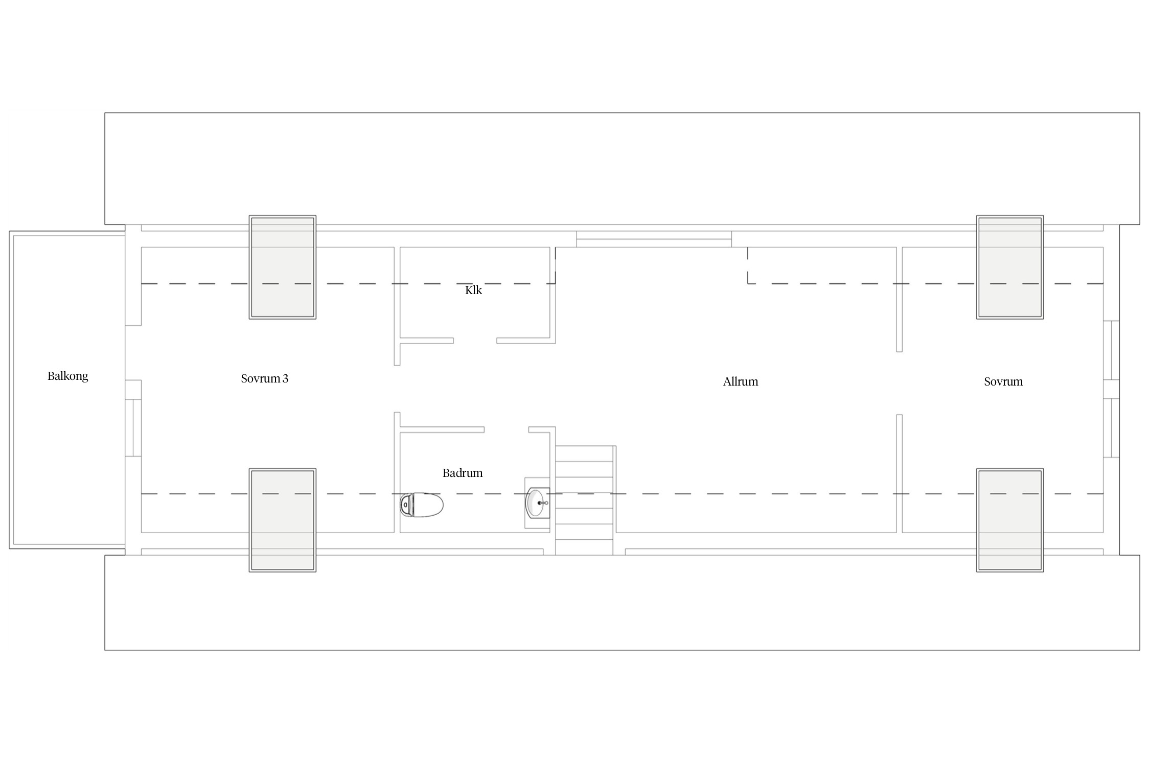
ÖVRE PLAN
På övre plan erbjuds ni ett härligt allrum med magisk utsikt över rapsfälten. Här ligger ekparkett på golvet och väggarna är vitmålade.
De båda sovrummen ligger på var sin gavel varav det ena har utgång till den mysiga balkongen med söderläge. I sovrummen ligger det ekparkett på golvet och väggarna är vitmålade. I anslutning till det större sovrummet finns även en klädkammare bakom skjutdörrar i spegelglas.
Badrummet på övre plan (renoverat 2016) är helkaklat och har dusch, handfat, badrumsskåp, handdukstork, toalett och spottlights i taket.



Klagstorp 3:139
*Areauppgifter enligt taxeringsinformationen
2017 Kök
2017 Hall/entré
2017 Panelvägg bakom kamin
2017 Ov sovrum till höger (vägg)
2017 Förlängning vägg vardagsrum
2018 Gjutit platta för spa
2018 Utbyggnad av trädäck runt spa
2018 Utjämnat gräsmattan och sått gräs
2018 Vedskjul på kortsidan
2018 Renoverat och servat värmepannan
2021 Pool + nytt trädäck
2022 Målat om fasaden/huset
2017-2025 Diverse målning inomhus
2025 Renoverat och servat värmepannan
Dubbelgarage, förråd, vedskjul
Trädäck i olika nivåer och väderstreck.
Kommunalt vatten, Kommunalt avlopp.
Generös trädgårdstomt med trädäck, pool, spabad, staket, fruktträd, gräsmatta och uppfart med singel.
Dubbelgarage och generös uppfart/gårdsplan
Vattenskyddsområde (1973-11-27)
Last: Avtalsservitut Ledningar för vatten och avlopp, 12-IM2-85/8728.1
Fiber
Fiber
Avtalsservitut Ledningar för vatten och avlopp
Uppvärmningskostnaden är inklusive hushållsel, laddning av 1 elbil samt uppvärmning av pool och spabad. I samfällighetsavgiften ingår vägskötsel och snöröjning.
Enligt överenskommelse
Det finns 2 st pantbrev uttagna om sammanlagt 3 171 000 kr
På Söderslätt, landet mellan Malmö och Trelleborg, kan du uppleva Skåne när det är som allra vackrast. Här kan du njuta av de guldgula rapsfälten och besöka de vackra små byarna som ligger utspridda över slätten ända ner till sydkusten.
Smygehamn är Sveriges sydligaste samhälle som ligger precis vid kusten i Trelleborgs kommun. Orten byggdes upp med hjälp av fiske, handel och kalkindustri. Här finns idag all tänkbar service som skola, bibliotek, servicelägenheter och äldreboende, hotell, restaurang, affärer och idrottsplats.
Omedelbart väster om Smygehamn ligger Skandinaviens sydligaste udde, Smygehuk. Orten sjuder av liv sommartid och här kan du uppleva en mängd utställningar och musikevenemang. Smygehuk är också välkänt för sina många kaféer och matställen, där du kan njuta av typisk skånsk husmanskost såväl som andra menyer.
Beddingestrand är beläget strax öster om Smygehamn. Den gamla fiskebyn har blivit tätort genom att allt fler fritidshus längs kusten har gjorts om till permanentboende. De äldre sommarbostäderna är mycket charmiga och många är unika i sitt slag.
Böste är sydkustens största och mest välbevarade fiskeläge. I Böste finner du en verklig idyll med välrenoverade hus och underbart vackra miljöer. Husen är ofta byggda av putsad och kalkad flintsten. Flintstenen tillsammans med kalkberg utgör berggrunden här.
Bodarp är en av Söderslätts minsta och charmigaste byar, bestående av fyra gårdar och lika många gatehus samt en medeltida kyrka och en gravhög. Byn ligger högt i ett vägkors och härifrån har du en fantastisk utsikt över det skånska landskapet. Bland de trevligaste sevärdheterna i byn kan nämnas Hallongården. Hammarlöv är en genuin by med områdets enda rundtornskyrka. Från Skegrie finns utmärkta förbindelser med Trelleborg, Malmö och Öresundsbron. Området är perfekt om du vill bo ”på landet” men samtidigt ha nära till storstadens alla bekvämligheter.
Vill du köpa, sälja eller värdera bostad i Klagstorp? Kontakta Bjurfors mäklare i Trelleborg! Passa också på att anmäla dig till vår kostnadsfria söktjänst Boagenten som hjälper dig att hitta ditt drömboende.
Kontakta mäklaren om du behöver hjälp att ta fram en boendekalkyl.
När du köper din bostad genom Bjurfors kan du ansöka om bolån till en förmånlig ränta hos vår samarbetspartner SEB.
Ansvarig mäklare