-
Köpa
Köpa -
Sälja
Sälja - Hitta bostad
- Skapa bevakning
- Hitta mäklare
Vacker och gedigen sekelskiftesvilla med många möjligheter!
Trelleborg - Centralt, Trelleborg
*Areauppgifter enligt taxeringsinformationen
På centralt läge ligger denna fastighet försedd med två separata boende. Vackert sekelskifteshus med inrett gårdshus som öppnar upp för möjligheter.
Välkommen till denna vackra sekelskiftesvilla om 227 kvm på centralt men ändå lugnt läge i Trelleborg. Fastigheten är idag fördelat på två separata boende, vilket öppnar upp möjligheten för den som vill hyra ut, söker ett generationsboende eller för den som önskar bedriva verksamhet. Huvudbostaden har varsamt renoverats under de senare åren. Med aktsam hand och med husets ålder som förebild har man lyckats återskapa en känsla som tar en tillbaka till 1900-talets början. De charmiga spegeldörrarna, de fina en- och tvåluftsfönster med tvärpost , den stilfulla kakelugnen och det vackra snickeriet är bara några av de detaljer som bostaden erbjuder. Huvudbostaden är idag inrett med charmigt kök som ligger i anslutning till matrum, mysigt vardagsrum med kakelugn, vacker gästtoalett samt en separat tvättstuga/grovingång från innergården. Den fina trappan som leder upp till ovanvåningen är stilrent utformad och följer samma tidstypiska linje som övriga detaljer i huset. Den mer privata delen finner man på ovanvåningen som består av tre bra sovrum med förvaring, ett allrum och ett stilfullt helkaklat badrum.
Vinkelbyggnaden som nuvarande ägare i dagsläget hyr ut består av ett rejält kök, helkaklat badrum, vardagsrum och två sovrum med förvaring.
Bostaden är verkligen något utöver det vanliga med dess charm och karaktär anno 1909 samtidigt som den erbjuder en standard och kvalité från nu. Bra plats för två bilar på uppfarten, en lättskött trädgård med mysig stenlagd uteplats att umgås i med familj och vänner. Alla bekvämligheter såsom, skolor, förskolor, affärer, kommunikationer, lekplats och centrum finns på gångavstånd. Välkomna på visning av detta underbara sekelskiftes hus!
Via Norregatan välkomnar vackra pardörrar oss in till en entré i fastighetens huvudbostad. Här finns bra plats för avhängning av ytterkläder och via ett trappsteg upp och genom vitmålade dubbeldörrar med vackert glasparti kommer man vidare in till en hall. Praktiskt placerat vid entrén ligger gästtoaletten som stilfullt renoverats med ett klassiskt metrokakel satt i tegelsättning, mönstrad tapet och vackert porslin. Till vänster når man mysigt och ombonat vardagsrum. En underbar plats att umgås med nära och kära i en avstressad och behaglig miljö där en praktfull kakelugn höjer både trivsamheten och värmen till rummet. Önskas större sällskapsrum finns goda möjligheter att öppna upp mot sovrummet som ligger vägg i vägg med vardagsrummet och på så sätt få två vackra rum i fil. Tar man istället höger i hallen når man matrummet som har ett fint ljusinsläpp från tre vackra fönster. Här ges plats att duka upp till flertalet gäster utan att det på något sätt känns trångt. Matplatsen ligger praktiskt placerat i anslutning till köket. Det lantliga köket skänker en hemtrevligt känsla med sina vita köksluckor som snyggt matchar det igenkännande metrokaklet längs den massiva bänkskivan i ek. Köksinredningen är utformad i vinkel och här finns gott om förvaring och arbetsytor samt trevlig placerade fönster, ett vid diskhon och ett vid platsen för matbordet. Husets grovingång når man från innergården som först leder in till en hall med trappa ner till källaren och sen vidare till tvättstuga med förvaring, avlastningsyta samt en bra plats för klädavhängning. Källaren är utgrävd och har bra takhöjd. Här finns två bra förvaringsrum.
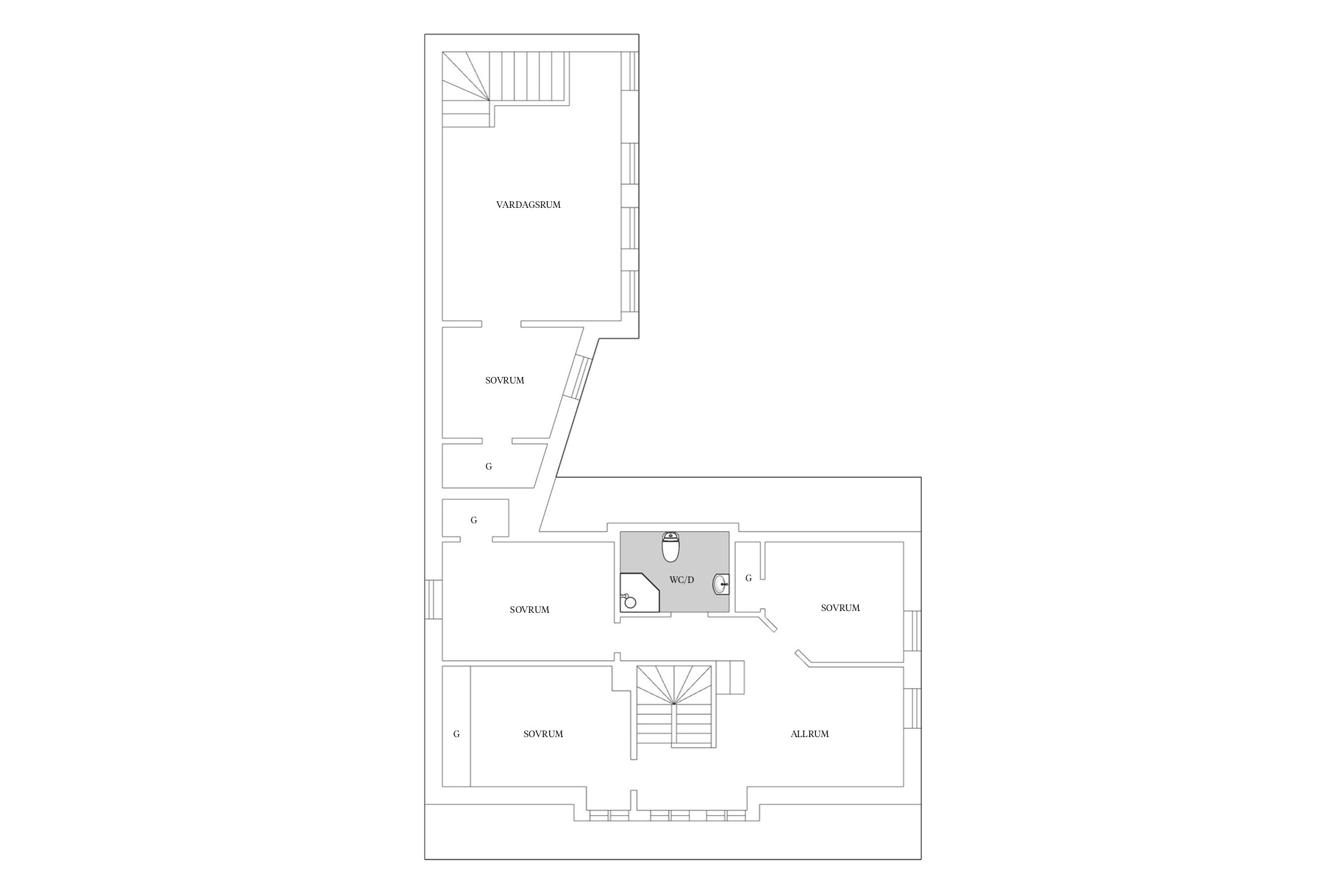
Den mer privata delen når man på ovanvåningen som nås via en trappa från entréhallen. Även detta plan genomsyras av den charmiga sekelskifteskänslan och består idag av tre smakfullt renoverade sovrum, mysigt allrum och ett helkaklat badrum med dusch.
Den andra bostaden, det så kallade gårdshuset når man från Norra Vallgatan och här välkomnas man in till en hall med trappa till ovanvåningen samt ett helkaklat badrum med dusch och tvättmöjligheter. Till vänster ligger stort kök med rejäl matplats därefter når man ett rymligt sovrum. Ovanvåningen består av ett stort vardagsrum och ytterligare ett sovrum.
HUVUDBYGGNAD
Både entréplan och ovanvåningen är försett med vattenburen golvvärme.
Entré:
Stilrent och praktiskt svart/vit-rutig klinker med målade väggar och tapet.
Matrum:
Massiv furu på golv och ljusa väggar. Fint ljusinsläpp från fönster i två väderstreck.
Kök:
Välplanerat och arbetsvänligt kök med stomme från Ikea och fina, lantliga köksluckor från Askelin Köksdesign. Gott om förvaring och arbetsytor.
Den maskinella utrustningen består av: ugn med spishäll (Electrolux) kombinerad kyl och frys (Gorenje, 2016), mekanisk fläkt (Goronje, 2010) samt diskmaskin (Logik, 2022). Fin matplats för 3-4 personer. Klinker på golv med golvvärme (vattenburen) och fint pärlspont och vacker tapet på väggarna.
Vardagsrum:
Massiv furu på golv och målade väggar. Här finns även en kakelugn placerad.
Gästtoalett:
Renoverat 2016 med halvkaklade väggar, klinker på golv och stilfull tapet på väggarna. Inrett med vattenburen golvvärme, toalett (Svedberg, 2016) och handfat (Heritage, 2016).
Tvättstuga/grovingång.
Separat tvättstuga med klinker (vattenburen golvvärme) och målade väggar. Inrett med tvättmaskin (Samsung, 2020) förvaringsskåp, avlastningsyta och vask. Renoverat 2010. Finns utgång till innergården, perfekt sommartid när man vill hänga ut tvätten.
OVANVÅNING
Allrum:
Ljusmålade väggar och massiv furu på golv.
Sovrummen:
Samtliga tre sovrum har ljusa väggar, massiv furu på golv och förvaring.
Badrum:
Helkaklat badrum med klinker (vattenburen golvvärme). Inrett med toalett (Svedberg, 2014), handfat (Svedberg, 2014), dusch, badrumsskåp (Svedberg, 2014) samt förvaringsbyrå (Ilva, 2014). Renoverades 2014.
KÄLLARE:
Utgrävd källare med bra takhöjd, klinker på golv och väggarna är vitkalkade.
Här finns pannan, en brunn med pump (aldrig använd) samt en extra kyl/frys.
GÅRDSHUS
Både entréplan och ovanvåningen är försett med vattenburen golvvärme.
Entré:
Klinker på golv och tapet på vägg.
Kök:
Stort kök med köksinredning från Ballingslöv, mönstrad kakel längs bänkskivan, klinker på golv och tapet på väggarna.
Sovrum bottenvåning:
Klinker på golv, tapet på väggarna och garderober.
Badrum:
Helkaklat badrum med klinker. Inrett med duschkabin, toalett, handfat, grovvask och tvättmaskin (2012).
Vardagsrum:
Ljusa väggar och laminat på golv.
Sovrum på ovanvåning:
Målade väggar och laminat på golv samt en klädkammare.



Entréplan
Ovanvåning
Alternativ planlösning
Norreport 8
*Areauppgifter enligt taxeringsinformationen
2001-2003
- el bytt samt installerat jordfelsbrytare
2010
- nytt kök
- ny tvättstuga
- anlagt trädgård
- nya fönster i huvudbyggnad
- dränering på norrsidan samt förstärkt med betong
2012
- nytt golv och tapet matrum och vardagsrum
2014
- nya golv på ovanvåning
- nytt badrum på ovanvåning
- nya fönster i andra gårdshuset
- dränering framsidan samt förstärkt med betong
2016
- ny trappa till ovanvåning
- installerat kakelugn
- renoverat gästtoaletten
(ovannämnda renoveringar är gjorda av tidigare ägare)
Hörntomt med två separata uteplatser.
Kommunalt vatten, Kommunalt avlopp.
Uppställningsplats för två bilar.
Tomtindelning (1945-09-25) Stadsplan (1945-04-06)
Öppenfiber finns indraget via Telia. Leverantör idag: Bahnhof, hastighet: 10 Gbit.
Driftskostnaderna baseras på två hushåll varav det ena hushållet består av två vuxna och två barn och det andra två vuxna och ett barn.
Uppvärmningskostnaderna ingår även även hushållsströmmen för båda hushållen samt ett elstöd om 25.000:-
kWh/år: ca 3767 samt 27206.
- Dagvattnet från stuprören på innergården är kopplade på kommunens avloppsledning. Dagvattnet från stuprören på huvudhusets framsida är kopplade till kommunens dagvattenledningar.
-Köksavloppet i "huvudbyggnaden" är äldre och anses vara trängre än vanliga avlopp, så vi har därför sett till att underhållsspola årligen för att undvika problem.
- Offert för anslutning till fjärrvärme finns (giltighetstiden har dock utgått, kontakta Trelleborgs Energi för mer information), vilket bör minska driftskostnaderna.
- Vattenburen golvvärme i hela fastigheten. Husen har separata elmätare, men värmepumpen går mot "huvudbyggnadens" elmätare.
- Elen bytt 2001-2003 och jordfelsbrytare finns.
- Gårdshuset hyrs idag ut, vilket ger en hyresintäkt på ca 140 000kr/år.
Det finns 13 st pantbrev uttagna om sammanlagt 3 910 000 kr
”Palmernas stad” eller ”Sydkustens Copacabana” är några av smeknamnen på staden som ligger vid den 3 mil långa kustremsan. Med vyer som får en att tappa andan. I Trelleborg erbjuds ett boende nära havet med bra pendlingsmöjligheter till de närliggande städerna.
När du vandrar längs gatorna i centrala Trelleborg infinner sig genast en historisk känsla. Detta är faktiskt en av Skånes äldsta städer, med anor som sträcker sig så långt tillbaka som till medeltiden. De äldsta bevarade delarna finns kring Gamla torg med charmiga gatuhus i ett och ett halvt plan.
Förutom den sköna kustremsan så ramas Trelleborg in av tätortsnära naturområden som Albäcksskogen, Dalköpinge ängar och Maglarps sandtag. För den som bosätter sig centralt kan en promenad i den romantiska Stadsparken eller en picknick på Östervångsparken stora gräsytor vara ett trevligt alternativ till att avnjuta naturlivet. Vill du uppleva kulturen i staden är ett tips att besöka Trelleborgs Museum och Konsthallen, eller varför inte se en film på Biograf Grand.
För den aktive inbjuder Söderslättshallen till massvis med olika sportaktiviteter med en ishall, bowlinghall, styrketränings- och brottningslokaler, bordtennishall och skjutbana. Badhuset i staden har bland annat två motionsbassänger, äventyrsbad och varmvattenbassäng.
I början av juni planteras flera hundra palmer ut runtom i staden och står framme till dess att den första frosten slår till någon gång i oktober. Därav smeknamnet ”Palmernas stad”. Detta ger Trelleborg en kul, exotisk touch och uppskattas såväl av de boende som av turisterna.
Trelleborgs centrum har på senare år blomstrat upp och idag finns flera olika restauranger, allt från husmanskost, italienskt, japanskt till mysiga caféer. För den som gillar shopping finns köpcentret Valen och ett flertal butiker längs centrumgatorna.
Med stadsbussen pendlar du bland annat enkelt till Malmö, Höllviken, Skanör och Falsterbo. Regionsbussar går till Alstad, Svedala, Lund och Ystad. Pågatågen går en gång i halvtimmen mellan sträckan Trelleborg – Helsingborg och omvänt.
Trelleborg har även ett mycket bra cykelnätverk med fina banor som underlättar för den som vill pendla miljövänligt.
För barnfamiljer kan det vara bra att känna till att det finns flera alternativ till förskolor, bland annat Klämman och Prästkragen. Vid Liljeborgsskolan går elever från årskurs 4-9 och i centrala Trelleborg ligger även Söderslättsgymnasiet.
Ett av Trelleborgs mest genomtänkta bostadsområde är Gula Gården som byggdes i slutet på 60-talet. Här finns bra parkeringsmöjligheter, välskötta innergårdar, trevliga uteplatser med grillmöjligheter och roliga lekplatser för barnen.
Vill du köpa, sälja eller värdera bostad i centrala Trelleborg? Kontakta Bjurfors mäklare i Trelleborg! Passa också på att anmäla dig till vår kostnadsfria söktjänst Boagenten som hjälper dig att hitta ditt drömboende.
Kontakta mäklaren om du behöver hjälp att ta fram en boendekalkyl.
När du köper din bostad genom Bjurfors kan du ansöka om bolån till en förmånlig ränta hos vår samarbetspartner SEB.
Ansvarig mäklare