-
Köpa
Köpa -
Sälja
Sälja - Hitta bostad
- Skapa bevakning
- Hitta mäklare
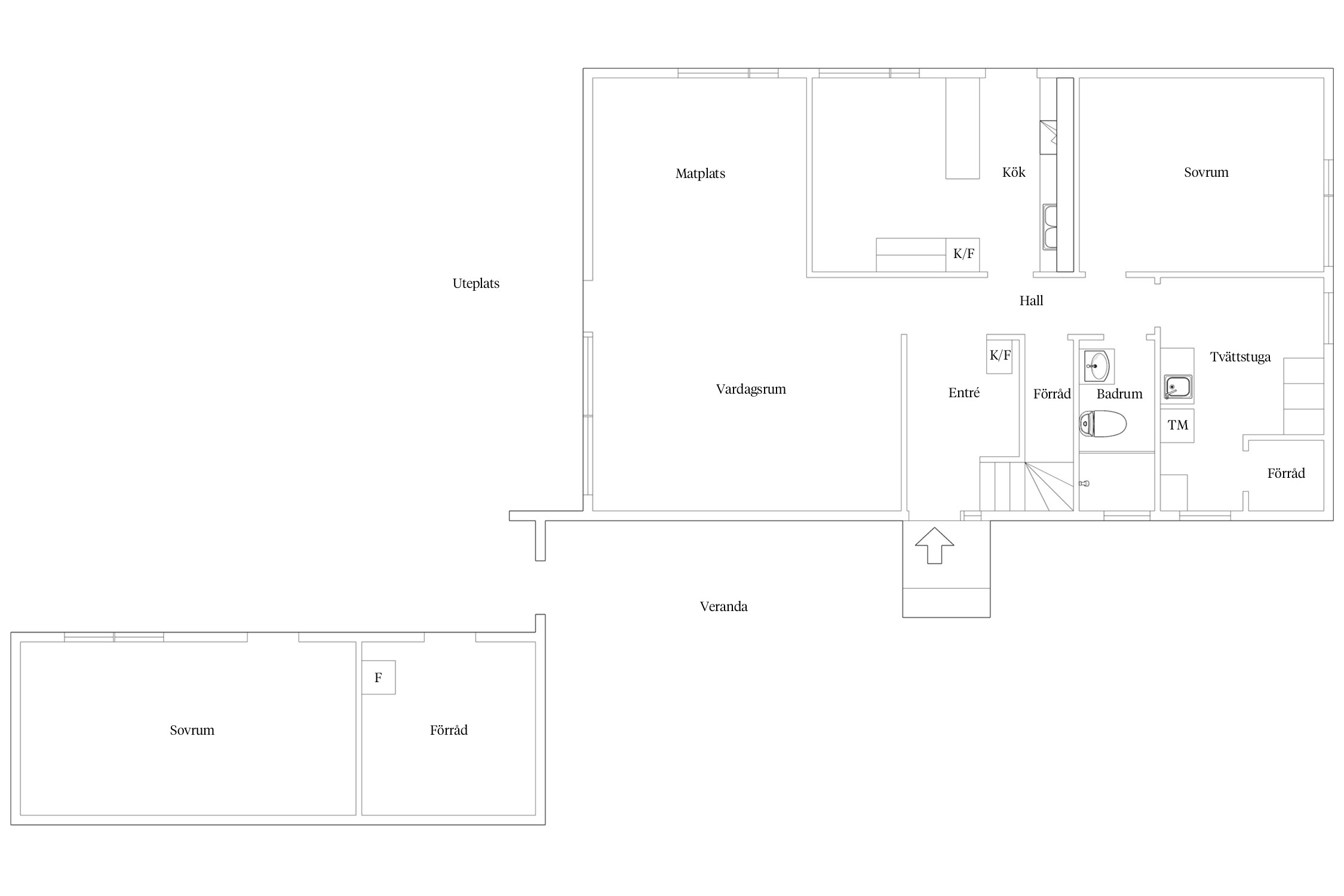
Bellevue, Ystad
*Areauppgifter enligt taxeringsinformationen
På Förhand ligger bostäder som av olika anledningar inte är ute till försäljning just nu men som kan komma att säljas om förutsättningarna är rätt.
Kontakta mäklaren för mer information gällande budgivningen.
Härlig trädgård
Snart kommer denna charmiga en och en halvplans villa ut på marknaden! Villan ligger i ett attraktivt område på bellevue i Ystad. Här erbjuds fyra rymliga sovrum och två badrum, perfekt för familjen eller den aktiva hushållet. Den soliga trädgården i sydvästläge skapar perfekta förutsättningar för utomhusliv, grillkvällar och avkoppling.
I den generösa trädgården finns ett gårdshus som kan användas som gästrum, ateljé eller uthyrningsmöjlighet – ett extra plus för den kreativa eller ekonomiska fördelen. Fastigheten är utrustad med carport och praktiska förråd för förvaring. Visst renoveringsbehov föreligger, vilket ger dig möjligheten att skapa just ditt drömhem med personliga touch. Missa inte chansen att förvärva denna hemtrevliga villa i ett eftertraktat område – ett hem att trivas i för lång tid framöver!



Eberstein 2
*Areauppgifter enligt taxeringsinformationen
Fastigheten säljs med friskrivningsklausul
Gårdshus på ca: 15 kvm
Kommunalt vatten, Kommunalt avlopp.
Trädgårdstomt
Carport
Stadsplan (1972-01-11)
Uppvärmningen ingår i posten för hushållsel.
Det finns 3 st pantbrev uttagna om sammanlagt 363 000 kr
En av de mest populära kommunerna kring Österlenområdet. Här kan du välja att bo ute på den idylliska landsbygden, omringad av fantastisk natur och ändå ha en bekvämlig närhet till shopping, kultur och nöjesliv. Med Ystad som tätort får du dessutom goda pendlingsmöjligheter till de större kringliggande kommunerna, och det bästa av allt är att samtliga mysiga orter har en slående närhet till havet.
Ystads kommun gränsar till Skurup i väster, Sjöbo i norr och i öster Simrishamn och Tomelilla. De små orterna i kommunen bär på en klassisk bo-på-landet-känsla, inbäddade av de karaktäristiska skånska rapsfälten och åkermarkerna som sträcker sig långt bort i fjärran. Samtliga med en fascinerande och lockande närhet till havet. Ingelstorp, Köpingebro, Skårby och Sövestad är några av de pittoreska byarna som är belägna i kommunen.
Sydostkusten går ibland under namnet ”Skånes Riviera”, och med sina vackra vidsträckta exotiska badstränder som exempelvis Sandhammaren, Mälarhusen och Ystad Saltsjöbad, så känns smeknamnet väl befogat. Naturlivet bjuder även in till promenader vid Kåsebergaåsen, Krageholmssjön, Baldringetrakten eller Romeleåsen, där du kan beskåda de vackra betesmarkerna med småvatten och spännande växt- och djurliv. Ett trevligt sätt att upptäcka naturen i Ystad är även att vandra längs den populära Skåneleden. Ystad kommun är dessutom rikt på fornminnen med exempelvis Kåseberga och Ales stenar, charmiga vitmålade 1100-tals kyrkor, men också flera andra historiska platser som Marsvinsholms och Krageholms slott.
För den som pendlar erbjuds smidiga tåg-bussförbindelser, där regionsbussar tar dig till de större kringliggande kommunerna som exempelvis Skurup, Sjöbo eller Trelleborg. Med Pågatågen transporterar du dig enkelt in till Simrishamn på ca 40 min, till Malmö på 50 min och sedan vidare till Köpenhamn för den som önskar. Kommunen har även ett stort välutvecklat nät av fina cykelvägar, vilket underlättar för miljövänliga pendlingsalternativ men också trevliga utflykter.
Ystad kommun har förutom flera förskolor, skolor från åk F-9 och gymnasieskolor, även ett stort engagerat föreningsliv med badhus, tennis- och golfbanor och flera idrottsanläggningar, vilket gör det attraktivt för barnfamiljerna. Kulturupplevelser kan kombineras med storslagna konserter på Ystad teater och intima Strindberg-pjäser i mysig cafémiljö på Rynge teater. Eller varför inte besöka några av de museer, konstutställningar och antikvariat som finns utspridda runt om på landsbygden. Gårdsbutiker, mysiga caféer och kända restauranger är också en bidragande orsak till att så många väljer att besöka Ystads kommun.
Vill du köpa, sälja eller värdera bostad i Ystad kommun? Kontakta Bjurfors mäklare i Ystad! Passa också på att anmäla dig till vår kostnadsfria söktjänst Boagenten som hjälper dig att hitta ditt drömboende.
Kontakta mäklaren om du behöver hjälp att ta fram en boendekalkyl.
När du köper din bostad genom Bjurfors kan du ansöka om bolån till en förmånlig ränta hos vår samarbetspartner SEB.
Kontakta mäklaren för mer information gällande budgivningen.
Kontakta mäklareAnsvarig mäklare