-
Köpa
Köpa -
Sälja
Sälja - Hitta bostad
- Skapa bevakning
- Hitta mäklare
Bra ljusinsläpp och inglasad balkong i söder
Edvinshem, Ystad
*Inklusive VA och renhållning. Det tillkommer obligatoriska tillägg för värme, TV och bredband om 520 kr/mån, 80 kr/mån respektive 95 kr/mån. Föreningen har gemensamt elavtal och varje innehavare debiteras efter faktisk förbrukning.
**Enligt bostadsrättsföreningens mäklarbild/utdrag ur lägenhetsregister
Bokad visning.
Perfekt belägen bostadsrätt med en tilltalande planlösning. Inglasad balkong med "uterumskänsla" i söder. Trevlig grön innergård.
Rosenhill/Edvinshem är ett av Ystads attraktiva områden. En perfekt blandning av centralt läge, granne med villakvarter och närhet till hav och bad. På gångavstånd finns Norra Promenaden och sedan är det inte långt till Ystads allra centralaste gator. Rosenhills blandade bebyggelse av villor och flerbostadshus bidrar till den harmoniska känslan i området. Badstranden vid Gjuteriområdet är heller inte långt borta.
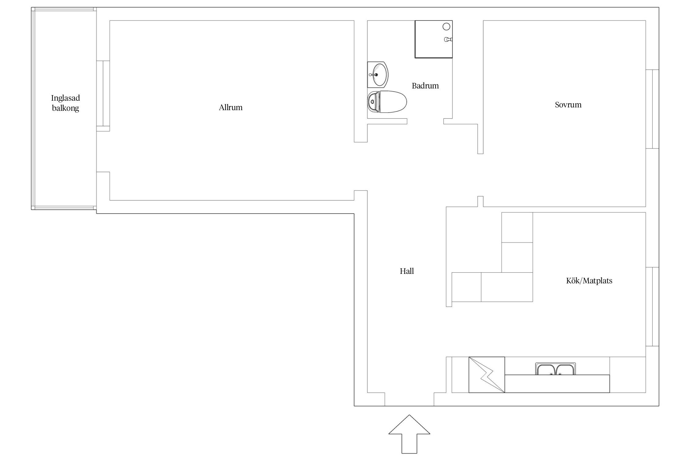
Välkommen till Erik Dahlbergsgatan 3A, en väldisponerad bostadsrätt med fönster i söder norr. Innanför ytterdörren väntar en entré och hall med laminatgolv. Kök med laminatgolv, matplats vid fönster i norr. Köksinredning i en harmonisk och charmigt grön färg.
Från hall, ingång till klädkammare/förvaring. Sovrum med laminatgolv, fönster i norr, garderober.
Badrum med klinkergolv, kakel på väggar, dusch.
Ljust, trevligt allrum med laminatgolv, fönster i söder, utgång till inglasad balkong i söderläge (frys ingår ej), utsikt mot den vackra innergården.



*Enligt bostadsrättsföreningens mäklarbild/utdrag ur lägenhetsregister
Inklusive VA och renhållning. Det tillkommer obligatoriska tillägg för värme, TV och bredband om 520 kr/mån, 80 kr/mån respektive 95 kr/mån. Föreningen har gemensamt elavtal och varje innehavare debiteras efter faktisk förbrukning.
Relevant andelstal gällande andel av årsavgift har ej gått att få fram från föreningen eller förvaltaren.
Kommer senare
Hushållsel tillkommer
*Betalas av köpare
Föreningen äger fastigheten Blandow 13. Det finns 66 lägenheter i föreningen av blandade storlekar enligt följande: 9 stycken 1:or, 40 stycken 2:or, 14 stycken 3:or, 3 stycken 4:or.
Föreningen har ett gemensamt elavtal och därför behöver medlemmarna inte teckna något eget, debitering sker efter faktisk förbrukning.
Riksbyggen sköter föreningen ekonomiska förvaltning.
Föreningen höjde årsavgifterna med 15% 2026-01-01. Inga vidare beslut tagna.
(Kontrollerat 2026-04-09).
Föreningens byggnader är fullvärdesförsäkrade hos Folksam och bostadsrättstillägget för de boende ingår i denna. De boende behöver alltså endast teckna en hemförsäkring.
Föreningen följer en underhållsplan.
Utförda renoveringar:
2007 Relining av avloppsstammarna
2016 Fiberkabel drogs in i fastigheten via Öppet Stadsnät.
2017 Gemensamt orangeri byggdes
2019 Renoverades lekplatsen och individuell elmätning infördes
2023 Renoverades taket
2024 Installerades solceller
2025 Bytt värmecentral och termostater på samtliga radiatorer
Kommande underhåll och renoveringar:
Renovering/nya fronter på balkonger
(Kontrollerat 2026-04-09).
Det finns 11 garage och 21 parkeringsplatser. Kösystem tillämpas. Parkering kostar 210 kr/mån och garage mellan 367-420 kr beroende på om det är varmgarage. Alla platser har uttag för laddning av el-bil. I skrivande stund finns ca 10 stycken i kö till parkeringarna.
(Kontrollerat 2026-04-09).
Basutbudet av TV- kanaler via Tele 2 och ett kollektivt bredband genom Bahnhof (1000/1000) kommer som obligatoriska om 80 kr/mån respektive 95 kr/mån.
Mysig innergård i söderläge med orangeri med möblemang för middagar och andra tillställningar.
Det finns tre kompletta tvättstugor i huset. Två av dem ligger i källaren vid Mölletorget och en ligger vid Erik Dahlbergs gatan. Varje tvättstuga har tre tvättpass om dagen.
I källaren finns även en samlingslokal som kostar 300 kr att hyra. I samlingslokalen finns bäddsoffa en bäddsoffa för två och i rummet bredvid finns en bäddsoffa för två. Man har tillgång till kök och toalett men inte dusch. Kostnad för övernattning är 300 kr/dygn.
Om man som bostadsrättsinnehavare vill göra större förändringar i lägenheten så som renovering av badrum måste man informera styrelsen om detta.
Eftersom man har ett självdragssystem måste man ha kolfilterfläkt i köket.
Gardiner och solskydd som sätts upp i den inglasade balkongen måste vara i neutrala och ljusa färger.
Information som berör föreningen är inhämtad via årsredovisning, stadgar och kontakt med föreningen. Avvikelser kan förekomma och som köpare uppmanas du att själv kontrollera samtliga uppgifter, framförallt om något är av extra stor betydelse för dig som köpare.
Föreningen kommer att bygga ut balkongerna till hösten.
Enligt överenskommelse
Det finns få städer med en så genuin och välbevarad stadskärna som Ystad. Bland de kullerstenbelagda gatorna inne i centrum syns både charmiga korsvirkeshus från medeltiden och pastellfärgade gathus från förra sekelskiftet. Det vimlar av caféer, restauranger och butiker av olika slag. Nere i den mysiga småbåtshamnen finns fiskrökeri och restaurang med uteservering. Den idylliska atmosfären, goda pendlingsmöjligheter, närheten till havet och det stora utbudet bidrar till att många väljer att flytta till Ystad.
Ystads pittoreska stadskärna har blivit lite av en kult inom svensk film tack vare Wallanderfilmerna som baseras på Henning Mankells böcker. Även utanför Sveriges gränser har läsare och åskådare följt Kurt Wallander lösa brott genom Ystads gränder. För den filmintresserade finns en speciell rutt med karta över olika inspelningsplatser runt i staden som man kan följa.
Ystads bebyggelse från sen medeltid till 1700-tal är rankat som en av Skånes bäst bevarade. Gatornas uppbyggnad inne i den gamla staden är nästan oförändrade sedan medeltiden. Ett av de äldsta bebodda husen i Sverige är Apotekarshuset som härstammar från 1400-talet. Inte helt oväntat är de pittoreska gathusen hett eftertraktade på bostadsmarknaden.
Stora Östergatan är stadskärnans shoppingstråk, där både stora butikskedjor och små lokala verksamheter huserar. I gränderna som sticker ut från butiksgatan ligger ett flertal matställen utspridda. På Besökargränd hittar man Per Helsas gård som är en kringbyggd gård med anor från 1700-talet. I dag är detta ett kreativt centrum för olika designers, hantverkare och konstnärer. På andra sidan gården ligger det populära matstället Grändens Mat som serverar vällagad mat till både lunch och middag. På sommaren är det fullsatt på den mysiga kullerstenbelagda innergården. En viktig och vacker mötesplats är Ystad Teater. Efter att den dåvarande teatern brann ner 1891 tog denna form med hjälp av stadsarkitekten Peter Boisen tre år senare. I dag är det en självklar scen för stora musiknamn och föreställningar.
Smidig pendling och bra skolor är ett av många goda skäl att flytta till Ystad. Pågatågen går både till Malmö och Simrishamn och regionbussar når städer som Sjöbo, Trelleborg och Skurup. I Ystad finns förskolor, skolor från åk F-9 samt fyra gymnasieskolor vilket gör det attraktivt för barnfamiljerna. Inne i Ystad finns flera idrottshallar och ett fint badhus med massor av aktiviteter.
Vill du köpa, sälja eller värdera bostad i Edvinshem? Kontakta Bjurfors mäklare i Ystad! Passa också på att anmäla dig till vår kostnadsfria söktjänst Boagenten som hjälper dig att hitta ditt drömboende.
Kontakta mäklaren om du behöver hjälp att ta fram en boendekalkyl.
När du köper din bostad genom Bjurfors kan du ansöka om bolån till en förmånlig ränta hos våra banksamarbetspartners Söderberg & Partners och SEB.
Bokad visning.