-
Köpa
Köpa -
Sälja
Sälja - Hitta bostad
- Skapa bevakning
- Hitta mäklare
Villa Kyllan-Klassisk elegans möter modern arkitektur
Östra Förstaden, Ystad
*Areauppgifter enligt taxeringsinformationen
Bokad visning.
Bokad visning.
Pampigt stenhus i attraktivt område som erbjuder gedigna materialval, generös takhöjd, otroliga ytor och stenlagd tomt med uteplats i väster.
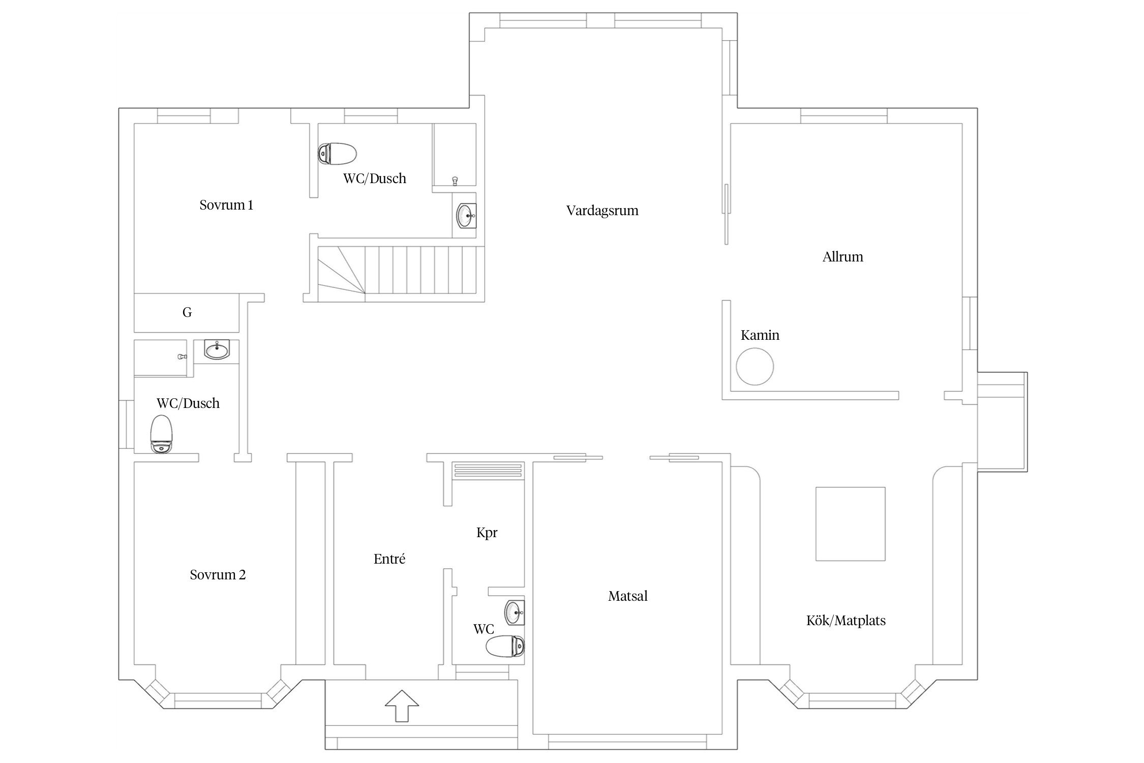
Längs den stenlagda uppfarten reser sig Villa Kyllan – ett arkitektritat stenhus uppfört 2001 av Skanska, där tidlös elegans möter modern komfort. Den pampiga exteriören sätter tonen redan vid ankomst. En bred granittrappa med smidesräcke leder fram till pardörrarna och vidare in i ett hem där generösa volymer, rikligt ljusinsläpp och gedigna materialval tillsammans skapar en känsla av både rymd och värme. Husets arkitektur bjuder på flera vackra detaljer – spännande vinklar, burspråk samt spröjsade och runda fönster som ger fasaden karaktär och ett tidlöst uttryck.
Entréplanet präglas av en generös takhöjd om 2,7 meter och stora fönsterpartier som låter ljuset strömma in. Här breder de imponerande sällskapsytorna ut sig i en harmonisk helhet där vardagsrum, allrum och matrum samspelar, men vid behov kan avgränsas med eleganta skjutdörrar. Rummen binds samman av ett exklusivt marmorgolv i fiskbensmönster, medan stuckaturer och diskret infällda spotlights i taken förstärker den sofistikerade atmosfären. I tv-rummet bidrar kaminen till både värme och stämning under årets svalare månader.
Det rymliga kvalitetsköket från Tibro är både funktionellt och inbjudande, med goda förvaringsmöjligheter bakom luckor i ek och en generös köksö som naturligt samlar familj och gäster kring matlagningen. Härifrån nås den lättillgängliga utemiljön, precis som från vardagsrummet och källarplanet – en självklar förlängning av huset under årets varmare månader.
På entréplanet finns två rogivande sovrum med vackra enstavsparkettgolv. Båda har privata en suite-badrum med dusch, vilket skapar en avskild och harmonisk sovrumsdel. Från sovrummet i väster leder en altandörr direkt ut mot uteplatsen och trädgården. Under sommaren kan dörren stå öppen mot morgonluften och låta dagen börja stillsamt till fågelkvitter från den grönskande omgivningen.
Från hallen nås både ett praktiskt kapprum och en gästtoalett. De eleganta trapporna från Vitaby, med specialbeställda smidesräcken, leder vidare ner till källarplanet och upp till den oinredda vinden.
Källaren är varm och funktionell med gott om förvaring, tvättutrymme, kylrum samt ett motions- eller hobbyrum. På golven ligger klinkers och väggarna är vitmålade. Här finns även en separat entré från trädgårdens norra sida, vilket ger extra flexibilitet. För den som önskar ytterligare yta finns dessutom goda möjligheter att inreda den rymliga vinden och skapa fler rum efter behov.
Den lättskötta tomten erbjuder flera uteplatser i västerläge där solen kan avnjutas långt in på kvällen. När skymningen faller tänds den stämningsfulla utebelysningen och trädgårdens perenner ger färg och liv åt utemiljön under säsong.
Läget är svårslaget – i en av Ystads mest eftertraktade stadsdelar, med närhet till både havet och den lummiga sandskogen. Samtidigt ligger stadskärnans charmiga utbud av butiker, caféer, restauranger, gym och badhus på bekvämt avstånd.
Ett hem utöver det vanliga – där en bekväm vardag möter generösa ytor för sociala tillställningar och hög livskvalitet.



Entréplan
Ovanvåning
Bofinken 11
*Areauppgifter enligt taxeringsinformationen
Stenlagd uteplats i västerläge där eftermiddags- och kvällssolen fångas.
Kommunalt vatten, Kommunalt avlopp.
Stenlagd och lättskött tomt som omfamnas av vackert smidesstaket. Även vid entrén är utemiljön stenlagd med prydande perenner som prunkar vackert vid säsong.
Stenlagda bilplatser med plats för 3 bilar. Två uttag för motorvärmare finns.
Stadsplan (1941-07-18)
Fiber via Teleservice
Driftkostnaden är schabloniserad. Fråga mäklaren för mer info!
Det finns 1 st pantbrev uttaget om sammanlagt 2 000 000 kr
Det finns få städer med en så genuin och välbevarad stadskärna som Ystad. Bland de kullerstenbelagda gatorna inne i centrum syns både charmiga korsvirkeshus från medeltiden och pastellfärgade gathus från förra sekelskiftet. Det vimlar av caféer, restauranger och butiker av olika slag. Nere i den mysiga småbåtshamnen finns fiskrökeri och restaurang med uteservering. Den idylliska atmosfären, goda pendlingsmöjligheter, närheten till havet och det stora utbudet bidrar till att många väljer att flytta till Ystad.
Ystads pittoreska stadskärna har blivit lite av en kult inom svensk film tack vare Wallanderfilmerna som baseras på Henning Mankells böcker. Även utanför Sveriges gränser har läsare och åskådare följt Kurt Wallander lösa brott genom Ystads gränder. För den filmintresserade finns en speciell rutt med karta över olika inspelningsplatser runt i staden som man kan följa.
Ystads bebyggelse från sen medeltid till 1700-tal är rankat som en av Skånes bäst bevarade. Gatornas uppbyggnad inne i den gamla staden är nästan oförändrade sedan medeltiden. Ett av de äldsta bebodda husen i Sverige är Apotekarshuset som härstammar från 1400-talet. Inte helt oväntat är de pittoreska gathusen hett eftertraktade på bostadsmarknaden.
Stora Östergatan är stadskärnans shoppingstråk, där både stora butikskedjor och små lokala verksamheter huserar. I gränderna som sticker ut från butiksgatan ligger ett flertal matställen utspridda. På Besökargränd hittar man Per Helsas gård som är en kringbyggd gård med anor från 1700-talet. I dag är detta ett kreativt centrum för olika designers, hantverkare och konstnärer. På andra sidan gården ligger det populära matstället Grändens Mat som serverar vällagad mat till både lunch och middag. På sommaren är det fullsatt på den mysiga kullerstenbelagda innergården. En viktig och vacker mötesplats är Ystad Teater. Efter att den dåvarande teatern brann ner 1891 tog denna form med hjälp av stadsarkitekten Peter Boisen tre år senare. I dag är det en självklar scen för stora musiknamn och föreställningar.
Smidig pendling och bra skolor är ett av många goda skäl att flytta till Ystad. Pågatågen går både till Malmö och Simrishamn och regionbussar når städer som Sjöbo, Trelleborg och Skurup. I Ystad finns förskolor, skolor från åk F-9 samt fyra gymnasieskolor vilket gör det attraktivt för barnfamiljerna. Inne i Ystad finns flera idrottshallar och ett fint badhus med massor av aktiviteter.
Vill du köpa, sälja eller värdera bostad i Östra Förstaden? Kontakta Bjurfors mäklare i Ystad! Passa också på att anmäla dig till vår kostnadsfria söktjänst Boagenten som hjälper dig att hitta ditt drömboende.
Kontakta mäklaren om du behöver hjälp att ta fram en boendekalkyl.
När du köper din bostad genom Bjurfors kan du ansöka om bolån till en förmånlig ränta hos vår samarbetspartner SEB.
Bokad visning.
Bokad visning.