Hoppa till innehåll

Husdröm söder om Österleden

Sandskogen, Ystad

Lövsångarestigen 4

Utgångspris:
6 500 000 kr
Antal rum:
6
Boarea:
123 kvm*
Typ:
Friliggande villa

*Enligt säljaren

ANMÄL DIG TILL VISNING

  1. Bokad visning.

  2. Bokad visning.

Ansvarig mäklare

Alexandra Nilsson

Fastighetsmäklare / Partner

Bjurfors Ystad
Alexandra Nilsson

BOKA EN KOSTNADSFRI VÄRDERING

Husdröm söder om Österleden

Finn livskvaliteten i södra Sandskogen nära både stad och hav! Vinterbonat hus med modern komfort i magisk miljö. Välkommen!

Beskrivning

I den stilla grönskan i Ystads Sandskog, på ett av områdets mest eftertraktade lägen på den soliga södersidan, väntar detta inbjudande hem – bara en kort promenad i badrock från havets mjuka brus, sandstranden och de charmiga badbryggorna mellan Ystads Saltsjöbad och Fritidsbaren.

Huset, en klassisk Västkuststuga uppförd 2004, erbjuder vinterbonad komfort och en genomtänkt planlösning där varje kvadratmeter bjuder in till både avkoppling och umgänge. Köket, som uppdaterades så sent som förra året, är smakfullt inrett och öppnar upp mot vardagsrummet i en social och luftig disposition. Även den helglasade altandörren bidrar till flödande dagsljus och ger direktaccess till trädgården i väster. Den generösa halvön fungerar lika väl som arbetsyta som samlingspunkt – en plats där samtal och matlagning får smälta samman.
I vardagsrummet sprider kaminen en varm och omfamnande känsla under årets svalare månader, oavsett om du sitter vid matbordet eller sjunker ner i soffan. Här finns gott om utrymme för långa middagar med nära och kära, och under sommartid suddas gränsen mellan inne och ute ut när altanen i söder blir en naturlig förlängning av sällskapsytorna. Två elstyrda markiser ger behaglig skugga under soliga dagar.

Det rymliga badrummet har uppdaterats med nytt golv och stilren inredning, och erbjuder en rofylld plats för vardagens rutiner. På entréplan ligger huvudsovrummet, där en altandörr släpper in morgonljus och fågelsång.
Ovanvåningen rymmer allrum, tre sovrum och en hall som kan konverteras till klädkammare vid behov. Här har även det öppna bjälklaget ovan vardagsrummet byggts igen med plankgolv och skapat ett extra allrum – en rofylld plats för vila och umgänge. Generösa fönsterpartier suddar ut gränsen mellan inne och ute och låter den vackra utemiljön bli en naturlig del av rummet, där tallar och lövverk ramar in utsikten och havet skymtar mellan stammarna.

Praktiska detaljer som separat tvättutrymme, smart förvaring under trappan, garderober i sovrummen samt en fristående skjul gör vardagen enkel och välorganiserad.

Detta är ett hem att trivas i – en plats där skogens lugn möter havets närhet, där årstiderna får ta plats och livet kan levas precis så stilla eller levande som du önskar. Ett boende för både helårsliv och sommarens långa, ljusa dagar.

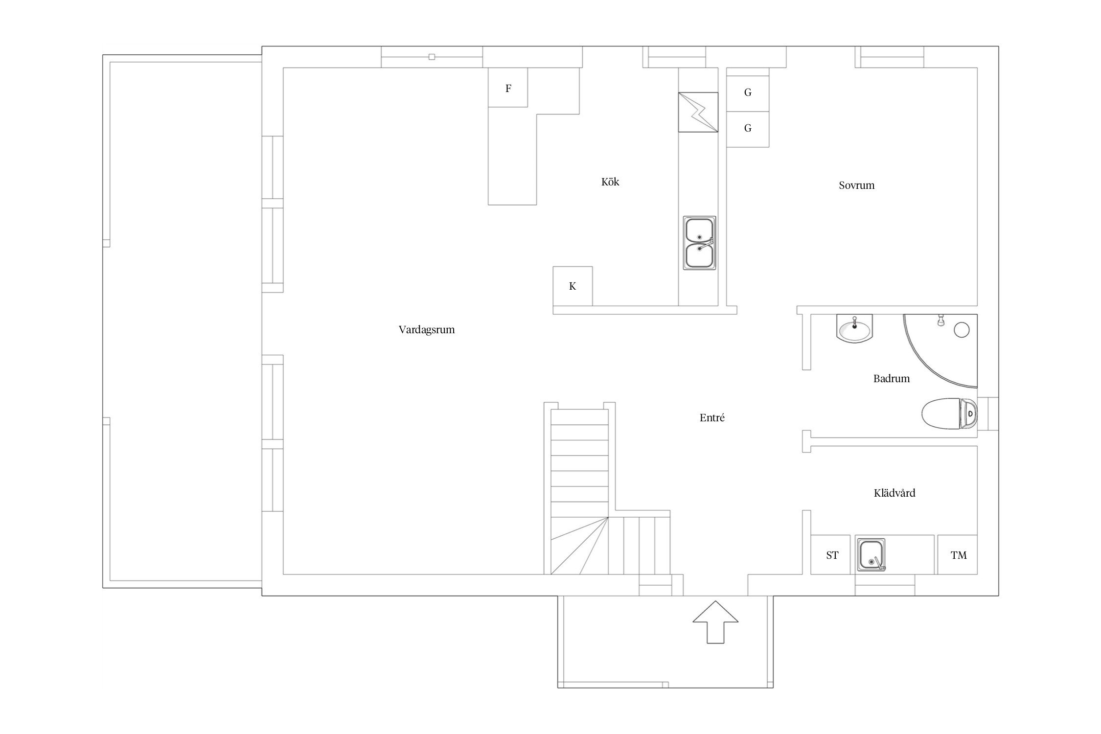
Rumsbeskrivningar

Entré, hall
Inrett med klinkers, golvvärme (el), målade väggar och förråd under den inbyggda trappan.

Tvättutrymme
Ligger vid entrén och är inrett med klinkers, elgolvvärme, tapetserade väggar, tvättho med skåpsförvaring, torktumlare och tvättmaskin.

Badrum
Rymligt badrum med ljusinsläpp. Inrett med helkaklade ytskikt och uppdaterat klinkersgolv (2024, originalgolv ligger intakt under), elgolvvärme, handfat med kommod, dusch med vikbara glasväggar (2024), toalett (2024) och handdukstork (el). Spegeln ingår ej.

Huvudsovrum
Inrett med laminatgolv, tapetserade väggar, altandörr och garderober.

Vardagsrum
Ligger i öppen planlösning mot köket och är inrett med vitpigmenterat 1-stavs parkettgolv och målade väggar. Stora fönsterpartier och altandörr integrerar utemiljön året om. Vid vinterhalvåret kan en stämningsfull brasa tändas upp i kaminen och om sommaren förlängs sällskapsytorna med den vidbyggda altanen.

Kök
Renoverades 2024 med stilfull interiör från Ikea med skåpsförvaring bakom ljusgråa luckor och i vitrinskåp. Halvön och extra djup ger bra arbets- och serveringsyta. Utrustat med rostfri kyl i fullhöjd, integrerad halvfrys samt diskmaskin, inbyggd mikrovågsugn samt ugn, indukstionshäll och spisfläkt. Väggarna är målade med kaklat stänkskydd och på golvet ligger samma fina parkettgolv som i vardagsrummet vilket ger ett enhetligt intryck. Den helglasade altandörren bidrar till fint dagsljus och leder vidare till tomtens västra sida.

Allrum ov
Var tidigare ett öppet bjälklag ner till vardagsrummet och är idag belagt med vitpgimenterat trägolv (dock ej isolerat bjälklag): Fönsterpartierna är troligtvis ej av säkerhetsglas och därför ej godkända.

Mindre sovrum
Inrett med laminatgolv och väggar klädda med tapeter och träpanel.

Sovrum 3 ov
Inrett med laminatgolv, garderober och väggar klädda med tapeter och träpanel.

Sovrum 4 ov
Inrett med laminatgolv, garderober och väggar klädda med träpanel och tapeter.

Planritning

Planlösning
Planlösning

Fakta om bostaden

Fastighetsbeteckning

Sandskogen 2:6

Information

Typ
Friliggande villa
Upplåtelseform
Arrende
Utgångspris
6 500 000 kr
Rum
6
Antal sovrum
4
Boarea
123 kvm*

*Enligt säljaren

Byggnadssätt

Byggnadstyp
1 ½ plan
Byggår
2004
Fasad
Trä
Grund
Gjuten platta
Stomme
Trä
Bjälklag
Trä
Uppvärmning
Värmepump luft/luft (2026) och direktv. el
Takbeklädnad
Betongpannor
Ventilation
Självdrag
Fönster
3-glas

Ombyggnad, Renoveringar

2013 luft-luftvärmeväxlare installerades, bytt till ny 260326.
2013 Vattenmätare inomhus, fuktstyrda fläktar i badrum och tvättrum.
2013 Byggde förråd under trappan på bottenplanet och ändrade därmed den öppna planlösningen till befintlig.
2014 Satt in Velux takfönster x 2 ovanvåning.
2023-24 Upptag för ny altandörr och fönster i köket mot väster i samband med köksrenovering.
2023 -2024 byte kök och samtliga köksmaskiner, renovering badrum, byte samtliga innerdörrar och dörrfoder på
undervåning, nytt golv i undervåningen i allrum och kök.

Övriga byggnader/utrymmen

Trädgårdsskjul

Besiktning

Besiktigad
Nej

Vatten/Avlopp

Kommunalt

TV/bredband

Fiber via Teleservice 100/100

Ekonomi

Taxeringsvärde
1 863 000 kr
Byggnadsvärde
1 863 000 kr
Kod
225, Småhusenhet, småhus på ofri grund
Fastighetsskatt/Avgift
5 212 kr

Driftskostnad (per år)

Personer i hushållet
2
Hushållsström
16 598 kr
Försäkring
4 384 kr
Renhållning
1 569 kr
Vatten/Avlopp
6 646 kr
Summa
29 197 kr
Elförbrukning
6 098 kWh/år

Avser säljarens förbrukning som använt huset som ett fritidsboende.

Energideklaration

Utförd
Behövs ej

Om Sandskogen

Mäklaren om Sandskogen:
HAV, SKOG OCH STILLSAM KVALITET

Sandskogen är ett av Skånes mest uppskattade områden, där havet och den karakteristiska tallskogen möts i en harmonisk helhet. Här breder en flera kilometer lång sandstrand ut sig längs Östersjön, med naturen ständigt närvarande och en atmosfär som präglas av lugn och rymd.

Området erbjuder en unik kombination av kustliv och skogsmiljö. Slingrande stigar tar dig genom tallskogen och vidare ner mot stranden, vilket skapar goda möjligheter för promenader, rekreation och ett aktivt friluftsliv året om.

I Sandskogen finns även flera välbesökta destinationer som bidrar till områdets attraktionskraft. Ystad Saltsjöbad erbjuder en miljö med fokus på avkoppling och kvalitet, medan Fritidsbaren och Jaktens minigolfbana ger ett mer lättsamt inslag under sommarhalvåret.

För den som uppskattar ett aktivt liv finns badbryggor, tennisbanor och närhet till havet som en naturlig del av vardagen. Under sommaren präglas området av badliv och rörelse, medan höst och vinter erbjuder ett lugnare tempo med närhet till naturens skiftningar.

Sandskogen är ett område för dig som söker ett boende nära havet, med naturen som självklar del av livet och Ystads stadskärna på bekvämt avstånd.

Vill du köpa, sälja eller värdera bostad i Sandskogen? Kontakta Bjurfors mäklare i Ystad! Passa också på att anmäla dig till vår kostnadsfria söktjänst Boagenten som hjälper dig att hitta ditt drömboende.

Karta

Lövsångarestigen 4

Lövsångarestigen 4

271 60 Ystad

Visa i Google Maps (öppnas i nytt fönster)

Boendekalkyl

Kontakta mäklaren om du behöver hjälp att ta fram en boendekalkyl.

När du köper din bostad genom Bjurfors kan du ansöka om bolån till en förmånlig ränta hos våra banksamarbetspartners Söderberg & Partners och SEB.

Ansök om lånelöfte hos Söderberg & Partners

Ansök om lånelöfte hos SEB

Håll koll på detta objekt

Anmäl dig till visning

Bokad visning.

Bokad visning.

Mäklare

Kampanjbild Boneo