-
Köpa
Köpa -
Sälja
Sälja - Hitta bostad
- Skapa bevakning
- Hitta mäklare
Naturskönt läge
Snårestad, Ystad
*Areauppgifter enligt taxeringsinformationen
På Förhand ligger bostäder som av olika anledningar inte är ute till försäljning just nu men som kan komma att säljas om förutsättningarna är rätt.
Välkommen till denna vackra familjevilla i lantlig idyll – ett hem som kombinerar modernt boende med naturnära miljö och charmiga detaljer. Byggd 2017 som en modern Smålandsvilla med modulhuskaraktär, erbjuder detta nyproducerade hem en perfekt balans mellan funktion och estetik.
Upplev den storslagna naturen runt knuten, med gröna ängar, skog och en lugn atmosfär samtidigt som du har kort avstånd till förskola, hav och smidiga kommunikationer. Den liggande panelen utvändigt ger huset en tidlös, varm karaktär, medan de moderna 3-glasfönstren med aluminiumutvändighet och betongtakpannor garanterar ett energieffektivt och hållbart boende.
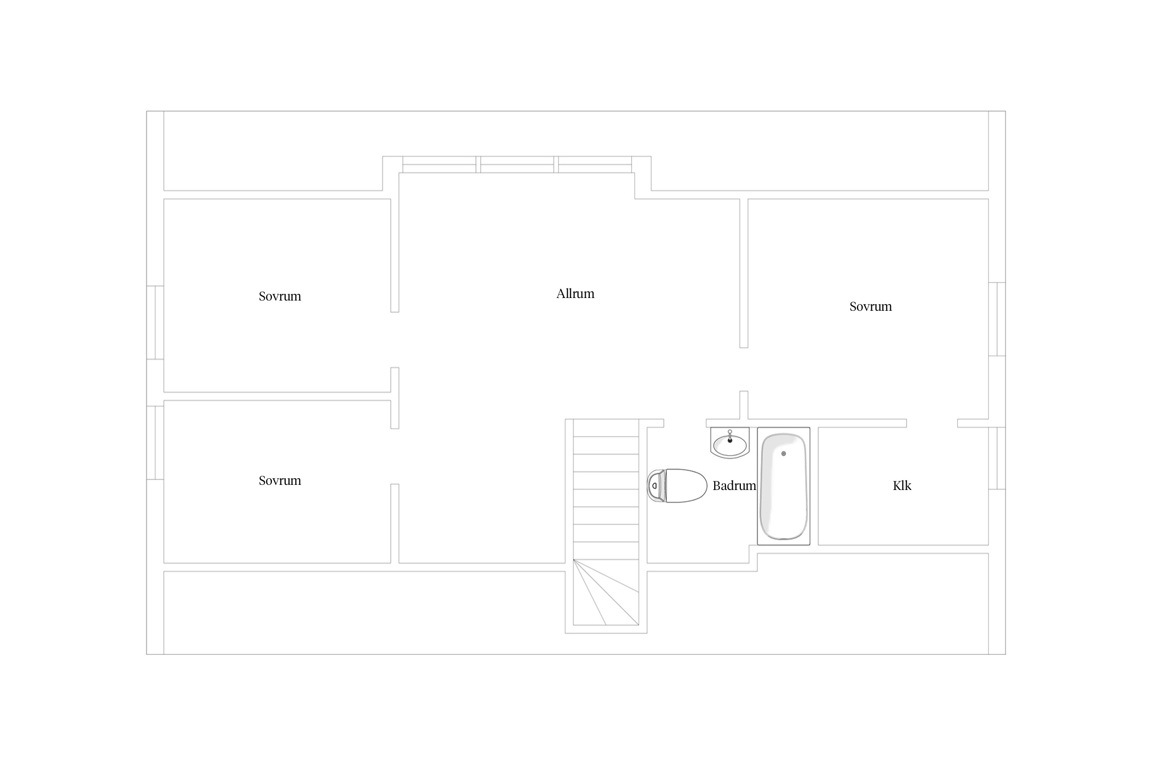
Huset är utrustat med frånluftsvärmepump och vattenburen värme för låg energiförbrukning. Den genomgående parkettgolvet ger ett elegant och lättskött intryck, i den tillbyggda entren finns gott om utrymme och förvaringsmöjligheter, följer vi trappan som leder till ovanvåningen, öppnar den upp till en ljus och möblerbar hall med en storslagen kupa i öster.
Det öppna köket, designat av Vedum, med trädetaljer på bänkar och en praktisk köksö, är perfekt för familjens matlagning och umgänge. Här finns moderna maskiner från Bosch och utgång till trädgården i norr, som inbjuder till odling och avkoppling. Det lätt möblerade allrummet, med utgång mot östra tomten, skapar en social och luftig atmosfär.
Badrummen är helkaklade och utrustade med moderna bekvämligheter som dusch, fristående badkar, handfat, toalett och elgolvvärme för extra komfort. Grovköket med plastmatta, tvättmaskin och tumlare, samt utgång till söder mot parkeringsplatsen, underlättar vardagens sysslor.
Ovanvåningen erbjuder en trivsam, möblerbar hall med charmig kupa i öster, två sovrum på gavlar i norr samt ett ytterligare sovrum i söder med walk-in-closet – perfekt för familjens behov av utrymme och funktion. Här finns även ett helkaklat badrum med badkar, toalett och handfat, samt vattenburen golvvärme för en lyxig känsla.
Detta hem är ett unikt tillfälle att flytta in i en modern, välplanerad familjevilla i naturskön miljö – en plats att trivas och skapa minnen för livet. Välkommen att boka visning!



Snårestad 25:64
*Areauppgifter enligt taxeringsinformationen
Trädäck
Kommunalt vatten, Kommunalt avlopp.
Trädgårdstomt
Det finns 5 st pantbrev uttagna om sammanlagt 3 225 000 kr
Tätorten Svarte har ett vackert läge vid kusten, väster om Ystad. Här finns bland annat en egen sandstrand med badbrygga mitt i byn, en pågatågsstation, flera konstnärsverksamheter och ett surdegsbageri. Längs kusten radar charmiga fiskarlängor och villor med strandtomter upp sig. Många är byggda under förra sekelskiftet. Från Kustvägen välkomnas man genom en majestätisk allé upp till Charlottenlunds slott. Pågatågsstationen är en uppskattad tillgång i Svarte där man kan färdas till såväl Malmö som Simrishamn.
Svarte är ett gammalt fiskeläge vid havet, beläget endast 5 minuter från Ystad. På kustsidan består bebyggelsen främst av tidstypiska fiskarlängor och hus från sent 1800-tal till tidigt 1900-tal med sagolika havsvyer från trädgårdarnas baksidor. Centrala Svarte utvecklades framför allt på 1960- och 1970-talen då man byggde många tegelvillor norr om kustvägen.
Nu har byggandet tagit fart igen och byn exploaterar västerut med helt nya bostadsområden med radhus, villor och kedjehus. Svarte har mycket att erbjuda. Inne i byn finns bland annat ett ekologiskt surdegsbageri, en AutoMat där man kan köpa livsmedel, två konstgallerier och fornlämningar. På sommaren är det nere vid stranden man samlas. Här finns en fin sandstrand med badbrygga och strandkiosken ”Svarte strandcafé”.
Byalaget i Svarte är mycket aktivt och anordnar årligen arrangemang såsom loppmarknad, midsommarfirande, sportaktiviteter och provsmakning. Det finns ett rikt utbud av aktiviteter såsom scoutkår, brottning, tennis och fotboll. En personlig tränare arrangerar populära löpargrupper i byn. Det lokala fotbollslaget Charlo är uppkallat efter närliggande Charlottenlunds slott.
Många väljer att bosätta sig i Svarte på grund av de goda pendlingsmöjligheterna. Här stannar pågatåget som kör både västerut och österut, från Malmö till Simrishamn. Till Ystad tar det endast ett par minuter. Barnfamiljer bor tryggt här med smidiga avstånd till såväl arbete som skola. Förskola och skola från f-6 samt fritids finns mitt inne i Svarte.
Den vackraste vägen till Svarte är utan tvekan via Charlottenlunds allé som också leder fram till Charlottenlunds slott. Bredvid allén går en naturskön stig att vandra eller springa på, som Svarteborna kallar för Kärleksstigen.
Vill du köpa, sälja eller värdera bostad i Snårestad? Kontakta Bjurfors mäklare i Ystad! Passa också på att anmäla dig till vår kostnadsfria söktjänst Boagenten som hjälper dig att hitta ditt drömboende.
Kontakta mäklaren om du behöver hjälp att ta fram en boendekalkyl.
När du köper din bostad genom Bjurfors kan du ansöka om bolån till en förmånlig ränta hos vår samarbetspartner SEB.
Ansvarig mäklare