-
Köpa
Köpa -
Sälja
Sälja - Hitta bostad
- Skapa bevakning
- Hitta mäklare
Korsvirkesidyll från 1700-talet med stor potential i Sövestad
Sövestad, Ystad
*Areauppgifter enligt taxeringsinformationen
En charmig korsvirkeslänga med anor från 1700-talet, där tidstypiska detaljer, lummig trädgård i söderläge och stor utvecklingspotential
Välkommen till en plats där historien sitter i väggarna och livet får ta sin egen rytm. Denna korsvirkeslänga med anor från 1700-talet ligger rofyllt i Sövestad, strax utanför Ystad och omgiven av det öppna skånska landskapet.
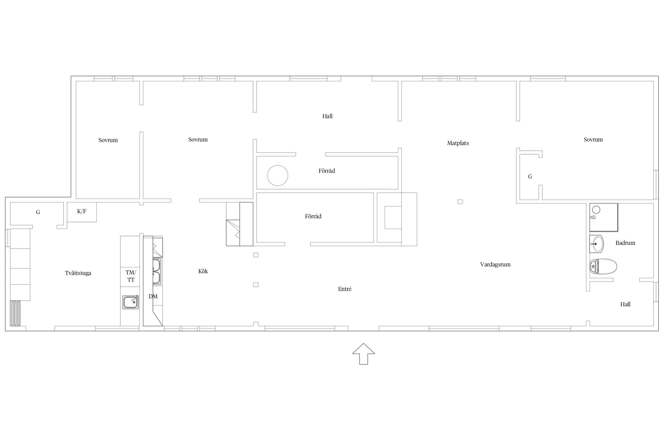
Här möts du av ett hem med själ och karaktär, där de synliga bjälkarna – märkta med romerska siffror – bär på berättelser från en annan tid. Takhöjden upp till bjälkarna är strax över 180 cm, vilket skapar en ombonad och genuin känsla samtidigt som rummen upplevs luftiga och harmoniska. Spegeldörrar och det rustika tegelgolvet i entrén förstärker husets tidlösa uttryck.
Bostaden om ca 118 kvm är fördelad i ett plan med en halvöppen planlösning mellan kök och vardagsrum – en naturlig samlingsplats för både vardag och umgänge. Här finns tre sovrum, badrum och tvättstuga, med gott om möjligheter att låta husets historia möta nya idéer och lösningar.
Den rymliga vinden, med god takhöjd och synliga takbjälkar, öppnar upp för spännande möjligheter att skapa ytterligare boyta – kanske en ovanvåning med sovrum, ateljé eller ett stilla arbetsrum.
Huset är i behov av renovering, vilket ger nästa ägare chansen att varsamt förädla och vidareutveckla detta unika hem med respekt för dess historia.
Trädgården om drygt 900 kvm ligger i ett soligt söderläge och bjuder på en lummig och levande miljö. Här breder vintergäck och snödroppar ut sig tidigt på våren, följt av ramslök och körvel som ger trädgården en naturlig och nästan sagolik karaktär. En plats för både lugna stunder och livfulla sommardagar.
Huset har en gång monterats ned och flyttats till sin nuvarande plats, en tradition som var vanlig i Skåne, vilket gör att det idag bär på en historia från en annan plats – varsamt bevarad och återuppbyggd med respekt för sitt ursprung.
Detta är ett hem för dig som söker något mer än bara ett hus – en plats med själ, historia och stora möjligheter att skapa något alldeles eget.



Sövestadby 1:146
*Areauppgifter enligt taxeringsinformationen
*Huset är troligtvis från 1700-talet
Huset är K-märkt
1970 - talet
Kommunalt vatten, Kommunalt avlopp.
Lummig trädgårdstomt
Uppfart med plats för en bil
I posten för el ingår värme och nätavgifter
Fastigheten säljs med friskrivningsklausul
Det finns 2 st pantbrev uttagna om sammanlagt 370 000 kr
Norr om Ystad hittar vi denna mysiga lilla tätort som bland annat är belägen med en vacker kyrka från 1100-talet. I Sövestad andas du in lugnet och njuter av den vackra naturen runtom. Om du vill lämna bilen hemma finns en nybyggd och fin cykelväg som tar dig in till Ystad på bara 20 minuter.
Här bor du idylliskt mitt i den skånska landsbygden!
Längs med riksväg 13 ligger Sövestad kyrka, en vitputsad 1100-talskyrka i romansk stil. En historisk plats som har blivit lite av en mittpunkt här i byn. Här ligger busshållplatsen med kontinuerliga kommunikationer till de närliggande städerna Ystad och Sjöbo. Med bil tar det ungefär 10 minuter in till Ystad, där man enkelt kan ansluta sig till Pågatågen för vidare pendling om så önskas.
I juni 2019 invigdes den nya cykelvägen som sträcker sig mellan Sövestad och Hedeskoga, vilket i praktiken betyder att du kan cykla hela vägen mellan Sövestad och Ystad centrum på ett säkert sätt. I lagom pendlingstempo cyklar du sträckan på ca 20 minuter.
I familjevänliga Sövestad finns både fritidshem och skola som växer alltmer och idag finns cirka 135 elever fördelade på åk F-6. På Sövestads skola och fritidshem är det alltid nära till motion, lek och lärande utomhus året om.
För den aktive hittar vi Sövestads IF, en ideell idrottsförening som själv sköter och bedriver träning och aktiviteter för pojkar och flickor i åldrarna 3–16 år samt ett herrlag. Klubben brukar bland annat arrangera trevliga sommarfester och loppmarknader.
Sövestad bjuder verkligen in till bedårande naturomgivningar. Även närliggande Krageholmssjön har ett vackert promenadstråk på ca 10 km som tar dig runt hela sjön, där kan du beskåda det rika djur- och växtlivet. Inte långt därifrån ligger även den historiska Krageholms mölla som byggdes redan 1864.
För den som vill lyxa till det med övernattning finns det några bed and breakfast-verksamheter på gårdarna kring just dessa slätter. På perfekt läge med närheten till Ystad och den iögonfallande naturen runtom har detta blivit populärt. Ett av dessa gemytliga ställen är Gårdshotellet som förutom att erbjuda övernattning, rundvandringar och konferens även serverar sitt populära egenrostade kaffe. Närliggande Ystad står för det stora serviceutbud när det kommer till mataffärer, butiker, restauranger och nöjesliv. Men staden erbjuder också ett stort urval av förening- och idrottsliv.
Vill du köpa, sälja eller värdera bostad i Sövestad? Kontakta Bjurfors mäklare i Ystad! Passa också på att anmäla dig till vår kostnadsfria söktjänst Boagenten som hjälper dig att hitta ditt drömboende.
Kontakta mäklaren om du behöver hjälp att ta fram en boendekalkyl.
När du köper din bostad genom Bjurfors kan du ansöka om bolån till en förmånlig ränta hos våra banksamarbetspartners Söderberg & Partners och SEB.
Ansvarig mäklare