-
Köpa
Köpa -
Sälja
Sälja - Hitta bostad
- Skapa bevakning
- Hitta mäklare
Rymlig familjevilla - perfekt för dig som vill sätta din egen prägel
Svarte, Ystad
*Areauppgifter enligt taxeringsinformationen
Bra belägen familjevilla i etablerat bostadsområde i Svarte. Boende i 1,5 plan i välskött originalskick. Stort, bra garage och förråd.
Svarte är tätorten endast några kilometer väster om Ystad. Körsträckan mellan centralorten och Svarte är bedårande. Väg 9 går precis längs havet och du kan njuta av den vackra utsikten över Östersjön. Och faktum är - charmen finns där alla årstider.
Svarte har egen badbrygga nere vid havet och strax intill finns en skeppssättning vid namn Disas ting, en stensats med anor från järnåldern.
Byns skola sträcker sig upp till årskurs 6. Kanske bäst av allt är järnvägsstationen. Pågatågen tar dig till Ystad och vidare till Simrishamn i öster och till Malmö, Lund och Köpenhamn i väster.
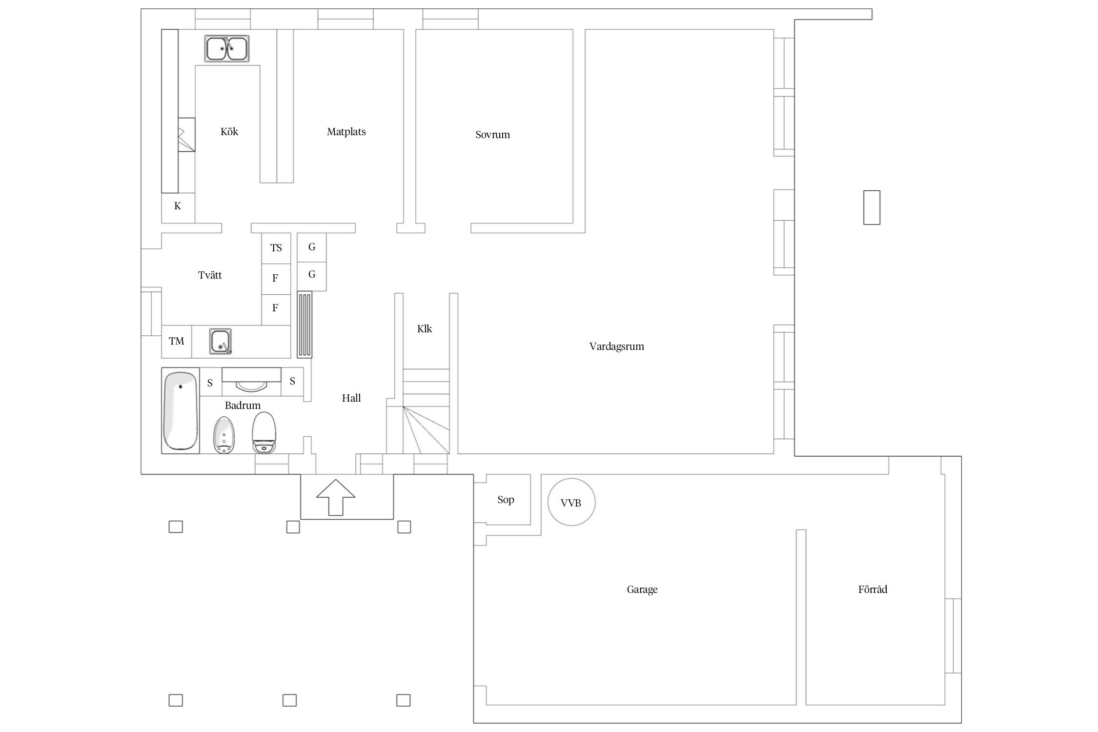
Välkommen till Gitarrgatan 7, en rymlig villa med stor potential. Biluppställningsplats under tak. Stort, bra garage med betongplatta på golv, nymålade väggar och nylagt papptak. Förrådsdel.
Ytterdörren till bostaden ligger i väster och leder in till en entré och hall med trappa upp till ovanvåningen. Badrum med klinkergolv, kakel på väggar, badkar och förrådsytor.
Stort allrum i vinkel, laminatgolv, fönster i söder. Detta kan delas till allrum + sovrum.
Två sovrum med fönster i öster.
Kök med klinkergolv, barkök, köksinredning i trä, matplats vid fönster i öster. Groventre med klinkergolv, utgång i norr.
Ovanvåning, stort sovrum med laminatgolv, fönster i norr (kan delas till två). Toalett med takfönster.
Stort allrum med laminatgolv, öppet upp i nock, utgång till balkong på gaveln, söderläge.



Cellon 11
*Areauppgifter enligt taxeringsinformationen
Kommunalt vatten, Kommunalt avlopp.
Stadsplan (1974-03-15)
Ingen fiber
Nätavgift elen 11918 kr, därefter är kwh-pris shablonberäknad till cirka 1 kr/kwh, summa 21000 kr.
4 kubikmeter vatten (stått tomt)
Fastigheten säljes med friskrivningsklasul.
Enligt överenskommelse
Det finns 4 st pantbrev uttagna om sammanlagt 470 000 kr
Tätorten Svarte har ett vackert läge vid kusten, väster om Ystad. Här finns bland annat en egen sandstrand med badbrygga mitt i byn, en pågatågsstation, flera konstnärsverksamheter och ett surdegsbageri. Längs kusten radar charmiga fiskarlängor och villor med strandtomter upp sig. Många är byggda under förra sekelskiftet. Från Kustvägen välkomnas man genom en majestätisk allé upp till Charlottenlunds slott. Pågatågsstationen är en uppskattad tillgång i Svarte där man kan färdas till såväl Malmö som Simrishamn.
Svarte är ett gammalt fiskeläge vid havet, beläget endast 5 minuter från Ystad. På kustsidan består bebyggelsen främst av tidstypiska fiskarlängor och hus från sent 1800-tal till tidigt 1900-tal med sagolika havsvyer från trädgårdarnas baksidor. Centrala Svarte utvecklades framför allt på 1960- och 1970-talen då man byggde många tegelvillor norr om kustvägen.
Nu har byggandet tagit fart igen och byn exploaterar västerut med helt nya bostadsområden med radhus, villor och kedjehus. Svarte har mycket att erbjuda. Inne i byn finns bland annat ett ekologiskt surdegsbageri, en AutoMat där man kan köpa livsmedel, två konstgallerier och fornlämningar. På sommaren är det nere vid stranden man samlas. Här finns en fin sandstrand med badbrygga och strandkiosken ”Svarte strandcafé”.
Byalaget i Svarte är mycket aktivt och anordnar årligen arrangemang såsom loppmarknad, midsommarfirande, sportaktiviteter och provsmakning. Det finns ett rikt utbud av aktiviteter såsom scoutkår, brottning, tennis och fotboll. En personlig tränare arrangerar populära löpargrupper i byn. Det lokala fotbollslaget Charlo är uppkallat efter närliggande Charlottenlunds slott.
Många väljer att bosätta sig i Svarte på grund av de goda pendlingsmöjligheterna. Här stannar pågatåget som kör både västerut och österut, från Malmö till Simrishamn. Till Ystad tar det endast ett par minuter. Barnfamiljer bor tryggt här med smidiga avstånd till såväl arbete som skola. Förskola och skola från f-6 samt fritids finns mitt inne i Svarte.
Den vackraste vägen till Svarte är utan tvekan via Charlottenlunds allé som också leder fram till Charlottenlunds slott. Bredvid allén går en naturskön stig att vandra eller springa på, som Svarteborna kallar för Kärleksstigen.
Vill du köpa, sälja eller värdera bostad i Svarte? Kontakta Bjurfors mäklare i Ystad! Passa också på att anmäla dig till vår kostnadsfria söktjänst Boagenten som hjälper dig att hitta ditt drömboende.
Kontakta mäklaren om du behöver hjälp att ta fram en boendekalkyl.
När du köper din bostad genom Bjurfors kan du ansöka om bolån till en förmånlig ränta hos vår samarbetspartner SEB.
| Bud | Budgivare | Datum | Tid |
|---|---|---|---|
| 3 155 000 kr | Budgivare 6 | 2026-01-16 | 14:17 |
| 3 150 000 kr | Budgivare 2 | 2026-01-16 | 14:14 |
| 3 120 000 kr | Budgivare 6 | 2026-01-16 | 14:10 |
| 3 115 000 kr | Budgivare 2 | 2026-01-16 | 14:07 |
| 3 105 000 kr | Budgivare 6 | 2026-01-16 | 14:02 |
| 3 100 000 kr | Budgivare 2 | 2026-01-16 | 14:00 |
| 3 090 000 kr | Budgivare 6 | 2026-01-16 | 13:56 |
| 3 080 000 kr | Budgivare 2 | 2026-01-16 | 08:31 |
| 3 075 000 kr | Budgivare 6 | 2026-01-16 | 08:11 |
| 3 045 000 kr | Budgivare 2 | 2026-01-15 | 17:47 |
| 3 040 000 kr | Budgivare 4 | 2026-01-15 | 13:31 |
| 3 025 000 kr | Budgivare 6 | 2026-01-15 | 10:25 |
| 3 005 000 kr | Budgivare 2 | 2026-01-15 | 10:15 |
| 2 950 000 kr | Budgivare 6 | 2026-01-15 | 09:00 |
| 2 900 000 kr | Budgivare 2 | 2026-01-14 | 17:45 |
| 2 875 000 kr | Budgivare 6 | 2026-01-14 | 10:44 |
| 2 870 000 kr | Budgivare 4 | 2026-01-14 | 09:42 |
| 2 865 000 kr | Budgivare 2 | 2026-01-14 | 09:38 |
| 2 860 000 kr | Budgivare 4 | 2026-01-14 | 09:32 |
| 2 855 000 kr | Budgivare 2 | 2026-01-12 | 15:12 |
| 2 850 000 kr | Budgivare 4 | 2026-01-12 | 13:15 |
| 2 840 000 kr | Budgivare 5 | 2026-01-12 | 08:55 |
| 2 830 000 kr | Budgivare 2 | 2026-01-11 | 18:10 |
| 2 820 000 kr | Budgivare 4 | 2026-01-11 | 16:10 |
| 2 800 000 kr | Budgivare 2 | 2026-01-11 | 14:33 |
| 2 750 000 kr | Budgivare 5 | 2026-01-11 | 13:17 |
| 2 700 000 kr | Budgivare 1 | 2026-01-11 | 11:08 |
| 2 650 000 kr | Budgivare 4 | 2026-01-11 | 10:20 |
| 2 615 000 kr | Budgivare 2 | 2026-01-11 | 10:19 |
| 2 600 000 kr | Budgivare 1 | 2026-01-11 | 09:48 |
| 2 525 000 kr | Budgivare 3 | 2026-01-11 | 09:43 |
| 2 500 000 kr | Budgivare 1 | 2026-01-11 | 09:29 |
| 2 410 000 kr | Budgivare 3 | 2026-01-11 | 09:24 |
| 2 400 000 kr | Budgivare 2 | 2026-01-11 | 09:12 |
| 2 390 000 kr | Budgivare 3 | 2026-01-11 | 09:06 |
| 2 380 000 kr | Budgivare 2 | 2026-01-11 | 08:57 |
| 2 370 000 kr | Budgivare 3 | 2026-01-10 | 21:31 |
| 2 360 000 kr | Budgivare 4 | 2026-01-10 | 21:15 |
| 2 350 000 kr | Budgivare 3 | 2026-01-10 | 19:33 |
| 2 300 000 kr | Budgivare 2 | 2026-01-10 | 15:22 |
| 2 295 000 kr | Budgivare 1 | 2026-01-10 | 13:11 |