-
Köpa
Köpa -
Sälja
Sälja - Hitta bostad
- Skapa bevakning
- Hitta mäklare
Renoverad 3 rok med möjlighet till 4 rok – stor terrass om ca 18 kvm
Utsälje, Huddinge
*I avgiften ingår: Värme/Vatten / Telenor Bredband 500/500 Mbits /TV 19 kanaler basutbud /IP-telefoni
**Enligt säljaren
Öppen visning, välkommen! Föranmäl gärna ditt intresse.
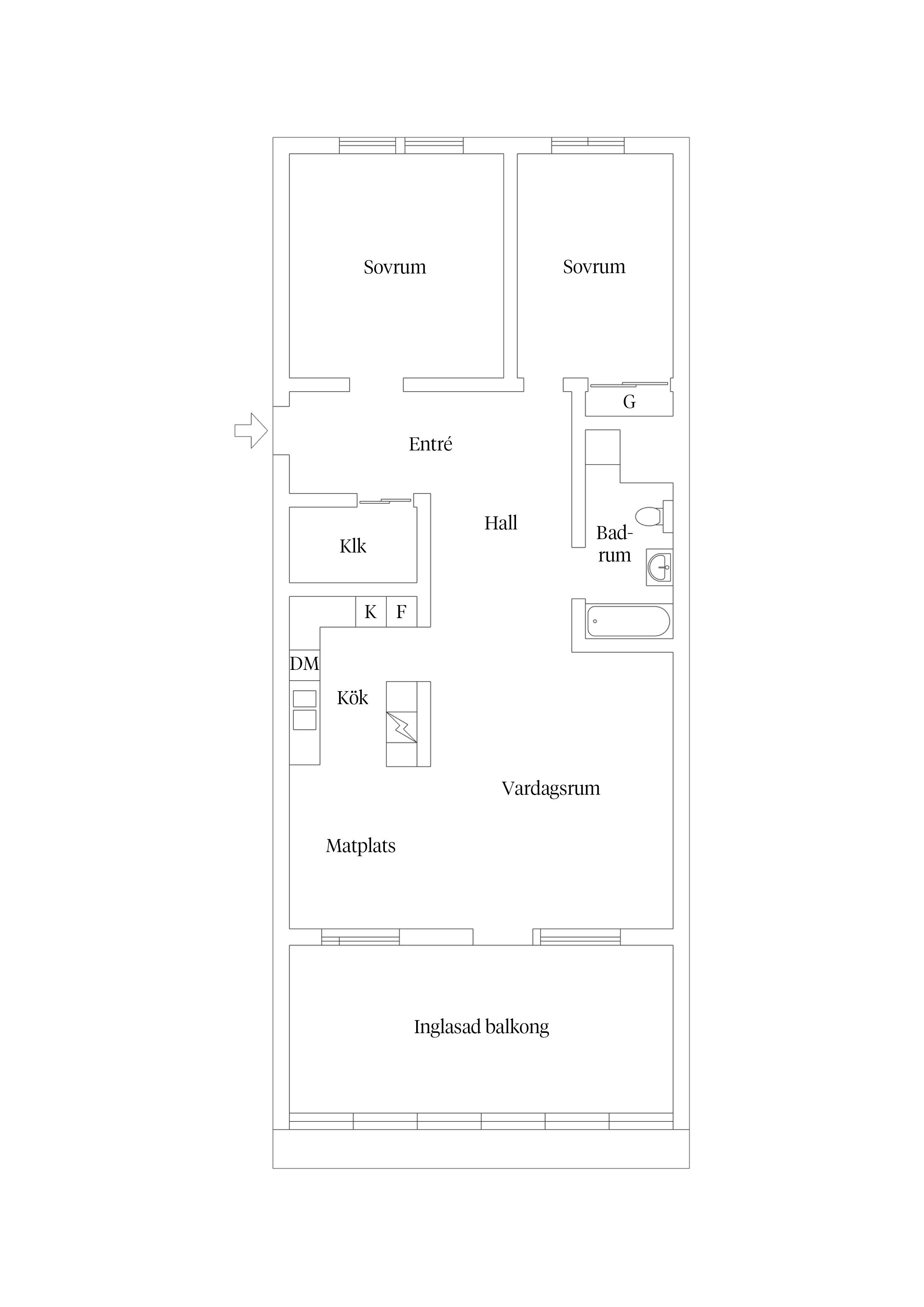
Smakfullt renoverad lägenhet som idag disponeras som 3 rok, med möjlighet att enkelt skapa ett tredje sovrum och därmed 4 rok.
Bostaden erbjuder två rymliga sovrum, varav det ena även ger möjlighet att inreda en extra gäst-wc. Den öppna planlösningen skapar generösa sällskapsytor med ett väl tilltaget vardagsrum som rymmer både soffgrupp och matplats. Härifrån nås den inglasade och isolerade terrassen om ca 18 kvm (ej inräknad i boarean) – ett extra rum som kan nyttjas året runt.
Köket är rymligt och funktionellt med en stor matplats för hela familjen. Välkomnande hall med god förvaring i en rymlig klädkammare.
Bostaden är belägen 1 trappa upp och tvättstuga finns smidigt en trappa ner i huset.
Här bor du i ett lugnt och uppskattat villaområde med närhet till nyrenoverad matbutik, flera förskolor samt Utsäljeskolan (årskurs 1–9). Goda kommunikationer via buss tar dig snabbt till Huddinge centrum med pendeltåg samt till Fruängen och tunnelbanans röda linje.
Föreningen är stabil, välskött och äger marken. Som boende har du tillgång till flera uppskattade gemensamhetsutrymmen såsom gym, bastu, pingisrum, samlingslokal samt gästlägenhet. Möjlighet finns till parkering med laddstolpe och bredband ingår i avgiften.
På kort promenadavstånd ligger Långsjön med fina gång- och motionsstråk året runt. Vintertid erbjuds plogad is för skridsko och längdskidor. Även Gömmarens naturreservat nås till fots, och Flottsbro – Stockholms största skidbacke – ligger endast ca 8 minuter bort med bil.



*Enligt säljaren
I avgiften ingår: Värme/Vatten / Telenor Bredband 500/500 Mbits /TV 19 kanaler basutbud /IP-telefoni
2025
Golv: Ny parkett i hela lägenheten.
Väggar och tak: Allt är nymålat.
Dörrar: Samtliga innerdörrar är utbytta.
Förvaring: Nya garderobslösningar och dörrar.
Badrum: Målat tak samt ny kommod inklusive tvättställ och blandare.
Separat förråd i källaren
Uterummet - Är ordentligt isolerad för att kunna användas året runt. Både golvet och sidoväggarna är isolerade. Fönstren är tvåglasfönster som håller värmen bra. Taket är byggt i flera lager av kanalplast (sandwich-konstruktion) för isolering.
Tillhörande föreningen finns 114 garageplatser. Det finns även 23 parkeringsplatser. Separat kö gäller. Vid intresse, kontakta Södertörn Kundservice, tel. 08-608 68 00 eller info.sodertorn@hsb.se. Det finns ett antal gästparkeringar utomhus i anknytning till garagen, samt ytterligare fyra stycken nere vid Snättringevägen 38 som tillhör föreningen. För samtliga dessa platser gäller parkeringsbiljett som går att lösa i automaten vid utomhus- parkeringen eller via SMS-biljett
TV: TV 19 kanaler basutbud Internet: Telenor Bredband 500/500 Mbits
Bostadsrättens indirekta nettoskuldsättning baseras på föreningens skulder/lån minus föreningens räntebärande tillgångar och likvida medel. Beräkningen är gjord via Bopedia. För mer information kontakta ansvarig fastighetsmäklare.
Driftskostnaderna består av hushållsel och försäkring. Detta är nuvarande ägares driftskostnader och kan variera bl.a. beroende på hur många personer som ingår i hushållet samt vilka avtal man väljer.
*Betalas av köpare
HSB:s Bostadsrättsföreningen Docenten i Huddinge. Föreningen är en äkta bostadsrättsförening. I föreningen finns 165 lägenheter
varav samtliga upplåtes med bostadsrätt. Det finns även 7 bostadsrättslokaler.
Bostadsrättsföreningen Docenten är en HSB-förening som ligger vid Bergakungsvägen i Huddinge. Föreningen omfattar 164 lägenheter i terrasshus och tvåvåningshus av radhustyp. Alla lägenheter har terrass, alternativt en stor terrassliknande balkong eller en uteplats på mark. Framtill avslutas terrass och balkong av en blomlåda med en odlingsbar yta. Alla hus som är högre än två våningar har tillgång till hiss.
Föreningen ligger inom ett äldre småhusområde med friliggande villor, och i nordväst angränsar föreningen till Utsäljeområdet med rad- och kedjehus.
Föreningen anordnar höst- och vårstädning. Dessutom aktiviteter som familjedag med pubkväll och adventsglögg.
El- eller gasolgrill är tillåtna på balkonger/terrasser/altaner. Det är inte tillåtet att använda kol eller bricketter.
Varje lägenhet har ett gallerförsett förråd som har samma nummer som lägenheten enligt HSB:s register (2-3 siffror).
2022
- Uppgradering till kodlås till portarna
- Invändig renovering av Vita Villan, gymmet och bastun.
- Besiktning, översyn och byte av takpannor och takplåt
- Byte av kondensor/kompressorpaket, fläktaggregat och värmeväxlare
2021
- Reparationer av garage och skyddsrum
- Upprustning av lekplats
- Upprustning av pergola
- Radonmätning har genomförts
- OVK har genomförts
- Föreningen har uppgraderats till 500 Mbit.
2020
- Renovering av resterande garage
- Renovering av resterande tvättstugor
2019
- Renovering av garage
- Renovering av skyddsrum
- Renovering av Vita Villan ( stambyte, ombyggnation nedervåning ytskikt i lägenheten)
- Renovering av tvättstugor
Planerade åtgärder enligt underhållsplan:
2026
- Byte av kondensor/kompressorpaket och fläktaggregat
2027
- Byte av entrépartier i aluminium
- Byte av takpannor och takplåt, etapp 1
- Byte av stuprör och hängrännor, etapp 1
- Utvändig målning av takutsprång och skärmtak
2028
- Byte av takpannor och takplåt, etapp 2
- Byte av stuprör och hängrännor, etapp 2
- Utvändig målning av takutsprång och puts
2029
- Utvändig målning av träpanel och plåt
- Byte av förrådsdörrar
Föreningen följer en underhållsplan som uppdateras årligen.
Föreningen har två garage under respektive lägenhetshus samt en utomhusparkering. För att ställa sig i kö eller byta mellan garage och utomhusparkering, ska du kontakta HSB Kundcenter.
Det finns 11 gästparkeringar utomhus vid infarten och på stora parkeringsplatsen, varav 2 har laddstation för elbilar samt 1 är handikapparkering. Ytterligare 5 parkeringar finns nere vid Snättringevägen 38 som tillhör föreningen. För samtliga dessa platser gäller parkeringsbiljett som går att lösa i automaten vid utomhusparkeringen eller via SMS-biljett samt Easypark (app).
Laddplatser för elbilar finns i både lilla och stora garaget. Det finns 6 platser i lilla garaget samt 6 platser i stora garaget. Laddboxarna hanteras av Laddaccess som föreningen har ett samarbetsavtal med.
Kostnad för garageplats är 497 kr.
Kostnad för utomhusparkering är 218 kr.
Telenor och basutbud TV
För boende hos Brf Docenten ingår bredband via Telenor (tidigare Bredbandsbolaget) för hastigheten 500/500 Mbit i månadsavgiften. Önskas högre hastighet får boende vända sig till Telenor och själv bekosta mellanskillnaden.
Gällande IP-telefoni ingår den fasta avgiften i månadsavgiften via Telenor.
Det finns en boulebana som är placerad vid Bergakungsvägen 9-11, uppe på platån.
I Vita villan finns ett fullt utrustat gym. Mot en årlig avgift på 500 kronor per hushåll får man tillgång till både gym och bastu.
Det finns en åldersgräns på 16 år. För att komma in i gymmet måste en tagg kvitteras ut. På övervåningen i Vita villan finns en lägenhet att hyra. Dels finns ett rum med fyra bäddar i våningssängar, samt ett rum med två separata sängar/dubbelsäng. Lakan måste den som hyr ta med.
På Bergakungsvägen 20 finns föreningens samlingslokal.
Tvättstugor finns på Bergakungsvägen nummer 9 och nummer 16. Tid bokas på bokningstavlor (med blå låsbricka) utanför tvättstugorna eller via internet.
Vid tvättstugorna bredvid Bergakungsvägen 9 finns snickarboa. Här finns arbetsytor, bla hyvelbänk och det finns också vissa enklare handverktyg att låna. Tapetserarbord finns att låna och finns placerat i Snickarboa.
Det finns bastu, fotbollsplan/basketplan, pingisrum.
AVGIFTER TILL HSB
Köparen skall betala en andelsavgift till HSB Södertörn om f.n. 500 kr/delägare samt en årsavgift om f.n. 300 kr/hushåll. Andelsavgiften återbetalas vid avflyttning från lägenheten och utträde ur HSB.
Friluftsliv - Gömmarens naturreservat ligger inom 10 minuters gångavstånd. Inom reservatområdet finns uppmärkta vandringsleder och även elljusspår. Sjön Gömmaren är en utmärkt badsjö och erbjuder fina fiskemöjligheter.
Långsjön ligger ca 5 minuters gångväg från området. Där finns det möjlighet att bada på sommaren och en kall vinter kan man också åka skridskor där. Vill man ta en promenad runt sjön tar det ca 1 1/2 timme.
Lida friluftsgård ligger vackert vid sjön Getaren, fem kilometer söder om Tullinge station. Här ägnar man sig åt vattenskidor, skridskor, utför- och längdskidåkning eller välj en av de många vandringslederna med bl a Sörmlandsleden som går igenom Lida. Det går även bra att åka pulka/kälke i backen.
Sundby Gård är ett mycket populärt utflyktsmål. De flesta besökare solar, badar, motionerar, umgås, rider och äter gott vid sina besök. Prova gärna det välbesökta cafeét. Det går även att hyra kanot eller roddbåt.
Flottsbro sportanläggning har Storstockholms högsta slalombacke, ett härligt naturbad, vandringsleder och många andra friluftsmöjligheter året runt.
Info till köparen:
Lägenheten är enligt föreningens lägenhetsförteckning registrerad som 2 rum och kök. Bostaden har dock sedan uppförandet disponerats som 3-4 rum och kök. Avvikelsen beror på att den vid föreningens bildande registrerades som 2 rok av skattetekniska skäl.
Utsälje är ett lugnt, barnvänligt småhusområde, nära naturen och storstadens utbud av butiker och nöjen. Här finns framförallt villor, parhus och radhus men även bostadsrätter på Bergakungsvägen. Området är granne med villaområdena Snättringe och Segeltorp.
Det är nära till ett av Europas största handelscentra, Kungens Kurva, med Herons City, IKEA och många stormarknader och kända varumärken. Det är också nära till Stuvsta Centrum, där det finns ett flertal butiker och vårdcentral m.m. Det finns tre busslinjer, 710 och 703 som går på Häradsvägen samt 704 som går genom området. Med bussarna tar man sig enkelt till Fruängen och Skärholmen (T-bana röda linjen) eller Stuvsta och Huddinge C (pendeltåg). Det tar ca 13 minuter från Stuvsta C till Stockholm C.
Det finns flera förskolor i Utsälje och Utsäljeskolan (F6) står inför en renovering och utökning när man bygger för framtiden. Skolan blir en F9 och får samtidigt en idrottshall. Andra grundskolor i området är Snättringeskolan (F6) och Källbrinksskolan (F9). I Utsälje är det nära till friluftsområden och naturreservat med motionsspår och vandringsleder. Fina Tranparken ligger precis vid Långsjönsvatten och Lekplatsen är avsedd för barn i olika åldrar. Den har temat ”den förhistoriska lekplatsen” och transporterar besökaren tillbaka till urtiden. Utrustningen och annat på lekplatsen är främst av trä och sand. Det finns klätternät i form av en pyramid, lekskulpturer, hoppkubbar, kompisgunga och klätterställningar. Det finns sandytor med dinosaurieskelett I ena delen av lekplatsen finns en konstgräsplan och gungor. Området Gömmaren med bär- och svampmarken ligger intill Utsälje. Källsjön Gömmaren ligger i naturreservatet och erbjuder klippbad. Närmaste sjö, med promenadavstånd, är den populära badsjön Långsjön.
Köpa, sälja eller värdera bostad i Utsälje? Kontakta våra Bjurfors mäklare i Huddinge! Passa också på att anmäla dig till vår kostnadsfria söktjänst Boagenten som hjälper dig att hitta ditt drömboende.
Kontakta mäklaren om du behöver hjälp att ta fram en boendekalkyl.
När du köper din bostad genom Bjurfors kan du ansöka om bolån till en förmånlig ränta hos våra banksamarbetspartners Söderberg & Partners och SEB.
Öppen visning, välkommen! Föranmäl gärna ditt intresse.
Ansvarig mäklare