-
Köpa
Köpa -
Sälja
Sälja - Hitta bostad
- Skapa bevakning
- Hitta mäklare
Familjevänligt BR-radhus i Vistaberg
Vistaberg, Huddinge
*Tv, bredband (1000/1000), carport med eluttag och sophantering ingår i avgiften.
**Enligt bostadsrättsföreningen
Enligt föreningen är bostaden på 4,5 rum och kök
Anmäl dig gärna till visningen
I barnvänliga Vistaberg väntar detta moderna radhus, byggt 2008 – en perfekt plats för dig som vill kombinera vardagslyx med tryggt och trivsamt boende.
Huset bjuder på en öppen planlösning med generös takhöjd (2,70 m i entréplan) som skapar en härlig känsla av rymd. Stora fönsterpartier släpper in massor av dagsljus och vattenburen golvvärme gör att hela hemmet känns varmt och välkomnande året runt. Uteplatsen i soligt sydvästläge är som gjord för sommarens grillkvällar, perfekt belägen med föreningens innergård utanför. Här kan barnen leka fritt medan du har full koll från uteplatsen, köket eller vardagsrummet. Dessutom finns ett praktiskt utvändigt förråd – perfekt för barnvagnen, cyklarna och alla uteleksaker.
Föreningen Eldtornet är en välskött, lagom stor förening och omfattar totalt 27 radhus i bostadsrättsform. Det gör att föreningen har fördelen av att vara personlig och trivsam men inte för liten och sårbar för prisförändringar/större renoveringsarbeten. Alldeles nyligen har föreningen genomfört en större avgiftssänkning och det kan bli ytterligare sänkningar framöver.
Radhuset ligger i charmiga trädgårdsstaden Vistaberg där smågator, alléer och grönska skapar en harmonisk och barnvänlig miljö. I närområdet finns flera nybyggda förskolor, skolor och lekplatser – allt du behöver för vardagen med små eller stora barn.
För dig som pendlar går bussen till Huddinge C på bara 8 minuter – därifrån tar du dig enkelt vidare med pendeltåg, och kan passa på att handla, fika eller äta ute. Är ni istället sugna på friluftsliv och äventyr finns Gömmarens naturreservat nära till hands med badsjöar, grillplatser och fina vandringsleder. Föreningslivet vid Källbrinks IP erbjuder dessutom allt från fotboll till padel och friidrott, och ett modernt gym finns på gångavstånd.
Renoveringar i bostaden:
2025: Nya golvlister i entréplan
2025: Ommålning väggar i alla rum
2025: Ny ugn och spis
2024: Nytt staket mot granne
2020: Tvättmaskin
2018: Diskmaskin
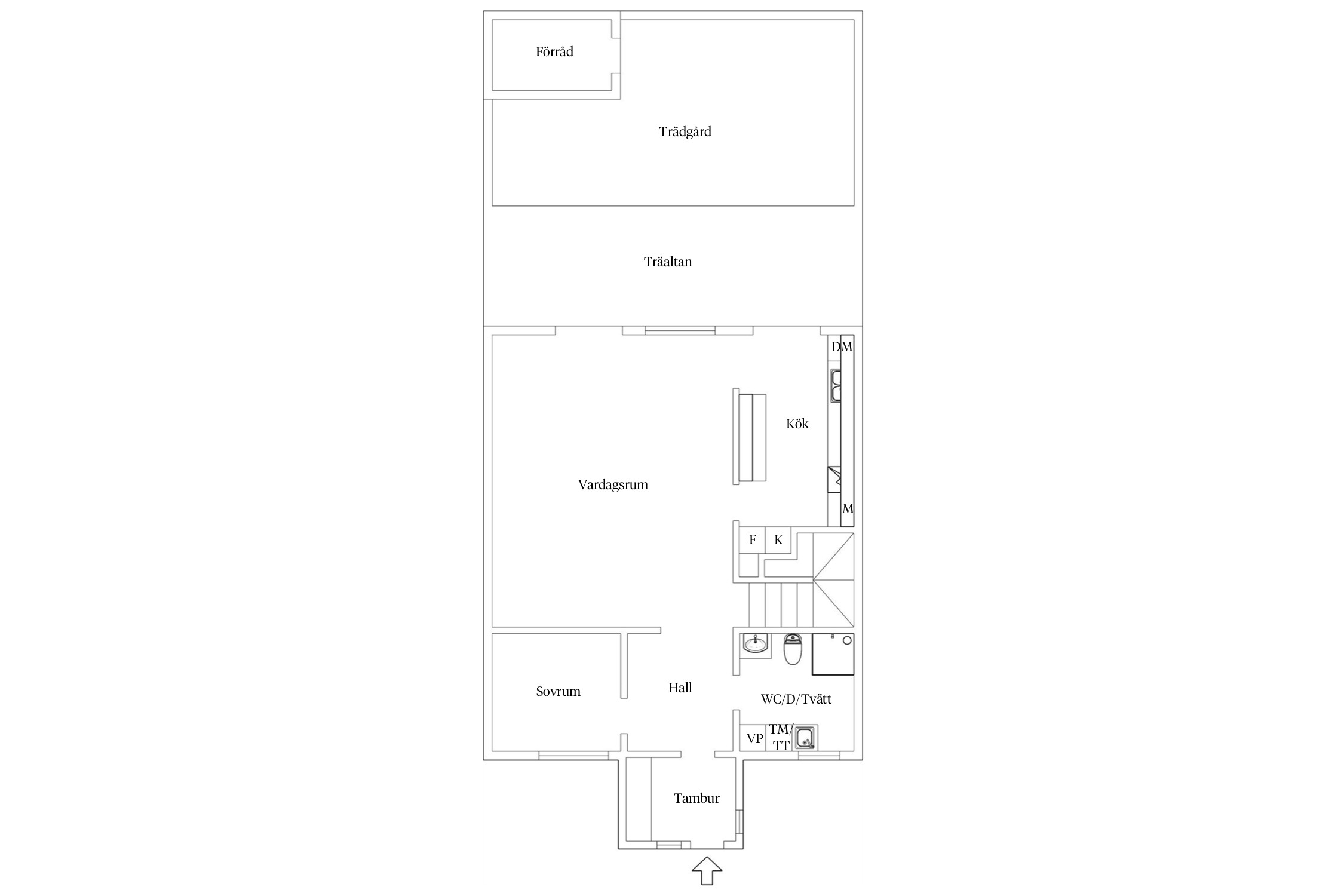
ENTRÈPLAN (Hela entréplanet har vattenburen golvvärme)
HALL
Praktisk hall med klinkergolv och vitmålade väggar. Stort fönster i entrépartiet.
SOVRUM 1
Parkettgolv och tapet/målade väggar.
BADRUM 1
Klinkergolv med golvvärme och kaklade väggar. Här finns tvättmaskin, torktumlare, frånluftsvärmepump, fönster, dusch med glasdörrar samt handfat med kommod.
VARDAGSRUM
Härligt vardagsrum med flödande ljus tack vare stora fönsterpartier från golv till tak.
KÖK
Stilrent kök med vita köksluckor och stor förvaring under trapp. Inbyggd ugn och mikrougn, induktionshäll, kyl, frys, fläkt samt diskmaskin.
UTEPLATS
Utgång till uteplats mot sydväst med mycket sol markis. Uteplatsen vetter mot föreningens innergård. Plats för matbord och loungedel. På tomten finns en förrådsbyggnad.
ÖVRE PLAN
HALL
Parkettgolv. I hallen finns även en klädkammare.
BADRUM 2
Mycket stort badrum med klinkergolv, golvvärme och kakel. Stort fönster, badkar, handdukstork samt handfat med kommod.
SOVRUM 2
Parkettgolv och målade väggar i grå ton/vitmålat.
SOVRUM 3
Parkettgolv och målade väggar i blå ton/vitmålat.
SOVRUM 4
Parkettgolv och målade väggar/fondtapet samt klädkammare.



Planlösning entréplan
Planlösning övre plan
*Enligt bostadsrättsföreningen
Enligt föreningen är bostaden på 4,5 rum och kök
Tv, bredband (1000/1000), carport med eluttag och sophantering ingår i avgiften.
Förråd på uteplatsen på baksidan. Förvaringsmöjlighet finns även på vind.
Härlig uteplats med markis mot sydväst. Uteplatsen har plats både för matbord och loungedel.
Carportplats med laddplats för elbil ingår i avgiften.
TV och streaming, paket Lagom
Ingår i avgiften (1000/1000)
Bostadsrättens indirekta nettoskuldsättning baseras på föreningens skulder/lån minus föreningens räntebärande tillgångar och likvida medel. Beräkningen är gjord via Bopedia. För mer information kontakta ansvarig fastighetsmäklare.
Övrigt avser områdesbelysning. VA avser årsavgift VA fördelning fast avgift om 337 kr och preliminär vattenförbrukning enl schablon om 194 kr. Kostnaden för uppvärmning inkluderar även hushållsström.
*Betalas av köpare
Föreningen består av 27 radhuslägenheter i två plan, samtliga upplåtna med bostadsrätt. Uppvärmning: samtliga lägenheter har en tillhörande frånluftsvärmepump.
Alla lägenheter har separata förråd samt parkeringsplats med motorvärmare.
Avgiftssänkning från 2025 är genomförd. Ytterligare avgiftssänkningar kan komma då ett av föreningens lån sätts om i september 2025.
Föreningen följer en underhållsplan.
2017 - Taköversyn + installerat nya säkerhetsstegar enligt den nya lagstiftningen
2020 - OVK-besiktning + radonmätning
2021 - Tätning av vindsluckor
2021 - Ny gräsmatta + gångar på innergården
2022 - Blästrat + målat om fasaden, entré, förråd och mellanväggarna på altanerna ommålade
2022 - Alla fasader och förråd målade
2022 - Stuprännor på förråd uppsatta
2024 - Staket på baksidan reparerat
2024: Reparation och underhåll stuprör och hängrännor
2025 - Installation av laddstolpar
2025 - Byte av ekonomisk förvaltare
2025 - Avgiftssänkning med ca 12%
2025 - Rengöring av ventilationskanaler
2025 - Stamspolning
2025 - Översyn av tak
2025 - Byte tilluftsventiler i alla värmepumpar
2025 - Ny hemsida
• Gemensamma städdagar med korvgrillning 2ggr/år
Parkeringsplats med elstolpe ingår i avgiften.
Föreningen är uppkopplade via Telia. I månadsavgiften ingår digital-TV, IP-telefoni samt bredband.
Föreningen har ett gemensamt förråd med trädgårdsredskap. På innergården finns en större gemensam gräsyta som nyttjas av föreningens medlemmar.
BUDGIVNING
Vi använder oss av öppen budgivning, vilket innebär att mäklaren löpande redovisar det högsta budet till budgivarna som då har möjligheten att bjuda över varandra. Mäklaren noterar samtliga bud med namn på budgivaren, tidpunkt och bud, samt eventuella villkor med budet.
Alla som deltar i budgivningen accepterar att fastighetsmäklaren lämnar ut budgivningslistan med budgivarnas namn och telefonnummer samt information om de bud som inkommer till säljare och köpare.
I gammal kulturbygd ligger moderna Vistaberg - ett mycket populärt bostadsområde framförallt för barnfamiljer, men också andra - med närhet till service och kommunikationer i Huddinge Centrum.
Vistaberg ligger mellan Glömsta (västerut) och Fullersta/Huddinge C (österut). Söderut avgränsar Glömstavägen området och norrut ligger Vistaskogen i kuperat område, högsta berg är 75 meter högt.
Vistaberg är bebott sedan 2000 år tillbaka. Det finns talrika fornlämningar från den äldre järnåldern. Första gången Vistaberg nämns i skrift är 1331, då den kallas Viestum. Ordet antas komma från vide, dvs "videstället".
På 1500-talet bestod bebyggelsen av två gårdar, varav en ägdes av Svante Sture den yngre. Kvar finns fortfarande den stora ladugårdsgrunden. Under 1600-1800-talen bedrevs jordbruk. Oftast var Vista ägd av storjordbrukare med flera andra gårdar.
På 30- och 40-talen styckades Vistas markområden, i likhet med andra gårdar, upp. Här byggdes fritidshus och villor utan kommunalt avlopp.
I västra delen av Vistaberg finns Lövsta Gård kvar med jordbruk och djurhållning (får, hästar, grisar och höns).
På 1990- och 2000-talet uppfördes ny bebyggelse med radhus, kedjehus, flerfamiljshus och fristående villor. En ny detaljplan antogs i början av 2000-talet, vilket möjliggjorde många fler nya bostäder i Vistaberg.
Första etappen blev Vistabergs Trädgårdsstad längs Vistabergs Allé. Här finns hus som vänder sina entréer mot gatan på klassiskt trädgårdsstadsmanér. Bakom husen finns gott om grönytor för de privata trädgårdarna. Bland naturliga kullar och stigar har det byggts par- och radhus, villor och flerbostadshus. En del av husen har en härlig utsikt över området. Flerbostadshusen har gemensamma utemiljöer, inramat av plank, bersåer och ytor för samvaro.
Vista Skogshöjd blir den sista etappen av utbyggnaden. Med Vistaskogen runt knuten byggs 300-400 nya bostäder och en förskola. Det blir stadsvillor, radhus, parhus och flerbostadshus med blandad upplåtelseform.
Ytterligare förslag finns i kommunen om utveckling av Vistaberg, närmare bestämt området mot Rosenhill och Huddinge C. Förslaget är ute för samråd. Avsikten är att Fullersta, Vistaberg och Huddinge C ska byggas ihop när det glest bebyggda Rosenhill förtätas. Även här planeras en förskola.
Det finns nu fyra förskolor i Huddinge, varav den senaste, Utsikten i norra Vistaberg, öppnades 2016.
Vistaberg har två egna skolor. Vistaskolan (F9) ligger i Trädgårdsstaden och byggdes redan i mitten av 50-talet, ritad av arkitekten Karl W Ottesen. 2004 kompletterades den med ytterligare byggnader. Intill Vistaskolan ligger Rosenhillskolan, som är till för elever med behov av särskilt stöd. Det finns ytterligare grundskolor i Fullersta, Glömsta, Källbrink och Huddinge C.
I Vistaberg har man nära till Huddinges fyra kommunala och två fristående gymnasieskolor liksom Södertörns Högskola i Flemingsberg.
Närmaste handelscentrum är Huddinge Centrum, med många butiker, restauranger, caféer och allmän service. Det är också nära till IKEA, Heron City och ett flertal kända stormarknader i ett av Europas största handelscentra, Kungens Kurva. Via Glömstavägen tar man sig ut till E4:an och Kungens Kurva/Skärholmen.
Det tar 15-30 minuter att promenera till Huddinge C. Med cykel är man där på 5-10 minuter beroende på var man bor. I Huddinge C finns pendeltågsstation. På ca 15 min är man inne i Stockholm C.
Buss går förstås också bra att åka till Huddinge C. Buss 714 går genom området och har kvartstrafik i rusningstid. Det finns flera linjer som trafikerar Glömstavägen. Linjerna går till Huddinge C, Huddinge Sjukhus, Masmo, Kungens Kurva och Skärholmen (T-bana röda linjen).
Vissa turer går till Flottsbro Friluftsområde via Glömsta. Med bil når man området på ca 10 minuter. I Flottsbro finns sommartid badplats, kanotuthyrning och servering. På vintern finns tre skidbackar och spår för långfärdsskridsko.
I Vistaberg har man nära till naturen och friluftsliv för motion och rekreation. Gömmarens naturreservat med klarvattensjön Gömmaren ligger på cykelavstånd. En cykelled på 6 km genom naturreservatet går till Kungens Kurva. Här finns stigar, elljusspår, cykel- och vandringsleder. Vid Lövsta Gård finns en ridskola för den hästintresserade.
Källbrinks IP ligger strax norr om Vistaberg och har motionsspår med ca 1,9 km elljus, en friidrottsanläggning, fotbollsplaner, rugbyplan, tennishall, m.m.
Vistaberg har under 2017 fått en ny lekplats för barnen, Honungsparken. Det är en större park som är tänkt för lek, sport och vila. Det finns gräsyta och en öppen dagvattenbäck. Parken är belyst och det finns ett cykelställ vid den östra ingången samt en del bänkar och picknickbord. Lekplatsen passar för barn i olika åldrar. Den har bondgårdstema och mycket är gjort i trä. Det finns gungdjur, klätterställningar med rutschkanor och klätternät, gungor, lek-torn, sandlåda med bakbord samt träskulpturer i form av djur och traktorer.
Köpa, sälja eller värdera bostad i Vistaberg? Kontakta våra Bjurfors mäklare i Huddinge! Passa också på att anmäla dig till vår kostnadsfria söktjänst Boagenten som hjälper dig att hitta ditt drömboende.
Kontakta mäklaren om du behöver hjälp att ta fram en boendekalkyl.
När du köper din bostad genom Bjurfors kan du ansöka om bolån till en förmånlig ränta hos vår samarbetspartner SEB.
Anmäl dig gärna till visningen
Ansvarig mäklare