-
Köpa
Köpa -
Sälja
Sälja - Hitta bostad
- Skapa bevakning
- Hitta mäklare
Med oslagbar utsikt belägen i populära Dalénum återfinns denna moderna 4-5:a
Dalénum, Lidingö
*I den angivna månadsavgiften ingår värme och kallvatten. Varmvatten debiteras utefter förbrukning. En obligatorisk avgift om 220 kr/mån tillkommer för bredband/TV. Beloppet redovisas även under driftkostnader.
**Enligt bostadsrättsföreningen.
På Förhand ligger bostäder som av olika anledningar inte är ute till försäljning just nu men som kan komma att säljas om förutsättningarna är rätt.
Högt upp i huset, havsutsikt, stor balkong, hiss och garage skapar ett bekvämt boende i toppskick. Detta är en lägenhet som måste upplevas på plats!
Unikt tillfälle att förvärva denna 4-5:a högt upp på fjärde våningen med hiss, belägen i ett av Dalénums absolut bästa lägen, bara ett stenkast från strandpromenaden. Vakna upp till en oslagbar utsikt över Stockholms inlopp från den stora balkongen i söderläge. Lägenheten erbjuder ett modernt och bekvämt boende med trevliga sällskapsytor och generöst ljusinsläpp från stora fönsterpartier. Här bor du i toppskick med alla viktiga detaljer på plats.
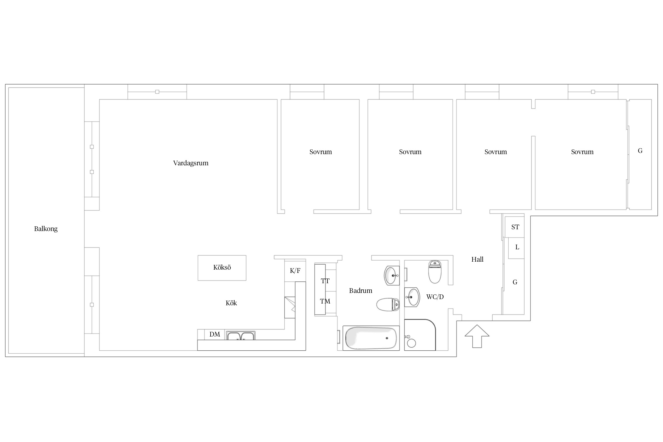
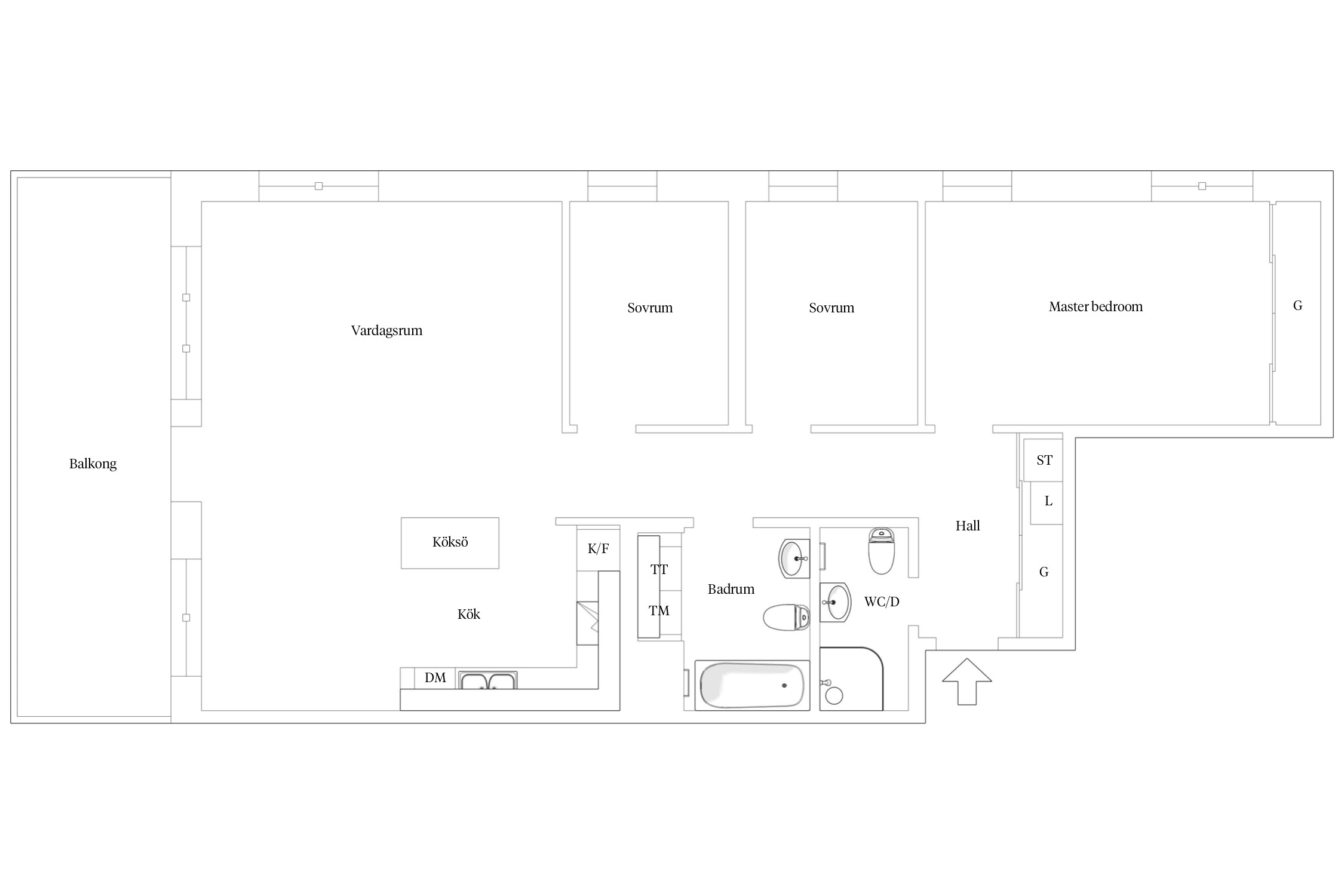
Under sommaren kan du njuta av båtlivet från balkongen, och med badrockavstånd till havet är ett morgondopp aldrig långt borta. Du har direktaccess till utmärkta kommunikationer in till centrala Stockholm, både via buss, Lidingöbanan och båtpendeln (SL-kort gäller). Det är svårt att inte falla för denna lägenhet, som bland annat erbjuder ett modernt, välplanerat och inbjudande kök med fräscha skåp och vackert parkettgolv. Det öppna, stora och sociala vardagsrummet har en öppen planlösning mellan matsalsdel och kök. Bostaden disponeras idag med fyra sovrum, men kan enkelt återställas till ett master bedroom och två ytterligare sovrum. Två rymliga badrum varav det ena är fullt utrustat med tvättmaskin och torktumlare.
Här bor du högt, harmoniskt och med oslagbar utsikt i en stilren modern byggnation uppförd av JM. Hiss, garage, stor balkong och tillgång till övernattningslägenhet gör att detta boende passar både paret, singeln och den äldre som önskar ett bekvämt och unikt boende. Närheten till vackra promenadstråk och fina grönområden, med skogsbackar för picknick precis runt hörnet, gör detta till en idyllisk plats att bo på. Här bor du med SATS, restauranger och caféer runt knuten, och innerstan med dess rika utbud av shopping och nöjen når du enkelt med cykel, bil eller varför inte båten. Detta är en bostad med unikt läge i Dalénum.
Varmt välkommen på visning!
HALL/INRE HALL: Välkomnande och möblerbar hall med generösa förvaringsmöjligheter och plats för avhängning. Fin ekparkett som flyter genom hela bostaden.
VARDAGSRUM: Rymligt och lättmöblerat vardagsrum med gott om plats för en rejäl soffgrupp och övrig möblering. Den öppna planlösningen mot kök och matplats skapar en fin social yta med härligt ljusinsläpp från stora fönsterpartier. Utgång till den skyddade och stora balkongen i söderläge från vardagsrummet.
KÖK: Stilrent kök med härliga ytor som passar perfekt för sociala tillställningar, tack vare den fina anknytningen till vardagsrummet. Vita luckor och stommar matchade med matt vitt kakel ovan arbetsbänkar och väl tilltagna arbetsytor med köksön. Generösa förvaringsmöjligheter i över- och underskåp. Köket är utrustat med påkostade vitvaror: induktionshäll, integrerad ugn, spisfläkt, inbyggd mikrovågsugn, integrerad diskmaskin samt kyl/frys.
SOVRUM: Rymligt sovrum som passar perfekt som barnrum eller arbetsrum.
SOVRUM 2: Ljust och harmoniskt sovrum med gott om plats för större säng och övrigt möblemang.
SOVRUM 3: Sovrum perfekt som barnrum eller arbetsrum.
SOVRUM 4: Det fjärde och tredje sovrummet kan enkelt återställas till ett stort master bedroom, vilket ger extra flexibilitet beroende på dina behov.
BADRUM 1: Rymligt helkaklat badrum med vitt kakel på väggar och stilrent klinkergolv. Utrustat med wc, dusch och tvättställ med förvaringsmöjligheter i kommod.
BADRUM 2: Toppmodernt badrum med vitt kakel på väggar och stilrent klinkergolv. Fullt utrustat med tvättmaskin och torktumlare sida vid sida under praktisk arbetsyta i stilrent svart.
Till lägenheten disponeras även ett förråd.



Nuvarande planlösning
Alternativ planlösning
*Enligt bostadsrättsföreningen.
I den angivna månadsavgiften ingår värme och kallvatten. Varmvatten debiteras utefter förbrukning. En obligatorisk avgift om 220 kr/mån tillkommer för bredband/TV. Beloppet redovisas även under driftkostnader.
Garage finns under gården och parkeringsplatserna nås enkelt med hiss från bostaden. Föreningen disponerar över 124 p-platser, varav 118 stycken i garage. Garageplats kostar 1 100 kr/månad.
Bostadsrättens indirekta nettoskuldsättning baseras på föreningens skulder/lån minus föreningens räntebärande tillgångar och likvida medel. Beräkningen är gjord via Bopedia. För mer information kontakta ansvarig fastighetsmäklare.
Övrigt avser avgift för bredband.
*Betalas av köpare
Brf Kajtorget Dalénum består av sammanlagt 141 lägenheter som har uppförts i fem flerbostadshus i fem till sju våningar. Lägenheterna är mellan ett till sex rum och kök. Huset som uppfördes av JM stod klart för inflyttning under 2018.
Alla bostäder har generösa balkonger eller uteplatser, flertalet med utsikt över Stockholms inlopp och Djurgården. Kajtorgets gemensamma gård erbjuder platser för både rekreation och lek, sittbänkar, hängmattor, grönytor och lekmöjligheter för barnen blir en naturlig mötesplats och kvarterets hjärta. Från gården är det bara några få trappsteg ner till den nyanlagda kajpromenaden. Närmast vattnet uppförs ett torg och längs med den nyanlagda kajen kommer gäster tillfälligt kunna angöra sin båt.
Den totala boarean är 11 050 kvm, två lokaler med lokalarea på 115 kvm.
Föreningen är en äkta bostadsrättsförening som äger marken.
Föreningen har beslutat att höja hyran för parkeringsplats i garaget från och med den 1/3-2024.
Fastigheten är fullvärdesförsäkrad i Trygg Hansa.
Garage finns under gården och parkeringsplatserna nås enkelt med hiss från bostaden. Föreningen disponerar över 124 p-platser, varav 118 stycken i garage. Garageplats kostar 1 100 kr/månad.
Tv, bredband och IP-telefoni via Telia Triple Play, ingår med en obligatorisk avgift i månadsavgiften.
Trevlig innergård med sittgrupper, planteringar och lekplats. Cykelparkering finns på gården, såväl under tak som i låsbara förråd.
Barnvagnsrum finns i källaren, där även förråd finns för de boende. Det finns även sopsortering där man kan slänga glas, kartong, matavfall etc. Styrelserum finns för styrelsens arbete.
Föreningen godkänner delat ägande.
Välkommen att bo och trivas på Lidingö som även kallas för den gröna ön. Här finns stora möjligheter till friluftsliv året om med naturreservat att ströva i, golfbana, fina badplatser samt skidspår och slalombacke. Hälsa och friskvård står i fokus och varje år arrangeras Lidingöloppet, världens största terränglopp och seglartävlingen Lidingö Runt. Berömda Millesgården ger ro åt själen.
Service
Lidingö centrum är uppbyggt kring ett torg som skapar en trevlig småstadskänsla. Här finns både stora affärskedjor och mindre originella butiker samt flera trevliga restauranger och snabbmatsställen. Det finns också ett bibliotek, en teater och fritidsgårdar samt läkarmottagningar och folktandvård. En stor återvinningscentral finns i Stockby. Gångsätra har ett kommunalt inomhusbad och det finns flera bra utomhusbad på ön, Lidingövallen för olika aktiviteter samt ishall.
Skolor
På Lidingö finns fem skolområden med förskola och grundskola till årskurs nio. Det finns två kommunala gymnasieskolor. Här finns även fem fristående grundskolor samt Bosöns idrottshögskola.
Kommunikationer
Lidingöbanan har ändstationen Gåshaga längst österut samt i Ropsten där tunnelbanan ansluter. Det finns ett omfattande bussnät på ön samt reguljära båtförbindelser mellan Lidingö, Nacka strand och Nybroviken samt ut till Stockholms skärgård. Bryggplatser finns vid Klippudden, Larsberg och Gåshaga.
Köpa, sälja eller värdera bostad i Lidingö kommun? Kontakta våra mäklare på Lidingö! Passa också på att anmäla dig till vår kostnadsfria söktjänst Boagenten som hjälper dig att hitta ditt drömboende.
Kontakta mäklaren om du behöver hjälp att ta fram en boendekalkyl.
När du köper din bostad genom Bjurfors kan du ansöka om bolån till en förmånlig ränta hos vår samarbetspartner SEB.
Ansvarig mäklare