-
Köpa
Köpa -
Sälja
Sälja - Hitta bostad
- Skapa bevakning
- Hitta mäklare
Möjligheternas radhus i omåttligt populära Hersby Åker!
Hersby Åker, Lidingö
*Areauppgifter enligt taxeringsinformationen
På Förhand ligger bostäder som av olika anledningar inte är ute till försäljning just nu men som kan komma att säljas om förutsättningarna är rätt.
Nu ges tillfälle att förvärva ett av de populära radhusen vid Hersby Åker. Barnvänligt område med närhet till allt. Moderniseringsbehov föreligger.
Sällsynt tillfälle att förvärva ett av de eftertraktade radhusen vid Hersby Åker som byggdes i början av 50-talet med karaktäristiska tegelfasader. På indraget och skyddat läge i området saluför vi nu denna oslipade diamant med en rad tidstypiska detaljer bevarade såsom öppen spis, vackra trappräcken och fönsterbänkar. Huset har idag ett genomgående moderniseringsbehov så här finns en stor möjlighet att sätta sin egen prägel på detta charmiga hus.
Dispositionen erbjuder tre våningsplan där entréplanet inrymmer hall, kök, vardagsrum samt utgång till baksida med trädgård och uteplats i söderläge. På övre planet finns tre bra sovrum, ett av dem med access till balkong, badrum samt tillgång till förvaringsvind via utfällbar trappa. I källarplanet finns förvaringsutrymmen samt tvättstuga. Även access via trappa från källaren och ut till tomten på baksidan.
Läget på Lidingö är idealiskt – nära skolor, förskolor, service och kommunikationer. Natur och vatten finns runt hörnet, vilket gör det enkelt att ta en joggingtur eller ett dopp såväl i havet som i insjö. Ett hem som erbjuder både funktion och livskvalitet. Mycket barnvänligt område med direkt närhet till fantastisk natur, lekplatser, bollplaner, skolor, förskolor samt bra kommunikationer mot Lidingö Centrum och vidare mot Ropsten. Det perfekta valet för er som vill ha närhet till allt på Lidingö och dessutom cykelavstånd till Stockholms centrala delar.
Hersby Åker byggdes på 50-talet och bedöms idag som kulturhistoriskt intressant för dess fina placering i terrängen, omsorg i materialval, detaljutformning och färgsättning. För utformningen och planeringen av området anlitades arkitekten Holger Blom, senare stadsträdgårdsmästare i Stockholm. Mycket arbete lades ner på att studera radhusmiljöer i Danmark och England med betydande tradition gällande denna bebyggelseform. För färgsättning av till exempel fönster tog Holger Blom hjälp av kollegor från konstakademin. Valet av tegel som fasadtyp, var ovanligt för denna tid då det för tiden mera betraktades som ett fabriksbyggnadsmaterial och inte var ”fint nog”. Arkitekt Blom valde ändå tegel för dess underhållsfrihet, något vi kan vara glada för idag och som ger längorna en stor portion charm och karaktär.
Välkomna att kontakta ansvarig fastighetsmäklare, Robert Nilsson, vid frågor om boendet och området.
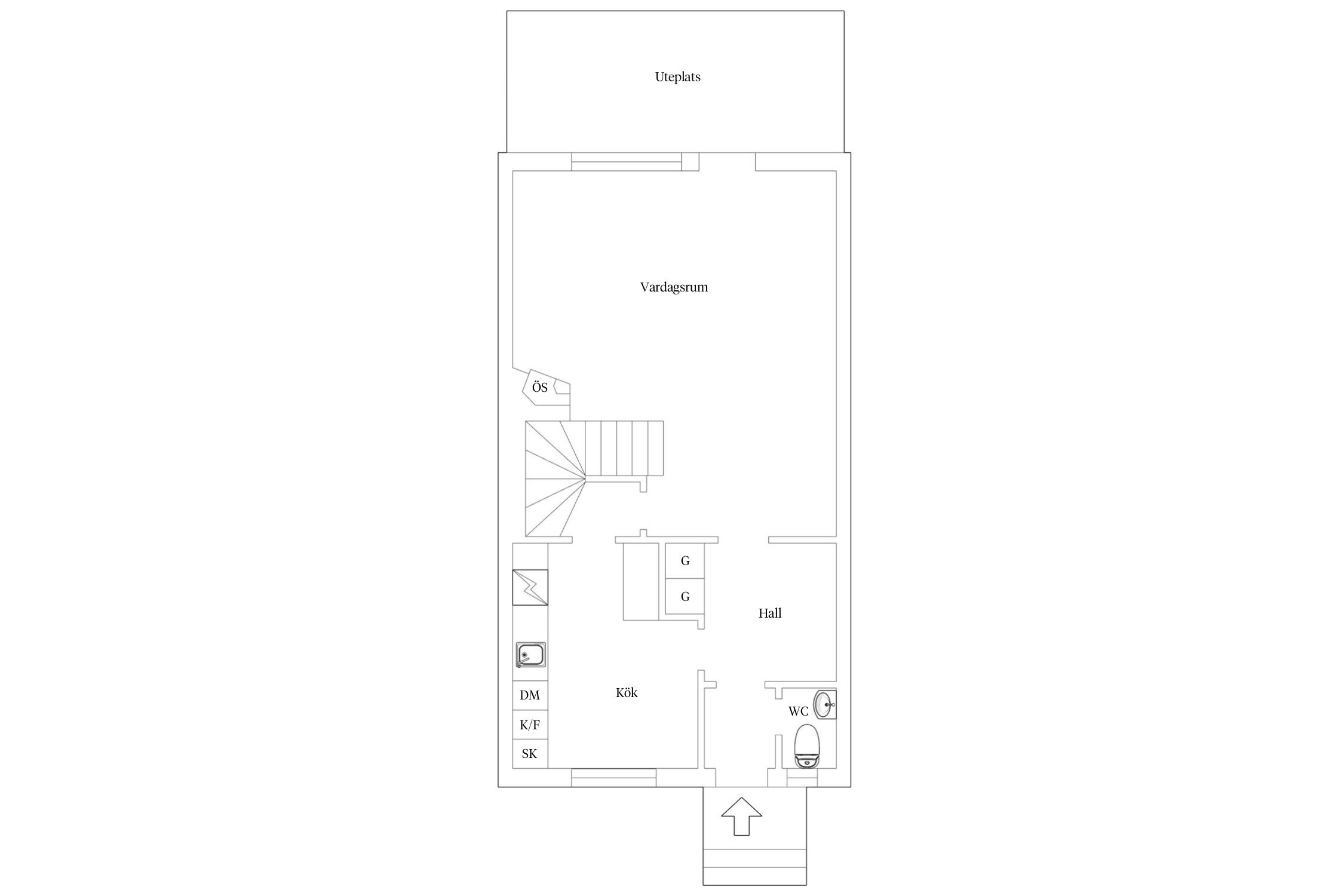
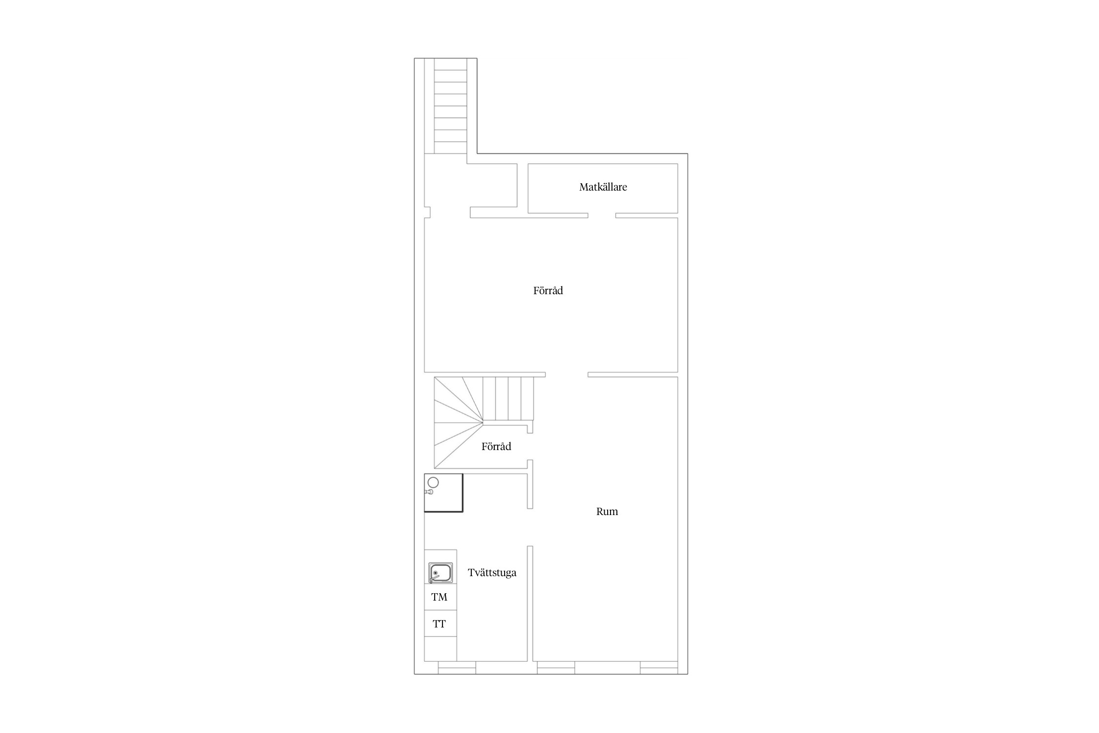
Huset disponeras enligt följande:
ENTRÉPLAN
Husets entréplan erbjuder tambur med efterföljande hall med garderober. Till vänster ligger köket med access både från hallen samt från trappan som leder ner till källaren. Matplats intill fönstret i köket. Rymligt vardagsrum med parkettgolv och öppen spis. Från vardagsrummet finns utgång till trädgård och uteplats i söderläge.
ÖVRE PLAN
Det övre plan inrymmer tre bra sovrum, ett med access till balkong i söderläge. Flertalet garderober utmed ena väggen i övre hallen. Badrum med badkar. Access till förvaringsvisnd via utfällbar trappa.
KÄLLARPLAN
Här finns idag utmärkta förrådsutrymmen med stort allrum som många i området inrett till boende. Därtill tvättstuga med duschkabin. Förrådsrum med access till matkällare och trappa upp till husets baksida som förbinder trädgården med källaren.
UTEMILJÖ
Trädgård på båda sidor av huset där uteplatsen på husets baksida ligger i fint söderläge med ett strålande solläge. Fruktträd, buskar och gott om vackra blommor på tomten. Parkering längs Gärdesvägen på entrésidan.



Entréplan
Övre plan
Källarplan
Slåtterkarlen 7
*Areauppgifter enligt taxeringsinformationen
Kommunalt vatten, Kommunalt avlopp.
Stadsplan (1952-12-01) Tomtindelning (1950-08-10)
Last: Avtalsservitut Förbud värmecentral mm, 01-IM4-53/2096.1
Last: Avtalsservitut Ledning, 01-IM4-50/8208.1
Förmån: Avtalsservitut Värmecentral mm, 01-IM4-53/2095.1
Fiber
Avtalsservitut Förbud värmecentral mm
Avtalsservitut Ledning
I avgiften till områdets ekonomiska förening ingår värme & vatten
Enligt ÖK
Det finns 7 st pantbrev uttagna om sammanlagt 489 000 kr
Välkommen att bo och trivas på Lidingö som även kallas för den gröna ön. Här finns stora möjligheter till friluftsliv året om med naturreservat att ströva i, golfbana, fina badplatser samt skidspår och slalombacke. Hälsa och friskvård står i fokus och varje år arrangeras Lidingöloppet, världens största terränglopp och seglartävlingen Lidingö Runt. Berömda Millesgården ger ro åt själen.
Service
Lidingö centrum är uppbyggt kring ett torg som skapar en trevlig småstadskänsla. Här finns både stora affärskedjor och mindre originella butiker samt flera trevliga restauranger och snabbmatsställen. Det finns också ett bibliotek, en teater och fritidsgårdar samt läkarmottagningar och folktandvård. En stor återvinningscentral finns i Stockby. Gångsätra har ett kommunalt inomhusbad och det finns flera bra utomhusbad på ön, Lidingövallen för olika aktiviteter samt ishall.
Skolor
På Lidingö finns fem skolområden med förskola och grundskola till årskurs nio. Det finns två kommunala gymnasieskolor. Här finns även fem fristående grundskolor samt Bosöns idrottshögskola.
Kommunikationer
Lidingöbanan har ändstationen Gåshaga längst österut samt i Ropsten där tunnelbanan ansluter. Det finns ett omfattande bussnät på ön samt reguljära båtförbindelser mellan Lidingö, Nacka strand och Nybroviken samt ut till Stockholms skärgård. Bryggplatser finns vid Klippudden, Larsberg och Gåshaga.
Köpa, sälja eller värdera bostad i Lidingö kommun? Kontakta våra mäklare på Lidingö! Passa också på att anmäla dig till vår kostnadsfria söktjänst Boagenten som hjälper dig att hitta ditt drömboende.
Kontakta mäklaren om du behöver hjälp att ta fram en boendekalkyl.
När du köper din bostad genom Bjurfors kan du ansöka om bolån till en förmånlig ränta hos våra banksamarbetspartners Söderberg & Partners och SEB.
Ansvarig mäklare