-
Köpa
Köpa -
Sälja
Sälja - Hitta bostad
- Skapa bevakning
- Hitta mäklare
Sällsynt möjlighet i skuldfri förening – en av de större tvåorna i huset
Torsvik, Lidingö
*I avgiften ingår värme, vatten och tv/bredband från Tele2.
**Enligt uppmätning.
Ytan enligt uppmätning, mätbevis finns. Bostaden är hos föreningen registrerad på 54 kvm.
På Förhand ligger bostäder som av olika anledningar inte är ute till försäljning just nu men som kan komma att säljas om förutsättningarna är rätt.
Stilren, renoverad tvåa i skuldfri förening – stor, ljus och med inglasad balkong i soligt söderläge.
Välkommen till en exceptionell tvårummare där design, funktion och elegans samspelar i perfekt harmoni. Med sina generösa 57 kvadratmeter, stilrena renovering och exklusiva materialval är detta ett hem för dig med höga krav på estetik, komfort och livskvalitet. Belägen i ett av områdets mest attraktiva lägen – lugnt, insynsskyddat och med närhet till både grönska, kommunikationer och service – erbjuder denna bostad ett boende utöver det vanliga. Här bor du i en tidstypisk 40-talsfastighet med vackra detaljer, i en förening som är både välskött och helt skuldfri.
Den öppna planlösningen mellan kök och vardagsrum skapar ett socialt och luftigt hem – perfekt för både avslappnade hemmakvällar och eleganta middagsbjudningar. Det påkostade köket är stilrent och fullt utrustat, med en exklusiv keramisk bänkskiva i Limestone Sand och en smart planering som maximerar både yta och funktion. Sovrummet är rymligt och rofyllt med slipad fiskbensparkett, generös förvaring och direkt access till en inglasad balkong i soligt söderläge – en plats att njuta av året om. Det helkaklade badrummet har ett modernt uttryck med badkar, stilrena ytskikt och lugna färgval som för tankarna till spa och avkoppling.
Hela bostaden är noggrant renoverad med känsla för stil och kvalitet, där både planlösning och detaljer uppdaterats för att möta dagens krav på modernitet och exklusivitet – utan att tumma på charm eller karaktär. En bostad som sällan finns att tillgå – och som måste upplevas på plats.
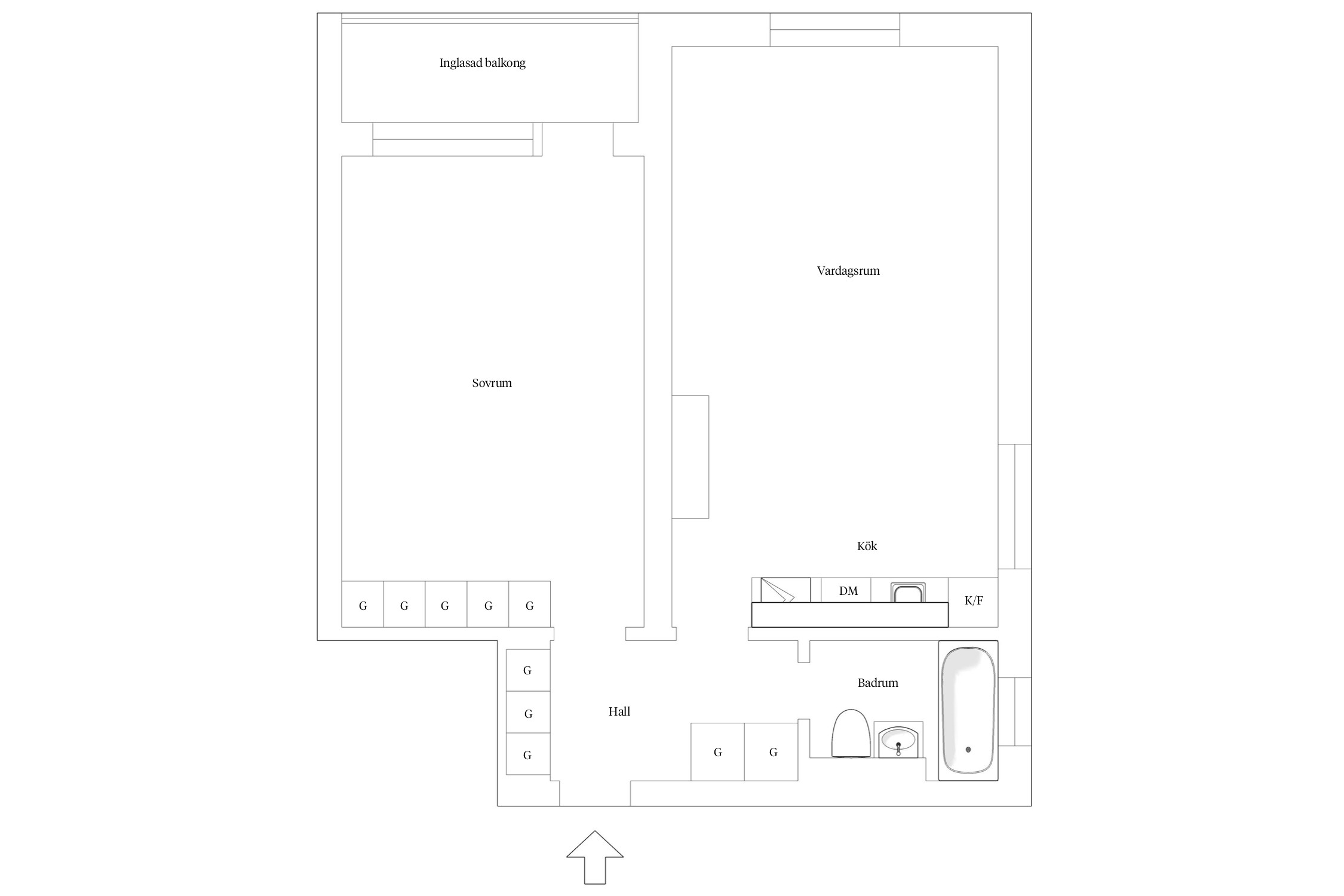
Hall:
Välkomnande och rymlig hall med bra avhängningsmöjligheter samt förvaring i inbyggda garderober. En stilren entré som direkt ger en lugn och inbjudande känsla.
Kök:
Smakfullt renoverat kök med öppen planlösning mot vardagsrummet. Utrustat med kyl/frys, diskmaskin, häll och ugn – allt integrerat i en modern och tidlös design. Den keramiska bänkskivan i färgen Limestone Sand ger köket ett exklusivt intryck, och en separat köksbänk bidrar till hotellkänsla och fungerar utmärkt som avlastningsyta vid middagsbjudningar.
Vardagsrum:
Ljust, luftigt och socialt vardagsrum med generösa fönsterpartier som släpper in rikligt med dagsljus. Vackra snickerier och originalparkett skapar en harmonisk och karaktärsfull atmosfär. Här finns gott om plats för både soffgrupp och matbord – perfekt för umgänge.
Sovrum
Elegant och rofyllt sovrum med slipad fiskbensparkett och gott om förvaring i flera garderober. Från sovrummet når du den inglasade balkongen i soligt söderläge – en fridfull plats att njuta av oavsett årstid.
Badrum:
Helkaklat badrum med badkar, stilrena ytskikt och moderna detaljer. En lugn och funktionell miljö som för tankarna till ett privat spa.
Balkong:
Inglasad balkong i optimalt söderläge – sol hela dagen och en perfekt plats för både frukost och kvällshäng. Skyddat och privat läge över omgivningen.
Förråd:
Till lägenheten hör ett rymligt vindsförråd samt ett mindre förråd i källaren – idealiskt för säsongsförvaring och extra förvaringsbehov.



*Enligt uppmätning.
Ytan enligt uppmätning, mätbevis finns. Bostaden är hos föreningen registrerad på 54 kvm.
I avgiften ingår värme, vatten och tv/bredband från Tele2.
Brf Torshammaren har 15 garageplatser samt 20 bilplatser på parkeringsplatsen. Finns även laddplatser. Det är separat kö till alla typer av parkering. Hyra för garageplats är 1000 kr/mån och parkeringsplatser 220 kr/mån. Ingen avgift utgår för motorcykelplats. Det är fri parkering på gatan (boendeparkering) samt p-skiva som gäller.
Bostadsrättens indirekta nettoskuldsättning baseras på föreningens skulder/lån minus föreningens räntebärande tillgångar och likvida medel. Beräkningen är gjord via Bopedia. För mer information kontakta ansvarig fastighetsmäklare.
*Betalas av köpare
Brf Torshammaren 1-4 bildades 1986 och omfattar fastigheterna på Torsvikssvängen 10-16 på Torsviksplatån. Arkitekterna är Ancker-Gate-Lindegren. I entréerna återfinns konstverk av Stig Blomberg. Hösten 2011 gavs området högsta kulturhistoriska värde.
Föreningens fyra tegelhus byggdes 1945 och består av 95 lägenheter. Föreningen upplåter 92 lgh med bostadsrätt och 3 lgh med hyresrätt. Byggnadens totalyta uppgår till 5 920 kvm, varav 5 557 kvm utgör lägenhetsyta och 363 kvm lokalyta.
Husen är uppförda i sten med sex våningar, samt källare och vindsförråd. I varje hus finns tvättstuga och cykelrum. Föreningens medlemmar har tillgång till snickarbod. En mindre lokal finns att tillgå för styrelsearbete.
Föreningen är en äkta bostadsrättsförening.
Ekonomiska förvaltningen sköts av ViRedo AB.
Föreningen är skuldfri.
Föreningen följer en underhållsplan som sträcker sig fram till 2051.
Föreningen är skuldfri.
Utförda
- 2022 Renovering av hissar. Takrenovering.
- 2021 Byte av tre källardörrar. Översyn av träd, buskar och planteringar. Anläggning av laddstolpar för elbilar och laddbox i garage.
- 2019 Stamspolning och sotning av alla eldstäder.
- 2018 Ny ekonomisk förvaltare. OVK har genomförts. Ny underhållsplan. Låsbyte i källaren. Byte av lamporna på fasaderna. Grovsoprum har omorganiserats. Nytt treårsavtal för bredband och IP-telefoni har träffats med Comhem.
- 2016-2017 Renovering av fönster.
- 2015-2016 Obligatorisk ventilationskontroll.
- 2014 Ny belysningsarmatur i trapphus och vid källarentréer. Nya köksfönster. Nya hissdörrar i metall och målning.
- 2013 Parkeringsplatsen renoverad. Nya hissar.
- 2012 Ny sophanteringslösning med sopskåp vid entréer.
- 2011 Renovering (tätning) av hälften av rökkanalerna i Torsvikssvängen nr.14
- 2009 Taken omlagda. Byte av frånluftsfläktar i samtliga huskroppar.
- 2008 Målning av alla entré portar.
- 2007 Stamspolning i samtliga hus.
- 2006 Nya tvättmaskiner och torktumlare i alla tvättstugor. Nya cykelställ vid alla fyra entréer.
- 2004-2005 Ommålning utvändigt av samtliga fönster.
- 2003 Brandvarnare monterades i samtliga lägenheter.
- 2002 Målning av alla trapphus.
- 2001 Nya garageportar.
- 1999-2000 Ny el till samtliga lägenheter, trapphus och allmänna utrymmen.
- 1997 Byte av fjärrvärmecentral
- 1996 Renovering av 48 balkonger tillhörande 3 rumslägenheterna.
- 1994-1995 Stambyten i kök och badrum
Planerade
- 2023 Översyn av värmesystem (Fjärrvärmecentral). Modernisering av undercentraler. Genomgång av avloppsrör under husen. Byte till rörelsestyrd belysning i källaren.
Brf Torshammaren har 15 garageplatser samt 20 bilplatser på parkeringsplatsen. Finns även laddplatser. Det är separat kö till alla typer av parkering. Hyra för garageplats är 1000 kr/mån och parkeringsplatser 220 kr/mån. Ingen avgift utgår för motorcykelplats. Det är fri parkering på gatan (boendeparkering) samt p-skiva som gäller.
Bredband och TV via ComHem.
Det finns ett cykelförråd och modern tvättstuga i varje hus. I föreningen finns det även ett grovsoprum och ett hobbyrum med snickarbänk.
Välkommen att bo och trivas på Lidingö som även kallas för den gröna ön. Här finns stora möjligheter till friluftsliv året om med naturreservat att ströva i, golfbana, fina badplatser samt skidspår och slalombacke. Hälsa och friskvård står i fokus och varje år arrangeras Lidingöloppet, världens största terränglopp och seglartävlingen Lidingö Runt. Berömda Millesgården ger ro åt själen.
Service
Lidingö centrum är uppbyggt kring ett torg som skapar en trevlig småstadskänsla. Här finns både stora affärskedjor och mindre originella butiker samt flera trevliga restauranger och snabbmatsställen. Det finns också ett bibliotek, en teater och fritidsgårdar samt läkarmottagningar och folktandvård. En stor återvinningscentral finns i Stockby. Gångsätra har ett kommunalt inomhusbad och det finns flera bra utomhusbad på ön, Lidingövallen för olika aktiviteter samt ishall.
Skolor
På Lidingö finns fem skolområden med förskola och grundskola till årskurs nio. Det finns två kommunala gymnasieskolor. Här finns även fem fristående grundskolor samt Bosöns idrottshögskola.
Kommunikationer
Lidingöbanan har ändstationen Gåshaga längst österut samt i Ropsten där tunnelbanan ansluter. Det finns ett omfattande bussnät på ön samt reguljära båtförbindelser mellan Lidingö, Nacka strand och Nybroviken samt ut till Stockholms skärgård. Bryggplatser finns vid Klippudden, Larsberg och Gåshaga.
Köpa, sälja eller värdera bostad i Lidingö kommun? Kontakta våra mäklare på Lidingö! Passa också på att anmäla dig till vår kostnadsfria söktjänst Boagenten som hjälper dig att hitta ditt drömboende.
Kontakta mäklaren om du behöver hjälp att ta fram en boendekalkyl.
När du köper din bostad genom Bjurfors kan du ansöka om bolån till en förmånlig ränta hos våra banksamarbetspartners Söderberg & Partners och SEB.
Ansvarig mäklare