-
Köpa
Köpa -
Sälja
Sälja - Hitta bostad
- Skapa bevakning
- Hitta mäklare
Välplanerad 3:a högt upp i huset med grönskande utsikt från balkongen!
Edsberg, Sollentuna
*I avgiften ingår värme, vatten, bredband och TV (grundutbud av kanaler)
**Enligt mäklarbild/lägenhetsutdrag
* Högt upp i huset
* Inglasad balkong i skyddat läge
* Stor och stabil förening med mycket god ekonomi
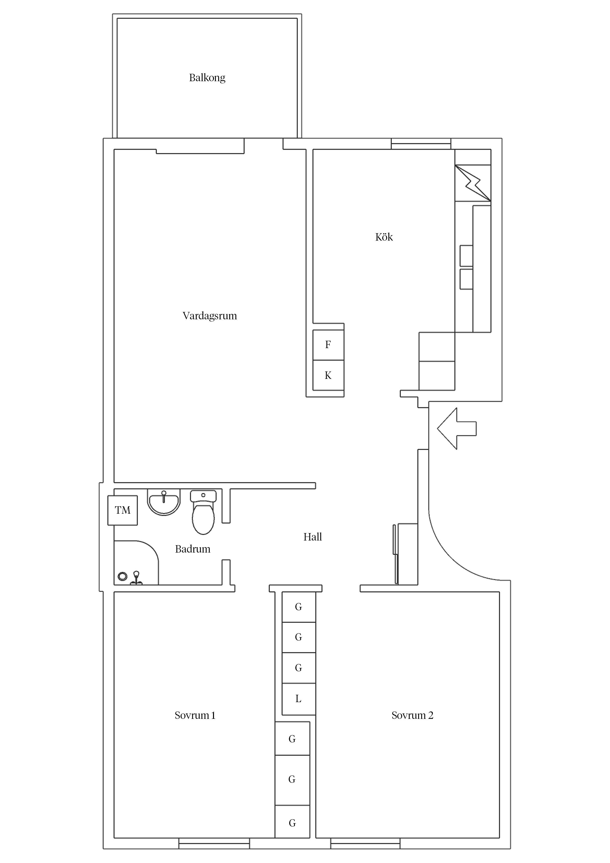
Välkommen till denna ljusa och trivsamma trea med två rymliga sovrum, ett fräscht kök och ett stort vardagsrum med plats för både soffhörna och matgrupp. Lägenheten ligger högt upp i huset och bjuder på ett härligt ljusinsläpp samt fri sikt mot grönska – perfekt för dig som vill bo lugnt men ändå centralt.
Det helkaklade badrummet är fräscht och funktionellt, och från vardagsrummet når du en inglasad balkong där du kan njuta av eftermiddags- och kvällssol och den rogivande utsikten mot skogen. Bostaden är smart planerad med gott om förvaring och en inbjudande känsla rakt igenom. Stor och fräsch tvättstuga i källarplan.
Brf Platån är en stor och välskött förening med god ekonomi som sätter värde på att sköta om sina fina grönområden och lekparker. På Flintlåsvägen 1 ligger föreningens fastighetskontor dit man kan vända sig med små och stora frågor.
Med Rösjöskogens naturreservat som närmsta granne erbjuds lättillgängliga elljusspår, markerade vandringsleder och slingrande skogsstigar. Här finns även upplevelser som höghöjdsbana och badstränder runt Rösjön. Utöver detta ligger Edsvikens vatten en kort promenad bort, här finns ett flertal badmöjligheter och fina promenadstråk. I Edsbergs slottspark kan du njuta av en söndags-picknick tillsammans med nära och kära. Sollentuna sim- och sporthall och Sollentunavallen ligger på gång- och cykelavstånd och Väsjöbacken når du på bara några minuters bilfärd. Edsberg centrum ligger ett stenkast bort och erbjuder butiker, restauranger, service och skolor. På tal om skolor finns ett flertal förskolor och skolor i närheten. Om shopping lockar tar du dig lätt till Sollentuna centrum, Kista centrum eller Mall of Scandinavia.
Edsberg nås med buss, där 607 och 627 tar er till Sollentuna centrum såväl som till Danderyds sjukhus och Åkerby Industriområde (passerar Täby centrum). Från Sollentuna station tar du dig norrut till Arlanda och söderut till Södertälje. Från Mörby centrum går tunnelbanans röda linje.



Planlösning
*Enligt mäklarbild/lägenhetsutdrag
I avgiften ingår värme, vatten, bredband och TV (grundutbud av kanaler)
Se föreningsinfo
ComHem
Bostadsrättens indirekta nettoskuldsättning baseras på föreningens skulder/lån minus föreningens räntebärande tillgångar och likvida medel. Beräkningen är gjord och baseras enbart på den senaste tillgängliga årsredovisningen.
*Betalas av köpare
Brf Platån är en stabil bostadsrättsförening bestående av 583 lägenheter. Lägenheterna är fördelade på 14 olika huskroppar uppförda 1962-1963.
Omtyckt område med närhet till Edsbergs centrum med all tänkbar service (t.ex. affär, restaurang, vårdcentral m.m.). Samtidigt bor du här omgiven av vacker natur och härliga grönområden. En kort promenad tar dig t.ex. till Edsbergs slottspark vid Edsviken, här finns fina strövområden med många trevliga promenadstråk. För den sportige ligger området nära både Edsbergs sportfält, Sollentunavallen, Rösjöns skidspår och elljusspår, simhall, badmintonhall och Väsjöbackens slalomanläggning.
Området trafikeras av ett antal busslinjer (samt nattbuss) som tar dig vidare till tex Sollentuna station och Mörby centrum. Området trafikeras även av servicelinjen 955. Denna linje går från Sollentuna station via Häggvik och Edsberg vidare tillbaka till Sollentuna station igen. Syftet med servicelinjen är att erbjuda kollektivtrafik för personer som på grund av funktionsnedsättning har svårt att utnyttja den ordinarie kollektivtrafiken.
För mer info om föreningen se www.brfplatan.se
Fastighetsexpedition finns i området, där finns både teknisk förvaltare och fastighetsskötare. Telefon till kontoret är: 08-96 21 85. E-post: platan@brfplatan.se
Fullvärdesförsäkrad i Trygg Hansa.
2010/2011
- Relining / stamrenovering av alla föreningens lägenheter har genomförts.
2018
- Installation av dörrautomatik på entrédörrarna.
- En multisportplan har ersatt den gamla basketplanen.
- Sopstationen har byggts ut för att öka antalet kärl.
- Spolning av kökstammar i en del fastigheter
- Ommålning av källargångar.
2020-2022
- Byte av fönster
2023/2024
- Fasad (lagning/tvätt)
- Underhåll av tak
- Värmesystem
Varmgarage: 850 kr/mån
Kallgarage: 650 kr/mån
Laddplatser: 400 kr/mån
P-platser med uttag för motorvärmare: 350 kr/mån
P-platser utan uttag för motorvärmare: 250 kr/mån
Motorcykelgarage, gemensamt låst utrymme,7 st platser. Kostnad: 150 kr/mån.
För laddplatserna gäller att elförbrukningen debiteras baserat på föreningens självkostnads pris med ett påslag på 5-15%. En extra debitering på 100:-/mån sker för att täcka investeringen.
TV och bredband ingår i månadsavgiften. Föreningen har ett gruppavtal med Tele2 för digital-tv, bredband och ip-telefoni.
Internet kan även levereras via Sollentunas stadsnät. För att kunna nyttja stadsnät krävs ett nätverksuttag i lägenheten, detta bekostas av bostadsrättshavaren. Kontakta SEOM för mer information.
GÄSTLÄGENHET
Gästlägenheten består av ett stort rum med två bäddar, bäddsoffa och två hopfällbara extrasängar. Pentryt är utrustat för frukost (matlagning är inte tillåten) med s.k. Trinettekök (diskbänk, kylskåp och två plattor) samt kaffebryggare och porslin med bestick. Duschrum finns med wc och tvättställ. Gästlägenheten kostar 300 kr/natt att hyra.
Följande TVÄTTSTUGOR finns på området:
Tvättstuga Brun på Lodvägen 2, här finns grovtvättmaskin.
Tvättstuga Mörkgrön på Lodvägen 14, här finns även en grovtvättmaskin.
Tvättstuga Grå och Lila på Flintlåsvägen 37 (Ingång från gaveln i portalen)
Tvättstuga Blå och Grön på Flintlåsvägen 27 (Ingång från gaveln i portalen)
Tvättstuga Mörkblå på Flintlåsvägen 44 (Ingång på gaveln) här finns grovtvättmaskin och större torkskåp.
Tvättstuga Röd på Flintlåsvägen 34 (Ingång från gavlarna på huset)
Tvättstuga Orange på Flintlåsvägen 10 (Ingång på gaveln vid nr 18 eller nr 20 som är samma ingång som bastun)
Tvättstuga Vit samma adress som ovan
Tvättstuga Gul på samma adress, här finns även grovtvättmaskin, grovtorktumlare samt ett större torkskåp.
BASTU
Bastu för föreningens medlemmar och deras familjer finns på Flintlåsvägen 20, i källarvåningen.
I lokalen finns även 1 löpband och 1 träningscykel.
FÖRENINGSLOKALEN
På Flintlåsvägen 3 finns lokalen som består av ett större rum med matplats för ett större sällskap. Lokalen kostar inget att boka och är tillgänglig att använda för diverse tillställningar.
Extra förråd går att hyra för 450 kr/kvm.
Med sitt läge mellan Sollentuna och Täby ligger Edsberg som en oas med mysig småstadskänsla och eget centrum, som en gång i tiden var Sollentunas största med sina 18 butiker. Idag har Edsbergs centrum ett bra utbud av butiker, restauranger och serivce. Totalt är det cirka 23 verksamheter här och några av dessa är Ica Edsberg, apotek, bageri, blomsteraffär, flertalet restauranger och frisörer. Samtidigt är det bara en 10-15 minuters bussresa till Sollentuna Centrum med över 100 butiker.
Edsvikens vatten och natur ger möjligheter till rekreation av alla de slag. På fem minuter når du en vacker strandpromenad, i naturreservatet mot Täby kan du njuta av strövtåg, löprundor och bad vid Rösjön. Även kring Edsviken finns fina badplatser. Edsberg bjuder även på mycket kultur, främst i och kring Edsbergs slott, med anor från 1600-talet och idag ett livligt kulturcentrum med konstutställningar, teater, konserter och museum samt den fina Edsbergsparken. Ett utflyktsmål man aldrig tröttnar på.
I övrigt så har du närhet till tennishall, fotbollsplaner, skolor, förskolor, Väsjön, skidbacken Väsjöbacken, etc. Med pendeltåget tar det bara 15 minuter till city, antingen från Häggvik, tre kilometer bort eller från Sollentuna station. Pendeln går även direkt till Arlanda och Uppsala. Bussar går till Sollentuna station, Danderyd, Karolinska och Mörby samt nattbuss hela vägen till Edsberg från Stockholms central.
Köpa, sälja eller värdera bostad i Edsberg? Kontakta våra mäklare i Sollentuna! Passa också på att anmäla dig till vår kostnadsfria söktjänst Boagenten som hjälper dig att hitta ditt drömboende.
Kontakta mäklaren om du behöver hjälp att ta fram en boendekalkyl.
När du köper din bostad genom Bjurfors kan du ansöka om bolån till en förmånlig ränta hos vår samarbetspartner SEB.
Extra kontaktperson