-
Köpa
Köpa -
Sälja
Sälja - Hitta bostad
- Skapa bevakning
- Hitta mäklare
Unik 6:a med rymlig uteplats i västerläge – lugnt läge vid grönskande Gärdet
Gärdet, Stockholm
*I avgiften ingår värme, vatten, kabel tv (basutbud) och bredband
**Enligt uppmätning
Se mätbevis
På Förhand ligger bostäder som av olika anledningar inte är ute till försäljning just nu men som kan komma att säljas om förutsättningarna är rätt.
Ljus och välplanerad familjevåning med låg avgift, mitt i Londonparken med egen uteplats i västerläge – attraktivt läge på Gärdet
DENNA BOSTAD LIGGER SOM "PÅ FÖRHAND", FÖR INTRESSE OCH VISNINGAR.
KONTAKTA ANSVARIG FASTIGHETSMÄKLARE: JONAS STALQUIST 072-1796825
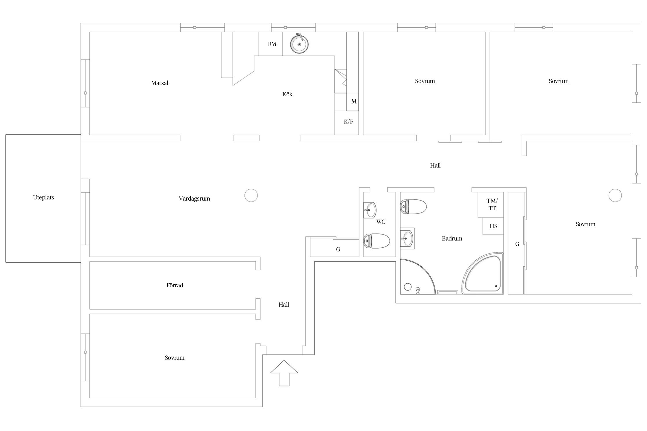
Välkommen till Sandhamnsgatan 25 och denna ljusa och mycket välplanerade lägenhet om totalt 135 kvm golvyta – ett bekvämt och trivsamt boende med ett svårslaget läge nära både Gärdets och Djurgårdens grönområden. Här erbjuds generösa ytor, genomtänkt planlösning och en härlig uteplats i västerläge som förlänger bostaden under årets varmare månader.
Bostaden präglas av ett fint ljusinsläpp och en tilltalande, delvis öppen planlösning som skapar en social och inbjudande atmosfär. Den rymliga sällskapsdelen med separat matsal erbjuder gott om plats för både vardagsliv och större middagar i goda vänners lag. Det platsbyggda köket är smakfullt utformat i vinkel med goda arbetsytor och full maskinell utrustning i rostfritt utförande – perfekt för den matlagnings intresserade. Lägenheten rymmer fyra väl tilltagna sovrum, vilket gör den idealisk för den större familjen eller för dig som önskar extra utrymme för exempelvis hemmakontor. Förvaringsmöjligheterna är mycket goda med flertalet garderober och smarta lösningar. Det rymliga badrummet är utrustat med både badkar och dusch samt en praktisk tvättpelare. Därutöver finns en separat gäst-WC.
Här bor du i en stabil och skuldfri förening med god ekonomi, vilket ger ett tryggt och långsiktigt boende. Perfekt läge där stadens puls möter grönskande omgivningar, med direkt närhet till fantastisk natur och vackra promenad- och joggingstråk både på Ladugårdsgärdet och Djurgården. Här finns också allt du kan önska i form av goda kommunikationer, gym, caféer, restauranger och matbutiker. Gillar man sport och idrottsaktiviteter kan nämnas Kampementsbadet, utomhusgym, beach volleyboll- och fotbollsplaner precis utanför porten, samt Östermalms IP med skridskobana och fotbollsplan, Kungliga Tennishallen och Stockholm Stadion som alla ligger nära. En promenad över Gärdesfältet tar dig till Fältöversten och Karlaplan, och vidare till Östermalms Torg samt Stockholms centrala delar. Med tunnelbanan T-banestation Gärdet (röda linjen) en kort promenad bort och bussar 1 och 72 som stannar utanför fastigheten är du snabbt i city. Du har även gång- och cykelavstånd till KTH, Stockholms Universitet och Musikhögskolan.
VÄLKOMMEN!
Ansvarig fastighetsmäklare: JONAS STALQUIST 072-1796825
Hall
Stor och välkomnande hall i vinkel som öppnar upp mot bostadens sällskapsdelar och kök. Här finns goda avhängningsmöjligheter samt en praktisk skjutdörrsgarderob med speglar. Hallen är möblerbar och har ett ljust, blankt klinkergolv. Infällda spotlights bidrar till en modern och inbjudande känsla.
Kök
Snyggt platsbyggt kök med luckor i grönt och stomme i körsbär. Köket är vinkelbyggt och erbjuder goda arbetsytor med grå laminatbänkskiva. Stänkskydd i grön mosaik samt två väggar kaklade i vitt. Full maskinell utrustning med diskmaskin, häll , fläkt , ugn, mikro samt kyl och frys i rostfritt. Ljust klinkergolv.
Vardagsrum / Sällskapsdel
Trevlig och rymlig sällskapsdel med separat matsalsdel som skapar generösa sociala ytor. Härifrån nås bostadens härliga uteplats. Dekorativa pelare i mosaik ger rummet karaktär.
Sovrum 1
Sovrum med ekparkett.
Sovrum 2 & 3
Två rymliga sovrum med plats för säng och förvaring. Båda rummen har skjutdörrar.
Master bedroom
Generöst sovrum med hel garderobsvägg med skjutdörrar. Rummet har dekorativ mosaikpelare.
Badrum
Stort och rymligt badrum med hörnbadkar samt dusch med duschväggar. Badrummet är helkaklat med vita väggar och grått golv. Utrustat med tvättmaskin, torktumlare, golvvärme samt spotlights i taket.
WC
Separat WC i stilrent utförande med kalkvita väggar och golv i grön mosaik. Handfat placerat på mosaikbänk samt förvaring i svarta hyllor och skåp.
Övrigt
Skuldfri förening
Förrådsutrymme finns. 2 st.
Genomgående målade väggar i vitt samt enhetliga golv i vit ask.
Fönsterbänkar i marmor.



Planlösning
*Enligt uppmätning
Se mätbevis
I avgiften ingår värme, vatten, kabel tv (basutbud) och bredband
Skuldfri förening
*Betalas av säljare
Bostadsrättsföreningen bildades 1986 och föreningen köpte fastigheten London 7 år 1992 med adress Sandhamnsgatan 25. Nuvarande ekonomiska plan registrerades 1999. Föreningen är en äkta bostadsrättsförening. Det finns 44 lägenheter med bostadsrätt.
Föreningen har god ekonomi och är skuldfri.
Den ekonomiska förvaltningen sköts av Nabo.
Föreningen har en egen hemsida; https://www.london7.se/
Renoveringar:
- 2008 Omläggning av tak.
- 2009 Renovering av trädgård.
- 2012 Byte av ventilationssystem.
- 2013 Införande av bredband.
- 2014 Nya hissar. Justering av fönsterhakar.
- 2015-2016 Stamrenovering, relining med strumpmetoden, Onliner.
- 2017 Renovering av avloppsstammar i källare och bottenplatta. relining med strumpmetoden.
- 2018 Genomgång av subventionerad energisparkartläggning. Genomgång av värmecentral. Installation av brandgasventilation i hisschakt. Godkänd OVK.
2019:
Ny värmecentral, nya armaturer, stamspolning kök
2020:
Nya radiatorventiler, ny tryckstegringspump
Stamspolning badrum/WC (69')
2022: Ventilationskanaler, rengöring
2023: OVK
Planerat underhåll;
Ny värmecentral och energieffektiviserande åtgärder.
Översyn av el, byte av elstigar. Postboxar.
Brandsäkerhetsinstallationer.
Trapphusrenovering.
Fastigheten har Kabel TV via Tele2. I avgiften ingår ett grundutbud. Tillägg kan beställas via leverantören.
Leverantör för bredband är Bredband2 som ingår i månadsavgiften.
I källarplanet finns tvättstugan, hobbyrum, cykelrum och barnvagnsrum.
Östermalm är en flott och exklusiv stadsdel i Stockholms innerstad. Här finns Stureplan och Sturegallerian med butiker och nöjesliv. Fler shoppingstråk är Birger Jarlsgatan, Nybrogatan och Biblioteksgatan med flera exklusiva butiker. Vid Nybroplan ligger Kungliga Dramatiska Teatern, Sveriges nationalscen som grundads 1788 av Gustav III. På Strandvägen ligger några av landets mest ståtliga byggnader. Östermalmshallen är en fantastisk byggnad från 1888 med mat av högsta klass, delikatesser, restauranger och kaféer.
På Östermalm finns även all annan tänkbar service som vårdcentraler, läkarmottagningar och tandläkare. Förskolor, skolor och gymnasium med olika profiler och inriktning i både privat och kommunal regi.
Gärdet ligger på norra Djurgården, en lugn stadsdel med stora grönområden. Området började byggas på 1930-talet på fälten norr om Valhallavägen. Byggnaderna följde den svenska funktionalismens stilideal med fristående hus, stora balkonger och generöst ljusinsläpp. Under 1990-talet och framåt har området även byggts ut i nordväst med Starrängsringen.
Gärdet har flera sevärdheter som Kaknästornet, Ekoparken, Tessinparken samt Etnografiska, Sjöhistoriska och Tekniska museet.
På Gärdet finns livsmedelsaffärer och vårdcentral samt förskolor, skolor och gymnasium i både privat och kommunal regi. Här finns också Dramatiska Institutet, Försvarshögskolan och Musikhögskolan.
På Östermalm och Gärdet finns flera stationer längs tunnelbanans röda linje och flera busslinjer. Från Frihamnen går Tallink/Siljas färjor till bland annat Helsingfors, Tallin och Riga.
Köpa, sälja eller värdera bostad på Gärdet? Kontakta våra mäklare på Östermalm! Passa också på att anmäla dig till vår kostnadsfria söktjänst Boagenten som hjälper dig att hitta ditt drömboende.
Kontakta mäklaren om du behöver hjälp att ta fram en boendekalkyl.
När du köper din bostad genom Bjurfors kan du ansöka om bolån till en förmånlig ränta hos våra banksamarbetspartners Söderberg & Partners och SEB.
Ansvarig mäklare