-
Köpa
Köpa -
Sälja
Sälja - Hitta bostad
- Skapa bevakning
- Hitta mäklare
Unik etagelägenhet med magisk terrass!
Södermalm Maria, Stockholm
*Obligatoriskt tillägg om 150 kr/mån tillkommer för balkongfond och fastighetsavgift.
**Areauppgifter enligt uppmätning 2025
2 rok enligt lägenhetsförteckning.
På Förhand ligger bostäder som av olika anledningar inte är ute till försäljning just nu men som kan komma att säljas om förutsättningarna är rätt.
I hjärtat av Södermalm, endast ett stenkast från Mariatorget, finns denna unika etagelägenhet om 3:5 rum och kök. Här möts du av en bostad där modern funktionalitet kombineras med charmiga originaldetaljer från husets byggår.
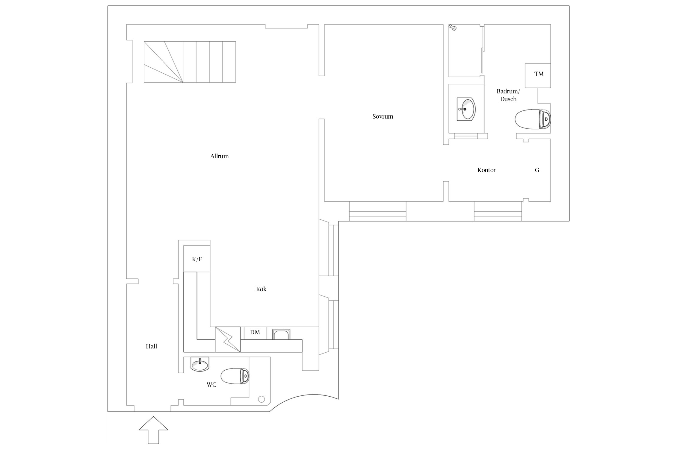
Entréplanet erbjuder en öppen planlösning med generös takhöjd och stora fönsterpartier som ger rikligt med ljusinsläpp och en härlig känsla av rymd. Köket är modernt och välutrustat för den matlagningsintresserade. På detta plan finns även ett rymligt sovrum med god förvaring, en praktisk arbetsdel samt ett helkaklat badrum.
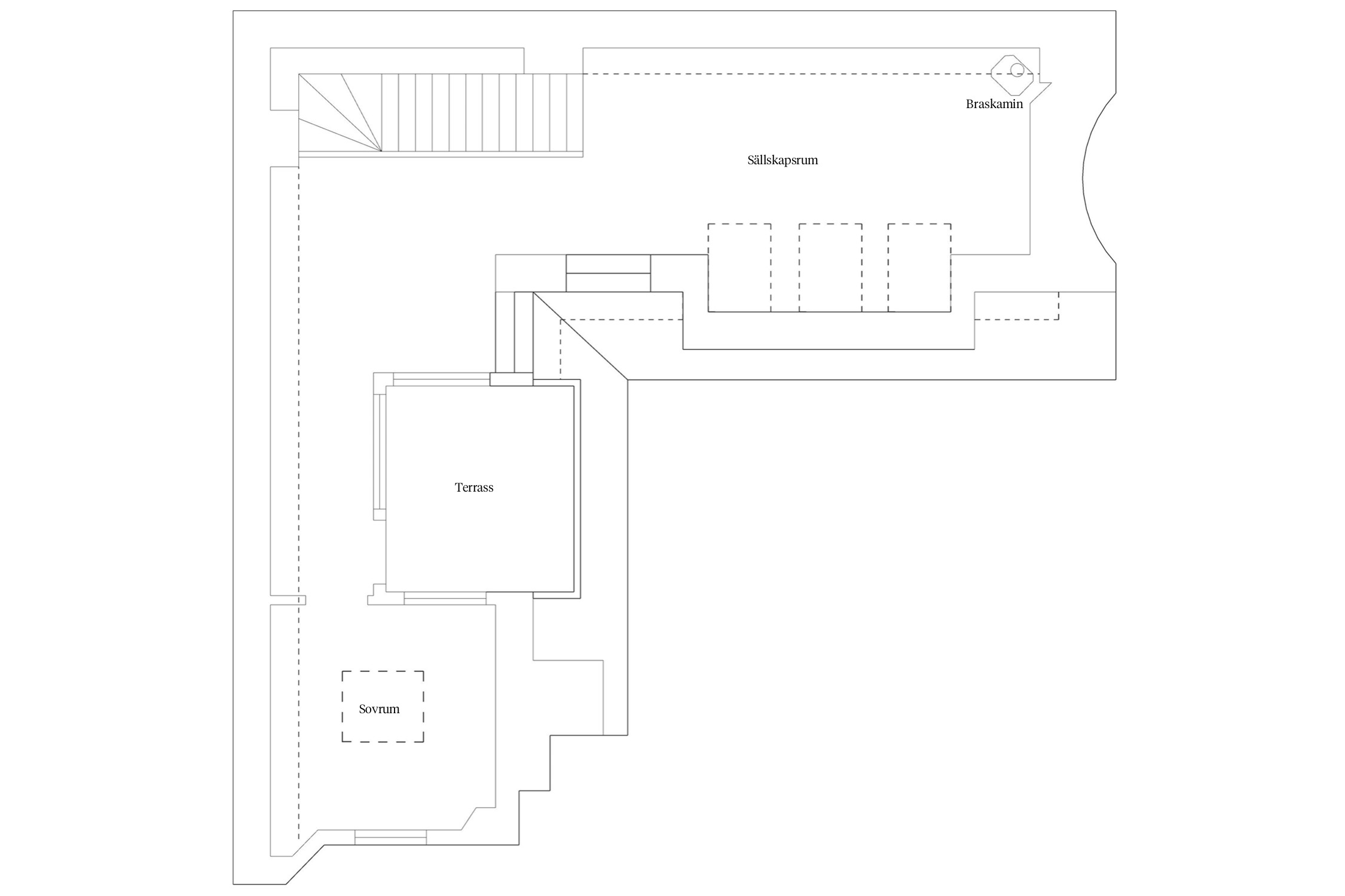
En trappa upp möts du av ett sällskapsrum med braskamin, perfekt för sociala tillställningar eller avkopplande kvällar. Här finns även ett bostadens andra sovrum och utgång till bostadens höjdpunkt, den fantastiska terrassen. Med gott om utrymme för både möblemang och växtlighet erbjuder den en privat och rofylld plats mitt i stadens puls.
Det höga läget i huset bidrar till en lugn atmosfär där vi lever ostört samtidigt som närheten till Mariatorget, restauranger, caféer och kommunikationer ger ett svårslaget läge.
Brf Draken är en stabil förningen som består av 21 lägenheter med bostadsrätt. Föreningen äger marken vilket betyder att man inte riskerar en höjning av tomträttsavgäld.
Läget är utan att överdriva ett av söders bästa, här bor du med direkt närhet till Mariatorget och Swedenborgsgatan, en lugn och fantastiskt mysig gågata under sommarhalvåret. Flertalet mycket populära skolor finns i det direkta närområdet, såsom Björngårdsskolan (F-6), Mariaskolan (F-9) och Södermalmmsskolan (F-9). En trappa upp på Kvarngatan finns också populära Maria Elementar med årskurs F-9.
Området stoltserar med sina många caféer, barer och restauranger och en härlig stämning råder här, med ett behagligt gatuliv där doften av kaffe och nybakt bröd sprider sig mellan de gamla vackra fasaderna. Mariatorget blir under sommarhalvåret en grön oas och självklar samlingspunkt och här når du även smidigt T-banan endast ett kvarter bort. Promenadavstånd till Slussen och Götgatsbacken via Sankt Paulsgatan och även nära till såväl Hornsgatans utbud av butiker och gallerier som till Mariabergets hisnande utsikt över Stockholm. Gröna Ivar- Loparken och vackra Monteliusvägen i ditt närområde, liksom Skinnarviksberget och Tantolunden med badstrand, nöjen och en härlig promenad- eller joggingslinga runt Årstaviken.
HALL
KÖK
Parkettgolv och vita väggar. Vitt kök med ljust kakel ovanför bänkskiva i betong. Köket är utrustat med diskmaskin, ugn, spishäll, fläkt, mikrovågsugn, kyl och frys. Köket är rymligt och har en direkt anslutning till matplatsen där större bord om 6-8 pers får plats.
VARDAGSRUM
Parkettgolv och vita väggar. Otroliga fönsterparti med mycket ljusinsläpp. Vardagsrummet erbjuder en braskamin, plats för soffgrupp och matbord om så önskas. Från vardagsrummet når vi dem generösa terrassen i x läge.
SOVRUM
Vita brädgolv och ljuslila väggar. Sovrummet erbjuder god förvaring och en kontorshörna.
SORVRUM
Parkettgolv och vita väggar. Plats för säng och skrivbord finns.
BADRUM
Ljus klinker och ljust kakel. Badrummet är utrustat med dusch, handfat med kommod, tvättmaskin och skåpsförvaring.



Våning 1
Våning 2
*Areauppgifter enligt uppmätning 2025
2 rok enligt lägenhetsförteckning.
Obligatoriskt tillägg om 150 kr/mån tillkommer för balkongfond och fastighetsavgift.
Boendeparkering råder i området.
Bostadsrättens indirekta nettoskuldsättning baseras på föreningens skulder/lån minus föreningens räntebärande tillgångar och likvida medel. Beräkningen är gjord och baseras enbart på den senaste tillgängliga årsredovisningen. För mer information kontakta ansvarig fastighetsmäklare.
Brf Draken 19 bildades 1986 och är en äkta förening som äger marken. Föreningen består av 21 lägenheter i ett flerfamiljshus med källare under båda byggnaderna. Den totala ytan uppgår till 1481 kvm varav 1359 utgör boyta och 122 kvm utgör lokalyta.
I dagsläget finns inga planerade avgiftshöjningar. Kontroll: 2025-09-03
1986 Fastigheten genomgick en totalrenovering, i samband med detta stambyte.
1986-1987 balkonger i gatuhus.
1998 installation fjärrvärme.
Början av 2000-talet, spolning av samtliga stammar.
2005-2008 källare och gård byggdes om.
2006 byte av köksstam i gatuhuset.
2009 renovering av tvättstuga.
2008-2010 renovering av tak.
2013 besiktning och spolning av samtliga stammar. De bedömdes då vara i gott skick.
2014 målning och renovering trapphus i gårdshus.
2014-2015 radonmätning genomförd och godkänd.
2017 ovk.
2021 fönsterrenovering.
2022 fasadrenovering mot gård.
2024 byte av avloppsrör i källare och fläktar. Samt förbättring av ventilation i gårdshuset.
2024 stamspolade föreningen.
Ordförandens kommentar gällande stambyte:
"Inget stambyte planerat de närmaste åren. Det kan hända att vi gör relining på ett par ställen, där filmning visat att det finns rost, men inte hela systemet. Alla avloppsrör i källaren är nyligen bytta."
Kontroll: 2025-09-03
Tvättstuga med 2 tvättmaskiner, 1 torktumlare, 1 mangel och 1 torkskåp, belägen i källaren under gårdshuset (port D och E).
Föreningen erbjuder även cykelförråd i källaren och på gården. Barnvagnar kan låsas fast i entrégången.
Enligt överenskommelse
Södermalm är ett av Stockholms mest populära områden med flera olika centrum, här finns något för alla. Söder erbjuder Stockholms första moské, Mosebacke, Münchenbryggeriet, Nytorget och den hänförande utsikten från Fjällgatan och Monteliusvägen.
Maria-området är ett av Södermalms absolut populäraste områden centrum i Mariatorget. Här finns alla restauranger du kan önska, populära butiker och prisbelönta caféer. Mariaberget är en av Stockholms vackraste platser med kullerstensgator och kulturhus. Längs Hornsgatan finns gallerier och hantverkare.
På Söder finns all tänkbar service, vårdcentral och läkarmottagning samt nära till Rosenlunds sjukhus, Ersta sjukhus och Södersjukhuset. Flera förskolor, skolor och gymnasium med olika inriktningar, både friskolor och kommunala.
Kommunikationerna är goda med tunnelbana, flera busslinjer och pendeltåg från Södra station. Slussen utgör en knutpunkt för kollektivtrafiken med Saltsjöbanan och i närheten går även färjorna till Djurgården.
Köpa, sälja eller värdera bostad på Södermalm Maria? Kontakta våra mäklare på Södermalm! Passa också på att anmäla dig till vår kostnadsfria söktjänst Boagenten som hjälper dig att hitta ditt drömboende.
Kontakta mäklaren om du behöver hjälp att ta fram en boendekalkyl.
När du köper din bostad genom Bjurfors kan du ansöka om bolån till en förmånlig ränta hos våra banksamarbetspartners Söderberg & Partners och SEB.
Ansvarig mäklare