-
Köpa
Köpa -
Sälja
Sälja - Hitta bostad
- Skapa bevakning
- Hitta mäklare
Välkommen hem – ett unikt och familjevänligt boende på eftertraktade Oxenstiernas väg!
Gustavsberg - Farsta Slottsvik, Värmdö
*Areauppgifter enligt taxeringsinformationen
Obligatorisk föranmälan via webben
Obligatorisk föranmälan via webben
På Förhand ligger bostäder som av olika anledningar inte är ute till försäljning just nu men som kan komma att säljas om förutsättningarna är rätt.
Härlig skärgårdsidyll nära natur och hav, promenadavstånd till bad. Centralt och nära all tänkbar service, här blir livet lätt att leva.
Nu finns äntligen möjligheten att förvärva denna arkitektoniskt spännande villa med ett fantastiskt läge intill vackra Engelska Parken. Redan vid första anblick möts du av husets karaktär och generösa takhöjd som skapar en luftig och inbjudande känsla. Här bor du med naturen som granne, samtidigt som hemmet erbjuder gott om utrymme för både familjeliv och sociala tillställningar.
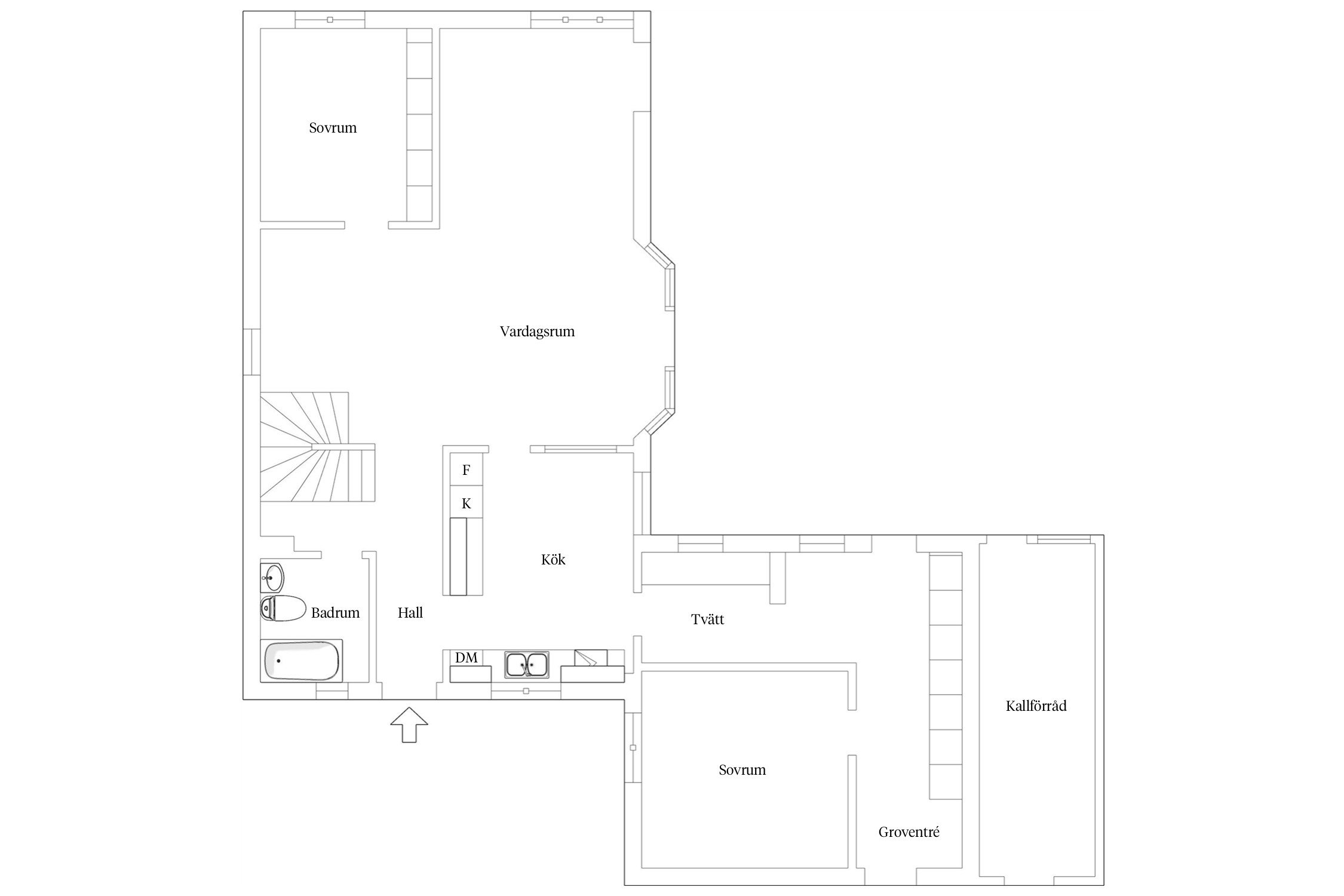
Huset är utbyggt och erbjuder fyra till fem sovrum, vilket ger stor flexibilitet för den växande familjen, hemmakontor eller gästrum – helt efter dina behov. Planlösningen är genomtänkt med öppen och social yta mellan kök och vardagsrum, där stora fönsterpartier släpper in rikligt med ljus och suddar ut gränsen mellan inne och ute. Härifrån når du den generösa altanen, som ligger helt insynsskyddad med sol från morgon till tidig kväll. Sista kvällssolen njuter man av på gräsmattan – en perfekt plats för grillkvällar, umgänge eller lugna stunder i solen.
Bostaden har två smakfullt renoverade badrum, ett på varje plan, samt en separat tvättstuga med groventré, vilket förenklar vardagen och ger praktiska lösningar för familjelivet.
Den plana och trevliga hörntomten erbjuder en grönskande gräsmatta som lämpar sig utmärkt för lek, spel och avkoppling för både stora och små. Området gränsar direkt mot Engelska Parken. På tomten samsas även fruktträd och bärbuskar, vilket skapar en idyllisk och levande trädgårdsmiljö.
Till huset hör carport samt ett praktiskt förråd på baksidan, som ger gott om förvaringsmöjligheter.
Detta är ett hem som kombinerar arkitektur, funktion och ett oslagbart läge – ett boende att trivas i under många år framöver. Varmt välkommen att uppleva denna fantastiska villa på plats!
OMRÅDET
Farsta slottsvik är en riktig skärgårdsidyll som präglas av charmig bebyggelse med bullerbyliknande gator. Farsta Slottsvik ligger centralt vid Gustavsbergs Hamn präglat av natur och hav och är ett mycket populärt område. Här finns en mysig småbåtshamn och härliga strövområden med b.l.a Tjustviksrundan, 5 km samt Gottholmsrundan, 2,5 km som utgår från Farsta Slottsvik och ger dig en naturupplevelse delvis längs med vattnet. Vill man ta ett dopp ligger en brygga en bit bort. Fastigheten ligger granne med Engelska parken som är en lugn oas som anlades troligen i slutet av 1700-talet. En engelsk park är en naturpark som inte innehåller odlade växter utan består av naturlig vild markflora under stora vackra träd. Parken är tillgänglig och njutbar under alla årstider. Finns intresse kan man delta i Engelska parkens vänner som ser efter och håller ordning i parken. Är man ridintresserad ligger trevligt stall precis i närheten.
Oxstallet är Farsta Slottsviks gemensamhetslokal och kan hyras av boende i Farsta Slottsvik för fester och sammankomster av olika slag. Gå gärna in och läs mer på www.farstaslottsvik.nu
På ett par minuters promenad bjuder Gustavsbergs Hamn på flertalet Caféer, restauranger och butiker. Nybyggd gästhamn med minifolf och härlig nyöppnad restaurang som heter Kattholmen. I hamnen finns även matbutik och hotell. Gustavsbergs kulturhistoria lever kvar i den gamla fabriken och hamnen är ett konst- och hantverkarcentrum med Gustavsbergs porslinsmuseum, flertalet ateljéer samt utställningar.
Ca 15 min promenad till Gustavsbergs centrum med banker, affärer, restauranger och konditori. I centrum ligger även Gustavsbergsbadet med äventyrsbad och gym, samt idrottsanläggningen Ekvallen med ishall, tennishall och bandyplan/fotbollsplan. Med bil når du Stockholm på ca 25 minuter.



Gustavsberg 1:83
*Areauppgifter enligt taxeringsinformationen
2013
Installation ny frånluftsvärmepump IVT 490
2014
Omfattande utbyggnad av carport till ökad boyta +18 kvm samt trädgårdsbod.
2016
Nya golv och interiör ommålning hela huset
2021
Ommålning långsidor
2022
Totalrenovering bägge badrum
2024
Carport och trädgårdsanläggning entré
2025
Putsgavlar målning och underhåll
Gott om förvaring i två förråd.
Den plana tomten i hörnläge erbjuder generösa och lättskötta ytor som passar perfekt för både avkoppling och lek. Den stora altanen ligger helt insynsskyddad och nås direkt från vardagsrummet – en naturlig förlängning av bostaden där du kan njuta av solen från morgon till tidig kväll. Här finns gott om plats för utemöbler, grill och sociala sammankomster.
Den rymliga gräsmattan bjuder in till lek, spel och spring för både barn och vuxna. Tomten pryds dessutom av fruktträd och bärbuskar, som skapar en trivsam och inbjudande utemiljö med plats för både odling och rekreation.
Kommunalt vatten, Kommunalt avlopp.
Till huset hör en praktisk carport som ger skyddad parkering året runt. Här slipper du skrapa rutor vintertid och bilen står skyddad från väder och vind. Intill carporten finns även goda möjligheter för ytterligare förvaring, perfekt för cyklar, trädgårdsredskap eller fritidsutrustning.
Detaljplan (2004-09-15)
Gemensamhetsanläggning: Värmdö gustavsberg ga:11 ändamål: Vägar, Avloppsanläggning, Elledning och/eller belysning, Garage och/eller parkering, Övrigt
Gemensamhetsanläggning: Värmdö gustavsberg ga:12 ändamål: Vägar, Radio- TV och/eller tele, Elledning och/eller belysning, Grönområden, Kvartersanläggning, Bad och/eller båtanläggning, Övrigt
Gemensamhetsanläggning: Värmdö gustavsberg ga:14 ändamål: Radio- TV och/eller tele, Övrigt
Gemensamhetsanläggning: Värmdö gustavsberg ga:7 ändamål: Vägar, Avloppsanläggning, Elledning och/eller belysning, Grönområden, Garage och/eller parkering, Kvartersanläggning
Gemensamhetsanläggning: Värmdö gustavsberg ga:8
Samfällighet: Värmdö gustavsberg s:2
Ansluten till kabelnät com hem. Grundutbud TV ingår i samfällighetsavgiften.
Driftkostnader och elförbrukning är inhämtade från säljaren och bör endast ses som en uppskattning. Kostnaden kan variera och baseras på förbrukning och avtal.
Det finns 14 st pantbrev uttagna om sammanlagt 5 127 000 kr
Gustavsberg är centralorten på Värmdö med kommunkontor. Gustavsbergs centrum är ett småskaligt skärgårdscentrum med en galleria som har flera olika butiker, banker och annan service. I utkanten av Gustavsberg finns Värmdö marknad med bland annat Coop.
I Gustavsberg finns också ishall, bollhall, konstfrusen bandybana vid Ekvallen och Gustavsbergsbadet, motionssimning, äventyrsbad och spa. De större idrottsföreningarna är Gustavsbergs idrottsförening samt Värmdö hockey.
Gustavsberg är kanske mest känt för sin berömda porslinsfabrik som grundades 1825. Samhället Gustavsberg började byggas upp under slutet av 1800-talet med arbetarbostäder. Gustavsberg är en typisk bruksort med flera kända byggnader från 1940–1950-talen av arkitekten Olof Thunström.
Nere i hamnen finns gamla fabriksbyggnader som numera rymmer konstnärlig och kulturell verksamhet och är ett uppskattat turistmål.
Ett populärt bostadsområde i Gustavsberg är Farsta Slottsvik med villor, radhus och punkthus uppförda i en stramare arkitektur under 1990-talet. Runt gamla Farsta slott finns olika former av äldreboende för 55+. Andra bostadsområden är Hästhagen, Höjdhagen/Ekedal, Lugnet, Bjönkärret, Betsede, Aspvik och Norra Lagnö.
Köpa, sälja eller värdera bostad i Farsta Slottsvik, Gustavsberg? Kontakta våra mäklare i Värmdö. Passa också på att anmäla dig till vår kostnadsfria söktjänst Boagenten som hjälper dig att hitta ditt drömboende.
Kontakta mäklaren om du behöver hjälp att ta fram en boendekalkyl.
När du köper din bostad genom Bjurfors kan du ansöka om bolån till en förmånlig ränta hos vår samarbetspartner SEB.
Obligatorisk föranmälan via webben
Obligatorisk föranmälan via webben