-
Köpa
Köpa -
Sälja
Sälja - Hitta bostad
- Skapa bevakning
- Hitta mäklare
Härlig lägenhet i ostört läge
Gustavsberg - Porslinskvarteren, Värmdö
*Enligt bostadsrättförening
Obligatorisk föranmälan via webben
På Förhand ligger bostäder som av olika anledningar inte är ute till försäljning just nu men som kan komma att säljas om förutsättningarna är rätt.
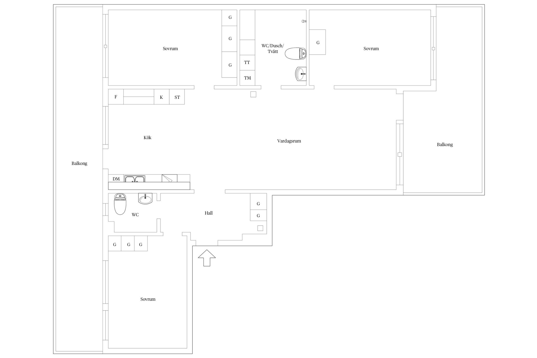
Välplanerad och ljus 4:a med dubbla balkonger och sjöutsikt!
Välkommen till denna fantastiska lägenhet som kombinerar generösa ytor med stilfull funktionalitet! Med sina 105 kvm bjuder bostaden på tre rymliga sovrum, ett ljust och öppet sällskapsutrymme samt dubbla balkonger – perfekt för den som vill ha både komfort och livskvalitet i vardagen.
Öppen planlösning & stora fönsterpartier
När du kliver in i bostaden möts du av en inbjudande hall som leder dig vidare till det stora vardagsrummet som binds samman med köket i en modern öppen planlösning. Denna yta är hjärtat i hemmet – perfekt för middagar, socialt umgänge eller avkoppling i vardagen. Stora fönsterpartier längs hela rummet skapar ett härligt ljusinsläpp och ger bostaden en ljus och luftig känsla.
Två stora balkonger – sol från morgon till kväll
En av bostadens verkliga pärlor är de två generösa balkongerna. Den ena vetter mot söder och fångar solen under större delen av dagen – perfekt för solstolar, odlingar eller en kopp kaffe i värmen. Den andra balkongen vetter mot norr och bjuder på en rofylld utsikt över vattnet – en perfekt plats för svalka under varma dagar eller lugna kvällar med utsikt.
Tre sovrum & två badrum
Samtliga tre sovrum är rymliga och välplanerade med plats för både säng, förvaring och skrivbord – idealiskt för både barnfamiljen eller den som behöver hemmakontor. Det stora badrummet har dusch, tvättmöjligheter och gott om förvaring, och därtill finns även en separat gäst-WC – en uppskattad bekvämlighet i vardagen.
105 kvm i mycket gott skick
Tre rejäla sovrum
Öppen planlösning mellan kök och vardagsrum
Två stora balkonger – en i soligt söderläge och en med sjöutsikt mot norr
Stora fönster med rikligt ljusinsläpp
Rymligt duschrum samt gäst-WC
Närhet till vatten, natur och goda kommunikationer
En bostad som erbjuder det lilla extra – ljus, rymd, utsikt och funktion i en och samma helhet.
Fabrikshuset har ett centralt läge i Gustavsbergs hamn som på senare år genomgått en förvandling från trött bruksort till en modern mötesplats för kultur. Här samsas butiker, caféer och restauranger med bostäder. Närmsta matbutik återfinns bara ett par hundra meter bort utmed Gustavsbergs Allé där även busshållplats finns. Motorvägsbussar trafikerar sträckan mot Slussen, en resa som tar ca 25 minuter oberoende tidpunkt på dygnet.
En kort promenad bort återfinns Gustavsbergs centrum med ett rikt utbud av närservice med mataffär, apotek, post, banker, café, bageri och restauranger. I anslutning till centrum återfinns simhall med gym och äventyrsbad, sporthall, tennishall, skatepark, såväl ute- som inomhusrink för ishockey samt fotbollsplan där det vintertid spolas för skridskoåkning. I nära anslutning till Höjdhagen återfinns ute gym och på intilliggande Nacka Golfklubb spåras det vintertid för längdskidåkning.
På bekvämt promenadavstånd återfinns Kvarnsjön med möjlighet till insjöbad. Sjön omgärdas likt Farstaviken av orörd natur med stigar och löpspår som leder vidare bort mot Lemshaga och Södersved där havsbad finns. Ytterligare en bit ut i kommunen tar Stockholms skärgård vid.



*Enligt bostadsrättförening
*Totalrenoverat 2014-2018.
På källarplanet finns gemensam tvättstuga, lägenhetsförråd, cykelförråd samt barnvagnsrum. I tvättstugan finns tvättmaskiner, torktumlare samt mangel.
Porslinsgaraget består av 530 p-platser, 64 laddplatser, 3 infarter och 25 besöksplatser och administreras av corepark. Föreningen disponerar ca. 100 platser i porslinsgaraget. Kostnaden är 1014 kr/månad för bil och 508 kr/månad för MC och hyran höjs årligen med 2%. Har man en laddplats så kommer kostnaden för elförbrukningen debiteras av Mer på en separat faktura. Vidare finns tjugofem gästplatser i garaget. Idagsläget (2025-05-18) är det kö till parkeringsplats.
<a href="https://porslinsgaraget.se/">https://porslinsgaraget.se/</a>
Föreningen är ansluten till IP-Onlys öppna nät för bredband, TV och telefoni. Lägenhetsinnehavaren tecknar enskilt avtal.
Bostadsrättens indirekta nettoskuldsättning baseras på föreningens skulder/lån minus föreningens räntebärande tillgångar och likvida medel. Beräkningen är gjord och baseras på senaste tillgängliga årsredovisningen. För mer information kontakta ansvarig fastighetsmäklare.
*Betalas av köpare
Brf Fabrikshuset äger fastigheten Gustavsberg 1:466 med adresserna Stig lindbergs gata 15, 17A, 17B, 19A, 19B och21 samt Wilhelm Kåges gata 96. Fastigheten består av 250 lägenheter samt 4 lokaler fördelade över två byggnader, Fabrikshuset och Lanterninhuset. Fabrikshuset uppfördes 1939 varpå det byggdes om till bostäder under åren 2014 till 2018.
Information från styrelsen:
"Styrelsebeslut om finansiering av kostnaderna för åtgärdandet av dolda fel som vi informerat om tidigare. Som vi tidigare har meddelat har styrelsen arbetat hårt för att se vilka möjligheter det finns för föreningen att betala för alla kostnader det blir för att åtgärda alla dolda fel. Vi har tittat på olika alternativ såsom endast ta lån, ta lån med avgiftshöjningar eller ta lån med avgiftshöjningar och kapitaltillskott. Nabo har tagit fram en långtidsbudget för oss om 5 år utifrån de här scenarierna. Budgetarna är skapade utifrån en betalplan som vi fått av Projekt Gustavsberg samt underhållsplanen som Nabo tagit fram. Styrelsens beslut Det styrelsen har beslutat anser vi är bäst för föreningens medlemmar och det är att i huvudsak ta lån och i viss mån höja avgiften under åren 2025–2027 (se nedan), fr o m 2028 kommer ingen avgiftshöjning att ske om det inte sker stora förändringar i vår omvärld. Styrelsen har även undersökt möjligheten till frivilligt kapitaltillskott, men tills vidare bordlagt den frågan eftersom det visar sig, vid beräkningar som vi gjort, att det slår väldigt lite på avgiften om man inte som medlem har möjlighet att lägga in väldigt stora kapitaltillskott. Vi har även tittat på möjligheten att endast ta lån och inte höja våra avgifter men då räcker tyvärr inte våra pengar eftersom vi har ett krav från banken att amortera av minst 1% av lånen per år. Det som är bra med amortering förutom bankens krav är att den totala summan du betalat under din andelstid som gått till amorteringar är ditt indirekta kapitaltillskott och det är avdragsgillt när du säljer bostadsrätten. Amorteringar gör att föreningens lån minskar och det höjer värdet på bostadsrätterna. Det är därför det är avdragsgillt. Naturligtvis sänker det med tiden räntekostnaderna för lånen. Styrelsens strategi för åren 2025 - 2029
2025: Direkt amortera 4 miljoner från vårt sparkonto på våra lån. Låna 20 miljoner SEK. Höja avgiften från 1 juli med 10%. I slutet av året kommer föreningen att amortera ytterligare 1,2 miljoner
2026: Låna 13,5 miljoner SEK Höja avgiften från 1 januari med 5% Amortera 2,45 miljoner
2027: Låna 7,5 miljoner SEK Höja avgiften från 1 januari med 5% Amortera 3,355 miljoner
2028 - 2029: Från 2028 ser det ljusare ut och det är styrelsens förhoppning och ambition att inte höja avgifterna under den perioden. Amortera 3,355 miljoner per år. Detta gör att vi under åren 2025–2029 räknar med att amortera 17,7 miljoner kronor med de lagda budgeterna. Fr o m år 2028 och framåt räknar vi med att föreningen gör ett nollresultat eller en vinst på några tusen kronor. Vi har skickat underlaget till banken nu och hoppas de godkänner ett lånelöfte på 41 miljoner SEK. Vi i styrelsen hoppas att den här strategin ska ge minst påverkan för oss medlemmar samtidigt som den fungerar för föreningen som helhet. Vid frågor, kontakta styrelsen via Nabos ärendehanteringssystem.
Nedan siffror visar hur vår belåning per kvm kommer att se ut framåt.
2024: 10 985
2025: 11 886
2026: 12 608
2027: 12 879
2028: 12 660
2029: 12 440
Riktvärde för belåningsgrad 10 000-15 000, okej om föreningens fastighet är i mycket bra skick vilket vår förening kommer att vara vid utgången av 2028. Hälsningar Styrelsen."
Lägenhetsytan uppgår till 14 671 kvm fördelat på 250 lägenheter. I Lanterinhuset (Wilhelm Kåges gata) finns tre lokaler om totalt 476 kvm.
Föreningen har ännu inte erhållit en godkänd slutbesiktning av entreprenaden. Föreningens byggnader belastas fortfarande med fel och brister som det bedöms kosta betydliga belopp att åtgärda. Byggherren Blå Eken har av etablerat sin verksamhet från föreningens fastighet med hänvisning till att företaget inte har resurser att färdigställa entreprenaden.
Under 2023 har en överenskommelse kommit till stånd mellan föreningen och ett av bolagen som ställt garanti för entreprenaden avseende avhjälpandearbete på föreningens fastighet.
Porslinsgaraget består av 530 p-platser, 64 laddplatser, 3 infarter och 25 besöksplatser och administreras av corepark. Föreningen disponerar ca. 100 platser i porslinsgaraget. Kostnaden är 1014 kr/månad för bil och 508 kr/månad för MC och hyran höjs årligen med 2%. Har man en laddplats så kommer kostnaden för elförbrukningen debiteras av Mer på en separat faktura. Vidare finns tjugofem gästplatser i garaget. Parkering med p-skiva finns utanför huset och omkring i området. Infartsparkering finns inom promenadavstånd. Idagsläget (2025-05-18) är det kö till parkeringsplats.
För mer information: https://porslinsgaraget.se/
Föreningen är anslutna till GlobalConnects öppna nätverk. På sidan: Beställ bredbandstjänst via fiber - GlobalConnect kan man enkelt jämföra, välja och beställa tjänster för bredband, TV och telefoni.
Stor gemensam takterrass på den norra delen av Fabrikshuset. Hissarna i trapphus A och F går ända upp till takterrassen på våning 7. Vid 21:an finns en avskild del av terrassen som kan bokas privat i tvåtimmarspass.
På källarplanet finns externa källarförråd, barnvagns- och cykelrum samt tvättstuga.
EL:
Som medlem i föreningen behöver man inte teckna ett eget elavtal. Elavtal tecknas centralt av föreningen och man debiteras för sin hushållsel (och sitt varmvatten förbrukning) på sin hyresavi.
Uppvärmning och kallvatten ingår i avgiften.
BOSTADSRÄTTSTILLÄGG:
Fabrikshusets fastighetsförsäkring hos Trygg Hansa täcker skador på fastigheten såsom skador förorsakade av brand. Fastighetsförsäkringen täcker däremot inte skador på sin egen egendom och man bör teckna en egen hemförsäkring med "bostadsrättstillägg”. Detta tillägg täcker skador på den egendom man är underhållsskyldig för enligt föreningens stadgar.
Gustavsberg är centralorten på Värmdö med kommunkontor. Gustavsbergs centrum är ett småskaligt skärgårdscentrum med en galleria som har flera olika butiker, banker och annan service. I utkanten av Gustavsberg finns Värmdö marknad med bland annat Coop.
I Gustavsberg finns också ishall, bollhall, konstfrusen bandybana vid Ekvallen och Gustavsbergsbadet, motionssimning, äventyrsbad och spa. De större idrottsföreningarna är Gustavsbergs idrottsförening samt Värmdö hockey.
Gustavsberg är kanske mest känt för sin berömda porslinsfabrik som grundades 1825. Samhället Gustavsberg började byggas upp under slutet av 1800-talet med arbetarbostäder. Gustavsberg är en typisk bruksort med flera kända byggnader från 1940–1950-talen av arkitekten Olof Thunström.
Nere i hamnen finns gamla fabriksbyggnader som numera rymmer konstnärlig och kulturell verksamhet och är ett uppskattat turistmål.
Ett populärt bostadsområde i Gustavsberg är Farsta Slottsvik med villor, radhus och punkthus uppförda i en stramare arkitektur under 1990-talet. Runt gamla Farsta slott finns olika former av äldreboende för 55+. Andra bostadsområden är Hästhagen, Höjdhagen/Ekedal, Lugnet, Bjönkärret, Betsede, Aspvik och Norra Lagnö.
Köpa, sälja eller värdera bostad i Porslinskvarteren, Gustavsberg? Kontakta våra mäklare i Värmdö. Passa också på att anmäla dig till vår kostnadsfria söktjänst Boagenten som hjälper dig att hitta ditt drömboende.
Kontakta mäklaren om du behöver hjälp att ta fram en boendekalkyl.
När du köper din bostad genom Bjurfors kan du ansöka om bolån till en förmånlig ränta hos vår samarbetspartner SEB.
Obligatorisk föranmälan via webben