-
Köpa
Köpa -
Sälja
Sälja - Hitta bostad
- Skapa bevakning
- Hitta mäklare
Inflyttningsklart på Kölmarsvägen – generösa ytor, modern standard och trivsam trädgård
Värmdö - Stavsnäs, Värmdö
*Areauppgifter enligt taxeringsinformationen
Familjevänligt hem med två renoverade badrum, bastu och stor härlig tomt
Välkommen till Kölmarsvägen 7 – stil, komfort och härlig tomt i perfekt harmoni
På en lugn och trivsam gata väntar detta välskötta hem som kombinerar modern standard med generösa ytor för både vardag och fest. Huset bjuder på två smakfullt renoverade badrum, ett stilrent och funktionellt kök och en planlösning som passar lika bra för familjeliv som för umgänge med vänner.
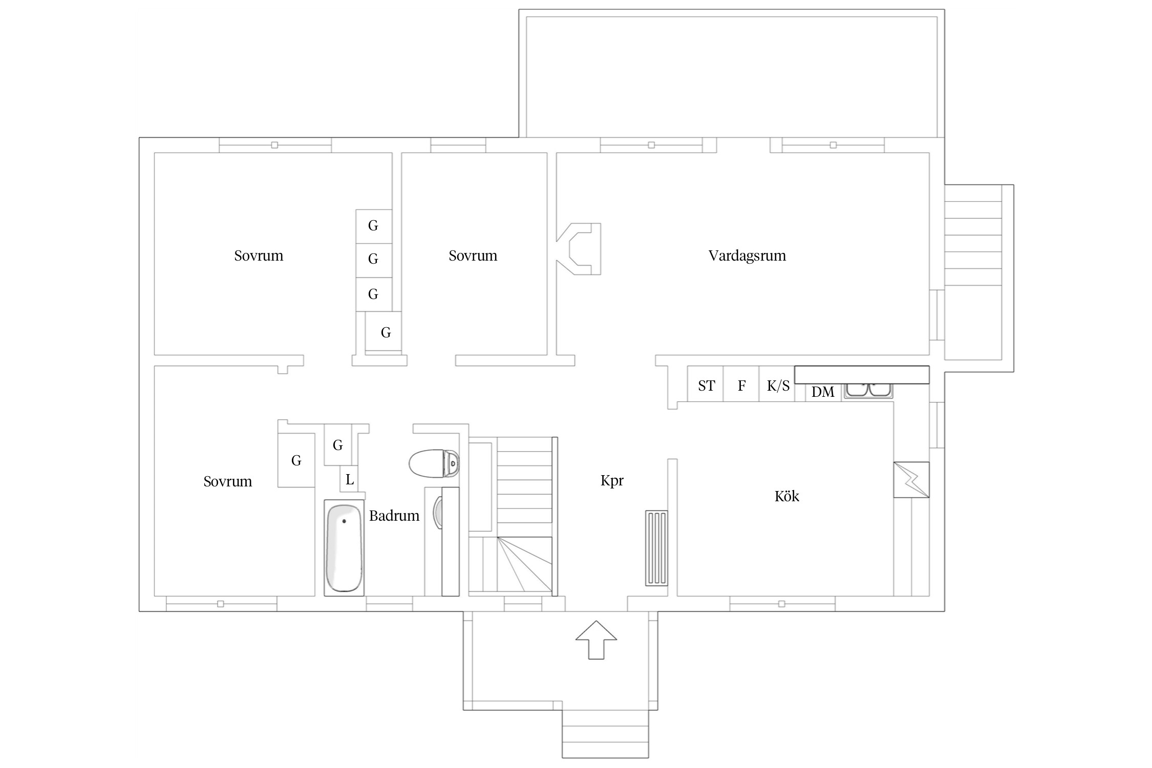
Entréplanet rymmer hemmets hjärta – köket – där både design och funktion möts, samt ett rymligt vardagsrum med utgång till altanen och den soliga trädgården. Här finns också tre välplanerade sovrum och ett av de renoverade badrummen.
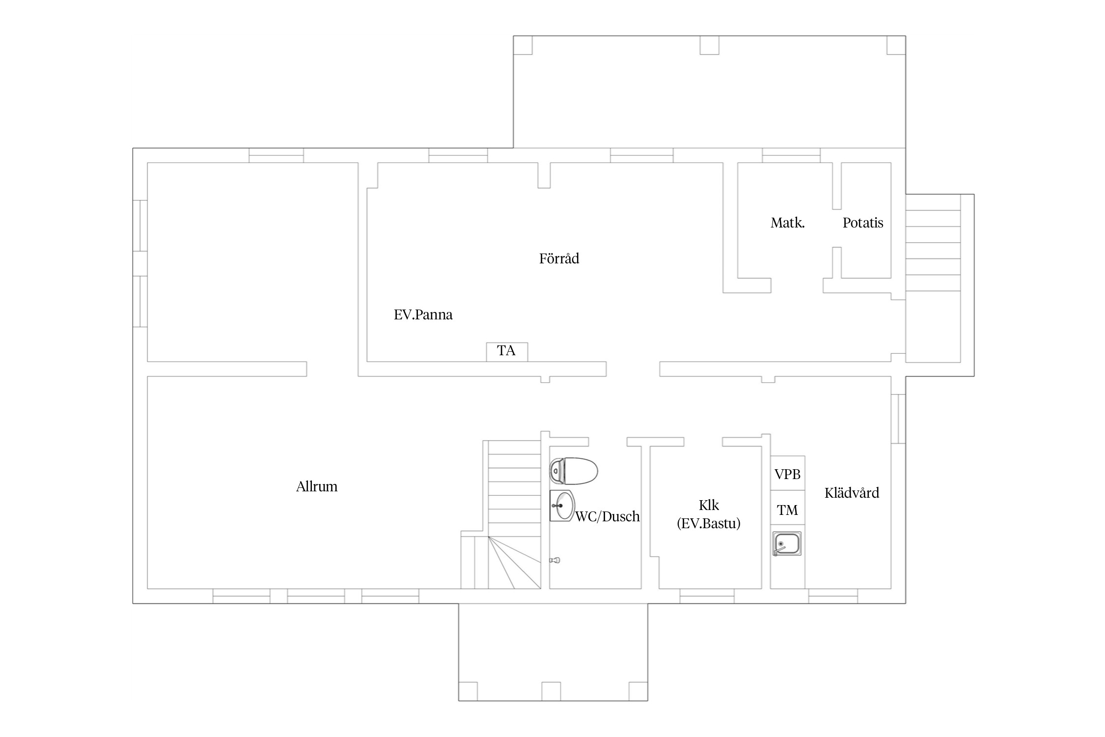
Nedre plan erbjuder ett stort allrum för filmkvällar eller lek, ett fräscht duschrum och generösa förvaringsmöjligheter.
Den stora och inbjudande tomten är perfekt för både lek och avkoppling, med en härlig gräsmatta där barnen kan springa fritt och gott om plats för sommarens grillkvällar.
Detta är ett hem att trivas i – med modern komfort, fina sociala ytor och en trädgård som inbjuder till härligt uteliv. Se planritning för bostadens smarta och funktionella disposition.
OMRÅDET
Stavsnäs med härliga natur- och strövområden ligger med ca en timmes bussresa från Slussen ut på Värmdö. Charmiga Stavnäs by ligger i direkt närhet med matbutik och nya padelbanor. På bekvämt avstånd ligger Stavsnäs sommarhamn med bageri samt Vinterhamnen med kiosk, sjömack, pizzeria, kafeér och minigolf. Härifrån har ni även sjöförbindelser till bland annat Runmarö, Möja, och Sandhamn med Waxholmsbolaget. Bra bussförbindelser med direktbuss 433-434 mot Slussen eller vidare ut till Djurö/Vindö/Sollenkroka. Stavsnäs har ett natur- och kulturspår som är 5,6 km långt, där man upplever både kulturhistoriska byggnader och stränder.
I närheten på andra sidan Djuröbron finns Djurö centrum, Björkås med skola F-9, sporthall, bibliotek, konditori, livsmedelsbutik, vårdcentral och flera restauranger. Livsnjutaren rekommenderas ett besök på Djurönäset där man koppla av på spaanläggningen eller ta ett dopp i poolen. Här kan man också besöka Folkparken där det anordnas konserter. Man kan också avnjuta en god middag på restaurangen medan man blickar ut över fjärden.



Stavsnäs 1:553
*Areauppgifter enligt taxeringsinformationen
Kommunalt vatten, Kommunalt avlopp.
Detaljplan (2011-12-15) Vattenskyddsområde (1976-02-03)
Last: Avtalsservitut Vattentäkt, 01-IM4-58/12671.1
Förmån: Officialservitut Väg, 01-DJÖ-1559.1
Avtalsservitut Vattentäkt
Driftkostnader och elförbrukning är inhämtade från säljaren och bör endast ses som en uppskattning. Kostnaden kan variera och baseras på förbrukning och avtal.
Det finns 6 st pantbrev uttagna om sammanlagt 3 145 000 kr
Värmdö utgör östra delen av Stockholm och räknas som Sveriges femte största ö.
Centralorten på Värmdö är Gustavsberg med kommunkontor. Gustavsbergs centrum är ett småskaligt skärgårdscentrum med en galleria som har flera olika butiker, banker och annan service. Övriga shoppingcenter är Värmdö Köpcentrum i Mölnvik och Värmdö Marknad vid avfarten mot Ingarö.
På Värmdö genomgår flera områden nu en förändring från fritidshusområde till nya villaområden med åretruntboende.
Norra delen av Värmdö består till stor del av äldre jordbruksbygd där Siggesta gård byggts om till ett upplevelsecentrum med ridhus, minigolf, fotbollsgolf, restaurang med mera. Här hålls även konserter samt den populära bakluckeloppisen.
Vid södra delen av Värmdö finns Strömma kanal, en knutpunkt för båtentusiaster samt Stavnäs som är en av skärgårdens viktigaste hamnar för vidare båttransport ut i skärgården.
Värmdö har en god infrastruktur med Värmdöleden och ett väl utbyggt bussnät. Man kan även åka med Waxholmsbåtarna från Stockholm.
På Värmdö finns en stor mångfald av skolor och förskolor.
Värmdö erbjuder härlig natur med många strövområden och närheten till vatten ger möjlighet till båtliv och sköna bad. Grisslingebadet är ett populärt utflyktsmål sommartid med både restaurang och konditori. På Värmdö finns också gym, motionsspår, fotbollsplaner och golfbanor. De större idrottsföreningarna är Gustavsbergs idrottsförening samt Värmdö hockey.
Köpa, sälja eller värdera bostad på Stavsnäs, Värmdö? Kontakta våra mäklare på Bjurfors Värmdö. Passa också på att anmäla dig till vår kostnadsfria söktjänst Boagenten som hjälper dig att hitta ditt drömboende.
Kontakta mäklaren om du behöver hjälp att ta fram en boendekalkyl.
När du köper din bostad genom Bjurfors kan du ansöka om bolån till en förmånlig ränta hos vår samarbetspartner SEB.