-
Köpa
Köpa -
Sälja
Sälja - Hitta bostad
- Skapa bevakning
- Hitta mäklare
Modern 1:a med inglasad balkong i soligt läge!
Nyby, Uppsala
*I månadsavgiften ingår värme och vatten. Obligatorisk avgift om 199 kr/månad för Telia Triple Play tillkommer.
**Area enligt den ekonomiska förvaltaren
På Förhand ligger bostäder som av olika anledningar inte är ute till försäljning just nu men som kan komma att säljas om förutsättningarna är rätt.
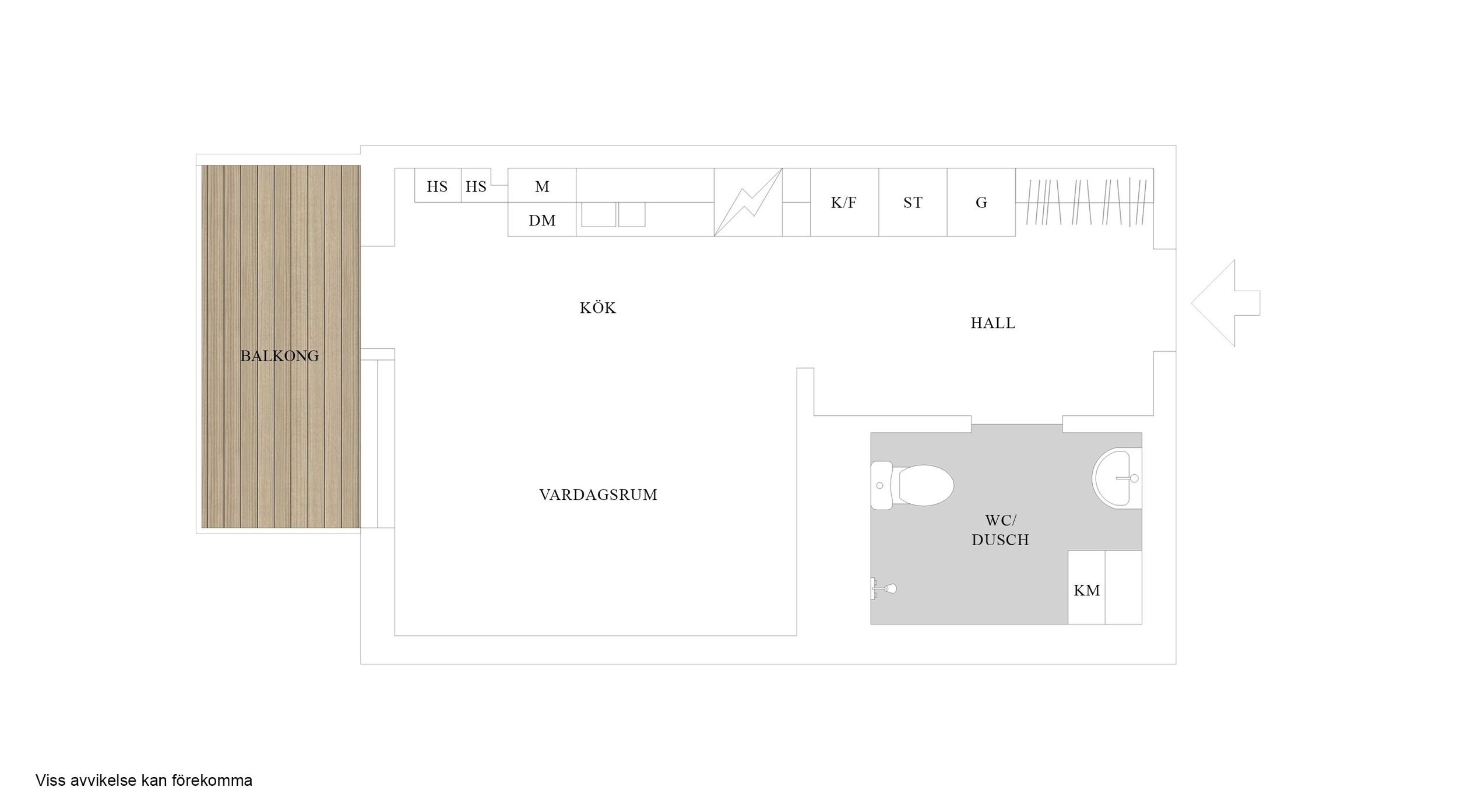
Välkommen till Leopoldsgatan 25 i charmiga Nyby! Här finner du en modern 1:a med en genomtänkt planlösning som utnyttjar varje kvadratmeter på bästa sätt med en öppen och luftig atmosfär.
Invändigt är bostaden genomgående stilren och modern samt ger utrymme för säng, matplats, skrivbord eller annan möblering. Den inglasade balkongen som är belägen i sydsväst förlänger bostaden och är en perfekt plats för en kaffe i solen. God förvaring i garderober samt smakfullt kök med bra maskinell utrustning. Badrummet är stilrent med bl.a. kombinerad tvättmaskin/torktumlare samt dusch.
Nyby är ett expansivt område och är beläget i norra Uppsala. Närhet till både bra service och till naturen. Från Leopoldsgatan 25 har du även närhet till matbutiker samt Gränby Staden med ett stort utbud.
Varmt välkommen att anmäla intresse för ditt nästa hem!



*Area enligt den ekonomiska förvaltaren
I månadsavgiften ingår värme och vatten. Obligatorisk avgift om 199 kr/månad för Telia Triple Play tillkommer.
Bostadsrättens indirekta nettoskuldsättning baseras på föreningens skulder/lån minus föreningens räntebärande tillgångar och likvida medel. Beräkningen är gjord via Bopedia. För mer information kontakta ansvarig fastighetsmäklare.
*Betalas av säljare
Byggnaden är nyproducerad 2019.
Arkitema Architects som är arkitekterna bakom Lilium har skapat moderna och välplanerade lägenheter i olika storlekar. Arkitekturen är småskalig med varierade höjder och färgsättning. Generösa fönster släpper in rikligt med ljus och öppnar upp. Fina materialval som exempelvis dämpade köksluckor och skåp, genomgående parkettgolv och klinkers i hallen. Badrummen är helkaklade och har kommod och spegelskåp, glasade duschväggar, handukstork, infällda spotlights och golvvärme. Alla lägenheter på bottenplan har en generös takhöjd på ca 2,70 m, övriga ca 2,50 m.
I Lilium har alla bostäder balkong eller uteplats – vissa har till och med två! Den gröna, gemensamma innergården bjuder in till gemenskap, aktivitet och avkoppling.
Fullvärdesförsäkring finns via Bolander & Co (Nordeuropa).
Föreningen har inga kommande renoveringar planerade. (Kontrollerat med styrelsen 2026-03-09).
Föreningen tillhandahåller 18 p-platser för 450 kr/mån och 8 carport-platser (4st med elladdning) för 825 kr/mån. Lång kö för tillfället (2023-03-09).
Telia Triple Play 199 kr/mån för bredband och tv.
Tvättstuga: Ja
Uteplats: Ja
Cykelförråd: Ja
Barnvagnsrum: Ja
Uppsala är Sveriges fjärde största stad. Det är en växande tätort med en stark arbetsmarknad. I de centrala delarna hittar man sevärdheter som Uppsala slott, Linnéträdgården och norra Europas största domkyrka. Staden är mycket känd för sitt universitet som är Nordens äldsta, grundat år 1477. Varje år läser drygt 40 000 studenter i Uppsala. Universitetet är en stor arbetsplats som tillsammans med Akademiska sjukhuset erbjuder flera tusen arbetstillfällen.
Från Uppsala finns goda kommunikationer till såväl Stockholm som andra närliggande orter. I Uppsala finns en bra variation när det gäller boendet och du kan välja att bo lantligt eller centralt, i villa eller bostadsrätt. I området hittar du ett stort urval av skolor, både kommunala och fristående med olika profiler och inriktningar. Här finns också elitlag inom innebandy, bandy, basket och badminton.
Köpa, sälja eller värdera bostad i Uppsala? Kontakta våra mäklare i Uppsala! Passa också på att anmäla dig till vår kostnadsfria söktjänst Boagenten som hjälper dig att hitta ditt drömboende.
Kontakta mäklaren om du behöver hjälp att ta fram en boendekalkyl.
När du köper din bostad genom Bjurfors kan du ansöka om bolån till en förmånlig ränta hos våra banksamarbetspartners Söderberg & Partners och SEB.