-
Köpa
Köpa -
Sälja
Sälja - Hitta bostad
- Skapa bevakning
- Hitta mäklare
Ditt paradis i Värmland med skog och sjö i symbios
Glava, Arvika
Vacker gård om 44 hektar med flera bostads- och ekonomibyggnader samt möjlighet för mindre djurhållning
Den vackra gula mangårdsbyggnaden skiner upp mellan träden i allén när du anländer till Mosterud. Denna fantastiska gård från 1800-talet ligger belägen med panoramautsikt över Glafsfjorden och 70 meter från strandlinjen. Här kan du njuta av avskildhet med generösa utrymmen och flera bostadshus, perfekt för familj och vänner att komma på besök. Fastigheten sträcker sig ner till sjön med betesmark vid gården och skog runt omkring. Möjlighet för djurhållning om så önskas och anlagd paddock finns. Med sina 44 hektar erbjuder denna fastighet dig natursköna områden i Värmland med skog och sjö i symbios. Ett måste att uppleva denna vackra gård på plats!
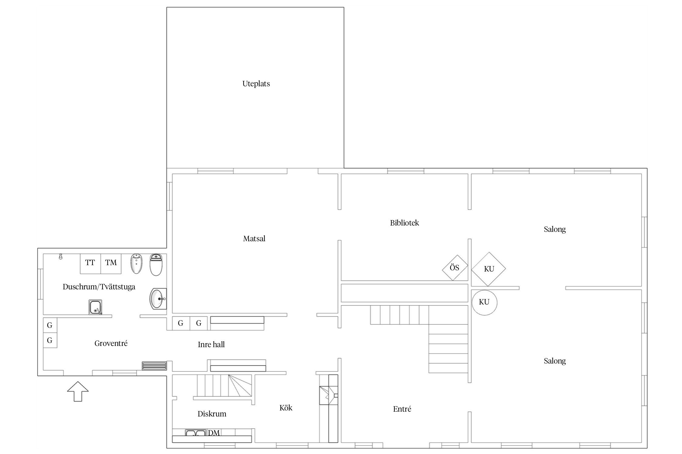
Den ståtliga huvudbyggnaden erbjuder generösa ytor om 205 kvm över två plan och delvis källare. Du välkomnas genom dubbeldörrarna till hall med plats för avhängning och den stora trappan tar dig upp till övre plan. Från hallen når du bostadens kök där man har gott om förvaring i över- och underskåp samt arbetsyta i de tre mindre rummen. Groventré med möjlighet för avhängning samt praktiskt med duschrum och tvättstuga i direkt anslutning. Den stora matsalen har man renoverat och återställt med ett extra fönster vilket ger ett magiskt ljusinsläpp. Här når du även mangårdsbyggnadens altan där du kan njuta av den fantastiska utsikten. Från matsalen når du biblioteket med öppen spis samt den mindre salongen som ligger i fil. Vacker kakelugn som värmer gott kalla dagar. Den större salongen har man valt att inreda som vardagsrum och även här har du en vackert utsmyckad kakelugn från Arvika Kakelfabrik som sätter prägel på rummet. Mycket inbjudande med ljusinsläpp från två väderstreck. Trappan i hallen tar dig upp till övre plan och här finns bostadens tre sovrum belägna. Alla rymliga med plats för dubbelsäng och tillhörande möblemang. Genomgående gott om förvaringsmöjligheter i kattvindar samt garderober på övre plan. I övre hall finns naturlig del för arbetsplats med möjlighet för större skrivbord. Äldre och charmigt duschrum inrett med duschkabin.
"Arrendebostaden" om 80 kvm är uppförd år 1946. Trevlig planlösning med stort kök, sovrum, vardagsrum samt duschrum på nedre plan. Övre plan erbjuder en stor övre hall, sovrum med plats för dubbelsäng samt bra förvaring i kattvindar.
"Nybygget" är enligt säljaren uppförd på mitten av 1800-talet och tillbyggd år 1972, därav tilltallsnamnet. Dess 100 kvm erbjuder kök, vardagsrum med kamin samt duschrum på nedre plan. Två sovrum på övre plan med plats för dubbelsäng i de båda varav det ena har öppen spis. Härlig terrass med fantastisk panorama utsikt över Glafsfjorden och enbart 50 meter till vattenbrynet.
Ladugården erbjuder stall med djurhållning om så önskas. Del av stallet är omgjort till garage men här finns möjlighet att återställa detta om behovet finns. Mycket bra förrådsutrymmen i ladans norra del.
Förutom de fantastiska boendemöjligheterna samt ladugården har du även Sjöstugan samt bastun vid vattenbrynet. Sjöstugan om ca 30 kvm ligger vackert belägen på en klippa 100 meter från mangårdsbyggnaden med utsikt mot Stavnäs kyrka. Den perfekta stugan för att bjuda in till årets kräftskiva! Bastun ligger även den vid vattenbrynets kant men med utsikt över Glafsfjorden.
Tomten runt byggnaderna har stora gräsytor och är till viss del nyanlagda. År 2024 anlade man en stenlagd uteplats längs mangårdsbyggnadens sydvästra sida där du kan njuta av många soltimmar. Centralt beläget på gården finns paddock som är ca 40 meter lång och 25 meter bred. Till den som önskar gård med betesmarker samt mindre skog är säljarna öppna för att stycka av gården från den större delen av skogen om detta är av intresse.
Den vackra utsikten över fjorden är likt en tavla och för dig som älskar naturen finns det mycket att utforska på dina ägor.
Hjärtligt välkommen att kontakta ansvarig fastighetsmäklare för mer information



Huvudbyggnad entréplan
Huvudbyggnad övre plan
Nybygget entréplan
Nybygget övre plan
Arrendebostaden entréplan
Arrendebostaden övre plan
Mosterud 1:2
2020: Dränering och pump vid groventré, fiberinstallation.
2023: Nytt tak och ny värmepump. Ny träpanel samt nya fönster på byggnadens södra del. Matsalen har renoverats med nya ytskikt samt satt in altandörr ut till den nya altanen. Ytterligare dränering, nya avloppsrör samt stenlagd uteplats med stenmur i anslutning i sydväst läge. Delvis ny el.
Djupborrad brunn och tvåkammarbrunn.
Tomtarea 10000 m².
Fornlämning (3 st)
Skattetal: öre, penningar 90:14,688
Last: Avtalsservitut Kraftledning,nätstation, 1784IM-13/9475.1
Last: Ledningsrätt Starkström, 17-Å-5443.1
Avtalsservitut Kraftledning,nätstation
Driftskostnaderna gäller för hela gården och under uppvärmning är även hushållsel. Under övrigt är fiber och internet. Detta är enbart riktvärden och kan variera beroende på avtal
Areal: 2 ha.
Areal: 5 ha. Brukningsvärde: 30 % lägre avkastn och kvalitet än normalt i omr.
Areal: 37 ha. Barrskog: 186 kbm/ha. Lövskog: 38 kbm/ha.
Det finns 1 st pantbrev uttaget om sammanlagt 105 000 kr
Du välkomnas in i "Arrendebostaden" av härlig farstukvist och in vidare i hall med plats för avhängning. Praktiskt med duschrum i direkt anslutning under trapp. Trevligt vardagsrum med ljusinsläpp från två väderstreck och plats för soffa samt sittgrupp. Stort kök med naturlig del för matgrupp samt ett rymligt sovrum på entréplan inrett med dubbelsäng. Övre plan har en stor möblerbar hall, ett sovrum samt bra förvaring i kattvindar.
1 ½ plans villa med stomme av trä, stående träpanel, torpargrund samt plåttak.
2023: Fasad målad
Tomtarea 400 m².
Carport i anslutning till entré vid kök
Enskilt vatten och avlopp
Välkommen in i "Nybygget". Ett fantastiskt läge bara 50 meter från vattenbrynet och härlig altan med utsikt över sjön i anslutning till bostaden. Du välkomnas av mindre hall och duschrum praktiskt beläget vid entrén. Kök med utsikt över sjön och härligt vardagsrum med braskamin. En trappa upp finns ett stort sovrum inrett med dubbelsäng och öppenspis samt ett mindre sovrum inrett med två enkelsängar.
1 ½ plans villa med trästomme på plintar från mitten av 1800-talet, tillbyggt med duschrum och kök år 1972. Stående träpanel och skiffer- samt plåttak.
1972: Tillbyggd del med duschrum och kök
1993: Terrass
2005: Skiffertak lades om
2021: Nytt falsat plåttak på den utbyggda delen
2023: Fasad målad
Tomtarea 10000 m².
Enskilt vatten (sommarvatten) och avlopp
Byggnad om ca 30 kvm med ett stort rum och öppen spis (ej i bruk). Uppförd av timmerstomme som delvis är beklädd med stående träpanel samt skiffertak. År 1997 lades taket om. 2001 renoverade man med ny panel på väggarna, nytt golv och trossbotten med ny isolering.
Uppförd år 2019 vid vattenbrynet med ett rum för relax samt bastudel med vedeldat aggregat. El finns indragen. Generöst trädäck på framsidan med fantastisk utsikt.
Ca 55 kvm med en takhöjd om 285 cm och dubbelport. Nymålat år 2023
Ca 140 kvm. Sannolikt äldsta byggnaden på gården från slutet av 1700-talet enligt säljarna. Nytt tak år 2021 samt nya fönster och målat år 2023.
Ca 40 kvm. Förvaring av sommarsaker. Nymålat år 2023.
Area 288 kvm. Beskaffenhet: Enklare. Uppförd i vinkel varav en del i vitputsad sten samt den andra i träkonstruktion. Den vitputsade delen har gjuten betongplatta. Används idag som garage samt förvaring och har tidigare varit stall, hönshus och mjölkkammare. Den andra sidan är höskulle. Samtliga fönster är nya år 2023 och fasaden målades samma år.
Area 24 kvm. Beskaffenhet: Enklare
Vill du köpa, sälja eller värdera bostad i Värmlands län? Kontakta våra mäklare i Karlstad! Passa också på att anmäla dig till vår kostnadsfria söktjänst Boagenten som hjälper dig att hitta ditt drömboende.
Kontakta mäklaren om du behöver hjälp att ta fram en boendekalkyl.
När du köper din bostad genom Bjurfors kan du ansöka om bolån till en förmånlig ränta hos våra banksamarbetspartners Söderberg & Partners och SEB.
| Bud | Budgivare | Datum | Tid |
|---|---|---|---|
| 9 500 000 kr | Budgivare 1 | 2026-03-02 | 08:30 |
Ansvarig mäklare