-
Köpa
Köpa -
Sälja
Sälja - Hitta bostad
- Skapa bevakning
- Hitta mäklare
Välskött villa i ett plan
Grossbol, Forshaga
*Areauppgifter enligt taxeringsinformationen
På Förhand ligger bostäder som av olika anledningar inte är ute till försäljning just nu men som kan komma att säljas om förutsättningarna är rätt.
Varmt välkomna till Norrliden 7 och denna trivsamma villa med tre sovrum och ett renoverat kök. Bostaden har ett stort vardagsrum med utgång till den härliga altanen på baksidan som är delvis under tak. Bostaden har en praktisk groventré där tvättstuga och separat dusch finns. Det renoverade köket har ljusa snickerier, utrustat med spis, köksfläkt, diskmaskin, ugn, mikro, kyl och frys. Villans garage är även det stort och har gott om plats för bil eller annan typ av utrustning.
Området erbjuder lugn och ro samtidigt som du har närhet till allt du behöver. Bostaden har härliga omgivningar med grönområden och närhet till service såsom skolor, affärer och kommunikationer.
Välkommen att kontakta oss för mer information
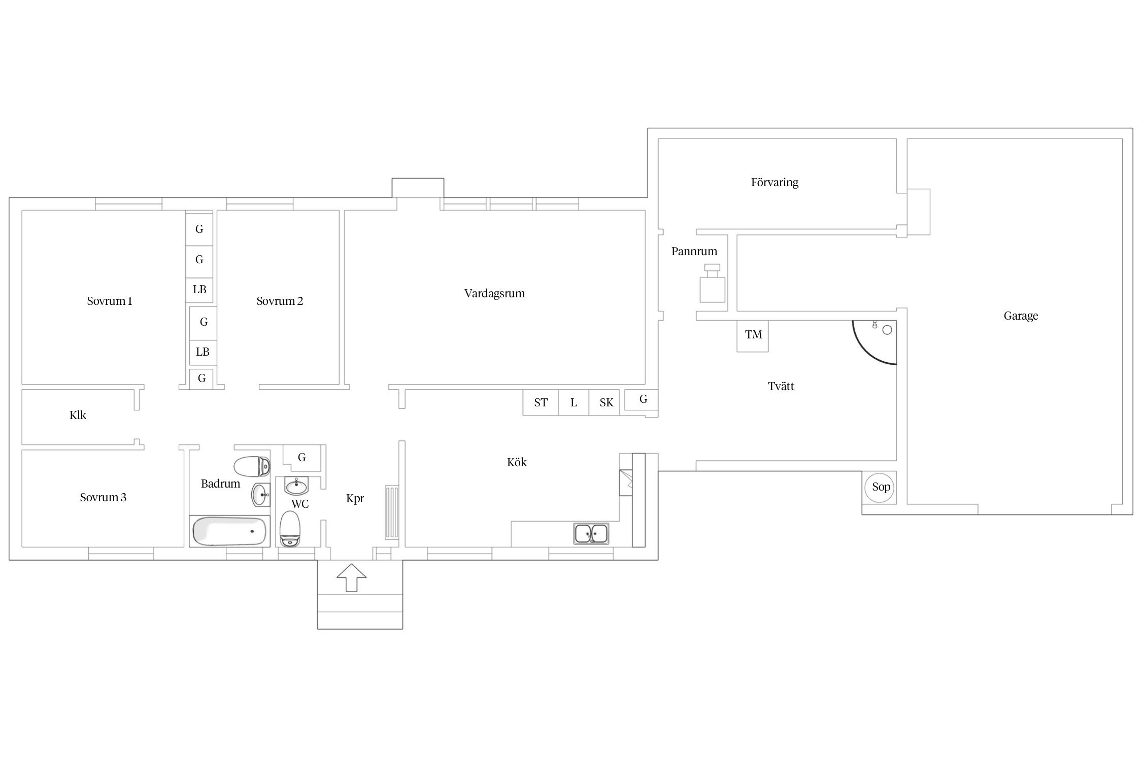
Planlösning: HALL
Välkomnande hall med plats för klädavhängning. Direkt till vänster finns en WC.
BADRUM
Badrum med kakel och klinker, utrustat med badkar, WC och tvättställ med underliggande kommod.
SOVRUM 1
Stort och praktiskt sovrum med gott om plats för dubbelsäng och övrigt möblemang.
SOVRUM 2
Det andra sovrummet har även det bra storlek, gott om plats för säng, finns även en skjutdörrsgarderob.
SOVRUM 3
Det tredje sovrummet har även det bra storlek, plats för säng och övrigt möblemang.
VARDAGSRUM
Stort och mysigt vardagsrum med gott om plats för soffgrupp och matsalsmöbel. Här är en braskamin installerad. Utgång till den härliga och soliga altanen på baksidan som delvis är under tak.
KÖK
Renoverat kök från IKEA, ljusa snickerier och gott om förvaring. Plats för matgrupp invid ena fönstret.
GROVENTRÈ/TVÄTTSTUGA
I groventrén finns plats för klädavhängning, i samma utrymme finns tvättstuga där tvättmaskin och duschkabin finns.
GARAGE
Fortsätter man rakt fram från tvättstugan nås ett hemmakontor/pannrum med utgång till det stora garaget. Garaget har grått målat golv och ljusa väggar. Gott om plats för bil och annan förvaring. Utgång till baksidan av huset.
Planlösning
HALL
Välkomnande hall med plats för klädavhängning. Direkt till vänster finns en WC.
BADRUM
Badrum med kakel och klinker, utrustat med badkar, WC och tvättställ med underliggande kommod.
SOVRUM 1
Stort och praktiskt sovrum med gott om plats för dubbelsäng och övrigt möblemang.
SOVRUM 2
Det andra sovrummet har även det bra storlek, gott om plats för säng, finns även en skjutdörrsgarderob.
SOVRUM 3
Det tredje sovrummet har även det bra storlek, plats för säng och övrigt möblemang.
VARDAGSRUM
Stort och mysigt vardagsrum med gott om plats för soffgrupp och matsalsmöbel. Här är en braskamin installerad. Utgång till den härliga och soliga altanen på baksidan som delvis är under tak.
KÖK
Renoverat kök från IKEA, ljusa snickerier och gott om förvaring. Plats för matgrupp invid ena fönstret.
GROVENTRÈ/TVÄTTSTUGA
I groventrén finns plats för klädavhängning, i samma utrymme finns tvättstuga där tvättmaskin och duschkabin finns.
GARAGE
Fortsätter man rakt fram från tvättstugan nås ett hemmakontor/pannrum med utgång till det stora garaget. Garaget har grått målat golv och ljusa väggar. Gott om plats för bil och annan förvaring. Utgång till baksidan av huset.



Planskiss
Liljekonvaljen 8
*Areauppgifter enligt taxeringsinformationen
Huset förvärvades år 2015 av nuvarande ägare. Äldre uppgifter är andrahandsuppgifter från tidigare ägare. Nya fönster förutom i vardagsrum, år 2003-2008. Nya energikassetter i vardagsrum, år okänt. Nya innerdörrar, ca år 2005. Nytt parkettgolv i vardagsrum och sovrum, år 2011. Nya vattenledningar från gata till hus, år 2011. Tak renoverat under 2006. Badrum renoverat under 2012.
Nytt plåttak på garage år 2017. Braskamin år 2017. Nytt kök, år 2020. Nya ytskikt i garage, år 2023.
Härlig altan på baksidan av huset som delvis är under tak.
Kommunalt vatten, Kommunalt avlopp.
Lättskött tomt med bra grönytor.
Plats för bilar på uppfarten och även i det stora garaget.
Detaljplan (2020-04-07) Tomtindelning (1960-02-01)
Fiber
Det finns 8 st pantbrev uttagna om sammanlagt 1 539 500 kr
Vill du köpa, sälja eller värdera bostad i Värmlands län? Kontakta våra mäklare i Karlstad! Passa också på att anmäla dig till vår kostnadsfria söktjänst Boagenten som hjälper dig att hitta ditt drömboende.
Kontakta mäklaren om du behöver hjälp att ta fram en boendekalkyl.
När du köper din bostad genom Bjurfors kan du ansöka om bolån till en förmånlig ränta hos våra banksamarbetspartners Söderberg & Partners och SEB.
Ansvarig mäklare