-
Köpa
Köpa -
Sälja
Sälja - Hitta bostad
- Skapa bevakning
- Hitta mäklare
Välplanerad och stilrent renoverad etta med låg avgift i populära Haga
Haga, Karlstad
*Areauppgift enligt bostadsrättsföreningen
På Förhand ligger bostäder som av olika anledningar inte är ute till försäljning just nu men som kan komma att säljas om förutsättningarna är rätt.
Populära Haga, bostadsrätt med månadsavgift om 891 kr/månad. Omtyckt och välskött bostadsrättsförening.
Varmt välkommen till Nygatan 15 och denna kvadratsmarta och smakfullt renoverade etta i eftertraktade Haga. Här erbjuds en bostad som kombinerar funktion, stil och ekonomi på ett mycket tilltalande sätt – perfekt för förstagångsköparen, studenten eller som övernattningslägenhet.
Lägenheten är genomgående renoverad med moderna och tidlösa materialval. Köket är nyligen uppdaterat med stilrena ytskikt samt tillfredsställande arbetsytor som gör matlagningen både enkel och trivsam. Det helkaklade badrummet håller en hög standard och ger ett fräscht och harmoniskt intryck.
I hallen möts du av ett vackert klinkergolv som sätter tonen direkt vid entré. Bostaden erbjuder dessutom ett separat sovrum, en ovanlig och mycket uppskattad detalj för en etta. Detta skapar en tydlig uppdelning mellan sociala ytor och vila.
Vardagsrummet är ljust och luftigt med plats för både mindre soffgrupp och matplats. Härifrån nås även den franska balkongen som bidrar med ett fint ljusinsläpp och en vacker utsikt.
En av bostadens stora fördelar är den ovanligt låga månadsavgiften om enbart 891 kr/månad.
Här bor du i ett lugnt och trivsamt område med närhet till Karlstads centrum, universitetet, goda kommunikationer samt service och grönområden.
En perfekt bostad för dig som söker något inflyttningsklart med det lilla extra!
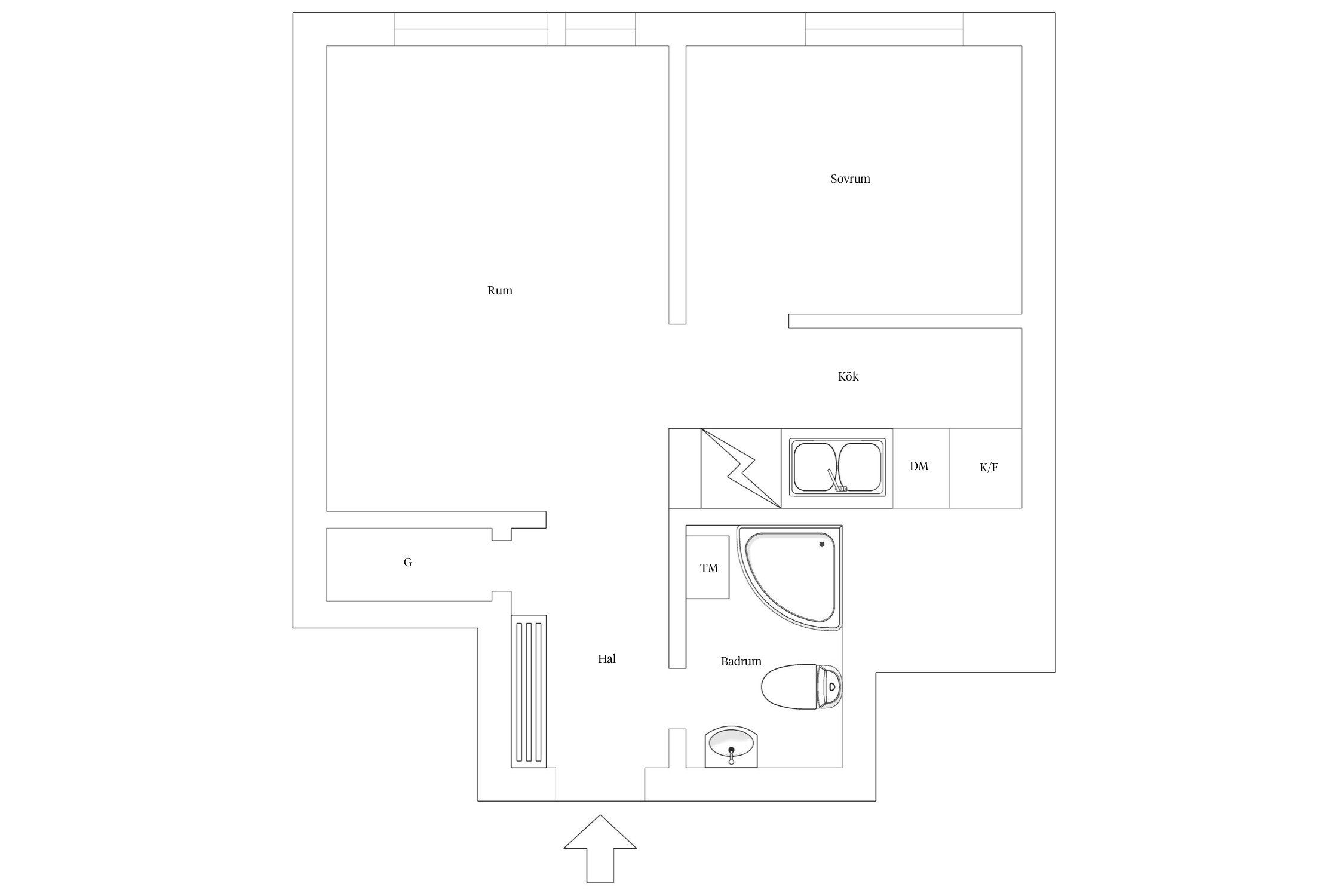
Hall
Välkomnande hall som är inredd med ljusa väggar och ett vackert klinkergolv mönstrat som Kolmårdsmarmor. I hallen finns plats för upphängning av ytterkläder och i anslutning duschrum samt förvaring i garderob.
Duschrum
Nyrenoverat duschrum inrett med ett läckert kakel i marmorerad grå som matchar väl på både vägg och golv. Här finns duschhörn med glasväggar, uppvärmd handdukstork, WC och handfat. Bra förvaring i spegelskåp och kommod. Golvvärme. Bekvämt med toppmatad tvättmaskin.
Allrum
Välplanerat rum med öppen planlösning mot köksdelen. Här finns plats för mindre matbord och soffa. Smakfull inredning med ljusa väggar och parkettgolv i fiskbensmönster. Från den franska balkongen som vetter i väst har vi en trevlig utsikt mot Klarälven och Karlstads domkyrkotorn.
Kök
Snyggt designat kök med snickerier i grön ton som kompletteras med bänksskiva och arbetsyta i trä. Fullt integrerade kyl/frys och diskmaskin skapar den rätta stilen. Induktionshäll och varmluftsugn.
Sovrum
Effektivt planerat sovrum som inrymmer 160 cm säng. Ljusa väggar och parkettgolv i fiskbensmönster.



*Areauppgift enligt bostadsrättsföreningen
8 garageplatser, separat kö.
6 parkeringsplatser, separat kö.
TV via Sappa
Bredband via Sappa
Bostadsrättens indirekta nettoskuldsättning baseras på föreningens skulder/lån minus föreningens räntebärande tillgångar och likvida medel. Beräkningen är gjord och baseras enbart på den senaste tillgängliga årsredovisningen. För mer information kontakta ansvarig fastighetsmäklare.
*Betalas av säljare
Föreningens fastighet Hyttan 10 i Karlstad består av ett flerbostadshus i fem våningar med totalt 25 bostadslägenheter med en lägenhetsyta av 1871,6 kvm.
Föreningen har en övernattningslägenhet att hyra på våning 1 om ca 23 kvm i Nygatan 13. Lägenheten består av ett rum med två sängar, köksdel med kyl/frys, häll och inbyggnadsmikro, separat duschrum med wc. Kostnaden för denna är 150kr/natt de första tre dygnen efter det 100kr/natt. Man har även en lokal som hyrs ut till IOGT-NTO om ca 347 kvm , en källarlägenhet om 49 kvm samt en till lägenhet om 30 kvm. De båda lägenheterna har i dag hyresgäster.
Föreningen förvaltas ekonomiskt av Vänerförvaltning AB. Oförändrade månadsavgifter sedan 1997.
Fastigheten är fullvärdesförsäkrad hos IF. Bostadsrättförsäkring ingår.
Föreningen har genom åren låtit utföra flera renoveringar av fastigheten. För mer utförlig info; se "Renoveringsåtgärder Brf Hyttan" som ligger som bifogad pdf-fil. Här kommer några av de renoveringar som gjorts:
Renovering fasader, omläggning av tak och nya fönster, 1992-1993.
Nya lägenhetsdörrar, 2004.
Inglasade balkonger, 2005.
Relining av stammar, 2004.
Energibesparande termostater till radiatorerna, 2009.
8 garageplatser, separat kö.
6 parkeringsplatser, separat kö.
Vill du köpa, sälja eller värdera bostad i Värmlands län? Kontakta våra mäklare i Karlstad! Passa också på att anmäla dig till vår kostnadsfria söktjänst Boagenten som hjälper dig att hitta ditt drömboende.
Kontakta mäklaren om du behöver hjälp att ta fram en boendekalkyl.
När du köper din bostad genom Bjurfors kan du ansöka om bolån till en förmånlig ränta hos våra banksamarbetspartners Söderberg & Partners och SEB.
Ansvarig mäklare