-
Köpa
Köpa -
Sälja
Sälja - Hitta bostad
- Skapa bevakning
- Hitta mäklare
Välkommen till Öna gamla skola – en unik bostad med anor och själ
Väse, Karlstad
*Areauppgifter enligt taxeringsinformationen
120 kvm boarea är även lärarbostaden.
På Förhand ligger bostäder som av olika anledningar inte är ute till försäljning just nu men som kan komma att säljas om förutsättningarna är rätt.
Öna gamla skola i Väse är en historisk byggnad som tidigare fungerat som en skolmiljö – en plats där generationer barn tidigt format sin vardag. Vid 1999 lades skolverksamheten ner och 2003 påbörjades renoveringen till en privatbostad. Huset bär tydliga spår från sin ursprungliga skolarkitektur: högt i tak, klassiska spröjsade fönster, gedigna trägolv och materialval. Ljusa rum skapar en välkomnande atmosfär där vardagsliv och historia möts. De gamla klassrummen har förvandlats till luftiga sällskapsrum, med plats för både skratt, fest och stillhet. Ett underbart stort och inbjudan kök inspirerar till matlagning och middagar med utsikt över trädgård och ängar.
Fastigheten omfattar skolbyggnaden som idag är en villa om ca 300 kvm och en villa (gamla lärarbostaden) om 120 kvm som idag hyrs ut. Försäljningen gäller hela fastigheten med de två husen.
Denna charmiga byggnad ligger ca 10 minuter från Väse samhälle. Fastigheten omges av Väse-bygdens grönskande ängar och kulturmiljö – perfekt för den som vill bo med lugn och närhet till naturen, men ändå med ett starkt kulturarv i väggarna. Samhället har bland annat en skola (F-6 och fritidshem) samt flera förskolor, äldreboendet och restaurant ”Räven”. Bra anknytning till E 18, buss och tåg. Närhet till Vänern med bad och båtmöjligheter. Samtidigt når du Karlstad på bara 30 minuter med bil. Här bor du lugnt och lantligt, utan att vara långt från stadens utbud.
Välkommen att kontakta ansvarig mäklare vid intresse.
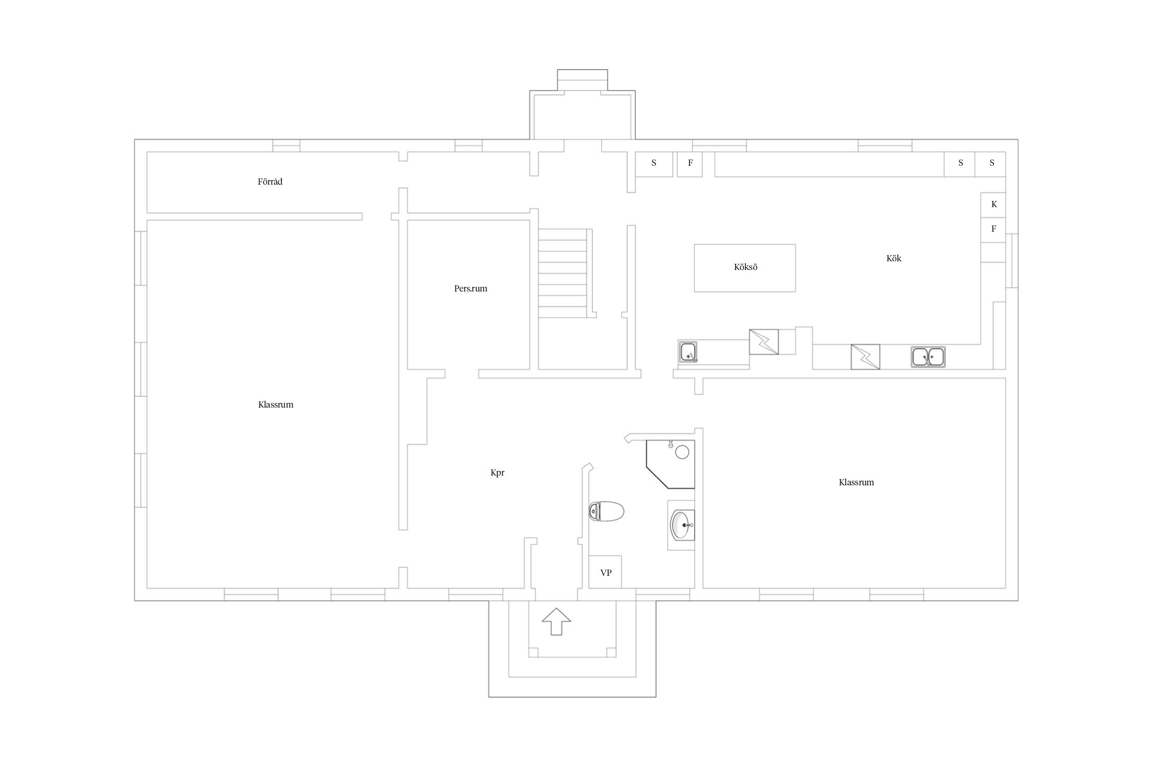
Planlösning Gamla skolan: Entréplan har renoverats varsamt men ändå på bästa sätt för att göra om till en bostad. En skolsal finns kvar i sitt originalutseende. Den andra stora skolsalen är omgjord till ett stort och fantastiskt vardagsrum, här kan du verkligen samla den stora familjen! Entréplan har vackra trägolv och målade väggar.
Rymlig och stor hall och vid hallen finns ett duschrum som är renoverat under 2008 med kakel och delvis klinkers. Dusch, wc, kommod och handdukstork.
Stort inbjudande kök som bidrar till en social och inspirerande matlagning. Gott om arbetsbänkar tack vare en stor köksö i mitten av rummet. Här finns en trevlig eldstad vid matplatsen som även rymmer ett stort matbord. Här kan du sitta och äta med underbar utsikt över ängarna.
På entréplan finns även ett sovrum och ett förråd.
Över plan
Har renoverats och byggts om 2012-2013. En jättefin och charmig miljö.
Här hittar du 4 sovrum med trägolv, flera eldstäder och ett stort badrum samt en tvättstuga. Klädkammare och förrådsutrymmen längs sidovindarna.
Planlösning Lärarbostaden: Entréplan rymmer två sällskapsrum i fil, trägolv och ljusa väggar. Utsikt mot framsidan och ängarna bidrar till en ljus känsla.
Kök med plats för matgrupp. Toalett, tvättstuga, pannrum och förråd.
Övre plan
Inrymmer två sovrum och ett duschrum.
Planlösning Gamla skolan
Entréplan har renoverats varsamt men ändå på bästa sätt för att göra om till en bostad. En skolsal finns kvar i sitt originalutseende. Den andra stora skolsalen är omgjord till ett stort och fantastiskt vardagsrum, här kan du verkligen samla den stora familjen! Entréplan har vackra trägolv och målade väggar.
Rymlig och stor hall och vid hallen finns ett duschrum som är renoverat under 2008 med kakel och delvis klinkers. Dusch, wc, kommod och handdukstork.
Stort inbjudande kök som bidrar till en social och inspirerande matlagning. Gott om arbetsbänkar tack vare en stor köksö i mitten av rummet. Här finns en trevlig eldstad vid matplatsen som även rymmer ett stort matbord. Här kan du sitta och äta med underbar utsikt över ängarna.
På entréplan finns även ett sovrum och ett förråd.
Över plan
Har renoverats och byggts om 2012-2013. En jättefin och charmig miljö.
Här hittar du 4 sovrum med trägolv, flera eldstäder och ett stort badrum samt en tvättstuga. Klädkammare och förrådsutrymmen längs sidovindarna.
Planlösning Lärarbostaden
Entréplan rymmer två sällskapsrum i fil, trägolv och ljusa väggar. Utsikt mot framsidan och ängarna bidrar till en ljus känsla.
Kök med plats för matgrupp. Toalett, tvättstuga, pannrum och förråd.
Övre plan
Inrymmer två sovrum och ett duschrum.



Öna 1:7
*Areauppgifter enligt taxeringsinformationen
120 kvm boarea är även lärarbostaden.
*2003 ombyggt
Byggnadsbeskrivningen gäller skolbyggnaden och lärarbostaden kan du se mer om byggnadsinfo i besiktningsprotokollet.
Uthyrning av den mindre villan(lärarbostaden) på 120 kvm är 1-års kontrakt med förnyelse och kan sägas upp från båda parter med 3 månaders uppsägningstid. Kallhyra på 7000 kr/månad.
Fastigheten förvärvades år 2003 av nuvarande ägare.
Äldre uppgifter är således andrahandsuppgifter från tidigare
ägare. Huset byggdes om från skola till bostad år 2003-2008. Övervåningen renoverades ca år 2012.
Skorstenar är renoverade ca år 2004. Nockvinden är tilläggsisolerad.
Taket är renoverat någongång på 1990-talet.
WC/Dusch på övre plan renoverat år 2013, utfört av firma.
WC/Dusch på nedre plan byggdes om år 2008.
Installerat en luft-luft Vp ca år 2018.
Delvis ny el i huset löpande genom åren.
Enskilt vatten, egen brunn med 60 meters djup, tjänliga vattenprover finns med anmärkning om fluor.
Enskilt avlopp, trekammarbrunn stor anpassad för skolverksamhet, tömning 1 gång/år.
Stor och trevlig trädgårdstomt som har allt från stora fina ekar, äppleträd och lekplats.
Garage byggt 2014.
Fornlämning (1 st)
Bredband via fiber anslutet i båda husen.
Driftkostnader avser skolan, men va gäller båda fastigheterna. Slamtömning 1gång per år/ (bör ansökas om tömning vartannat år eller vart tredje år då tanken är så stor). Uppvärmning avser även hushållsel.
Det finns 9 st pantbrev uttagna om sammanlagt 2 999 000 kr
Vill du köpa, sälja eller värdera bostad i Värmlands län? Kontakta våra mäklare i Karlstad! Passa också på att anmäla dig till vår kostnadsfria söktjänst Boagenten som hjälper dig att hitta ditt drömboende.
Kontakta mäklaren om du behöver hjälp att ta fram en boendekalkyl.
När du köper din bostad genom Bjurfors kan du ansöka om bolån till en förmånlig ränta hos vår samarbetspartner SEB.
Ansvarig mäklare