-
Köpa
Köpa -
Sälja
Sälja - Hitta bostad
- Skapa bevakning
- Hitta mäklare
Tvåplanshus med källare och dubbelgarage på Morön
Morön, Skellefteå
*Areauppgifter enligt taxeringsinformationen
Välkommen till ett gediget och charmigt tvåplanshus med källare, beläget på attraktiva Morön – endast fem minuter från Skellefteås stadskärna. Här bor du med både närhet till centrum och direkt anslutning till grönområden, skolor, förskolor och all tänkbar service. Ett perfekt läge för såväl barnfamiljen som den som söker ett bekvämt och tillgängligt boende i ett trivsamt kvarter.
Huset har genomgått omfattande strukturella förbättringar som ger både trygghet och långsiktig hållbarhet. Här är taket bytt, fönstren utbytta och dräneringen gjord. Fjärrvärme ger effektiv och smidig uppvärmning och dubbelgaraget rymmer både fordon, verktyg och hobbyutrustning. Entréplanet erbjuder ett trivsamt kök med matplats, ett vardagsrum med gott om ljusinsläpp, ett praktiskt sovrum och en WC. På övre plan väntar två rymliga sovrum samt ett helkaklat badrum med dusch. Källaren erbjuder stora möjligheter för den som vill skapa extra boyta, förvaring, verkstad eller relax.
Ett mycket tilltalande boende i ett av Skellefteås mest omtyckta områden – här kombineras stabilt hus med moderniserad funktion och ett läge som ger både lugn och närhet till stadens puls.
Kontakta ansvarig mäklare för mer information.



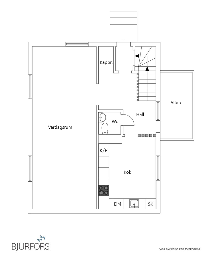
Entréplan
Övre plan
Källarplan
Blåklinten 3
*Areauppgifter enligt taxeringsinformationen
Fristående dubbelgarage
Kommunalt vatten, Kommunalt avlopp.
Stadsplan (1965-11-18)
Fiber
Uppvärmning avser fjärrvärme och är beräknat på senaste 12 månadernas. Elen är beräknat på tidigare ägares elförbrukning under de senaste 12 månaderna inkl. fasta avgifter inkl. en 20A säkring. VA är beräknat på 2 personer i hushållet med en beräknad årsförbrukning på 50kuibk/person inkl. fasta avgifter.
Det finns 1 st pantbrev uttaget om sammanlagt 125 000 kr
Kontakta mäklaren om du behöver hjälp att ta fram en boendekalkyl.
När du köper din bostad genom Bjurfors kan du ansöka om bolån till en förmånlig ränta hos vår samarbetspartner SEB.
Ansvarig mäklare