-
Köpa
Köpa -
Sälja
Sälja - Hitta bostad
- Skapa bevakning
- Hitta mäklare
Välplanerad 2:a på Nyckelgatan med inglasad balkong!
Skellefteå
*Månadsavgiften avser VA, kabel-tv samt Bredband. Hushållsel samt uppvärmning (direkt-el) tillkommer på månadsavin och det mäts samt debiteras individuellt.
**Föreningsinformation
Bokade visningar. Vänligen kontakta mäklaren för att boka tid.
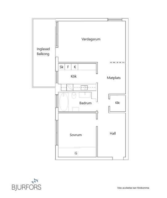
Välkommen till denna trivsamma 2:a på populära Nyckelgatan – en ljus och välplanerad gavellägenhet med fönster i flera väderstreck. Bostaden stoltserar med en generös, inglasad balkong i härligt västerläge där du kan njuta av eftermiddags- och kvällssolen stora delar av året.
Köket renoverades 2014 och har en stilren utformning med vita köksluckor, svart kakel ovan arbetsbänk samt en mörkare arbetsbänk som ger fin kontrast. Den maskinella utrustningen består av kyl, frys, spishäll och diskmaskin, vilket skapar goda förutsättningar för både vardag och fest.
Vardagsrummet är luftigt och ljust tack vare fönster i två väderstreck. Här finns gott om plats för både soffgrupp och matplats, vilket gör rummet perfekt för sociala tillställningar.
Badrummet är helkaklat med klinkergolv och utrustat med behaglig golvvärme.
På Nyckelgatan bor du i ett lugnt och omtyckt område med närhet till skog och elljusspår. Samtidigt finns goda bussförbindelser samt gång- och cykelavstånd till stadens utbud av service, restauranger och butiker.
En bostad som kombinerar ljus, komfort och ett naturnära men centralt läge – varmt välkommen på visning!



Planlösning
Trollsländan 1
*Föreningsinformation
Månadsavgiften avser VA, kabel-tv samt Bredband. Hushållsel samt uppvärmning (direkt-el) tillkommer på månadsavin och det mäts samt debiteras individuellt.
P-platser med motorvärmarstolpe 95 kr/mån exkl el.
P-plats utan motorvärmare 40 kr/mån.
Kallgarage 250 kr/mån exkl el
Carport 175 kr / mån. ekl. el
Kö till samtliga parkeringsplatser.
Inom området finns dessutom husvagns- och släpvagnsparkeringsplatser samt speciella MC- & mopedgarage. Föreningen har även en spolhall där man kan tvätta bilen.
Kabel-TV finns och ingår i månadsavgiften: Leverantör Com Hem
Bredband finns och ingår i månadsavgiften: Leverantör Telenor 250/100 mbit/s
Enl paragraf 11 § ska årsavgiften till bostadsrätterna fördelas på bostadsrätternas andelstal.
Den är baserad på föreningens skulder/lån minus föreningens räntebärande tillgångar och likvida medel. Beräkningen är gjord och baserad på den senaste tillgängliga årsredovisningen 2024/2025 samt information från förenings lägenhets utdrag. För mer information kontakta ansvarig fastighetsmäklare.
Denna summa är ett snitt beräknat på tidigare ägares användning. Denna summa kan komma att variera beroende på hur mycket el som man förbrukar.
Föreningen äger och förvaltar fastigheten Trollsländan 1.
På fastigheten uppfördes under år 1973 fyra hus och under 1974 uppfördes åtta hus. Sammantaget innehåller husen 192 bostadsrätter med adress Nyckelgatan 58-126.
1974 uppfördes också åtta kallgarage med 135 platser, alla med motorvärmare, 97 bilplatser varav 54 med motorvärmare samt två tvättstugor och två värmecentraler.
Översyn kommer ske av lokalnyttjandet
Brf Nyckeln har för närvarande Fastighetsförsäkringen i Trygg Hansa, samt tecknat en tilläggsförsäkring för samtliga lägenheter
1993 byttes garageportarna.
1998 Om- och tillbyggnad av yttertaken.
1999-2000 Fönsterbyte till 3-glas samt tilläggsisolering av ytterväggar.
2004 Stambyte och renovering av badrum.
2004 Individuell balanserad ventilation och jordfelsbrytare.
2004 Kvarterslokalen "Nyckelgården" gjordes av gamla panncentralen.
2005 Gemensamhetsel och övergång till kallhyra.
2005 Lekutrustning i lekparken
2006 Tilläggsisolering av vind.
2009 Det interna vägnätet fick ny asfaltbeläggning.
2009 Gårdarna fick nya utemöbler och nytt utseende.
2012 Trapphusbelysning
2012 Carport 10 platser
2013 Nya vita räcken på uteplatserna med dörr direkt ut till gräsmatta.
2013 Målning garage, förråd mm samt byte av panel
2014 Kompletterande asfaltering vid carport.
2015-2016 Ändring av gårdsplanen med borttagning av träd och nya planteringar på innergårdarna m.m.
2016 Målning och reparation av balkonger samt ny gårdsbelysning.
År 2017 renoverades trapphusen i området. Ommålning, skurning av golv/trappor samt byte av dörrar. Postfack sattes också in vid entrédörrar.
2018 Nya garagetak & målning av fasadsidor
2019 Omplantering av grönytor
2020 Renovering av tvättstugor
2021-2022 Inglasning och breddning av Balkongerna
2023 - Installation av laddboxar (4 st)
P-platser med motorvärmarstolpe 95 kr/mån exkl el.
P-plats utan motorvärmare 40 kr/mån.
Kallgarage 250 kr/mån exkl el
Carport 175 kr / mån. ekl. el
Kö till samtliga parkeringsplatser.
Inom området finns dessutom husvagns- och släpvagnsparkeringsplatser samt speciella MC- & mopedgarage. Föreningen har även en spolhall där man kan tvätta bilen.
Kabel-TV finns och ingår i månadsavgiften: Leverantör Com Hem
Bredband finns och ingår i månadsavgiften: Leverantör Telenor 250/100 mbit/s
Brevid vicevärdsexpeditionen på Nyckelgatan 128 finns ett övernattningsrum, träningslokal och 2 st bastuanläggningar. I mitten av samma hus finns fastighetsskötarlokalen och längst till söder finns en vävlokal och ett snickeri. Föreningen har även:
- Boulebanor
- Basketplan, korg
- Bilsläpvagn
- Caféträffar för daglediga med Sunnanåkyrkan
- Grillplatser
- Kvartersgård Nyckelgården
- Lekpark
- Spolhall för bilar
Alla lägenheterna förutom 1:orna, samt några utav 2:orna har ett eget förråd i samma trappuppgång, de övriga har ett förråd inne i lägenheten.
Det finns två stycken gemensamma tvättstugor som får nyttjas av de boende i föreningen, belägen i kvartersgården ett stenkast bort.
Kontakta mäklaren om du behöver hjälp att ta fram en boendekalkyl.
När du köper din bostad genom Bjurfors kan du ansöka om bolån till en förmånlig ränta hos vår samarbetspartner SEB.
Bokade visningar. Vänligen kontakta mäklaren för att boka tid.
Ansvarig mäklare