-
Köpa
Köpa -
Sälja
Sälja - Hitta bostad
- Skapa bevakning
- Hitta mäklare
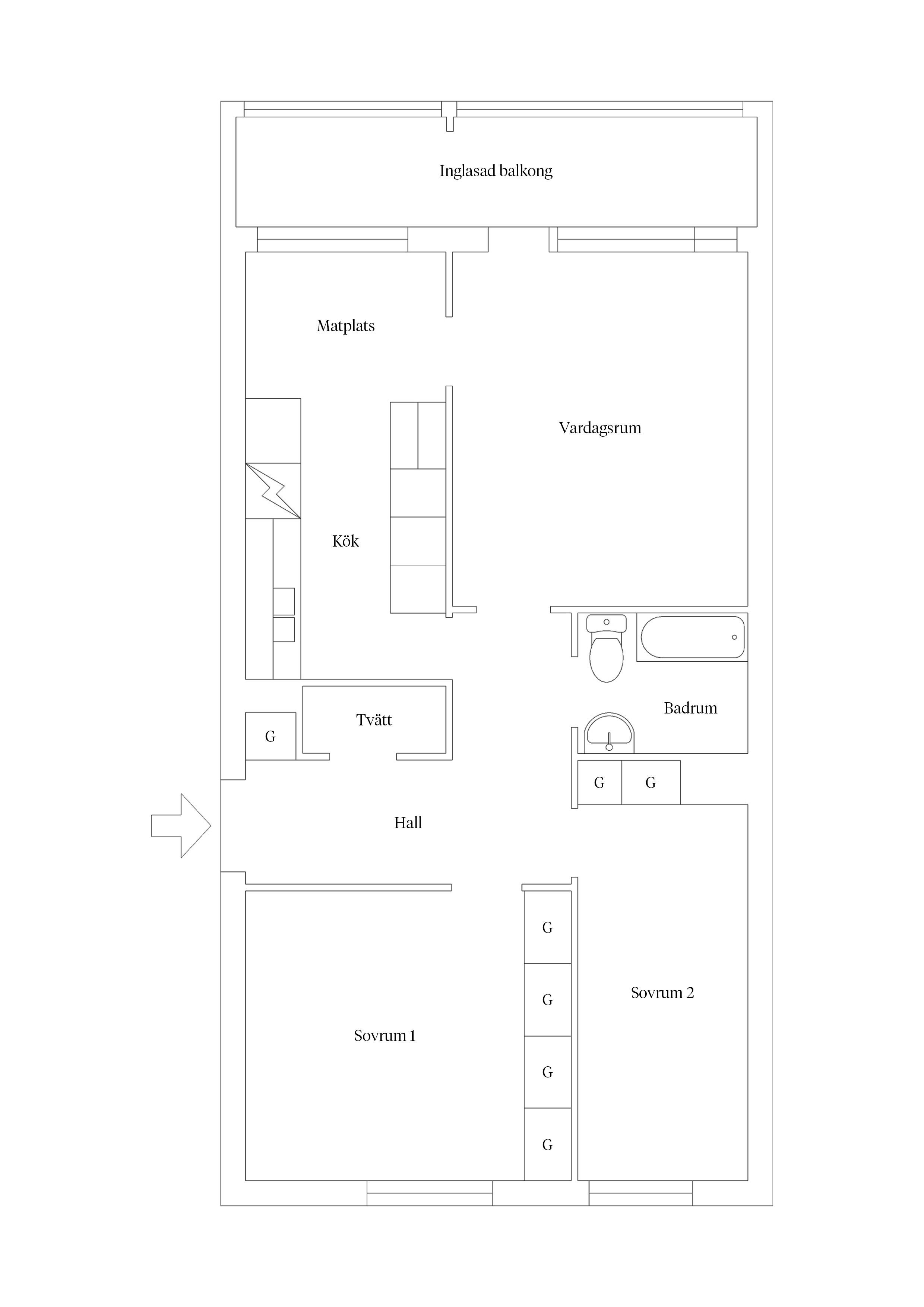
Välplanerad och renoverad 3:a med inglasad balkong.
Granlo, Sundsvall
*I månadsavgiften ingår, värme, vatten, kabel-tv, bredband och bostadsrättstillägget. Utöver månadsavgiften tillkommer balkongavgift på 193kr
**Bostadsrättsföreningen
På Förhand ligger bostäder som av olika anledningar inte är ute till försäljning just nu men som kan komma att säljas om förutsättningarna är rätt.
I natursköna och populära Granlo finner du denna hemtrevliga trerummare med en varm och välkomnande känsla. Här bor du på andra våningen i ett lugnt område med närhet till både natur och service, perfekt för dig som vill ha det bästa av två världar.
Runt hörnet finns också ett elljusspår som vintertid även har uppdragna längdspår.
Lägenheten erbjuder ett renoverat kök med gott om förvaring och arbetsyta, två rymliga sovrum med garderober samt ett ljust vardagsrum som i dag delats av för att skapa ytterligare en sovplats, i annat fall är rummet stort nog att rymma både mat och soffgrupp. Från vardagsrummet når du den generösa och inglasade balkongen en härlig förlängning av bostaden under stora delar av året.
Det helkaklade badrummet är fräscht och utrustat med wc, tvättställ och badkar. Den tidigare gästtoaletten har smart byggts om till en praktisk tvättavdelning med egen tvättmaskin.
En trivsam bostad med fin planlösning, härligt ljusinsläpp och en mysig atmosfär här känner du dig snabbt som hemma. Välkommen till ett boende att trivas i!



*Bostadsrättsföreningen
I månadsavgiften ingår, värme, vatten, kabel-tv, bredband och bostadsrättstillägget. Utöver månadsavgiften tillkommer balkongavgift på 193kr
Mycket stor, inglasad balkong i söderläge.
Bostadsrättens indirekta nettoskuldsättning baseras på föreningens skulder/lån minus föreningens räntebärande tillgångar och likvida medel. Beräkningen är gjord och baseras på senaste tillgängliga årsredovisningen. För mer information kontakta ansvarig fastighetsmäklare.
Föreningens fastighet, Granlo 1:80 bebyggdes 1966 och består av 26 flerbostadshus. Föreningen upplåter 716 lägenheter med bostadsrätt samt 9 lokaler med hyresrätt.
Fastigheterna är fullvärdesförsäkrade via If. I försäkringen ingår kollektiv bostadsrättstillägg för medlemmarna samt ansvarsförsäkring för styrelsen.
Den ekonomiska förvaltningen sköts av SBC.
Föreningen har en egen expedition som är bemannat måndag - fredag kl 9 -13.
2023 Byte radiator- och stamventiler på Västravägen 56-58-60-62-64-66. under våren, sommaren och hösten.
Renovering och färga det östra fasaderna på höghusen Västra Vägen 56-72 och blir klart i april-oktober
2022 Installation av paketboxar i samarbete med PostNord
2021 Stödmur parkering
Byte radiator och stamventiler 2021 (Vikingavägen 67-75)2019 Byte av köksfönster och balkongdörr höghusen Västra vägen.
2018 Byte av låssystem
2018 Fortsatt arbete med utemiljön
2016 Uppförande av grillplatser
2016 OVK-besiktning (Obligatorisk ventilationssystem)
2015 Nytt bokningssystem för tvättstugorna (bokningstavla i trapphusen, dator samt via smartphone)
2013 Utbyggnad och inglasning av balkonger
2012 Byte av fönster, fasad, kallvattenstråk och relining av avloppsrören.
2011 Byte av lägenhetsdörrar
2008 Byte av takbeläggning
2007 Gemensamhetsel
2005 Renovering av trapphus
Se mycket detaljerad information i årsredovisningen samt på föreningens hemsida
www.selangerhusnr4.bostadsratterna.se
Västra vägen:
293 st garageplatser i centralgarage (Västra vägen 68). Kostnad 450 kr/mån. Fjärrkontroll till porten kan hyras för 20 kr/mån.
144 st förhyrda parkeringsplatser. Kostnad 125 kr/mån.
35 st gästparkeringsplatser (avgiftsbelagda, 4 kr/timme eller 25 kr/dygn).
Vikingavägen:
92 garageplatser i garagelänga. Kostnad 485kr/mån.
96 carportplatser med motorvärmare. 325 kr/mån.
186 st motorvärmarplatser. 225 kr/mån.
45 st parkeringsplatser. Kostnad 125 kr/mån.
19 st gästparkeringsplatser (avgiftsbelagda, 15kr/två timmar eller 35 kr/dygn).
Övrigt:
Mc-garage med 18 platser. Plats finns även för reparation av cyklarna. Kostnad 310 kr/mån.
För information om lediga platser, kontakta expeditionen på 060-124883
Kabel-tv digitalt via Tele2, ca 14 kanaler. Grundutbudet ingår i månadsavgiften.
Telia bredband. Kostnaden ingår i månadsavgiften (100/100 Mbit/s).
Bredbandstelefoni (fasta kostnaden) ingår i månadsavgiften
I föreningens område finns flertalet lekplatser, boulebana samt 8 grillplatser.
På Grönområdet mellan föreningens byggnader på Västra vägen och Vikingavägen finns Sundsvalls enda äventyrsgolfbana på 18 hål. Uppförd sommaren 2018.
Bastu. Vikingavägen 49
Gemensamhetslokal. Vikingavägen 55
Vävstuga. Västra vägen 76 C
Biljard- och bordtennislokal. Västra vägen 70 A
Övernattningslägenhet med 4 fasta bäddar och en bäddsoffa. Wc, dusch och pentry. Internet. Kostnad 225 kr/den första natten sedan 100 kr/dygn. Vikingavägen 53
I föreningen finns 21 gemensamma tvättstugor.
Cykelförråd.
Till varje lägenhet hör ett förråd och en matkällare.
Stadsdelen Granlo har ca 3 000 invånare och består av både villaområden, radhus och bostadsrätter. Ett populärt område med cykelavstånd till centrum på ca 2,5 km och fin promenadväg längs ån till campus som ni når innan centrum. Här finns också goda bussförbindelser. Här finns bland annat apoteket Lokatten, med postombud och pizzeria. Granlo kyrka och gång- och cykelvägar med mera. I närheten hittar du även Sporthallsbadet.
Närservice
Granlo har en matvarubutik, med postservice.
Det finns även en lokal pizzeria, en frisör, en vårdcentral och ett apotek.
Kommunikation
Avstånd till centrum cirka 2,5 km. Bussförbindelserna från Granlo till Sundsvalls centrum är goda, även nattetid. Restid cirka 5 min. Se turlista på Din Tur.
Gång och cykelväg som leder till Sundsvall stad förbi Mittuniversitetet.
Skolor
Högoms skola, åk F-6.
Förskolor
Granlo förskola, Granlohögs förskola och Vikingens föskola. Alla är kommunala förskolor.
Vill du köpa, sälja eller värdera bostad i Granlo? Välkommen att kontakta Bjurfors mäklare i Sundsvall. Passa också på att anmäla dig till vår kostnadsfria söktjänst Boagenten som hjälper dig att hitta ditt drömboende.
Kontakta mäklaren om du behöver hjälp att ta fram en boendekalkyl.
När du köper din bostad genom Bjurfors kan du ansöka om bolån till en förmånlig ränta hos vår samarbetspartner SEB.
Ansvarig mäklare