-
Köpa
Köpa -
Sälja
Sälja - Hitta bostad
- Skapa bevakning
- Hitta mäklare
Toppmodern 3.5a med 2 inglasad balkonger. Mycket fint läge i området.
Norra Kajen, Sundsvall
*I månadsavgiften ingår värme, kabel-TV, IP-telefoni, internet.
**Bostadsrättsföreningen
Obligatorisk föranmälan via våran hemsida. Välkomna!
Obligatorisk föranmälan via våran hemsida. Välkomna!
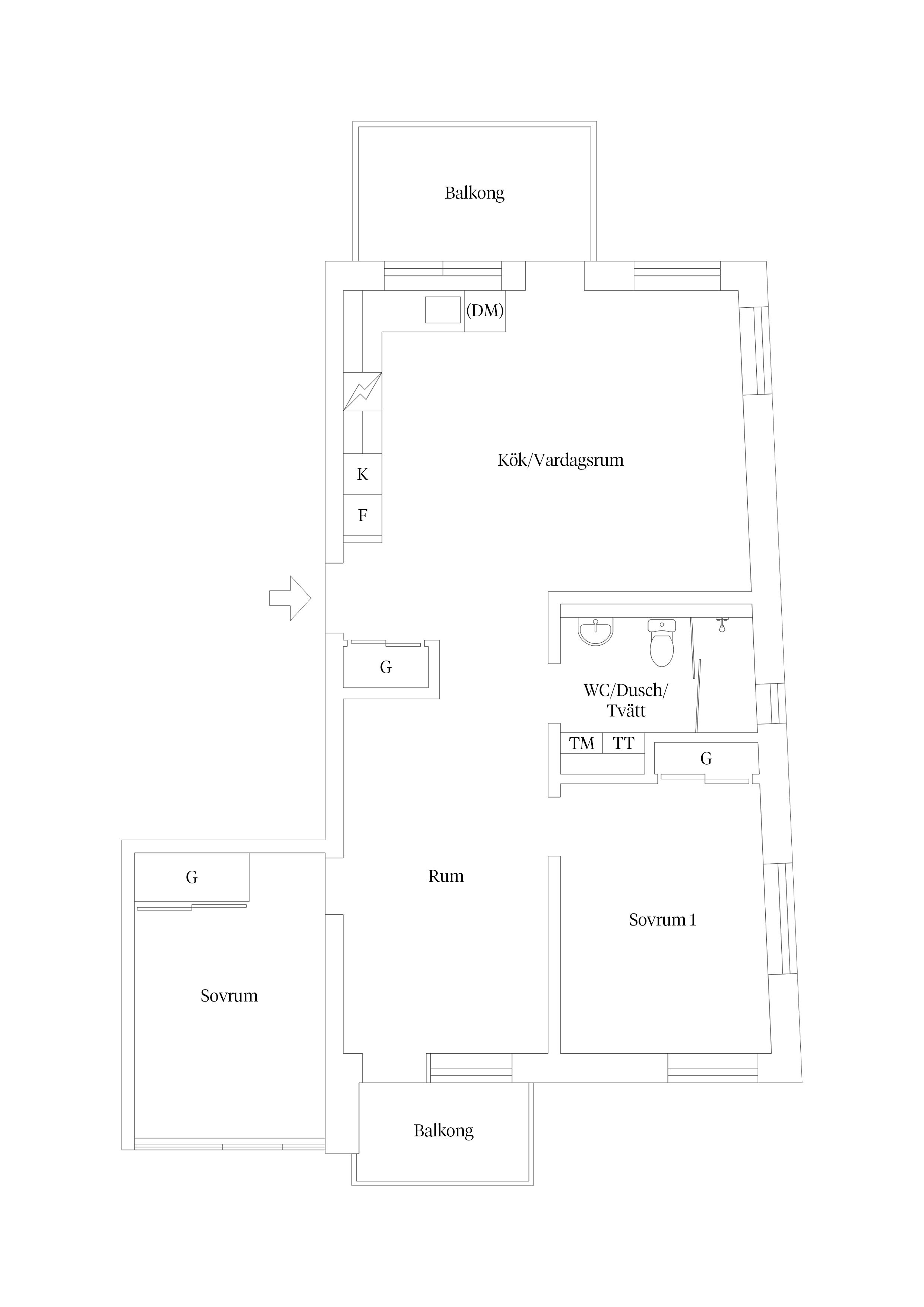
Välkommen till Fregattgatan 11 och denna toppmoderna bostad belägen en trappa upp, dit du enkelt tar dig via trapporna eller den rymliga hissen.
Lägenheten är nyproducerad från 2017 och erbjuder en öppen, modern planlösning med genomgående ljusa ytskikt och elegant ekparkett.
Köket från Marbodal har ljusgrå skåpluckor och ligger i anslutning till en av bostadens två balkonger. Här kan du njuta av en trevlig utsikt över närområdet och Sundsvallshamnen. Badrummet är helkaklat och utrustat med golvvärme samt både tvättmaskin och torktumlare.
Från det ljusa vardagsrummet, som kan nyttjas även som ett extra sovrum eller som tv-rum, når du bostadens andra balkong, perfekt för att ta vara på förmiddagssolen. Lägenheten rymmer idag två sovrum, båda med praktiska skjutgarderober. Det större sovrummet har ett stort fönster som skapar en härlig studiokänsla. Ytterligare förvaring finns i hallen i form av en rymlig skjutgarderob.
I byggnaden finns hiss, cykel- och källarförråd samt tillgång till en övernattningslägenhet som kan hyras vid behov.
Här bor du modernt och bekvämt i den välskötta bostadsrättsföreningen Prima. Norra Kajen är ett område där en ny stadsdel vuxit fram, med vackra promenadstråk längs vattnet och endast fem minuters gångväg till centrum. Parkeringsmöjlighet finns att hyra i närliggande garage eller på grusad yta i anslutning till huset.
Som extra förmån finns en gemensam takterrass på våning 5 i samma hus, utrustad med utekök, grill och möbler.
I den intilliggande byggnaden finns dessutom en större takterrass, även den nåbar via hiss, med magisk utsikt över både hav och stad.
Detta är en bostad ni inte vill missa – varmt välkommen att anmäla er till visning!



*1 trappa upp.
**Bostadsrättsföreningen
I månadsavgiften ingår värme, kabel-TV, IP-telefoni, internet.
Inglasad balkong i västerläge. Utgång från köket
Inglasad balkong i österläge. Utgång från vardagsrummet.
Gemensam takterass med utemöbler, utekök med grill i fantastiskt fint läge med många soltimmar såväl förmiddag som kvällssol.
Bostadsrättens indirekta nettoskuldsättning baseras på föreningens skulder/lån minus föreningens räntebärande tillgångar och likvida medel. Beräkningen är gjord och baseras på senaste tillgängliga årsredovisningen. För mer information kontakta ansvarig fastighetsmäklare.
Gemensamhets el och gemensamhets vatten som betalas efter vad man förbrukar.
Föreningen registrerades 2015-02-18. Föreningens nuvarande ekonomiska plan registrerades 2017-04-19 och nuvarande stadgar registrerades 2017-04-19 hos bolagsverket. Fastighetens värdeår är 2017. Fastigheten är belägen på Fregattgatan 1, 3, 7, 9 och 11. På fastigheten finns två bostadshus innehållande 63 lägenheter med bostadsrätt och en lokal.
Fastigheten är fullvärdesförsäkrad via Länsförsäkringar. I försäkringen ingår tilläggsförsäkring för bostadsrättshavare samt ansvarsförsäkring för styrelsen.
Den ekonomiska och tekniska förvaltningen samt fastighetsskötseln har under räkenskapsåret utförts av Nisses Förvaltnings AB i Sundsvall. Städ av Sofab och GAN-Avtal(TV/Bredband/Telefoni) via Telia.
Fullvärdesförsäkrad via Länsförsäkringar.
Inget underhåll förväntas de fem till tio första åren. Garantitiden för entrepranaden är 2022-10-18. Föreningen avsätter 30 kr per kvadratmeter för framtida underhållsbehov.
När det gäller parkeringsmöjligheter, så förfogar BRF Prima över 53 platser i garaget under Concordia husen. Möjlighet finns alltså till garageplats via BRF Prima. Kostnad 1,416 kr/mån och separat kö.
Gästparkeringar finns i grannområdet, på allmänna gator.
Det finns även möjlighet att hyra motorvärmarplats av Mitthem för 875kr/månaden
Telia hus.
TV: Telia grundutbud med 40 kanaler ingår i månadsavgiften.
Bredband: Telia 100/100 Mbit ingår i månadsavgiften.
I huset på Fregattgatan 1 finns en stor takterrass med fin utsikt över hav och Sundsvalls stad. På terrasserna finns möbler, grillar och förvaring.
I huset på Fregatt 7-11 finns det 2 st takterrasser den ena med utekök.
Övernattningslägenhet finns att hyra via bokningssystem.
Vill du köpa, sälja eller värdera bostad i Västernorrland? Kontakta våra mäklare i Sundsvall! Passa också på att anmäla dig till vår kostnadsfria söktjänst Boagenten som hjälper dig att hitta ditt drömboende.
Här hittar du alla våra lediga bostäder till salu i Västernorrlands län just nu!
Kontakta mäklaren om du behöver hjälp att ta fram en boendekalkyl.
När du köper din bostad genom Bjurfors kan du ansöka om bolån till en förmånlig ränta hos vår samarbetspartner SEB.
Obligatorisk föranmälan via våran hemsida. Välkomna!
Obligatorisk föranmälan via våran hemsida. Välkomna!
Ansvarig mäklare