-
Köpa
Köpa -
Sälja
Sälja - Hitta bostad
- Skapa bevakning
- Hitta mäklare
Välskött hyreshus med bergvärme.
Södermalm, Sundsvall
*Areauppgifter enligt taxeringsinformationen
Drömmer du om att äga ett eget hyreshus på attraktiv adress? Nu har du chansen att förvärva en välskött och lättförvaltad fastighet med stabila intäkter och god utvecklingspotential – belägen i hjärtat av naturnära och eftertraktade Södermalm.
Fastigheten på Grevensbäcksgatan 1 erbjuder en trygg investering med årliga hyresintäkter om 494 064 kr och låga driftkostnader på endast cirka 86 000 kr per år, vilket ger goda förutsättningar för en stark avkastning redan från dag ett.
Byggnaden rymmer 5 lägenheter samt ett gårdshus. Fastigheten är väl omhändertagen med energieffektiv uppvärmning via bergvärme, ommålad fasad och renoverade trapphus. Fiber är installerat och varje lägenhet har egen elmätare.
Parkeringsplatser ingår i hyran, och trappstädning sköts av hyresgästerna – faktorer som bidrar till en smidig och kostnadseffektiv förvaltning.
Södermalm är en lugn och trivsam stadsdel med gångavstånd till centrum, goda kommunikationer samt närhet till natur, vandringsleder och friluftsliv – ett attraktivt läge för både hyresgäster och investerare.
Missade du chansen senast? Ta den nu. Fastigheter med denna kombination av attraktivt läge, stabil ekonomi och utvecklingsmöjligheter är sällsynta.
Välkommen att kontakta oss för mer information eller för att boka visning
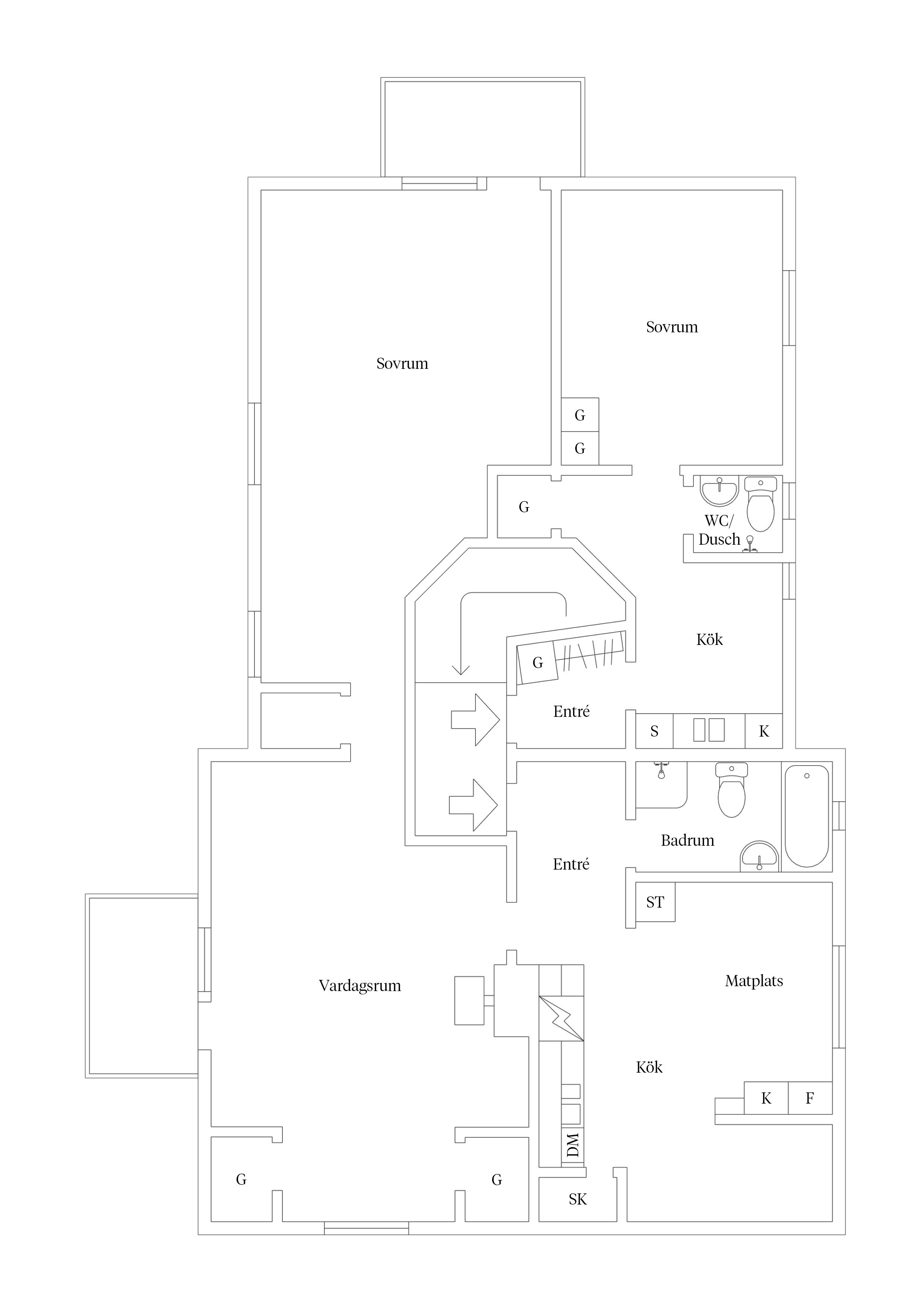
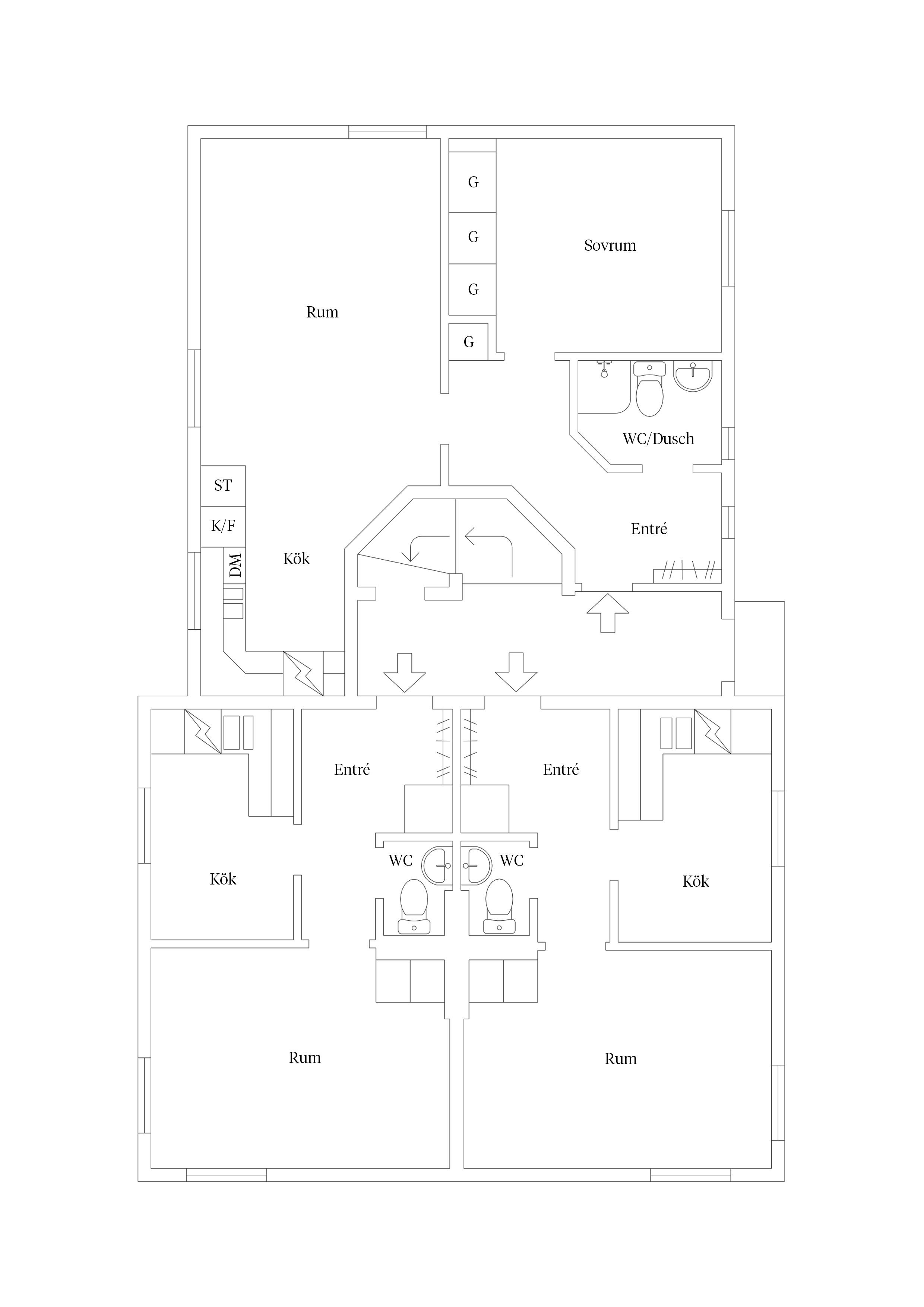
Våning 1:
Lägenhet 1: 1:a på 35 kvm
Lägenhet 2: 1:a på 35 kvm.
Lägenhet 3: 2:a på 62 kvm.
Våning 2:
Lägenhet 4: 1:a 30 kvm.
Lägenhet 5: 2:a 95 kvm.
Lägenhet 6: Gårdshus 43 kvm. Med luftvärmepump.
Alla lägenheter är i gott och modernt skick. Alla lägenheter har separata el-abonnemang.
Källarvåning med klinkergolv. Rymmer gemensam tvättstuga och förråd.



Kräftan 5
*Areauppgifter enligt taxeringsinformationen
Gemensam
Lummig trädgårdstomt
Parkeringar
Tomtindelning (1956-02-02) Stadsplan (1951-03-07) Stadsplan (1930-03-14)
Fiber
Det finns 5 st pantbrev uttagna om sammanlagt 3 930 000 kr
Södermalm ligger cirka en kilometers promenadavstånd från centrala Sundsvall.
Närservice
Här finns närhet till matvaruaffär (Ica Bergsgatan), pizzerior, vårdcentral, lekpark samt bensinstation.
Vill du köpa, sälja eller värdera bostad i Södermalm? Välkommen att kontakta Bjurfors mäklare i Sundsvall. Passa också på att anmäla dig till vår kostnadsfria söktjänst Boagenten som hjälper dig att hitta ditt drömboende.
Kontakta mäklaren om du behöver hjälp att ta fram en boendekalkyl.
När du köper din bostad genom Bjurfors kan du ansöka om bolån till en förmånlig ränta hos våra banksamarbetspartners Söderberg & Partners och SEB.
Ansvarig mäklare