-
Köpa
Köpa -
Sälja
Sälja - Hitta bostad
- Skapa bevakning
- Hitta mäklare
Unikt tillfälle, bostadsrättsradhus på grönskande Ullvibackar!
Ullvibackar, Köping
*Kallhyra. Uppvärmning, elförbrukning, vattenförbrukning, sophämtning, tv/tele/data, försäkring samt hushållsel tillkommer med 1680-2050 kr/månad beroende på förbrukning.
**Areauppgifter enligt byggherre
Unikt tillfälle - Optimalt planerat - Öppen planlösning - Egen parkering - Fiber indraget - Uteplats med trätrall - Grönskande och lugnt läge!
Unikt tillfälle, sista boendet i Brf Gläntan!
Bjurfors i samarbete med InnoBo presenterar stolt 21 stycken (20 bokade) moderna och optimalt planerade bostadsrättsradhus i den grönskande idyllen på Ullvibackar. Brf Gläntan omfattar 1-plansradhus om 72 respektive 86 kvm (3-4 rok) samt 2-plansradhus om 110 kvm (5 rok). Se situationsplan för fördelning. Således någonting för alla – från det unga paret och den växande barnfamiljen till de som lämnat villalivet bakom sig.
Radhusen kommer att karaktäriseras av socialt öppen planlösning samt genomgående hög standard. Stilrena, tidlösa och välutrustade kök samt estetiskt tilltalande och helkaklade badrum. Golv belagt med ekparkett samt klinker i badrum och entré. Uppvärmning via frånluftsvärmepump med återvinning samt vattenburen golvvärme (radiatorer på plan 2). Fiber indraget. Underbara uteplatser med trätrall mot grönska. Lättillgänglig egen parkering samt förråd på framsida. Mycket attraktivt, barnvänligt och naturnära läge!
Pris 2-plan om 110 kvm: 2 195 000 kr.
Säljstart: Nu.
Kontakta Andreas Skönebrant: 0708-5223000, andreas.skonebrant@bjurfors.se alternativt Marcus Skönebrant 0709-770789, marcus.skonebrant@bjurfors.se för mer information eller för att anmäla intresse.
Rumsbeskrivning: Se rums- och teknisk beskrivning.
Se rums- och teknisk beskrivning.



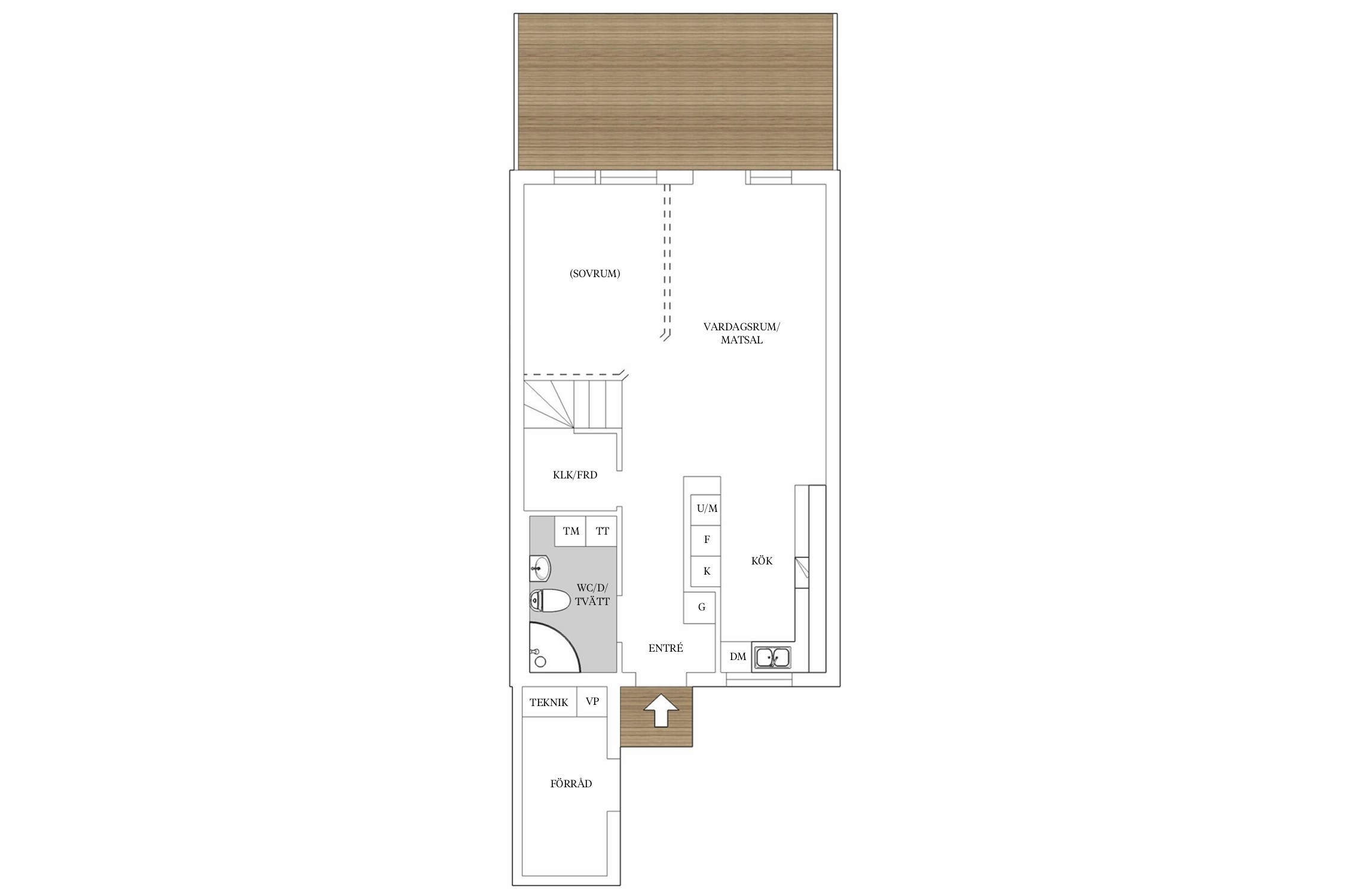
Entréplan
Entréplan
Övre plan
Övre plan
*Areauppgifter enligt byggherre
Kallhyra. Uppvärmning, elförbrukning, vattenförbrukning, sophämtning, tv/tele/data, försäkring samt hushållsel tillkommer med 1680-2050 kr/månad beroende på förbrukning.
Uteplats på baksidan av trätrall. På framsidan gräs, betongplattor samt asfalt.
Egen parkering på framsidan av huset.
Fiber
Vill du köpa, sälja eller värdera bostad i Västmanland? Kontakta våra mäklare i Västerås! Passa också på att anmäla dig till vår kostnadsfria söktjänst Boagenten som hjälper dig att hitta ditt drömboende.
Här hittar du alla våra lediga bostäder till salu i Västmanlands län just nu!
Kontakta mäklaren om du behöver hjälp att ta fram en boendekalkyl.
När du köper din bostad genom Bjurfors kan du ansöka om bolån till en förmånlig ränta hos vår samarbetspartner SEB.
Ansvarig mäklare